Размещено на портале Архи.ру (www.archi.ru)

09.03.2011

Театр начинается с колокола

Анна Мартовицкая
Объект:
Проект реконструкции интерьеров зрительской части театра «Приют Комедианта»
Адрес:
Россия, Санкт-Петербург. ул. Садовая, д. 27
Архитектор:
Никита Явейн
Мастерская:
Студия 44
Авторский коллектив:
Руководитель: Явейн Н.И. Архитекторы: Аксенов С.И., Жукова В.С., Снежкин Г.С. Художник: Капелюш Э.Б. Визуализация: Ашметьев Ю.Н.

Для знаменитого петербургского театра «Приют Комедианта» архитектурная мастерская «Студия 44» разработала дизайн-проект реконструкции зрительской части. В нем небольшое по площади пространство приобретает свою драматургию, приобщая посетителей к искусству театра задолго до входа в зрительный зал.

Фойе первого этажа. Проект реконструкции интерьеров зрительской части театра «Приют Комедианта»
Фойе первого этажа. Проект реконструкции интерьеров зрительской части театра «Приют Комедианта»
© Студия 44
Государственный драматический театр «Приют Комедианта» был создан в 1987 году как «театр одного актера», однако довольно быстро вышел за рамки жанра моноспектаклей и стал выпускать масштабные постановки. В 1997-м театр получил собственное помещение в центре Санкт-Петербурга – в доме №27 по Садовой улице, где когда-то располагался кинотеатр «Ампир». Поначалу помещений бывшего кинотеатра «Приюту комедианта» хватало, но постепенное расширение штата и растущая популярность у публики стали для него хоть и приятным, но непростым бременем. Театр «перерос» имеющиеся в его распоряжении площади, и вопрос реконструкции в последние годы обсуждался все чаще. Сначала «Приют комедианта» планировал надстроить существующее здание, но сложившийся облик Садовой и расположенные по соседству жилые дома наложили вето на подобный сценарий развития. И тогда театр принял решение о реконструкции существующих помещений, рассчитывая улучшить «жилищные условия» с помощью рациональной перепланировки. Дизайн-проект был заказан архитектурной мастерской «Студия 44», а его главным художником стал известный сценограф Эмиль Капелюш.

Прежде всего, архитекторам предстояло решить целый ряд технических вопросов: сделать театр доступным для маломобильных групп зрителей, спроектировать новый вместительный гардероб, реконструировать крошечные санузлы. Одной из острейших потребностей театра также было увеличение входного фойе – сегодня в здании есть только узкий тамбур, и в дни спектаклей в нем не протолкнуться. Это пространство архитекторы расширяют и оформляют 2,5-метровыми стендами, на которых будут размещаться афиши спектаклей. «Всего таких конструкций будет 16, и мы предлагаем установить их на направляющие таким образом, чтобы стенды могли перемещаться по кругу, – рассказывает архитектор проекта Вероника Жукова. – Это не только придаст пространству фойе определенную театральность, но и позволит трансформировать его, уменьшая или увеличивая при необходимости площадь помещения».

Сохраняя все внутренние несущие стены (лишь в некоторых из них делаются ниши и проемы с необходимыми усилениями), архитекторы реализуют желаемую перепланировку за счет разбора перегородок и ликвидации мастерских на первом этаже (они выводятся в другое здание). Гардероб, который сейчас расположен прямо напротив входа и представляет собой несколько огороженных вешалок для одежды, авторы проекта предлагают перенести в пространство, прежде занятое складскими помещениями. От фойе его отделят две колонны квадратного сечения – эти элементы не только визуально зонируют пространство, но и помогут структурировать зрительские потоки, то есть, проще говоря, именно между ними будут выстраиваться очереди на сдачу и получение верхней одежды, что позволит избежать давки.

В оформлении интерьера распределительного фойе использован камень, которым предполагается отделать полы, и металл, предназначенный для обшивки стен. Гладкая поверхность последнего работает как зеркало, визуально расширяя помещение и наполняя его дополнительным светом. Впрочем, вводить зрителей в заблуждение архитекторы не хотят, поэтому края каждой панели обработаны декоративными заклепками. В потолке фойе первого этажа вырезаны два световых фонаря, и светильники повторяют их прямоугольную форму.

На второй этаж ведет деревянная лестница. И если внизу доминируют особо прочные и практически материалы нейтральных расцветок, то фойе второго этажа трактовано как пространство максимально светлое и нарядное. Его стены, предварительно очищенные до «родного» кирпича, выкрашены в белоснежный цвет и украшены панно из золотистого металла – по таинственным символам, нанесенным на искусственно состаренную поверхность, искушенные театралы без труда узнают декорации, которые Эмиль Капелюш придумал для спектакля «Pro Турандот», удостоившегося множества театральных наград.

Полы и скамьи для зрителей в верхнем фойе выполнены из дуба светло-медового оттенка, а под потолком его пространство пронзает мощная деревянная балка, на которой висят колокола. По замыслу авторов, обилие дерева подчеркивает родство «Приюта комедианта» со старинными театрами Европы, которые когда-то все были насквозь деревянными. А вот колокола будут выполнять вполне утилитарную роль – приглашать зрителей на спектакль.
Фойе входное. Проект реконструкции интерьеров зрительской части театра «Приют Комедианта»
Фойе входное. Проект реконструкции интерьеров зрительской части театра «Приют Комедианта»
© Студия 44
Фойе входное. Проект реконструкции интерьеров зрительской части театра «Приют Комедианта»
Фойе входное. Проект реконструкции интерьеров зрительской части театра «Приют Комедианта»
© Студия 44
Гардероб. Проект реконструкции интерьеров зрительской части театра «Приют Комедианта»
Гардероб. Проект реконструкции интерьеров зрительской части театра «Приют Комедианта»
© Студия 44
Фойе второго этажа. Проект реконструкции интерьеров зрительской части театра «Приют Комедианта»
Фойе второго этажа. Проект реконструкции интерьеров зрительской части театра «Приют Комедианта»
© Студия 44
Макет Э.Капелюша. Проект реконструкции интерьеров зрительской части театра «Приют Комедианта»
Макет Э.Капелюша. Проект реконструкции интерьеров зрительской части театра «Приют Комедианта»
© Студия 44
Макет Э.Капелюша. Проект реконструкции интерьеров зрительской части театра «Приют Комедианта»
Макет Э.Капелюша. Проект реконструкции интерьеров зрительской части театра «Приют Комедианта»
© Студия 44
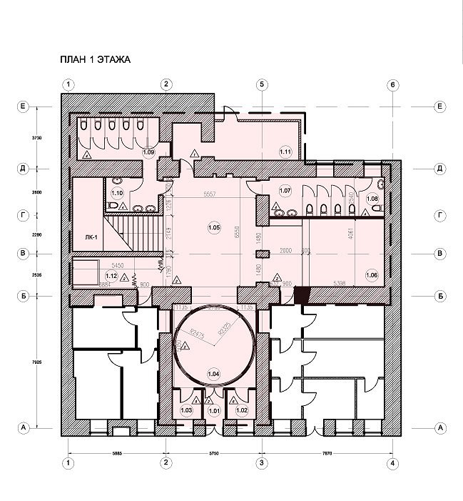
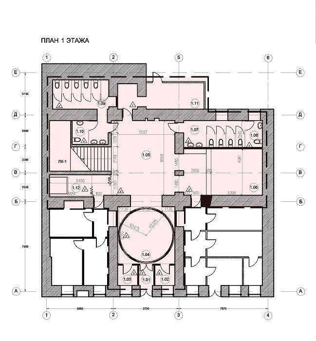
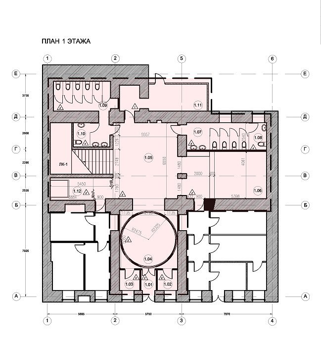
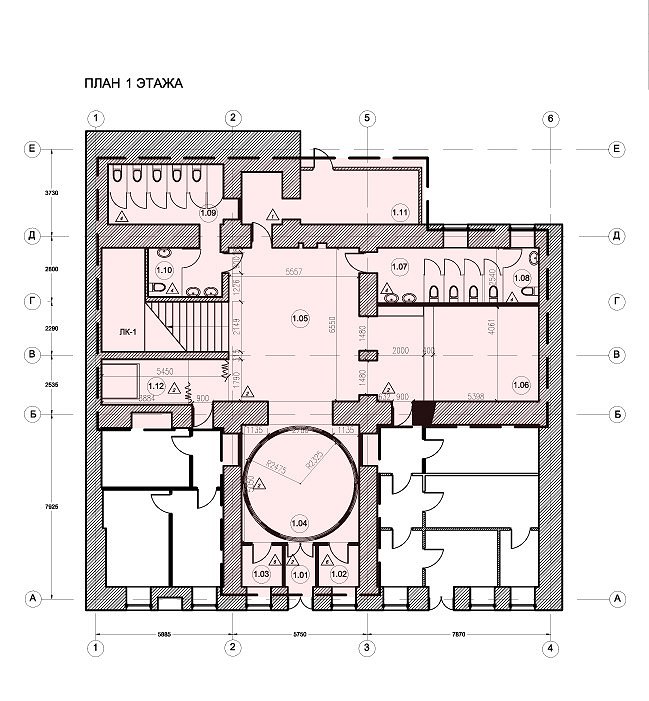
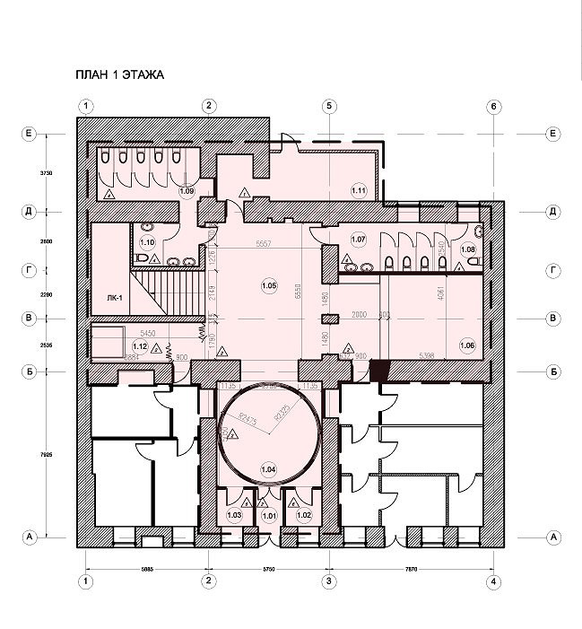
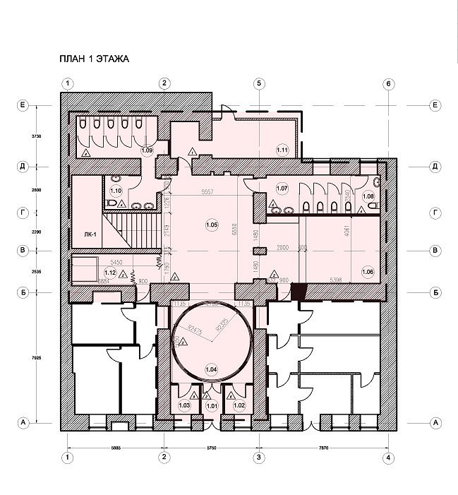
План 1-го этажа. Проект реконструкции интерьеров зрительской части театра «Приют Комедианта»
План 1-го этажа. Проект реконструкции интерьеров зрительской части театра «Приют Комедианта»
© Студия 44
План 2-го этажа. Проект реконструкции интерьеров зрительской части театра «Приют Комедианта»
План 2-го этажа. Проект реконструкции интерьеров зрительской части театра «Приют Комедианта»
© Студия 44