Размещено на портале Архи.ру (www.archi.ru)

28.02.2011

Как по нотам

Маргарита Чубукова
Объект:
Здание Yamaha Ginza
Адрес:
Япония, None, Токио.
Мастерская:
Nikken Sekkei

Бюро Nikken Sekkei построило "музыкальный дом" для компании Yamaha.

Yamaha Ganza © Kenichi Suzuki Photography Studio
Yamaha Ganza © Kenichi Suzuki Photography Studio
Впервые представительство главного японского производителя музыкальных инструментов Yamaha было построено в Токио 60 лет назад. Здание расположилось в культурном и торговом центре японской столицы – районе Гиндза. С тех пор прежний «дом музыки» обветшал, а нормы застройки в этой части города упростились, поэтому владельцы токийского офиса решили построить вместо него новое сооружение – более оригинальное.

Архитекторы Nikken Sekkei попытались передать сущность бренда Yamaha в своем проекте, прежде всего, благодаря необычному декору. Фасад выполнен из стеклянных панелей, расположенных по диагональной сетке. Разноцветные ромбы символизируют музыкальное разнообразие: смена цветов на поверхности здания подобна изменяющемуся звучанию музыкальных инструментов в течение одного произведения, чередование элементов создает своеобразный ритмический рисунок. Между стекол с высокой светопрозрачностью можно увидеть продукт новейших технических разработок – ромбы из стекла, в состав которого входит золотой песок.

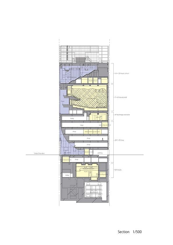
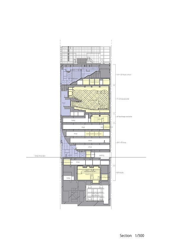
Под одной крышей объединены концертный зал, фирменный магазин Yamaha, музыкальная школа, студия, три атриума – за каждым из трех выходящих на улицы Гиндзы фасадов. Для каждого из помещений, в котором звучит музыка, специалистам удалось создать особую среду с отличными акустическими параметрами. Отдельное внимание было уделено звукоизоляции. В одном из залов потолок имеет форму волны – это пример работы с акустикой. Благодаря такому профилю создается впечатление, что звуки, отражаясь от поверхности потолка, доносятся сверху.
Yamaha Ganza © Kenichi Suzuki Photography Studio
Yamaha Ganza © Kenichi Suzuki Photography Studio
Yamaha Ganza © Kenichi Suzuki Photography Studio
Yamaha Ganza © Kenichi Suzuki Photography Studio
Yamaha Ganza © Kenichi Suzuki Photography Studio
Yamaha Ganza © Kenichi Suzuki Photography Studio
Yamaha Ganza © Kenichi Suzuki Photography Studio
Yamaha Ganza © Kenichi Suzuki Photography Studio
Yamaha Ganza © Kenichi Suzuki Photography Studio
Yamaha Ganza © Kenichi Suzuki Photography Studio
Yamaha Ganza © Kenichi Suzuki Photography Studio
Yamaha Ganza © Kenichi Suzuki Photography Studio
Yamaha Ganza © Kenichi Suzuki Photography Studio
Yamaha Ganza © Kenichi Suzuki Photography Studio
Yamaha Ganza © Kenichi Suzuki Photography Studio
Yamaha Ganza © Kenichi Suzuki Photography Studio
Yamaha Ganza © Kenichi Suzuki Photography Studio
Yamaha Ganza © Kenichi Suzuki Photography Studio
Yamaha Ganza © Kenichi Suzuki Photography Studio
Yamaha Ganza © Kenichi Suzuki Photography Studio
Yamaha Ganza © Kenichi Suzuki Photography Studio
Yamaha Ganza © Kenichi Suzuki Photography Studio
Yamaha Ganza © Kenichi Suzuki Photography Studio
Yamaha Ganza © Kenichi Suzuki Photography Studio
Yamaha Ganza © Kenichi Suzuki Photography Studio
Yamaha Ganza © Kenichi Suzuki Photography Studio
Yamaha Ganza. Разрез © Kenichi Suzuki Photography Studio
Yamaha Ganza. Разрез © Kenichi Suzuki Photography Studio
Yamaha Ganza. План здания © Kenichi Suzuki Photography Studio
Yamaha Ganza. План здания © Kenichi Suzuki Photography Studio