Размещено на портале Архи.ру (www.archi.ru)

08.02.2011

Очень бюджетный дом с мезонином

Объект:
Поселок Backbone Village
Адрес:
Словения, None, Любляна.
Мастерская:
Ofis
Авторский коллектив:
Rok Oman, Spela Videcnik, Andrej Gregoric, Javier Carrera, Janez Martincic, Katja Aljaz

В пригороде Любляны бюро Ofis спроектировало поселок, состоящий из малобюджетных коттеджей, предназначенных для молодых семей.

Поселок Backbone Village. © Ofis Arhitekti
Поселок Backbone Village. © Ofis Arhitekti
Ofis, одно из самых известных архитектурных бюро современной Словении, не понаслышке знакомо с жанром социального жилья – именно оно, в частности, построило в городе Изола комплекс «Квартиры на берегу», ставший финалистом архитектурной награды Евросоюза «Премии Мис ван дер Роэ». Новый проект бюро также принадлежит к категории малобюджетных построек, правда на этот раз речь идет о частном загородном жилье.

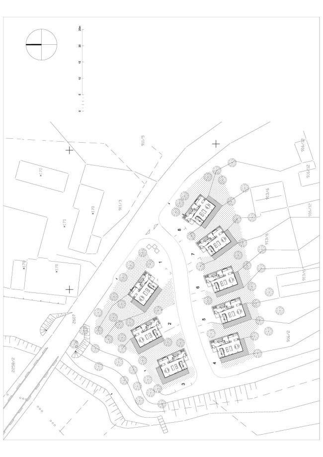
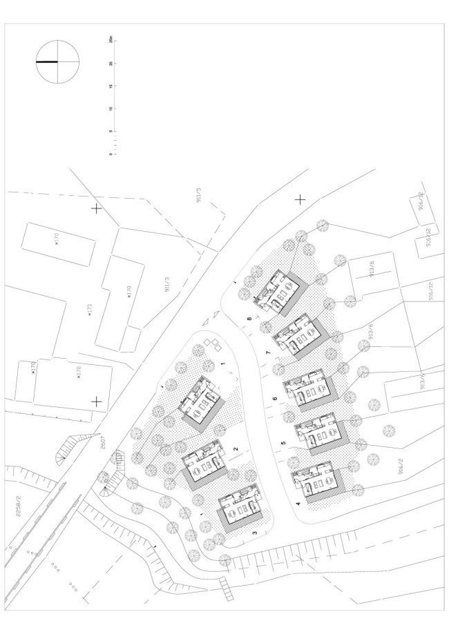
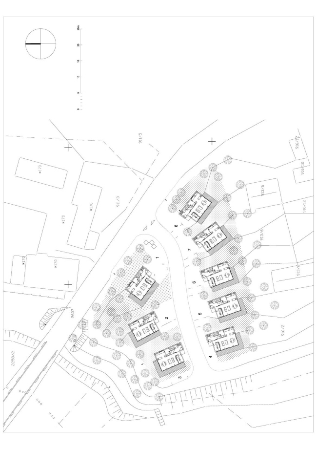
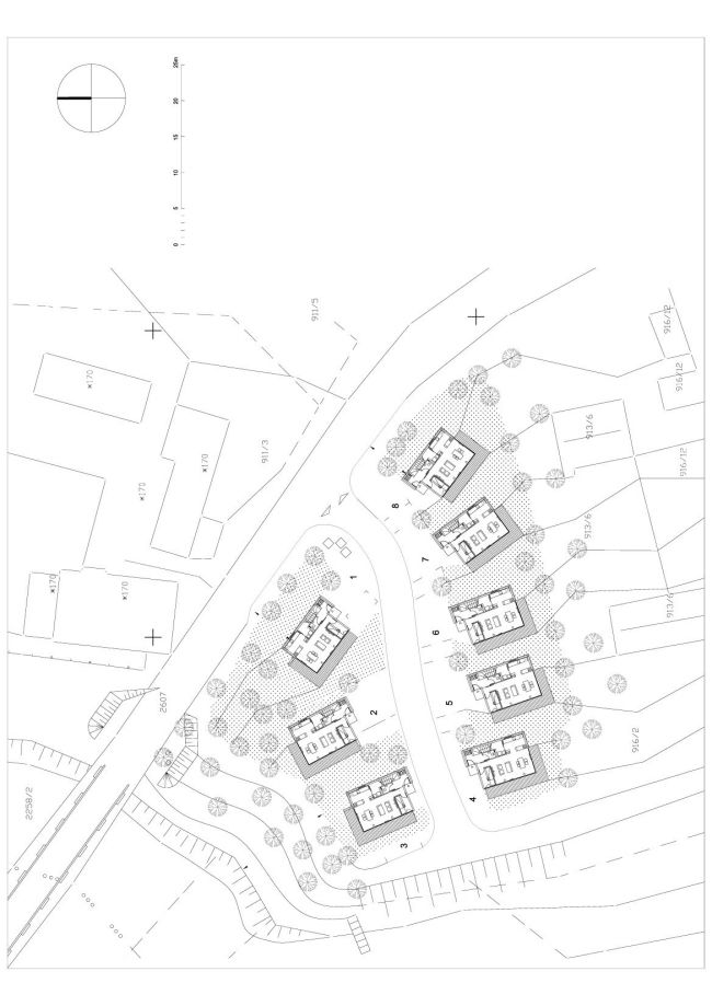
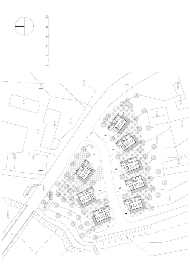
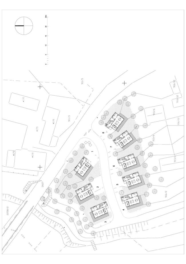
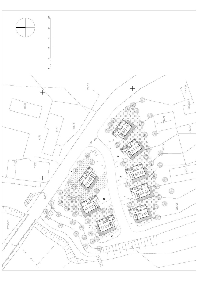
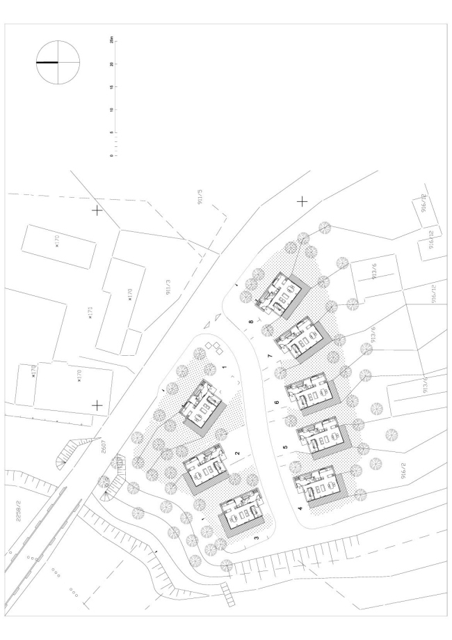
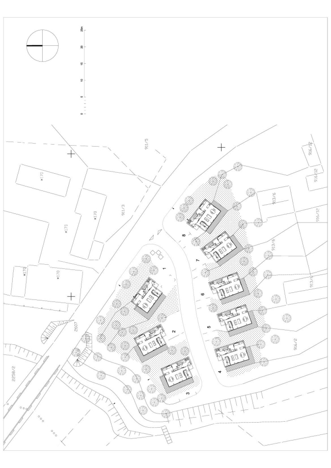
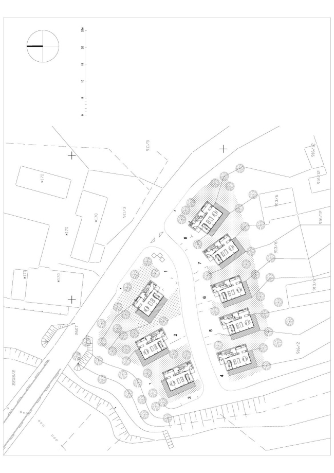
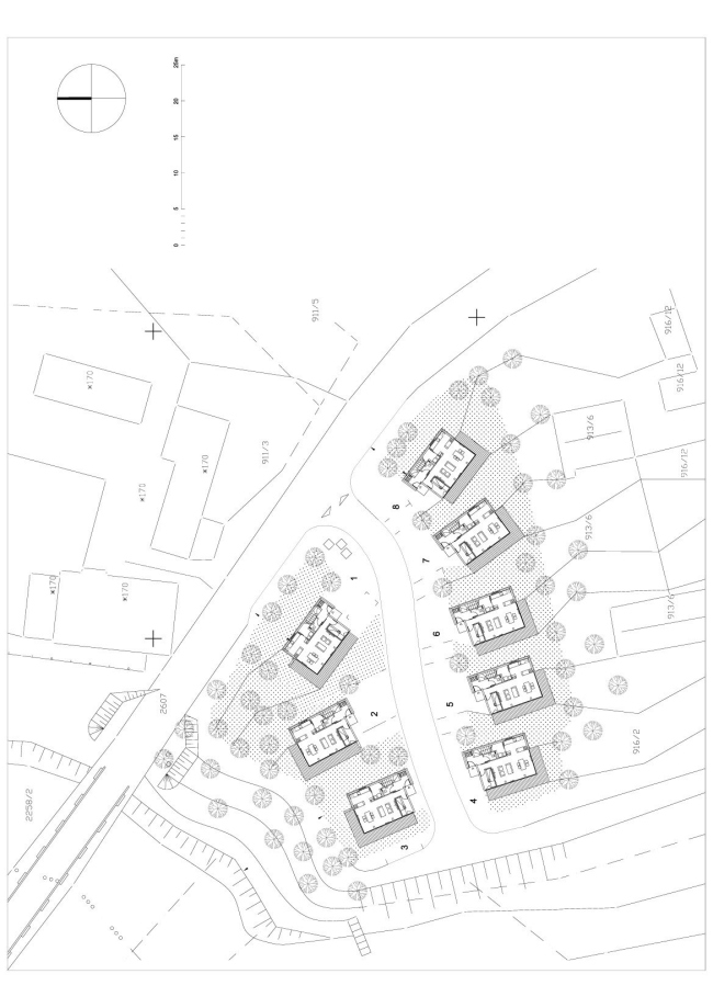
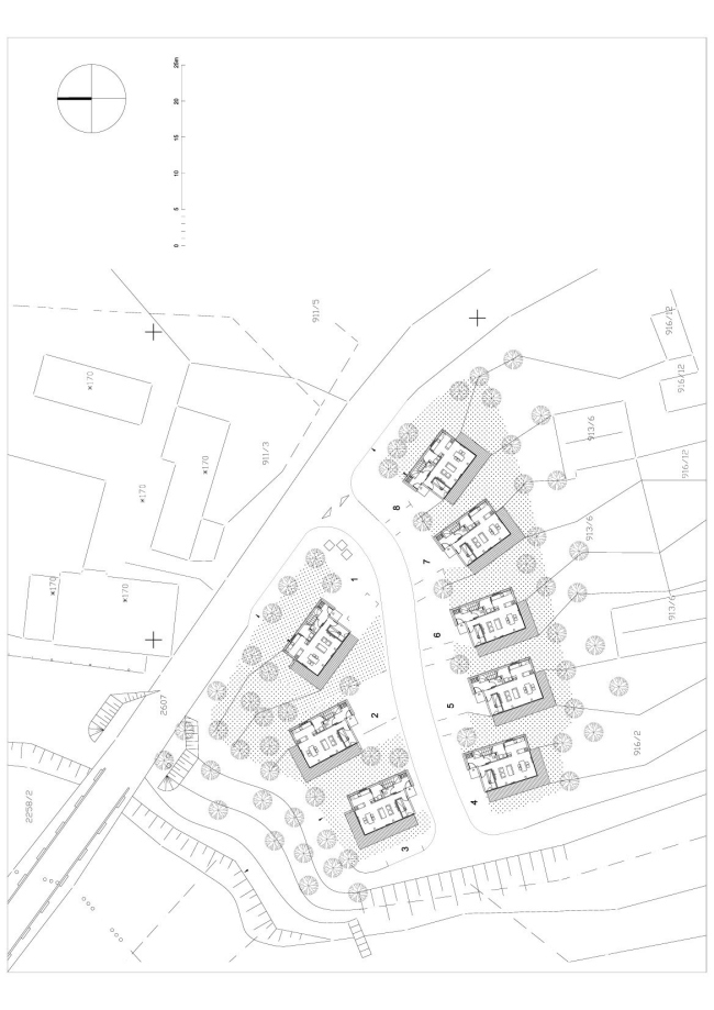
Поселок, спроектированный в пригороде Подпеч (Podpec) имеет традиционную для словенских поселений планировочную структуру. Все домовладения «нанизаны» на ось главной улицы, от которой к участкам ведут небольшие ответвления-съезды. Сами архитекторы подобную схему сравнивают с кровеносной системой или хребтом, поэтому и назвали свой проект Backbone Village («Деревня-позвоночник»).

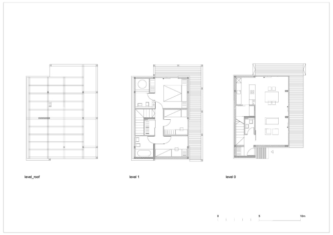
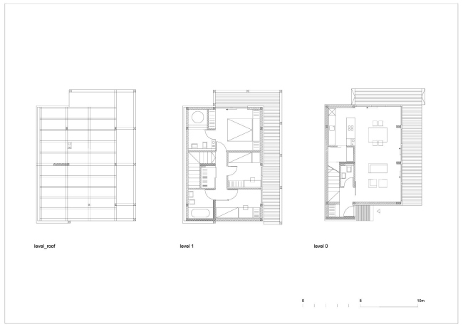
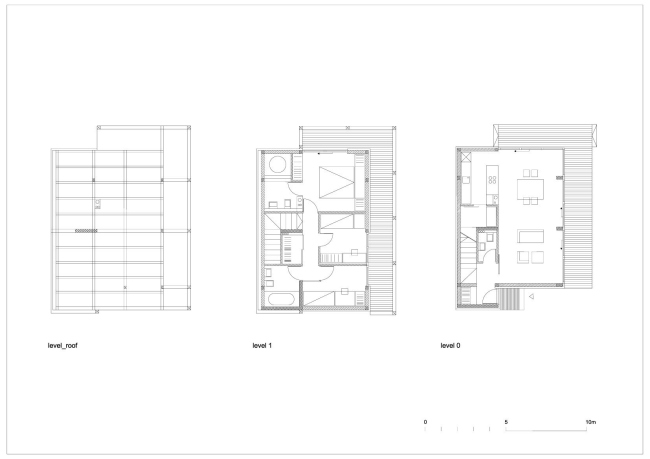
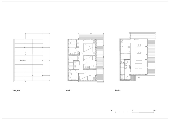
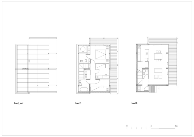
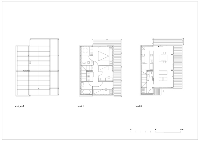
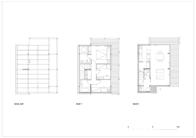
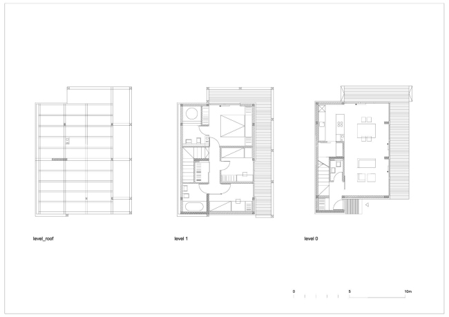
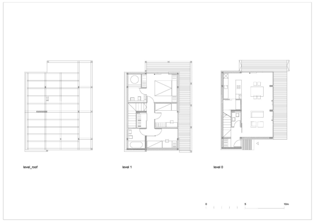
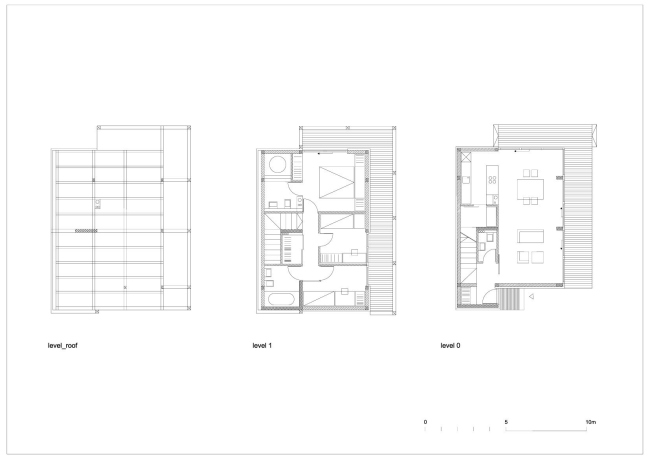
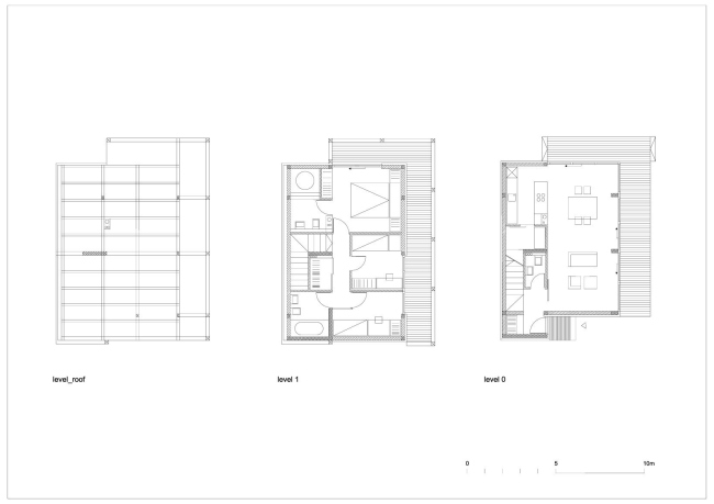
Площадь каждого коттеджа – 110 квадратных метров. На первом этаже расположены гостиная, имеющая выход в сад, столовая и кухня. Архитекторы также заложили в план первого этажа возможность создания дополнительной комнаты, например, гостевой спальни или кабинета. Второй этаж полностью отведен под спальни обитателей дома – всего их три, – а также ванные комнаты и гардеробные. Каждая спальня имеет выход на обшитую лиственницей террасу, украшенную перголой. Отметим, что этот прямоугольный объем, врезанный в традиционный дом с двускатной кровлей и нависающий над панорамными окнами гостиной внушительной консолью, является самым эффектным архитектурным элементом всей композиции.

Всего в поселке 8 домов. Предполагается, что их основными покупателями станут молодые семьи, которые не могут себе позволить жилье в центре города, но имеют право на ипотечный кредит с низкой процентной ставкой. Стоимость каждого дома составляет 140-160 тысяч евро без внутренней отделки.
 
А. М.
Поселок Backbone Village. © Ofis Arhitekti
Поселок Backbone Village. © Ofis Arhitekti
Поселок Backbone Village. © Ofis Arhitekti
Поселок Backbone Village. © Ofis Arhitekti
Поселок Backbone Village. © Ofis Arhitekti
Поселок Backbone Village. © Ofis Arhitekti
Поселок Backbone Village. © Ofis Arhitekti
Поселок Backbone Village. © Ofis Arhitekti
Поселок Backbone Village. © Ofis Arhitekti
Поселок Backbone Village. © Ofis Arhitekti
Поселок Backbone Village. © Ofis Arhitekti
Поселок Backbone Village. © Ofis Arhitekti
Поселок Backbone Village. Генеральный план. © Ofis Arhitekti
Поселок Backbone Village. Генеральный план. © Ofis Arhitekti
Поселок Backbone Village. Поэтажные планы. © Ofis Arhitekti
Поселок Backbone Village. Поэтажные планы. © Ofis Arhitekti