Размещено на портале Архи.ру (www.archi.ru)

16.03.2011

«Тетрис» по вертикали и горизонтали

Анна Мартовицкая
Объект:
Торгово-деловой комплекс «Водный» на Головинском шоссе
Адрес:
Россия, Москва. Головинское шоссе, д.5
Архитектор:
Вера Бутко
Антон Надточий
Мастерская:
ATRIUM
Авторский коллектив:
Архитекторы: Aнтон Надточий, Вера Бутко, Геннадий Надточий, Алексей Науменко, Александр Малыгин, Анна Аленичева
Архитекторы (интерьер лобби офисной части комплекса «Водный»): Антон Надточий, Вера Бутко, Петр Алимов, Анна Аленичева, Евгений Повонский, Владимир Подолякин
Архитекторы (интерьер торговой части комплекса «Водный»): Антон Надточий, Вера Бутко, Александр Малыгин, Анна Аленичева, Анастасия Михеева, Николай Филатов. Петр Алимов
Конструкторы: «Метрополис» (стадия «П»), Горпроект (стадия «АР»)
Инженерия: «Метрополис» (стадия «П»), Горпроект (стадия «АР»)

Одним из российских проектов, презентованных на только что завершившемся в Каннах международном инвестиционном форуме недвижимости MIPIM-2011, стал многофункциональный комплекс «Водный» на Головинском шоссе. Его девелопером выступает компания MR Group, а автором архитектурной концепции является мастерская «Атриум».

Участок строительства расположен между Кронштадтским бульваром и Головинским шоссе, сходящимися под острым углом в районе станции метро «Водный стадион». В этом створе, между двумя шумными трассами, раньше располагалась промзона, разрастаться которой с одной стороны мешало метро, а с другой – Головинское кладбище. В последние годы существующие здесь заводы уже не работали, а их многочисленные строения в массе своей обветшали и предназначены под снос. Разговоры о необходимости комплексной застройки данной территории ведутся с середины 2000-х годов. В 2007-м архитектурная концепция была заказана мастерской «Сергей Киселев и Партнеры» (Архи.ру подробно рассказывал об этом проекте), но ее реализации помешал экономический кризис. В прошлом же году, когда инвестор все же взялся за первую очередь строительства, он решил изменить функцию комплекса, заменив часть офисов гипермаркетом. К разработке новой концепции были приглашены несколько бюро, в т.ч. и иностранных. В итоге принятый к реализации проект совмещает компоновочные решения от Swanke Hayden Connell Architects, CBRE и мастерской «Атриум». А вот архитектурную часть полностью разрабатывали российские архитекторы – Вера Бутко и Антон Надточий, к которым присоединился Геннадий Надточий, обладающий большим опытом проектирования крупных торговых комплексов. Они же выполнили и стадию «Проект».

Архитектуру комплекса определила высотная доминанта, несомненно нужная в столь безликом районе. В башне разместились офисы, тогда как все торгово-развлекательные функции сгруппированы в 3-этажном блоке, «распластавшемся» на участке. При этом  объемно-пространственные решения офисной и торговой частей объединены общей темой. Архитекторы виртуозно соединили два блока, трактовав многофункциональность комплекса как взаимодействие разных, но одинаково активных по своей пластике форм. «У нас получился своего рода пространственный тетрис, в котором отдельные элементы так точно подобраны друг к другу, что составляют единое целое, – говорит архитектор Антон Надточий. – Несмотря на цельность общей формы мы старались артикулировать пластику взаимодействия объемных элементов».

Высотная часть комплекса размещена ближе к метро и проходящему за ним Ленинградскому шоссе. Видимость одного из фасадов этой 100-метровой башни со стороны трассы, ведущей в международный аэропорт «Шереметьво», обусловила особое внимание к его проработке. Кроме того, ориентированный на юго-запад, он нуждался в защите от прямых лучей солнца. Из сочетания двух обстоятельств – необходимости придать огромной плоскости запоминающуюся внешность и снабдить ее эффективной солнцезащитой – и родился архитектурный образ башни. Во-первых, сам стеклянный параллелепипед архитекторы «перевылепили» таким образом, что он кажется составленным из нескольких сложных в плане объемов. Во-вторых, прозрачное тело офисной высотки защищено тонкими ламелями, причем одна половина башни одета в белые «жалюзи», а вторая – в темные, что придает фасаду дополнительный объем и подчеркивает динамичность взаимодействия его частей.

Еще увлекательнее выглядят торцы высотки. Здесь вопрос палящего солнца был уже не столь актуален, и потому боковые фасады скомбинированы из полностью остекленных элементов, лишь по периметру «обведенных» массивом конструкции. Но и они своими сложными геометрическими формами напоминают фигуры «тетриса». Причем собрав их в прямоугольник, архитекторы задали им разную толщину, в результате чего фасады получили глубинное измерение. Консоли нависают над террасами, которые в будущем предполагается озеленить и превратить в рекреационное пространство для работников офиса.

На торцах лучше всего видно и то, как высотный блок взаимодействует с горизонталью торгово-развлекательного комплекса. Башня в прямом смысле врастает в нижнюю пластину – офисный фасад без изменений продолжается внутри ТРЦ, становится его частью. «Интерьер торговых залов приобретает очень необычный элемент, но вместе с тем строгая офисная стена четко обозначает границу двух разных зон – развлекательной и торговой», – поясняет архитектор Вера Бутко. Для удобства же работников офисов башня на уровне третьего этажа соединена с торговым центром специальным мостом-переходом. Он ведет прямо в зону фудкорта, размещенную в эффектном полуовальном атриуме.

Фасады самой стилобатной части выполнены из обычных сэдвич-панелей. На всем их протяжении будут размещены крепежи для рекламных плакатов любого формата – от почти квадрата до сильно вытянутого прямоугольника. Таким образом, объем ТРЦ будет складываться из множества отдельных сегментов и тем самым недвусмысленно заявлять о своем родстве с вросшей в него высоткой. Это тот же «тетрис», только собранный по горизонтали. Объединяя столь не похожие друг на друга объемы, тема знаменитой компьютерной игры придает им яркий и узнаваемый облик, которого так не хватает сегодняшнему окружению «Водного стадиона».
Ситуационный план
Ситуационный план
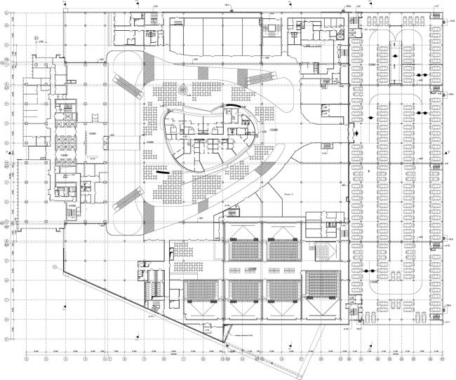
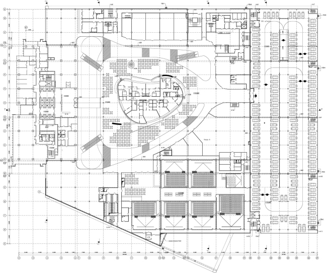
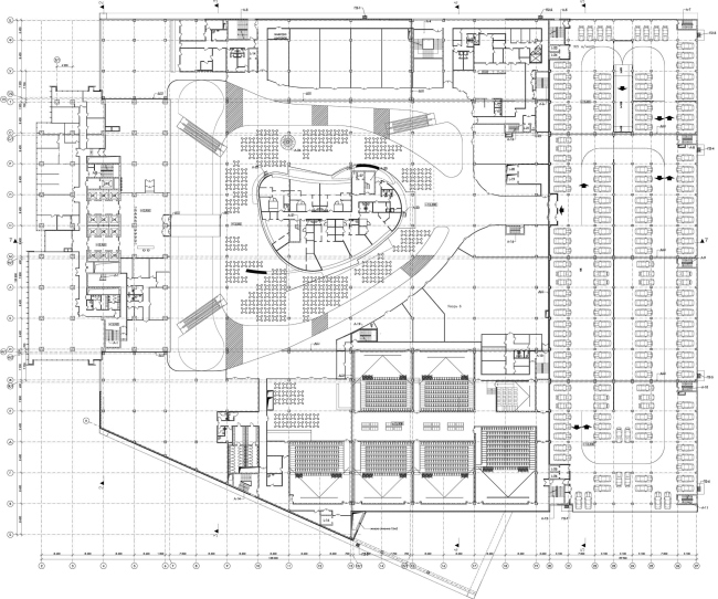
Торгово-деловой комплекс «Водный». План
Торгово-деловой комплекс «Водный». План
© ATRIUM
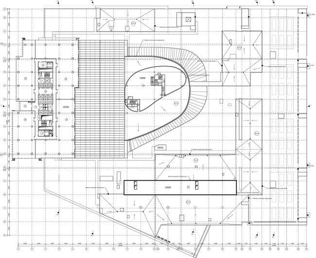
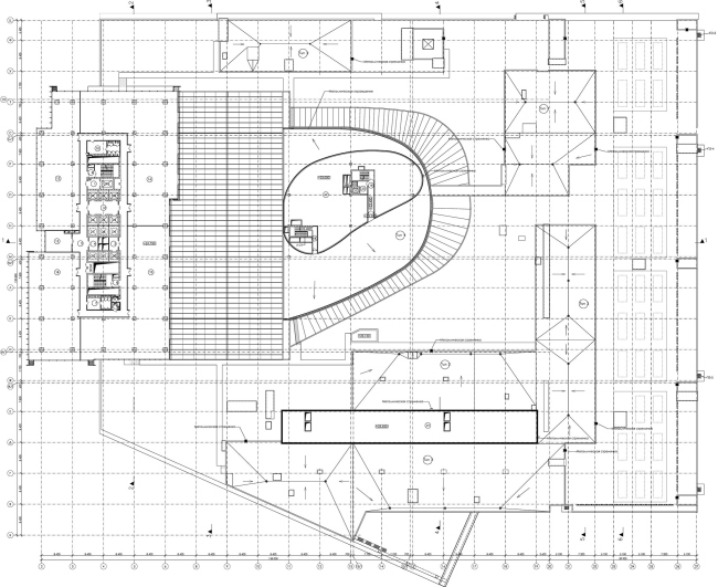
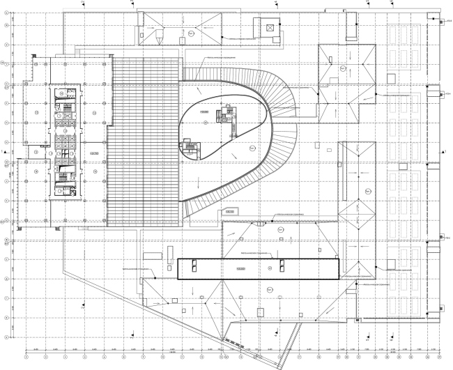
Торгово-деловой комплекс «Водный». План
Торгово-деловой комплекс «Водный». План
© ATRIUM