Размещено на портале Архи.ру (www.archi.ru)

12.01.2011

Природа для созерцания

Объект:
Аббатство Валь-Нотр-Дам
Адрес:
Канада, None, Сен-Жан-де-Мата.

Близ Монреаля построено новое аббатство ордена цистерцианцев.

Аббатство Валь-Нотр-Дам. Фото © Alain Laforest
Аббатство Валь-Нотр-Дам. Фото © Alain Laforest
Автором проекта выступил Пьер Тибо, известный, в основном, как автор тонко связанных с окружающим ландшафтом частных домов. Подобный подход, вероятно, и привлек заказчиков. От архитектора они получили постройку традиционного плана: церковь и клуатр с расположенными вокруг него двухэтажными корпусами. Основные использованные материалы — дерево и стекло — призваны соответствовать окружению — лесистой местности — и подчеркивать ее красоту. Даже восточная стена церкви, вместо апсиды, решена как 9-метровый стеклянный экран: таким образом, монахи при молитве будут обращать взгляд на пейзаж за окном, меняющийся в течение суток и при смене времен года, что заставляет вспомнить о пантеизме. Впрочем, хозяев аббатства Валь-Нотр-Дам это не смущает: широкое использование естественного освещения и тесная связь внешнего и внутреннего пространства им кажутся вполне уместными, так как способствуют созерцательному настроению.

В то же время, цистерцианцы вообще и трапписты, их ответвление с еще более строгими правилами монастырского жития (именно им принадлежит Валь-Нотр-Дам), в частности, известны лаконичностью архитектуры своих аббатств и жесткостью устава. Если комплекс, созданный Тибо, можно назвать сдержанным, но никак не строгим (его проект почти без изменений вполне можно было бы использовать для небольшой гостиницы за городом, и это никого бы не удивило), то само его появление всё же связано с требованиями устава. Монастырь траппистов существовал с 19 века в городке Ока, но к концу 20 века число монахов уже не соответствовало его размеру (вместо былых 150 их осталось всего 30), к тому же Ока стал оживленным пригородом Монреаля, а от цистерцианцев требуется удалиться от мира и соблюдать по возможности обет молчания. В результате, было решено перебраться в местечко Сен-Жан-де-Мата. Тем не менее, по правилам ордена требуется также оказывать гостеприимство путникам, поэтому и в новом монастыре часть помещений отдана под гостевое крыло. В остальном он отделен от мира: вход внутрь защищает расположенный под «портиком» на высоких опорах привратный корпус; мирянам легко доступна только церковь, вход в которую располагается снаружи комплекса, но и там, в соответствии с традицией, они отделены от монахов.

Кроме леса вокруг, монастырь обладает садом в клуатре, где сохранена существовавшая там до строительства растительность, и озелененными террасами перед каждой из келий, расположенных на втором этаже. Кроме эстетической, зелень играет и практическую, экологическую роль, которую дополняют геотермальная система отопления с 14 скважинами, система сбора дождевой и очистки сточной воды, и т. д.

Следует отметить, что в последние годы именно цистерцианцы зарекомендовали себя как заказчики качественной современной архитектуры: в частности, для этого ордена Джон Поусон построил замечательный ансамбль монастыря Нови Двур в Чехии.
Аббатство Валь-Нотр-Дам. Фото © Alain Laforest
Аббатство Валь-Нотр-Дам. Фото © Alain Laforest
Аббатство Валь-Нотр-Дам. Фото © Alain Laforest
Аббатство Валь-Нотр-Дам. Фото © Alain Laforest
Аббатство Валь-Нотр-Дам. Интерьер церкви. Фото © Alain Laforest
Аббатство Валь-Нотр-Дам. Интерьер церкви. Фото © Alain Laforest
Аббатство Валь-Нотр-Дам. Фото © Alain Laforest
Аббатство Валь-Нотр-Дам. Фото © Alain Laforest
Аббатство Валь-Нотр-Дам. Фото © Alain Laforest
Аббатство Валь-Нотр-Дам. Фото © Alain Laforest
Аббатство Валь-Нотр-Дам. Фото © Alain Laforest
Аббатство Валь-Нотр-Дам. Фото © Alain Laforest
Аббатство Валь-Нотр-Дам
Аббатство Валь-Нотр-Дам
Аббатство Валь-Нотр-Дам. Вход в монастырь. В глубине - западный фасад церкви. Фото © Alain Laforest
Аббатство Валь-Нотр-Дам. Вход в монастырь. В глубине - западный фасад церкви. Фото © Alain Laforest
Аббатство Валь-Нотр-Дам. Фото © Alain Laforest
Аббатство Валь-Нотр-Дам. Фото © Alain Laforest
Аббатство Валь-Нотр-Дам. Фото © Alain Laforest
Аббатство Валь-Нотр-Дам. Фото © Alain Laforest
Аббатство Валь-Нотр-Дам. Фото © Alain Laforest
Аббатство Валь-Нотр-Дам. Фото © Alain Laforest
Аббатство Валь-Нотр-Дам. Фото © Alain Laforest
Аббатство Валь-Нотр-Дам. Фото © Alain Laforest
Аббатство Валь-Нотр-Дам. Фото © Alain Laforest
Аббатство Валь-Нотр-Дам. Фото © Alain Laforest
Аббатство Валь-Нотр-Дам. Фото © Alain Laforest
Аббатство Валь-Нотр-Дам. Фото © Alain Laforest
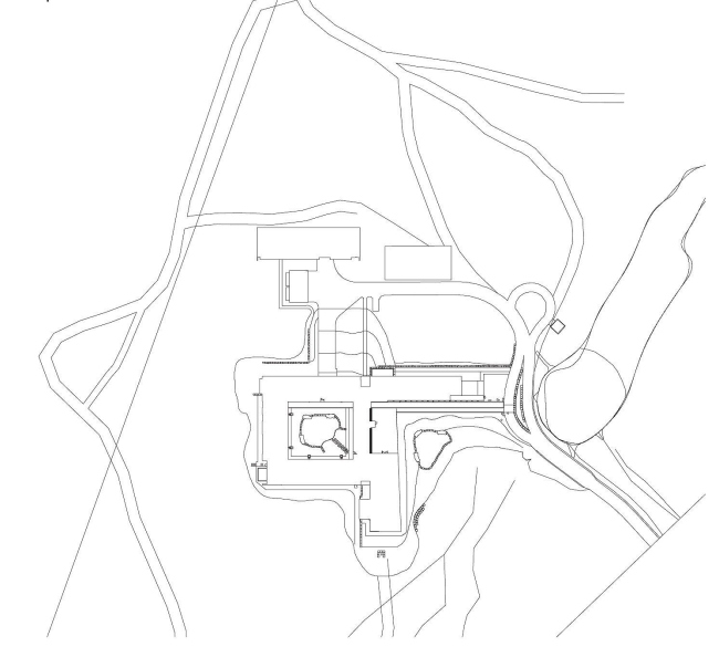
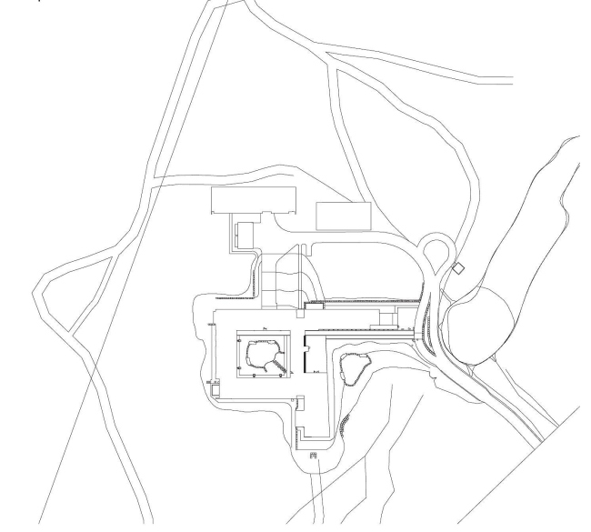
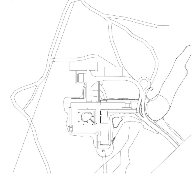
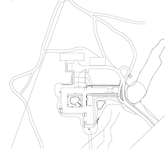
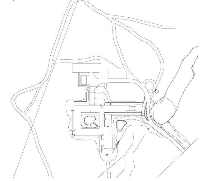
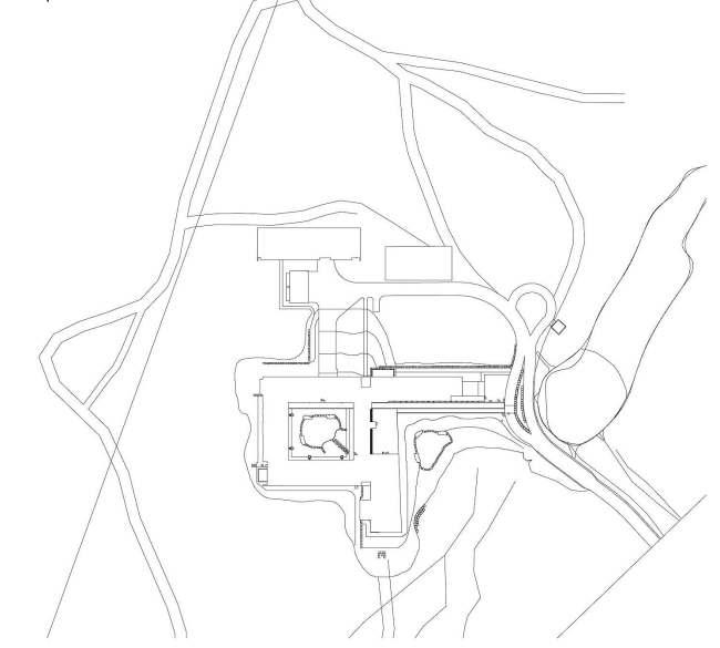
Аббатство Валь-Нотр-Дам © Atelier Pierre Thibault
Аббатство Валь-Нотр-Дам © Atelier Pierre Thibault
Аббатство Валь-Нотр-Дам © Atelier Pierre Thibault
Аббатство Валь-Нотр-Дам © Atelier Pierre Thibault
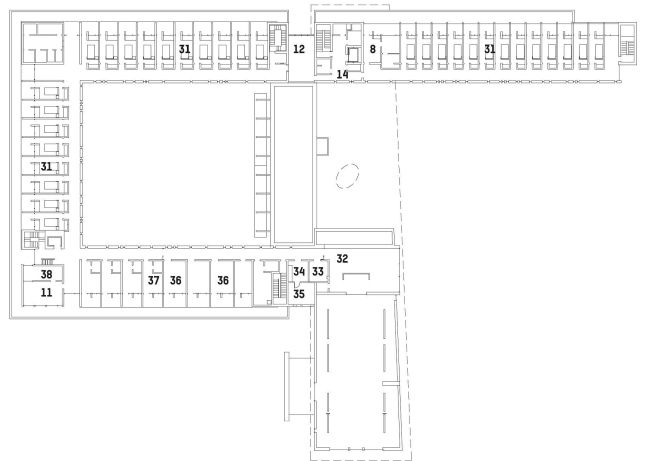
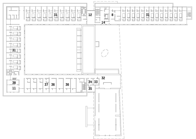
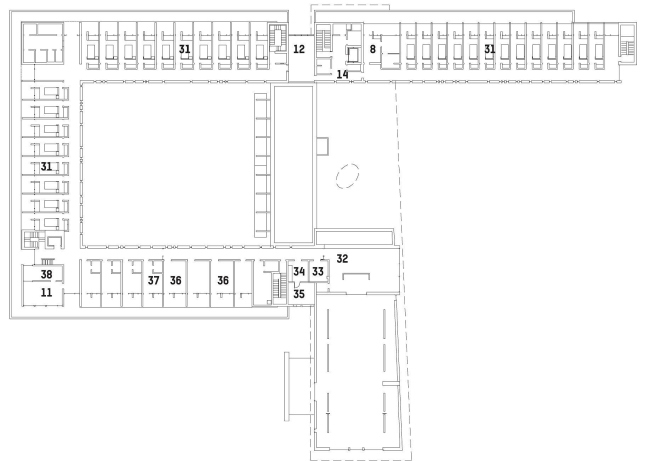
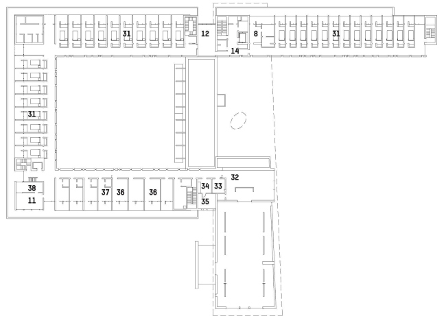
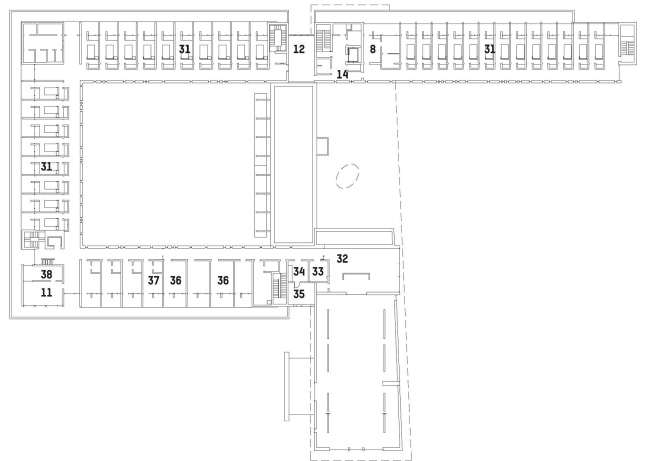
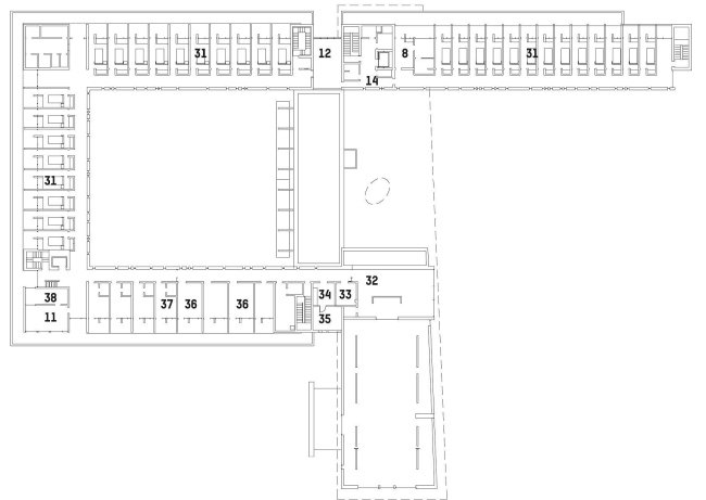
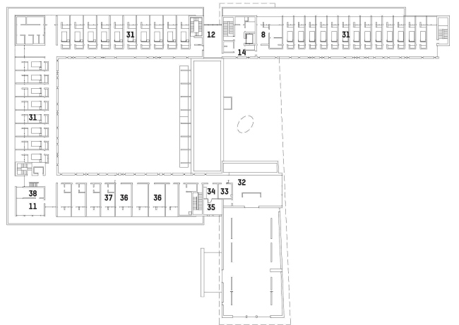
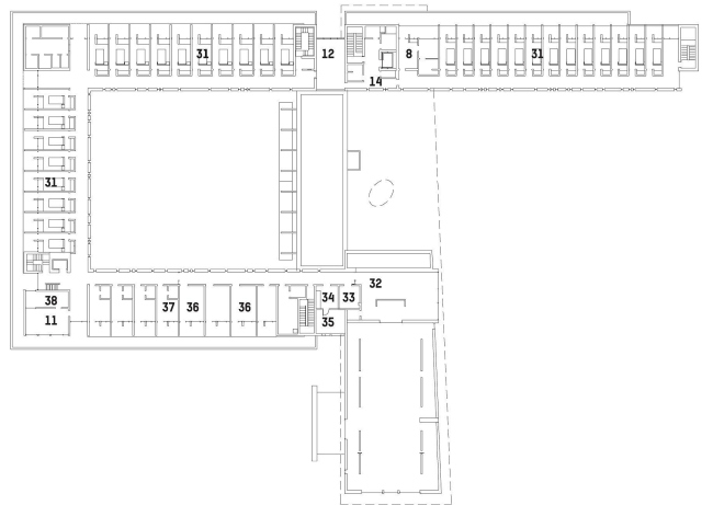
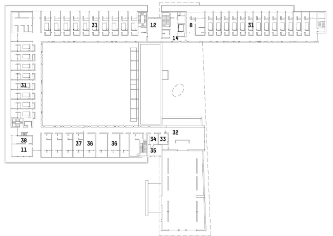
Аббатство Валь-Нотр-Дам. Первый этаж © Atelier Pierre Thibault
Аббатство Валь-Нотр-Дам. Первый этаж © Atelier Pierre Thibault
Аббатство Валь-Нотр-Дам. Второй этаж © Atelier Pierre Thibault
Аббатство Валь-Нотр-Дам. Второй этаж © Atelier Pierre Thibault