Размещено на портале Архи.ру (www.archi.ru)

28.12.2010

Центр производства культуры

Объект:
Здание Фонда Антони Тапиеса – реконструкция
Адрес:
Испания, None, Барселона.

Иньяки Абалос реконструировал здание Фонда Антони Тапиеса в Барселоне.

Здание Фонда Антони Тапиеса - реконструкция. Фото © Jose Hevia
Здание Фонда Антони Тапиеса - реконструкция. Фото © Jose Hevia
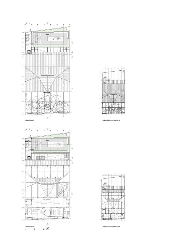
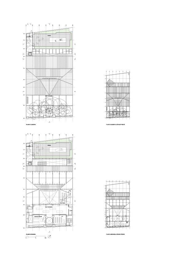
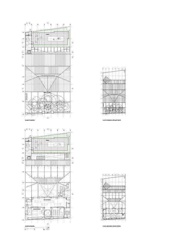
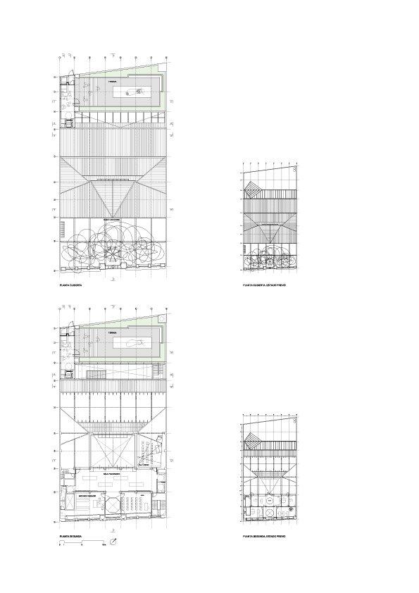
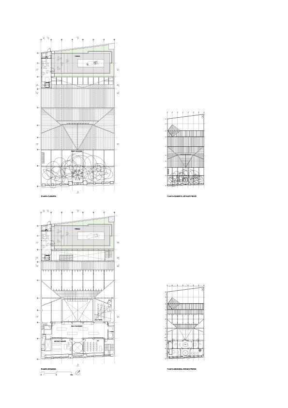
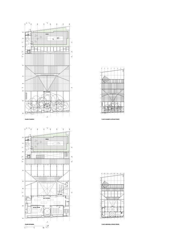
Теперь публике полностью доступна историческая постройка мастера каталонского модерна Луиса Доменек-и-Монтанеры, где изначально располагался фонд: теперь там находятся выставочные залы, архив и образовательный центр. Архитектор уделил особое внимание пространствам для различных видов актуального художественного творчества, тем самым подчеркнув роль здания как музея нового типа — «центра производства культуры».

При этом все административные помещения были перенесены в новый трехэтажный павильон в задней части участка, обращенный к расположенному в центре квартала внутреннему двору.

В ходе реконструкции были выделены взаимоотношения здания конца 19 в. и новых дополнений, а также только что завершившихся работ с изначальной перестройкой под нужды фонда (1987–1990): тогда на крыше установили работу Тапиеса «Облако и стул» (1990), теперь же ее превратили в полноценное общественное пространство и дополнили скульптурой «Носок» (2010).
Здание Фонда Антони Тапиеса - реконструкция. Фото © Jose Hevia
Здание Фонда Антони Тапиеса - реконструкция. Фото © Jose Hevia
Здание Фонда Антони Тапиеса - реконструкция. Фото © Jose Hevia
Здание Фонда Антони Тапиеса - реконструкция. Фото © Jose Hevia
Здание Фонда Антони Тапиеса - реконструкция. Фото © Jose Hevia
Здание Фонда Антони Тапиеса - реконструкция. Фото © Jose Hevia
Здание Фонда Антони Тапиеса - реконструкция. Фото © Jose Hevia
Здание Фонда Антони Тапиеса - реконструкция. Фото © Jose Hevia
Здание Фонда Антони Тапиеса - реконструкция. Фото © Jose Hevia
Здание Фонда Антони Тапиеса - реконструкция. Фото © Jose Hevia
Здание Фонда Антони Тапиеса - реконструкция. Фото © Jose Hevia
Здание Фонда Антони Тапиеса - реконструкция. Фото © Jose Hevia
Здание Фонда Антони Тапиеса - реконструкция. Фото © Jose Hevia
Здание Фонда Антони Тапиеса - реконструкция. Фото © Jose Hevia
Здание Фонда Антони Тапиеса - реконструкция. Фото © Jose Hevia
Здание Фонда Антони Тапиеса - реконструкция. Фото © Jose Hevia
Здание Фонда Антони Тапиеса - реконструкция. Фото © Jose Hevia
Здание Фонда Антони Тапиеса - реконструкция. Фото © Jose Hevia
Здание Фонда Антони Тапиеса - реконструкция. Фото © Jose Hevia
Здание Фонда Антони Тапиеса - реконструкция. Фото © Jose Hevia
Здание Фонда Антони Тапиеса - реконструкция. Фото © Jose Hevia
Здание Фонда Антони Тапиеса - реконструкция. Фото © Jose Hevia
Здание Фонда Антони Тапиеса - реконструкция. Фото © Jose Hevia
Здание Фонда Антони Тапиеса - реконструкция. Фото © Jose Hevia
Здание Фонда Антони Тапиеса - реконструкция. Фото © Jose Hevia
Здание Фонда Антони Тапиеса - реконструкция. Фото © Jose Hevia
Здание Фонда Антони Тапиеса - реконструкция. Фото © Jose Hevia
Здание Фонда Антони Тапиеса - реконструкция. Фото © Jose Hevia
Здание Фонда Антони Тапиеса - реконструкция. Фото © Jose Hevia
Здание Фонда Антони Тапиеса - реконструкция. Фото © Jose Hevia
Здание Фонда Антони Тапиеса - реконструкция
Здание Фонда Антони Тапиеса - реконструкция
Здание Фонда Антони Тапиеса - реконструкция
Здание Фонда Антони Тапиеса - реконструкция
Здание Фонда Антони Тапиеса - реконструкция
Здание Фонда Антони Тапиеса - реконструкция
Здание Фонда Антони Тапиеса - реконструкция
Здание Фонда Антони Тапиеса - реконструкция
Здание Фонда Антони Тапиеса - реконструкция
Здание Фонда Антони Тапиеса - реконструкция