Размещено на портале Архи.ру (www.archi.ru)

08.01.2011

Три цвета: белый

Анна Мартовицкая
Объект:
Интерьеры общественных зон жилого комплекса на Остоженке
Адрес:
Россия, Москва. ул. Остоженка, 11–13
Мастерская:
АМ Сергей Киселев и Партнеры
Авторский коллектив:
Руководитель авторского коллектива: С.Б. Киселев Архитекторы: А.В. Медведев, М.Б. Серебряников, О.В. Пономаренко Инженер: Ю.И. Браславский

Архитектурная мастерская «Сергей Киселев и Партнеры» закончила работу над проектом интерьеров общественных зон жилого комплекса на Остоженке. Для дома, имеющего четыре совершенно разных фасада, архитекторы придумали строгий минималистский интерьер, в котором доминирует белый цвет.

Интерьеры общественных зон жилого комплекса на Остоженке
Интерьеры общественных зон жилого комплекса на Остоженке
© АМ Сергей Киселев и Партнеры
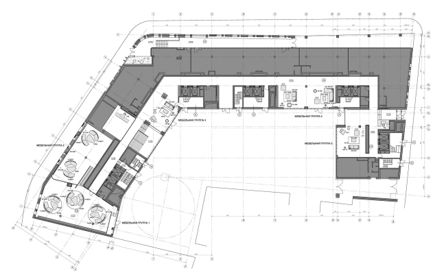
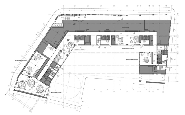
Напомним, дом, о котором идет речь, построен на отрезке Остоженки, что между Пожарским и 1-м Зачатьевским переулками. Новое здание сохраняет исконный масштаб улицы: следуя исторической парцелляции, объем визуально разделен на три части. Разные оттенки камня и индивидуальный рисунок окон каждой из частей дома насыщают его фасады такой богатой пластикой и фактурой, что интерьеры общественных зон архитекторам хотелось сделать совсем другими. «Чистыми и свободными от сложной тематики и избыточной материальности фасадов, – поясняет главный архитектор проекта Алексей Медведев. – Единственная «внешняя» тема, казавшаяся нам уместной в данном интерьере, это светлое дерево, которым отделан дворовый фасад, но позже и от этой идеи отказались, отдав предпочтение белому цвету».

Белый цвет здесь действительно доминирует: белые стены и потолки, белые полы из крупноразмерных плит агломерата. Благодаря цветовому единству плоскости визуально свободно перетекают друг в друга. Более цельным и воздушным пространство становится благодаря большому количеству стекла — перегородки, ограждения лестниц, декоративное панно с подсветкой.

Впрочем, это совершенно не означает, что общественные зоны нового жилого комплекса напоминают больничную палату. В царство чистоты и стерильности архитекторы ввели достаточное количество цветовых и световых акцентов, безошибочно указывающих на типологию интерьера и подчеркивающих статус его обитателей. Вытянутый параллелепипед стойки ресепшн выполнен из темного испанского мрамора «имперадор дарк», чей оттенок «кофе с молоком» выгодно контрастирует с окружающей сахарной белизной. За стойкой – подсвеченное изнутри панно из матового стекла, на которое нанесено растровое изображение увеличенных фрагментов росписи Сикстинской капеллы Микеланджело. В такое же панно превращена стена коридора, связывающего все пять лифтовых блоков между собой. «Мы искали тему, способную объединить и организовать вытянутое пространство вестибюля с чередующимися лифтовыми группами и расположенными между ними рекреациями – объясняет Алексей Медведев. – Первоначальное решение стены только с помощью световых пятен казалась недостаточно насыщенным. Желание придать стене большую смысловую нагрузку привело к идее о более фактурном, но в то же время не переусложненном решении. Невероятная пластическая выразительность работ Микеланджелло показалась вполне уместной. Гипертрофированно увеличенные, переведенные в крупный растр и серый цвет, его фигуры не потеряли ни богатства фактуры, ни удивительной легкости, но приобрели абстрактное звучание, собственно, и стали теми драпировками, которые мы так долго искали».

Лифтовые блоки отделаны корианом темно-шоколадного цвета и хорошо заметны в общей структуре входной зоны. В их оформлении есть одна любопытная тонкость: плоскости, параллельные световому фронту, имеют ровную глянцевую поверхность, а те, что перпендикулярны окнам, – наоборот, сложную многомерную структуру. Так, к зонам отдыха обращены книжные стеллажи и ниши для телевизоров, а к выходу в переулок – объемная композиция а-ля пазл. В обстановке рекреаций, задуманных как некие общественные комнаты для детей и взрослых, доминирует мебель белого цвета, однако здесь белоснежные поверхности «разбавлены» яркими цветовыми акцентами – оранжевыми пуфами и алыми подушками.

Похожими яркими «вставками» оживлен и интерьер художественной галереи, расположенной на первом этаже жилого комплекса. Она не имеет отдельного входа с улицы, а от зоны ресепшн отделена раздвижными стеклянными дверьми. Это стильное двусветное пространство предназначено, в первую очередь, для жильцов дома, которые могут проводить здесь выставки, презентации или просто неформальные встречи.
Интерьеры общественных зон жилого комплекса на Остоженке
Интерьеры общественных зон жилого комплекса на Остоженке
© АМ Сергей Киселев и Партнеры
Интерьеры общественных зон жилого комплекса на Остоженке
Интерьеры общественных зон жилого комплекса на Остоженке
© АМ Сергей Киселев и Партнеры
Интерьеры общественных зон жилого комплекса на Остоженке
Интерьеры общественных зон жилого комплекса на Остоженке
© АМ Сергей Киселев и Партнеры
Интерьеры общественных зон жилого комплекса на Остоженке
Интерьеры общественных зон жилого комплекса на Остоженке
© АМ Сергей Киселев и Партнеры
Интерьеры общественных зон жилого комплекса на Остоженке
Интерьеры общественных зон жилого комплекса на Остоженке
© АМ Сергей Киселев и Партнеры
Интерьеры общественных зон жилого комплекса на Остоженке
Интерьеры общественных зон жилого комплекса на Остоженке
© АМ Сергей Киселев и Партнеры
Интерьеры общественных зон жилого комплекса на Остоженке
Интерьеры общественных зон жилого комплекса на Остоженке
© АМ Сергей Киселев и Партнеры
Интерьеры общественных зон жилого комплекса на Остоженке
Интерьеры общественных зон жилого комплекса на Остоженке
© АМ Сергей Киселев и Партнеры
Интерьеры общественных зон жилого комплекса на Остоженке
Интерьеры общественных зон жилого комплекса на Остоженке
© АМ Сергей Киселев и Партнеры
Интерьеры общественных зон жилого комплекса на Остоженке
Интерьеры общественных зон жилого комплекса на Остоженке
© АМ Сергей Киселев и Партнеры
Интерьеры общественных зон жилого комплекса на Остоженке
Интерьеры общественных зон жилого комплекса на Остоженке
© АМ Сергей Киселев и Партнеры