Размещено на портале Архи.ру (www.archi.ru)

23.12.2010

Свой среди чужих, чужой среди своих

Артем Дежурко
Объект:
Частный дом в Грюнвальде
Адрес:
Германия, Мюнхен.
Мастерская:
PANACOM
Авторский коллектив:
Авторский коллектив: А.Леонович, Н.Токарев, М.Саксон, Е.Чаругина

Архитекторы бюро ПАНАКОМ Никита Токарев и Арсений Леонович спроектировали в Германии дом для русского заказчика. Дом получился не вполне немецким, но и не очень русским.

Частный жилой дом в пригороде Мюнхена
Частный жилой дом в пригороде Мюнхена
© PANACOM
Никита Токарев вспоминает слова Ильи Лежавы: в России и в Европе архитекторы действуют по-разному. В России они сперва изобретают идею, а потом мучительно стараются ее воплотить. Результат – боль и разочарование: архитекторы, строители и заказчики разочарованы друг в друге, воплощенная мечта разочаровывает всех. В Европе же архитектор сперва намечает работоспособную схему, а потом внутри нее обнаруживает красоту. Будучи сами русскими архитекторами, Токарев и Леонович работали в первой парадигме. А недавно попробовали вторую.

Один из заказчиков архитектурного бюро «Панаком» обосновался в Германии и решил построить дом. Участок находится в пригороде Мюнхена. В работе над проектом участвовал местный архитектор, который перевел проект на немецкий язык, привел его в соответствие с германскими нормами, согласовал, а теперь подготовит рабочую документацию и будет надзирать за строительством. Ситуация, когда местный архитектор выполняет техническое сопровождение проекта, созданного иностранным архитектурным бюро (в таком случае его называют по-английски Executive Architect) – обычная практика для многих стран.

Участок выходит одной стороной на улицу, другой – на бровку крутого склона, спускающегося к реке Изар. На участке стоял маленький дом обычного для этих мест облика: белые стены, маленькие окна, высокая черепичная крыша. Такой дом был несовместим с образом жизни заказчика. Кроме того, участок зарос деревьями, которые по местным нормам нельзя рубить.

Архитекторы столкнулись с подробной градостроительной регламентацией: ограничивалась высота здания, отступы от красной линии, от соседних участков. Все эти требования, конечно, были соблюдены. Одно из них, касающееся максимальной площади наземной части, было соблюдено формально. В лимит 500 кв. м не помещался бассейн, поэтому он спроектирован как отдельное здание, со своим фундаментом.

Это решение подсказал исполнительный архитектор. Похоже, что проект был согласован без больших затруднений в первую очередь благодаря его энергичным действиям. В органах местного самоуправления очень опасались, что здание «в современном стиле» нарушит фахверково-черепичную гармонию пригорода. Исполнительный архитектор настаивал на том, что проект международный, убеждал, что русские проектировщики очень известны у себя на родине, и, наконец, сомневающиеся согласились с тем, что новая постройка обогатит пригород.

В доме общественные помещения, вопреки привычной схеме, расположили на втором этаже, чтобы над деревьями, которые нельзя рубить, видна была даль. Поэтому было нужно так устроить вход, чтобы человек, войдя, тут же захотел подняться на второй этаж. В центре дома расположили двусветный вестибюль с зенитным фонарем и стеклянной стеной напротив входа, сквозь которую виден сад. Второй этаж с двух сторон заглядывает в вестибюль антресолями, и лестница спускается к самой входной двери. Вестибюль приглашает человека подняться наверх или пройти вперед, в сад. Проходы в стороны, к жилым комнатам, незаметны.

Второй этаж, хотя и разделен на несколько комнат, должен производить впечатление единого пространства с общим кессонным перекрытием из дерева. Стены почти по всему периметру – из стекла, вдоль уличного фасада и над бассейном устроены террасы. На террасу, которая тянется вдоль главного фасада, выходят двери из всех помещений верхнего этажа. Второй этаж кажется беседкой, поставленной на каменное основание, излишне массивное, чтобы нести ее тяжесть.

Эта подчеркнутая ярусность, П-образный план, жесткая симметрия с тремя пересекающимися осями (третья – вертикальная, фиксированная фонарем в потолке вестибюля), выделенный вход – признаки классицизма, причем скорее немецкого, формулярного, шинкелевского классицизма. А формальный язык постройки – это язык немецкого модернизма эпохи Гропиуса и Миса, в общем тоже чуждый «Панакому». Задумывая постройку в Германии, архитекторы решили отдать дань уважение контексту, да вот незадача: они думали, что контекст – это Шинкель и «Новая объективность», а оказалось – черепица и фахверк.

Дом остался чужд окружению. Он «не немецкий». Но и не русский. В России не получилось бы построить такой дом – настолько маленький и прозрачный. Не будучи «другим» по стилю (несмотря на плоские стены и горизонтальную линия карниза, стилистика «Панакома» в нем видна), он «другой» с точки зрения этики, ценностей. Планировка – результат самоограничения. Не только архитекторы – сам заказчик старался ужать площади и функции до требуемых 500 кв. м. Он с энтузиазмом стремился остаться в рамках закона, так непривычных и обременительных в России. Другая ценность, которой следует проект – ясность. В дом входишь, и он, по словам Никиты Токарева, «сразу все объясняет»: его структура понятна с первого взгляда.

Сейчас проект передан исполнительному архитектору, который готовит рабочую документацию для подрядчиков. Строительство, вероятней всего, начнется летом.
Частный жилой дом в пригороде Мюнхена
Частный жилой дом в пригороде Мюнхена
© PANACOM
Частный жилой дом в пригороде Мюнхена
Частный жилой дом в пригороде Мюнхена
© PANACOM
Частный жилой дом в пригороде Мюнхена
Частный жилой дом в пригороде Мюнхена
© PANACOM
Частный жилой дом в пригороде Мюнхена
Частный жилой дом в пригороде Мюнхена
© PANACOM
Частный жилой дом в пригороде Мюнхена
Частный жилой дом в пригороде Мюнхена
© PANACOM
Частный жилой дом в пригороде Мюнхена
Частный жилой дом в пригороде Мюнхена
© PANACOM
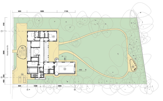
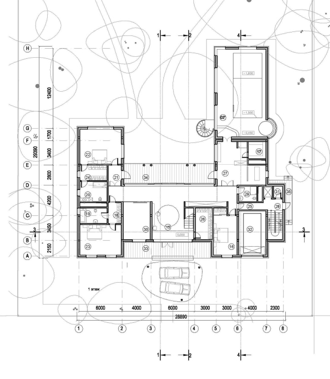
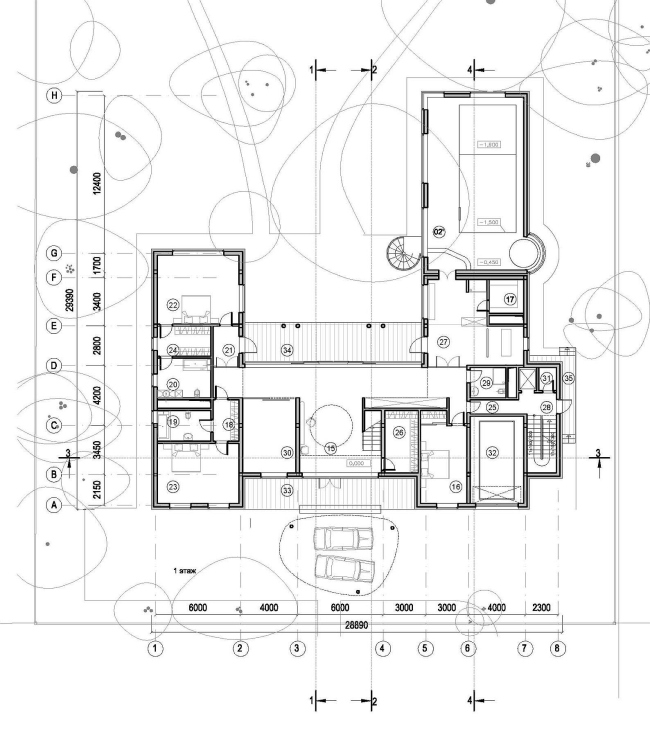
Частный жилой дом в пригороде Мюнхена. Генеральный план
Частный жилой дом в пригороде Мюнхена. Генеральный план
© PANACOM
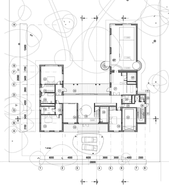
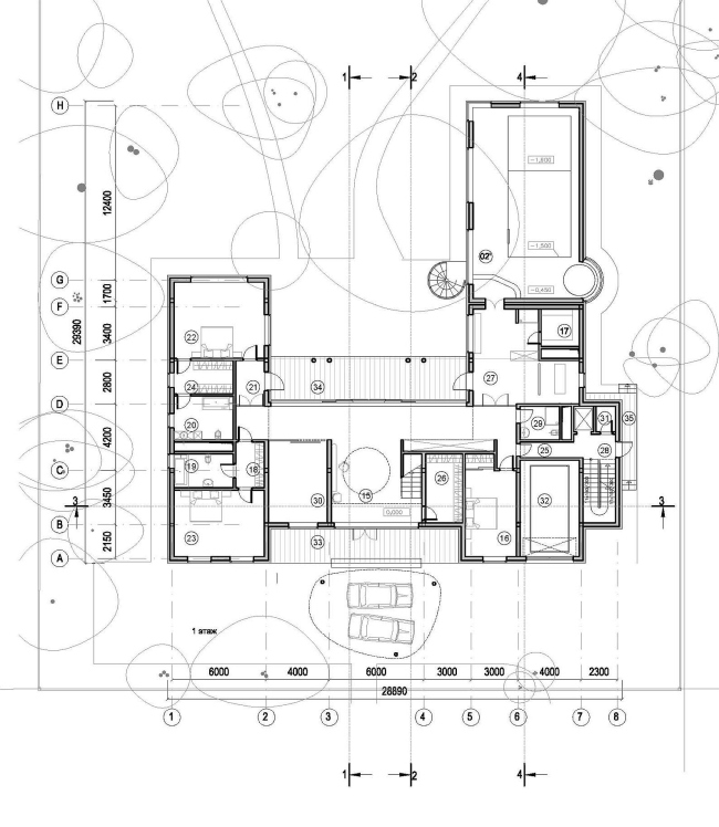
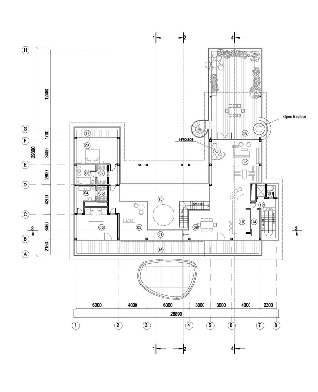
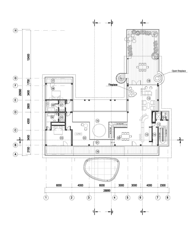
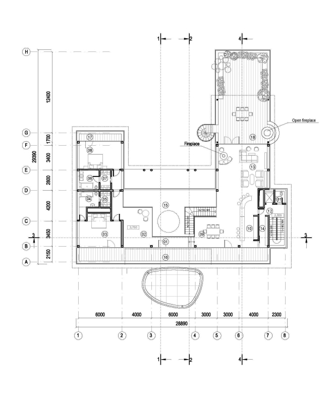
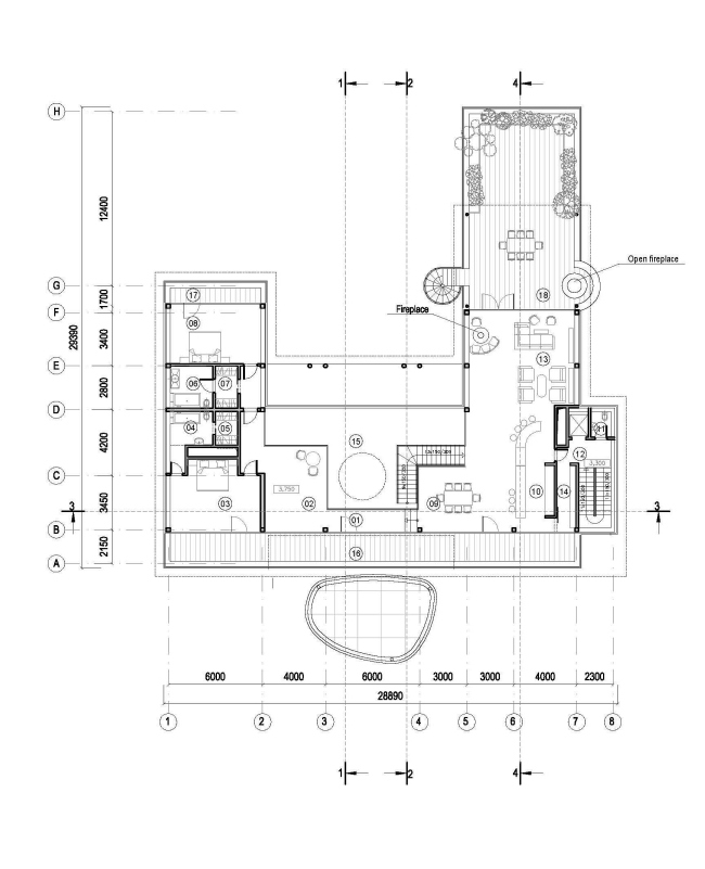
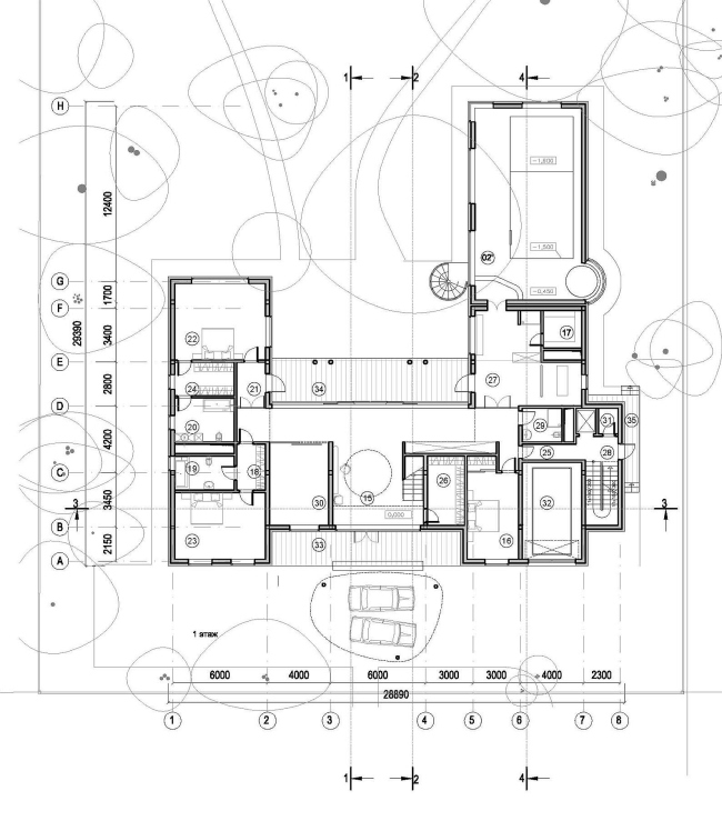
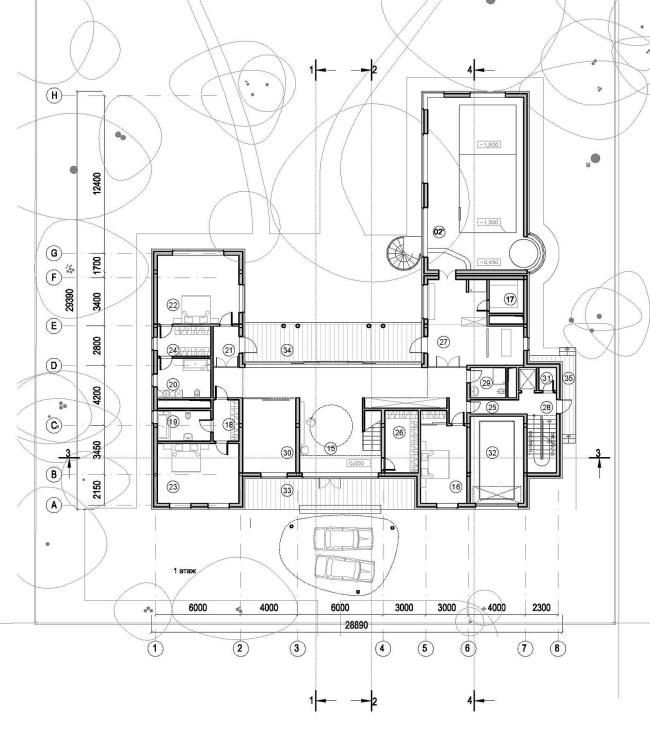
Частный жилой дом в пригороде Мюнхена. План первого этажа
Частный жилой дом в пригороде Мюнхена. План первого этажа
© PANACOM
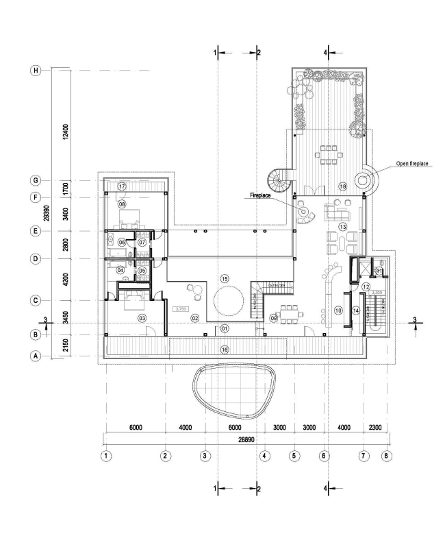
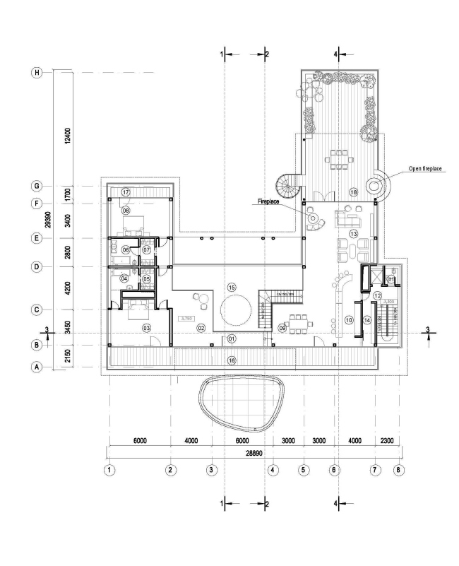
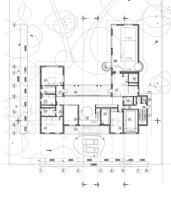
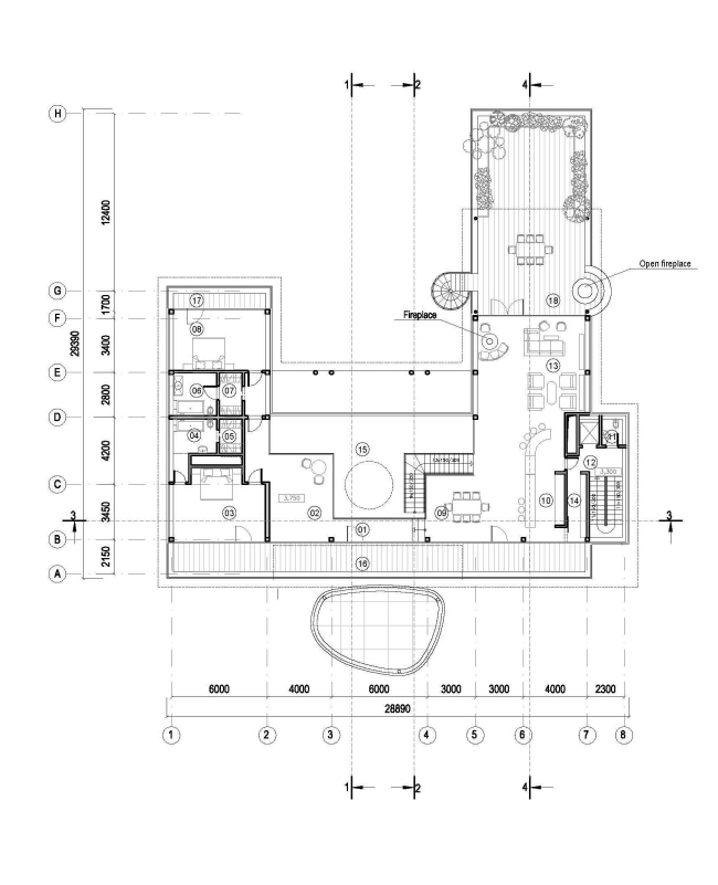
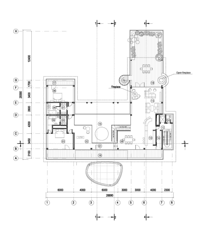
Частный жилой дом в пригороде Мюнхена. План второго этажа
Частный жилой дом в пригороде Мюнхена. План второго этажа
© PANACOM