Размещено на портале Архи.ру (www.archi.ru)

01.11.2006

Центр Помпиду в китайской шляпе

Объект:
Центр Помпиду-Мец
Адрес:
Франция, None, Мец.

Во французском Меце начато строительство филиала знаменитого парижского музея современного искусства по проекту Шигеру Бана.

Центр Помпиду-Мец
Центр Помпиду-Мец
Главная особенность нового здания, которая, возможно, и принеслапобеду архитектору на конкурсе в 2003 году – коническая крыша-тент, связывающая все части музейного комплекса вместе. Ее образцом послужила китайская крестьянская шляпа, найденная Баном на рынке в Париже. Только вместо бамбуковых волокон, использованных для того головного убора, японский архитектор предложил для Центра Помпиду-Мец применить деревянный каркас в виде решетки с шестиугольными отверстиями и покрытую тефлоном мембрану из стекловолокна.
Бана заинтересовала не столько ее форма, сколько технические характеристики ее структуры: при очень небольшом весе она может перекрывать обширные пространства. Такой подход характерен для архитектора, который использует в качестве строительных материалов бумагу, картон и транспортные контейнеры. Даже стены его временной мастерской на крыше первого Центра Помпиду в Париже сделана из картонных трубок, укрытых такой же мембраной, из которой сделают «шатер» филиала в Меце.
В новом музее под крышей будут скрываться три огромные бетонные «трубы» с выставочными залами внутри, установленные одна на другой и ориентированные в разные стороны. В торце каждой устроят панорамное окно с видами на городской вокзал, собор и парк вокруг музея площадью 20 га. Также в комплексе будет огромный «неф» - зал для экспозиции крупных по размеру работ, вестибюль, зрительный зал, административные помещения, кафе. Назначение большинства этих пространств – в отличие от выставочных залов – может меняться в зависимости от ситуации. Отдельного упоминания заслуживает парк – его проект появился едва ли не раньше планов музея, как этого и хотел Шигеру Бан: чтобы здание было теснее связано с природным окружением вокруг него, его «встроят» между уже посаженными деревьями.
В целом же, строительство первого филиала Центра Помпиду стоимостью 54 млн. евро – важное событие не только для Меца, уже испытывающего «синдром Бильбао», но и для мира искусства: вслед за Музеем Гуггенхайма, Центр Помпиду встал на путь превращения в брэнд международной культурной жизни, и его лидирующее полжение также основывается не только на его собраниях произведений искусства, но и на первоклассной архитектуре зданий его филиалов.
Центр Помпиду-Мец
Центр Помпиду-Мец
Центр Помпиду-Мец
Центр Помпиду-Мец
Центр Помпиду-Мец
Центр Помпиду-Мец
Центр Помпиду-Мец
Центр Помпиду-Мец
Центр Помпиду-Мец. Вестибюль
Центр Помпиду-Мец. Вестибюль
Центр Помпиду-Мец. «Неф»
Центр Помпиду-Мец. «Неф»
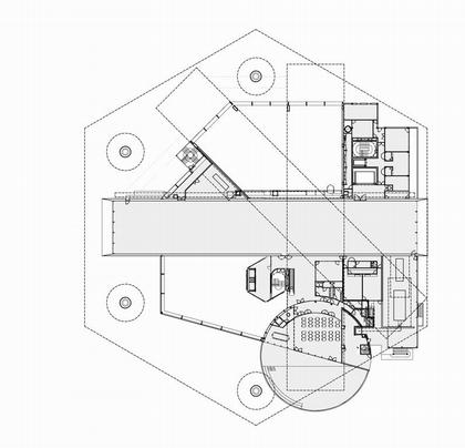
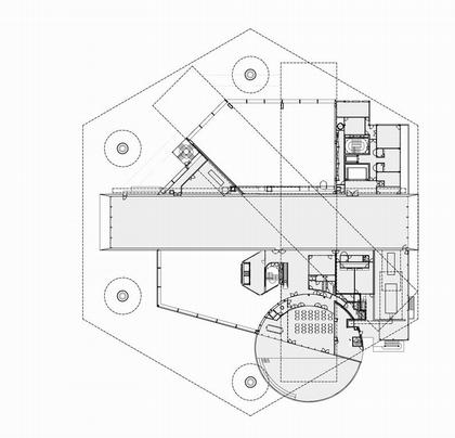
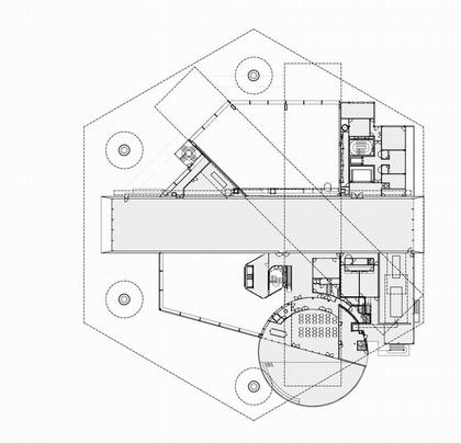
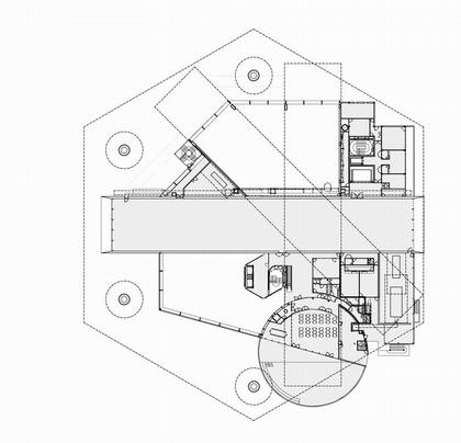
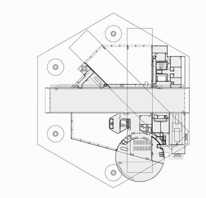
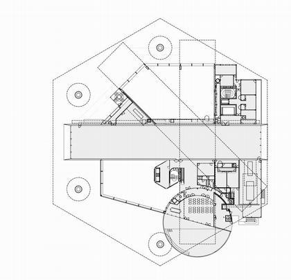
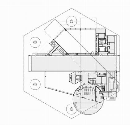
Центр Помпиду-Мец. План второго этажа
Центр Помпиду-Мец. План второго этажа
Мастерская Шигеру Бана на крыше Центра Помпиду в Париже
Мастерская Шигеру Бана на крыше Центра Помпиду в Париже
Мастерская Шигеру Бана на крыше Центра Помпиду в Париже
Мастерская Шигеру Бана на крыше Центра Помпиду в Париже
Мастерская Шигеру Бана на крыше Центра Помпиду в Париже
Мастерская Шигеру Бана на крыше Центра Помпиду в Париже