Размещено на портале Архи.ру (www.archi.ru)

22.11.2010

Восстановление осей

Объект:
Музей изящных искусств в Бостоне
Адрес:
США, None, Бостон.
Мастерская:
Foster + Partners

В Бостоне открылся после реконструкции по проекту Нормана Фостера музей изящных искусств.

Музей изящных искусств в Бостоне. Фото © Nigel Young
Музей изящных искусств в Бостоне. Фото © Nigel Young

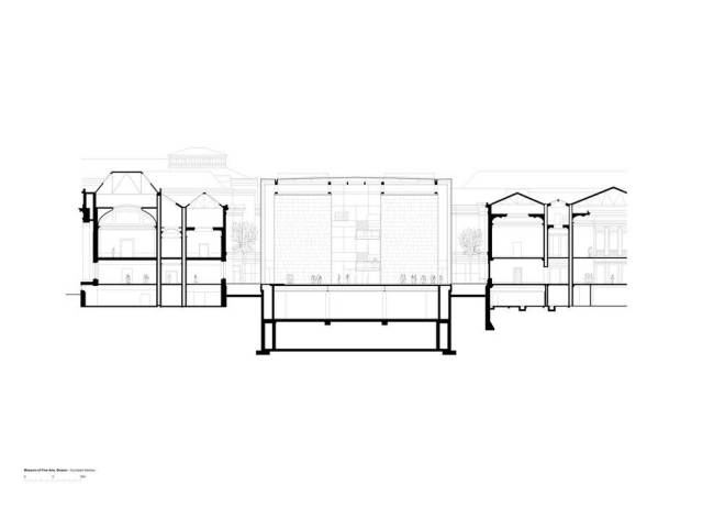
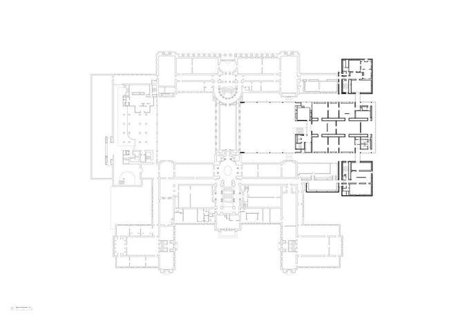
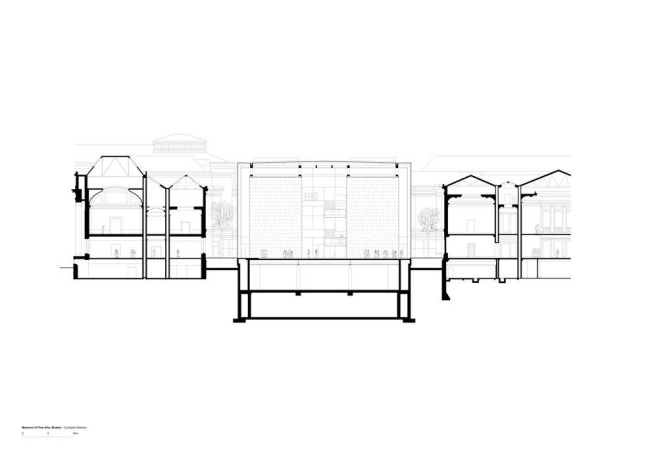
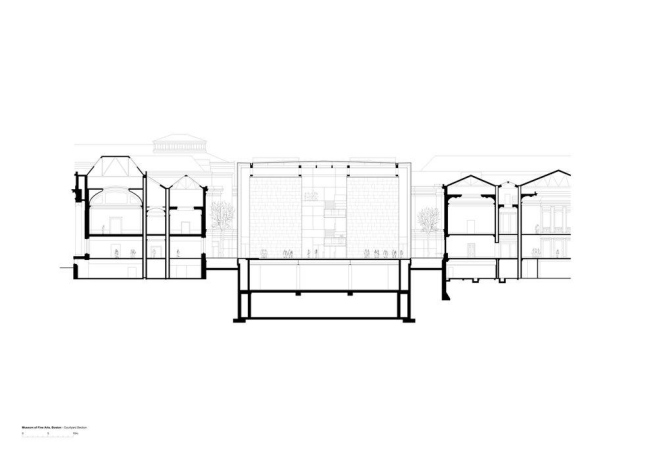
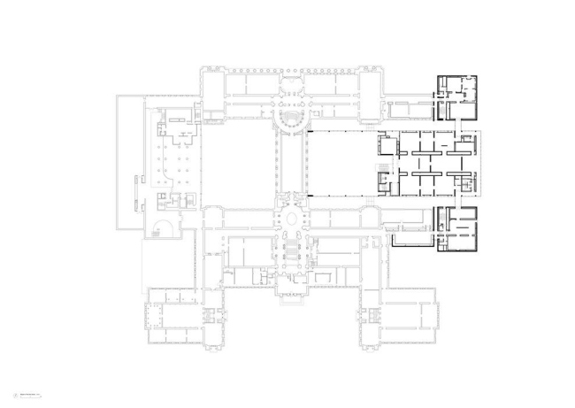
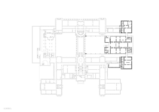
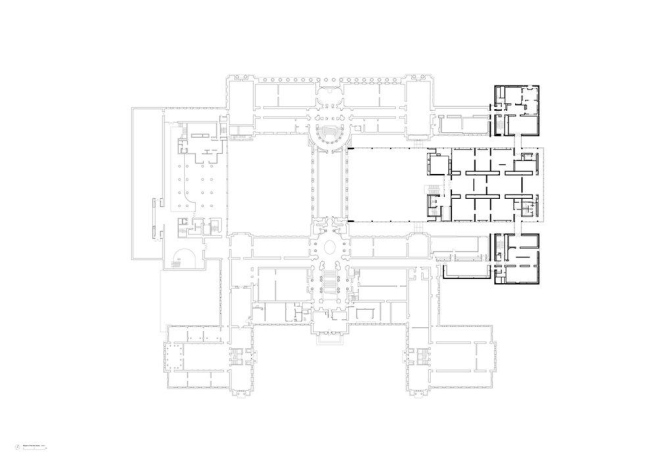
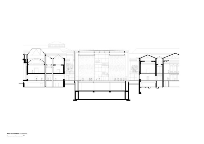
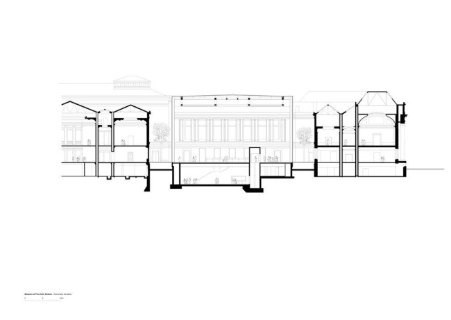
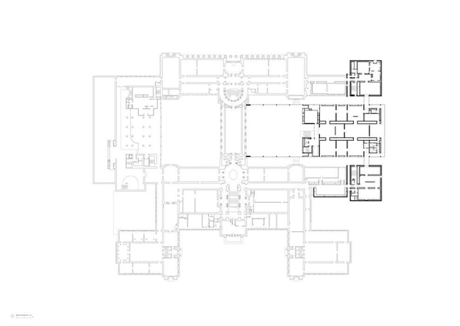
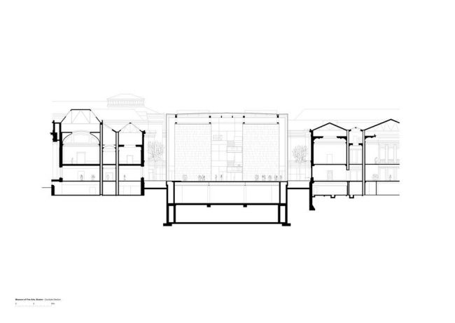
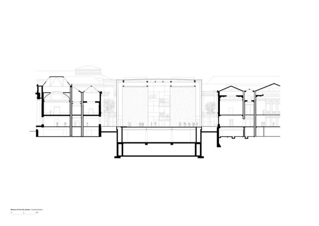
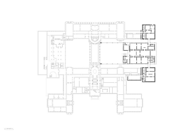
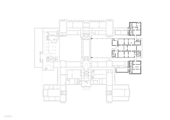
К неоклассическому зданию, многократно перестраивавшемуся в течение 20 века, было добавлено новое крыло с 53 залами для экспозиции американского искусства, а существующий внутренний двор — застеклен. При этом был создан новый южный вход, а также открыт давно не использовавшийся северный. Таким образом, строгая симметрия, изначально заложенная в плане комплекса (1907), была восстановлена.

Во всех новых конструкциях преобладает стекло, что позволяет широко использовать естественное освещение; в то же время, система ажурных экранов защищает экспонаты от солнца.

Застекленный двор вмещает информационный центр и кафе, обеспечивает более удобный доступ в разные части музея; под ним расположен новый подземный зал временных выставок.

В ходе реконструкции, которая также включает уже почти завершенное обновление всех  частей музейного комплекса, был создан новый ландшафтный дизайн территории, непосредственно прилегающей к музею. Этот план гармонирует с находящейся рядом исторической парковой зоной, созданной в 19 в. выдающимся ландшафтным архитектором Ф. Л. Олмстедом.

Музей изящных искусств в Бостоне. Фото © Nigel Young
Музей изящных искусств в Бостоне. Фото © Nigel Young
Музей изящных искусств в Бостоне. Фото © Nigel Young
Музей изящных искусств в Бостоне. Фото © Nigel Young
Музей изящных искусств в Бостоне. Фото © Chuck Choi
Музей изящных искусств в Бостоне. Фото © Chuck Choi
Музей изящных искусств в Бостоне
Музей изящных искусств в Бостоне
Музей изящных искусств в Бостоне. Фото © Nigel Young
Музей изящных искусств в Бостоне. Фото © Nigel Young
Музей изящных искусств в Бостоне. Фото © Nigel Young
Музей изящных искусств в Бостоне. Фото © Nigel Young
Музей изящных искусств в Бостоне. Фото © Chuck Choi
Музей изящных искусств в Бостоне. Фото © Chuck Choi
Музей изящных искусств в Бостоне. Фото © Nigel Young
Музей изящных искусств в Бостоне. Фото © Nigel Young
Музей изящных искусств в Бостоне. Фото © Nigel Young
Музей изящных искусств в Бостоне. Фото © Nigel Young
Музей изящных искусств в Бостоне. Фото © Nigel Young
Музей изящных искусств в Бостоне. Фото © Nigel Young
Музей изящных искусств в Бостоне. Фото © Chuck Choi
Музей изящных искусств в Бостоне. Фото © Chuck Choi
Музей изящных искусств в Бостоне. Фото © Nigel Young
Музей изящных искусств в Бостоне. Фото © Nigel Young
Музей изящных искусств в Бостоне. Фото © Nigel Young
Музей изящных искусств в Бостоне. Фото © Nigel Young
Музей изящных искусств в Бостоне. Фото © Chuck Choi
Музей изящных искусств в Бостоне. Фото © Chuck Choi
Музей изящных искусств в Бостоне. Фото © Chuck Choi
Музей изящных искусств в Бостоне. Фото © Chuck Choi
Музей изящных искусств в Бостоне. Фото © Chuck Choi
Музей изящных искусств в Бостоне. Фото © Chuck Choi
Музей изящных искусств в Бостоне. Фото © Chuck Choi
Музей изящных искусств в Бостоне. Фото © Chuck Choi
Музей изящных искусств в Бостоне. Фото © Nigel Young
Музей изящных искусств в Бостоне. Фото © Nigel Young
Музей изящных искусств в Бостоне. Фото © Chuck Choi
Музей изящных искусств в Бостоне. Фото © Chuck Choi
Музей изящных искусств в Бостоне. Фото © Nigel Young
Музей изящных искусств в Бостоне. Фото © Nigel Young
Музей изящных искусств в Бостоне. Фото © Nigel Young
Музей изящных искусств в Бостоне. Фото © Nigel Young
Музей изящных искусств в Бостоне. Фото © Chuck Choi
Музей изящных искусств в Бостоне. Фото © Chuck Choi
Музей изящных искусств в Бостоне. Фото © Chuck Choi
Музей изящных искусств в Бостоне. Фото © Chuck Choi
Музей изящных искусств в Бостоне © Foster+Partners
Музей изящных искусств в Бостоне © Foster+Partners
Музей изящных искусств в Бостоне © Foster+Partners
Музей изящных искусств в Бостоне © Foster+Partners
Музей изящных искусств в Бостоне © Foster+Partners
Музей изящных искусств в Бостоне © Foster+Partners
Музей изящных искусств в Бостоне © Foster+Partners
Музей изящных искусств в Бостоне © Foster+Partners
Музей изящных искусств в Бостоне. Проект © Foster+Partners
Музей изящных искусств в Бостоне. Проект © Foster+Partners
Музей изящных искусств в Бостоне. Проект © Foster+Partners
Музей изящных искусств в Бостоне. Проект © Foster+Partners
Музей изящных искусств в Бостоне. Проект © Foster+Partners
Музей изящных искусств в Бостоне. Проект © Foster+Partners