Размещено на портале Архи.ру (www.archi.ru)

13.12.2010

Объемный тетрис

Анна Мартовицкая
Объект:
Конкурсный проект жилого комплекса на территории ОАО «Гардтекс»
Адрес:
Россия, Москва.
Мастерская:
АМ Сергей Киселев и Партнеры
Авторский коллектив:
Архитекторы: А.В.Никифоров, А.О.Бреславцев, А.Ю.Бусалов, Г.Б.Холопов, Е.С.Клюева, при участии В.М.Бармина. Инженер: И.З.Шварцман

Над проектом жилого комплекса на Саввинской набережной архитектурная мастерская «Сергей Киселев и Партнеры» работала и раньше. Последний же вариант был выполнен для заказного конкурса, проведенного ОАО «Гардтекс», и в основу его композиции архитекторы положили комбинацию фигур знаменитого «Тетриса».

В конкурсе на проект элитного жилого дома, который планируется построить на месте бывшей текстильной фабрики, участвовали 4 архитектурных бюро – «Сергей Скуратов Architects»ТПО «Резерв»«Богачкин и Богачкин» и «Сергей Киселев и Партнеры». О вариантах, разработанных первыми тремя, «Архи.ру» уже сделал подробные отчеты, которые можно найти по приведенным гиперссылкам. Разбор проекта «СКиП» мы сознательно оставили напоследок, поскольку в истории конкурса и развития данной площадки именно эта мастерская сыграла ключевую роль.

Впервые к работе над участком на Саввинской архитектурная мастерская «Сергей Киселев и Партнеры» была приглашена в 2002 году. Тогда инвестор планировал застроить всю набережную от так называемого «Японского дома» (арх. Андрей Боков) до 2-го Труженникова переулка, и проектировщики работали над концепцией развития этой территории. Среди множества вариантов того времени выделялось предложение с расположением по фронту набережной жилого комплекса, состоящего из двух частей, между которыми проходил бульвар, связывающий набережную с Большим Саввинским переулком (похожая градостроительная идея легла в основу проекта Сергея Скуратова «Эспланада») и домом повышенной этажности на углу набережной и 2-го Труженникова. Реализован тогда в итоге был только этот дом, позже собравший множество профессиональных наград. На остальной территории в разные годы архитекторы проектировали то жилые комплексы, то офисные, в зависимости от того, как менялась конъюнктура рынка и постепенно «съеживались» размеры участка. Пожалуй, самым заметным проектом этого периода был «дом-балка» – двухчастный объем, накрытый протяженным стеклянным «бруском» верхних ярусов. Автором этой идеи стал лично Сергей Киселев. Дом был утвержден и готов к реализации, однако позже заказчик захотел повысить его этажность, начался процесс пересогласования, и проект безнадежно увяз в инстанциях.

В разгар кризиса инвестиционная активность на участке прекратилась вовсе, а в начале лета этого года заказчик вновь вернулся к идее реконструкции фабричных корпусов. Правда, на этот раз на набережной было решено построить жилье самого что ни на есть элитного класса. Для мастерской это было трудное время – прошло чуть больше месяца с момента кончины Сергея Борисовича, и, возможно, именно поэтому, услышав о кардинальной смене концепции и крайне расплывчатых требованиях к архитектуре комплекса, Игорь Шварцман предложил заказчику провести заказной конкурс. Правда, вряд ли он тогда мог предположить, что именно «СКиП» в этом «дерби» будут сняты с дистанции первыми. Но сначала о самом проекте.

По глубокому убеждению архитекторов, в ряду столичных набережных Саввинская – играет отнюдь не главную роль, скорее, она всегда была фоновым элементом в общем строе архитектурной партитуры Москвы-реки, – и им казалось очень важным отразить это в облике нового комплекса. Иными словами, ставка изначально делалась на сдержанную архитектуру и деликатные методы градостроительного «имплантирования» жилого квартала в застройку набережной. В частности, это продиктовало постановку основного объема вдоль реки и ограничило его высоту высотой соседних зданий. Органично следовало отсюда и цветовое решение комплекса – он должен был быть светлым, как практически вся окружающая застройка. Хотелось архитекторам сохранить и зазор между первой и второй линиями застройки набережной, который сложился здесь исторически, из-за имеющегося довольно сильного перепада рельефа. Именно поэтому новые объемы сконцентрированы по периметру участка, и вся композиция строится на диалоге озеленения и привычной для жителей центра города плотной городской ткани с фиксированными границами квартала.

«Мы определили на генплане условную полосу принадлежности набережной и предложили застроить ее максимально плотно, собрав объемы таким образом, чтобы к воде был обращен единый фасад, – поясняет главный архитектор проекта Андрей Никифоров. – Вторая линия комплекса – дом по Большому Саввинскому переулку. Пространство же между домами – тот самый зазор, – превращается в полноценный ландшафтный парк». По диагонали участка, от набережной к переулку через парк идет эспланада, которая используется как рекреационная зона, а также позволяет обеспечить проезд пожарного транспорта. Для всех прочих машин парк закрыт – это стало возможным благодаря тому, что заезд в подземные гаражи осуществляется только с набережной и из переулка.

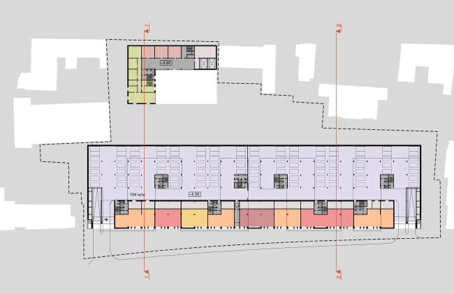
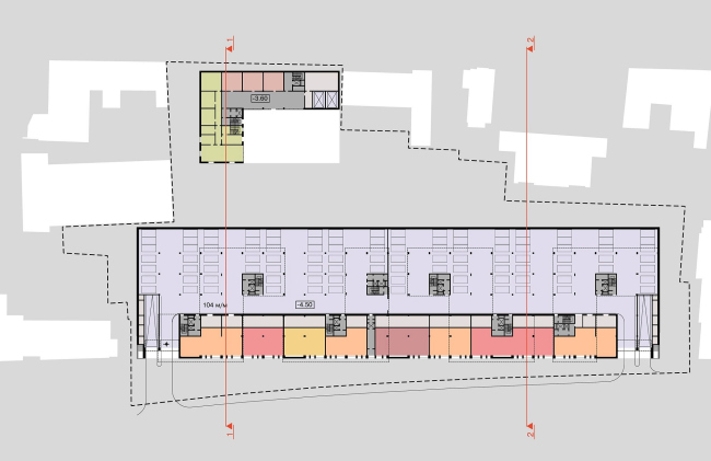
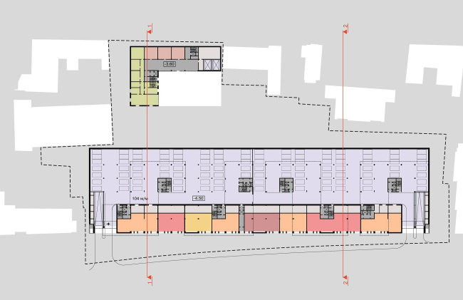
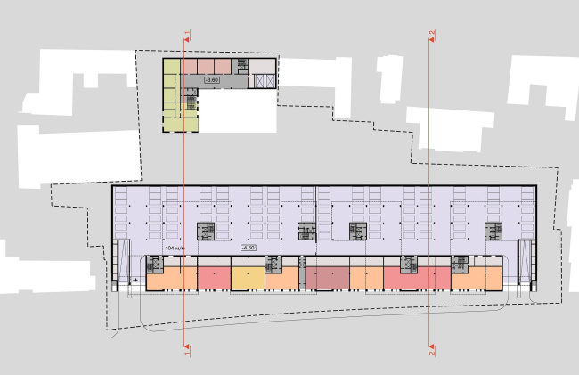
От улицы парк полностью скрыт благодаря стилобату, на котором стоит ориентированный вдоль реки корпус. На красной линии этот объем создает перепад в один этаж – в цокольном этаже размещаются художественная галерея, магазины и кафе, на подземном уровне – парковка. А выше объем распадается на четыре самостоятельных фрагмента. Дело в том, что глубина застройки, заданная фланкирующими участок зданиями, довольно существенна, и без дополнительных двориков и проемов новый жилой объем грозил оказаться «великой китайской стеной». Поэтому архитекторы разрезали воображаемый параллелепипед на несколько разных по своей форме частей и «растащили» их в разные стороны – так и появилась композиция, напоминающая фигуры компьютерной игры «Тетрис». Подобная компоновка жилых объемов неизбежно лишает некоторые квартиры видов на реку. И это именно тот пункт технического задания, который архитекторы сознательно нарушили. «Нам показалось, что вид на парк ничуть не менее ценен и что среди будущих жителей найдется немало тех, кто предпочтет уютный двор героическим видам панорам», – признается Андрей Никифоров.

Решение главного фасада корпуса, выходящего на набережную, подчеркнуто сдержанно, даже нейтрально. Этот эффект достигается за счет брутальной горизонтали стилобата, «западающего» первого этажа и широкой полосы этажа технического. И хотя теперь на стилобате размещены четыре отдельно стоящих объема, тема «балки», когда-то придуманная для этого места Сергеем Киселевым, в них по-прежнему угадывается. Она звучит едва уловимым эхо, напоминающим и о промышленном прошлом района, и о строгом характере его окружения, и о том, чему уже никогда не быть…

На фоне других проектов, участвовавших в конкурсе, работа мастерской «Сергей Киселев и Партнеры» на первый взгляд действительно кажется скромной. Свой многолетний опыт изучения территории архитекторы направили на разработку концепции не столько эффектной внешне, сколько по-настоящему нужной и подходящей именно этому месту. В проекте «СКиП» досконально учтены и реальное состояние грунтов (а кому, как не мастерской, построившей здесь высотный дом, знать о них всё!), и наличие комплексной охранной зоны, и, конечно, характер застройки набережной. Там, где другие участники состязания действовали, скорее, интуитивно, исходя из своих ощущений от участка, «Сергей Киселев и Партнеры» использовали весь багаж накопленных знаний. Возможно, именно эта основательность в итоге и помешала выйти во второй тур проекту, уступившему более эффектным конкурентам.
Конкурсный проект жилого комплекса на территории ОАО «Гардтекс»
Конкурсный проект жилого комплекса на территории ОАО «Гардтекс»
© АМ Сергей Киселев и Партнеры
ситуационный план
ситуационный план
генеральный план
генеральный план
план первого этажа
план первого этажа
план типового этажа
план типового этажа