Размещено на портале Архи.ру (www.archi.ru)

13.11.2010

Клиника: частный случай

Николай Кириллов
Объект:
Клиника естественного оздоровления на 100 мест
Адрес:
Россия, Краснодар.
Мастерская:
АМ Сергей Киселев и Партнеры
Авторский коллектив:
Архитекторы: Ф.З. Ибатуллина, А.Ю. Коньков, при участии А.А.Савеловой, О.Д. Плужниковой, И.Л. Плотицыной. Главный инженер проекта: И.З. Шварцман

С конца прошлого года архитектурная мастерская «Сергей Киселев и партнеры» работает над объектами многофункционального туристического комплекса «Лефкадия». Одним из самых необычных из них обещает стать стоместная «Клиника естественного оздоровления», архитектура которой, по настоянию заказчика, выполнена с «крымско-татарско-тосканскими» мотивами.

Клиника естественного оздоровления на 100 мест
Клиника естественного оздоровления на 100 мест
© АМ Сергей Киселев и Партнеры
Многофункциональный туристические комплекс «Лефкадия» – один из амбициозных девелоперских проектов в Краснодарском крае. Здесь управляющая компания планирует создать уникальную курортную инфраструктуру с развитыми зонами отелей, этнопоселка, гольф-клуба, конных выгулов, медицинских комплексов и возродить ранее утраченную культуру виноделия.  Для реализации проекта «Лефкадия» привлекаются различные архитектурные компании и частные архитекторы как из России, так и из-за рубежа.

Мастерскую «Сергей Киселев и Партнеры» вначале пригласили к участию в закрытом конкурсе на проект винодельни близ села Молдаванское (об этом проекте мы уже писали), а затем ей была заказана и разработка концепции лечебно-оздоровительного учреждения «Клиника естественного оздоровления на 100 мест», расположеннго в экологически благоприятном районе и предназначенного для пациентов, которым необходим завершающий реабилитационный этап после бальнеологического курса в лечебницах Краснодара и Крымска.

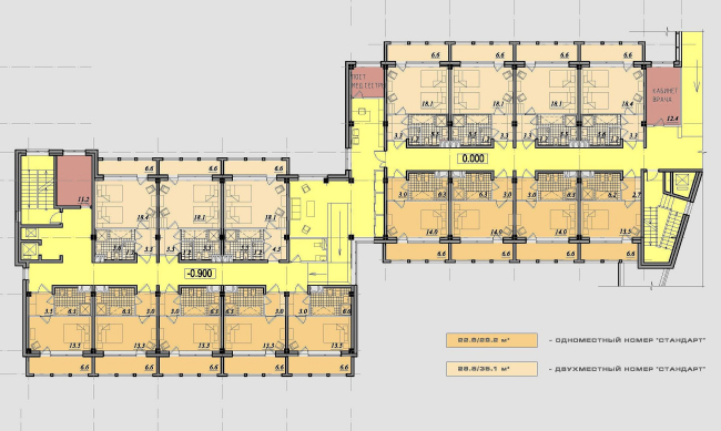
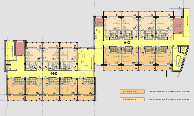
Десять гектаров, отведенных под строительство Клиники, расположены на некотором удалении от других зон туристического комплекса – с тем, чтобы пациенты могли полноценно отдохнуть в тишине и покое. Главная достопримечательность участка – небольшое озеро каплевидной формы; на его берегу архитекторы и предложили разместить комплекс клиники из 2-3-этажных корпусов, увязанных между собой вертикальными коммуникациями.

Планировочная структура Клиники продиктована основными связями между функциональными зонами. К доминирующему объему – лечебно-диагностическому корпусу – слева и справа примыкают спальные корпуса, расположенные в «складках» местности таким образом, чтобы максимально слиться с природным окружением, а перпендикулярно основной оси размещены зоны ресепшн с рестораном, SPA, конференц-залом и выходом на центральную пешеходную эспланаду, ведущую к парку и пляжу. Планировка Клиники наследует лучшие традиции проектирования санаториев и лечебно-оздоровительных комплексов и полностью устроила заказчика. А вот предложенная сначала авторами стилистика решения фасадов – современная и функциональная, как это свойственно объектам мастерской «СКиП», – как выяснилось, была ему совсем не близка. «У заказчика были свои пожелания к стилю этого объекта, -- вспоминает главный архитектор проекта Фаина Ибатуллина. – Они были одновременно очень настойчивы и при этом парадоксальным образом неконкретны, и формулировались в виде малопонятных «крымско-татарско-тосканских мотивов». Мы честно попытались реализовать эти пожелания и дали предложения по решению фасадов с элементами классики в сочетании с тосканскими начертаниями кровель корпусов комплекса».

Пожелания заказчика, высказанные в виде достаточно экзотической, в точки зрения искусствоведов, стилевой дефиниции, на самом деле оказалось несложно интерпретировать. Первая часть определения – «крымско-татарский», отсылает нас к местному контексту: в 1990-е крымские татары получили возможность вернуться на родину. Вторая – апеллирует к особенностям курортной архитектуры, которая и в Крыму, и на Кавказе тяготела к итальянским прототипам, особенно в пору возведения роскошных прибрежных сталинских санаториев. Ностальгия по итальянским красотам, особенно в схожем климатическом поясе, очень сильна и теперь: что и говорить, южная роскошь – это классика, и не только в глазах дилетантов.

Сложнее всего что-либо сказать о местном контексте: какого-то своего, специфического архитектурного стиля у крымских татар исторически не сложилось. Первое, что приходит на ум – Бахчисарайский дворец крымских ханов; он состоит из небольших, 1-2 этажных строений, группирующихся вокруг широкого двора, обнесенного двухъярусными деревянными галереями. Протяженность корпусов Клиники, по версии СКиП, – покатые разновысотные черепичные крыши, белизна стен, циркульные завершения очертания окон и два яруса лоджий со стороны озера, – как раз попадают в этот образ. Центральная башня со смотровой площадкой на верхнем уровне, в свою очередь, вызывает в памяти прежде всего хорошо известные башни кавказских горных сел; хотя и в горном Крыму есть крепости и башни. Башня лечебно-диагностического корпуса безусловно воспринимается как центральная доминанта комплекса, от которой по холмам в обе стороны разбегаются здания различной длины. Следуя за перепадами рельефа, их кровли опускаются все ниже, придавая всей композиции дополнительный динамизм и одновременно  отдаленное сходство с горным селом, группирующимся вокруг единственного укрепления. А вот за облагораживающую итальянскую («тосканскую») составляющую «отвечает», прежде всего, белоснежная аркада главного корпуса и разновысокие черепичные кровли.

Фасады задуманы гладко-каменными; цоколи, подпорные стены и террасы должны быть покрыты шершавой каменной «шубой», напоминающей дикую кладку. На крышах планируется устроить террасы, а часть стен укрыть вьюном. Внутри делается упор на респектабельность лечебного учреждения: мрамор, гранит, дерево, лепнина, кожа.

Заметим, что, получив заказ на «крымско-татарско-тосканский стиль», архитекторы СКиП остались верны себе. Они спроектировали комплекс, снаружи похожий на небольшой южный городок, сросшийся с санаторием – пошли по пути, который можно определить скорее как вписывание в контекст, чем как стилизацию. Здесь нет вычурного декора, а к разряду узнаваемых деталей можно отнести разве что колоннаду и сводчатые окна. Иными словами, архитекторы сделали спокойный и достаточно лаконичный контекстуальный проект, ничего особенно не стилизующий, а включенный в южную традицию и обладающий несколькими узнаваемыми элементами.
Клиника естественного оздоровления на 100 мест
Клиника естественного оздоровления на 100 мест
© АМ Сергей Киселев и Партнеры
Клиника естественного оздоровления на 100 мест
Клиника естественного оздоровления на 100 мест
© АМ Сергей Киселев и Партнеры
Клиника естественного оздоровления на 100 мест
Клиника естественного оздоровления на 100 мест
© АМ Сергей Киселев и Партнеры
Клиника естественного оздоровления на 100 мест
Клиника естественного оздоровления на 100 мест
© АМ Сергей Киселев и Партнеры
Клиника естественного оздоровления на 100 мест
Клиника естественного оздоровления на 100 мест
© АМ Сергей Киселев и Партнеры
Клиника естественного оздоровления на 100 мест
Клиника естественного оздоровления на 100 мест
© АМ Сергей Киселев и Партнеры
Клиника естественного оздоровления на 100 мест
Клиника естественного оздоровления на 100 мест
© АМ Сергей Киселев и Партнеры
Клиника естественного оздоровления на 100 мест
Клиника естественного оздоровления на 100 мест
© АМ Сергей Киселев и Партнеры
Клиника естественного оздоровления на 100 мест
Клиника естественного оздоровления на 100 мест
© АМ Сергей Киселев и Партнеры
Клиника естественного оздоровления на 100 мест
Клиника естественного оздоровления на 100 мест
© АМ Сергей Киселев и Партнеры