Размещено на портале Архи.ру (www.archi.ru)

13.08.2010

«Спираль знаний»

Объект:
Библиотека Университетского колледжа Даларны
Адрес:
Швеция, None, Фалун.
Мастерская:
Adept

Со Фудзимото и датское бюро ADEPT выиграли конкурс на проект новой библиотеки в шведском Фалуне.

Библиотека Университетского колледжа Даларны
Библиотека Университетского колледжа Даларны
Их предложение, разработанное совместно с берлинскими ландшафтными архитекторами Topotek1 и озаглавленное «Медиа-арена Даларны», предполагает строительство на территории кампуса Университета Даларны (области, столицей которой является Фалун) нового здания общей площадью 3 000 м2, а также прилегающей к нему «медиа-плазы». Комплекс рассчитан не только на студентов и преподавателей, но и простых горожан. Это будет многофункциональный центр знаний и общественной жизни, в духе современных представлений о библиотеке.

Структура постройки построена на «спирали знаний»: пологая поверхность земли подводит посетителей к пандусу, соединяющему все ярусы здания, что поможет легко ориентироваться в интерьере. Снаружи фасады будут обшиты деревом — это дань местной традиции.

Рядом, на месте бывшей парковки, устроят «медиа-плазу» — многофункциональное общественное пространство, дополняющее библиотеку.
Библиотека Университетского колледжа Даларны
Библиотека Университетского колледжа Даларны
Библиотека Университетского колледжа Даларны
Библиотека Университетского колледжа Даларны
Библиотека Университетского колледжа Даларны
Библиотека Университетского колледжа Даларны
Библиотека Университетского колледжа Даларны
Библиотека Университетского колледжа Даларны
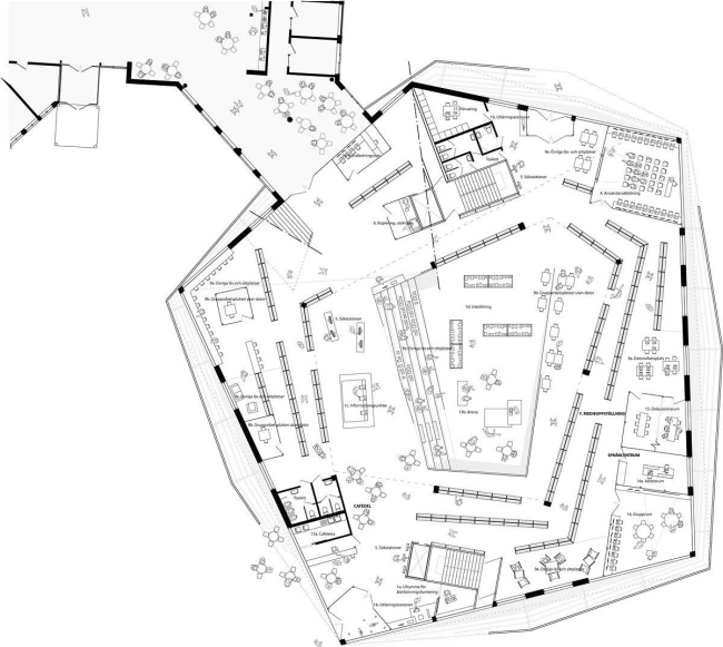
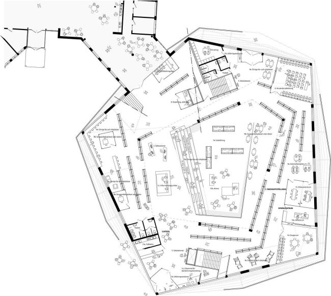
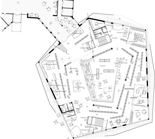
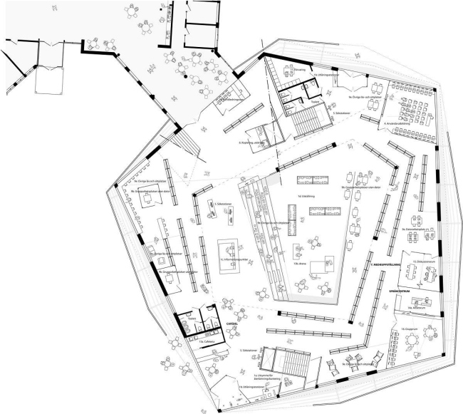
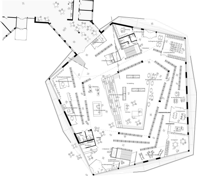
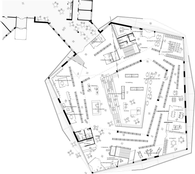
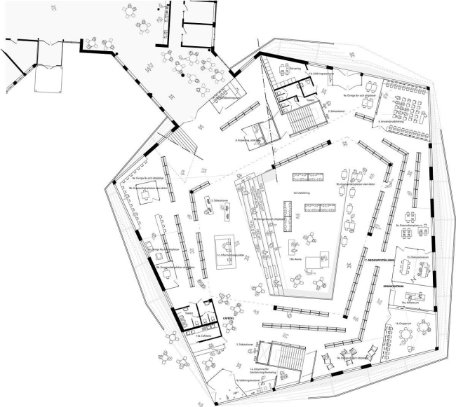
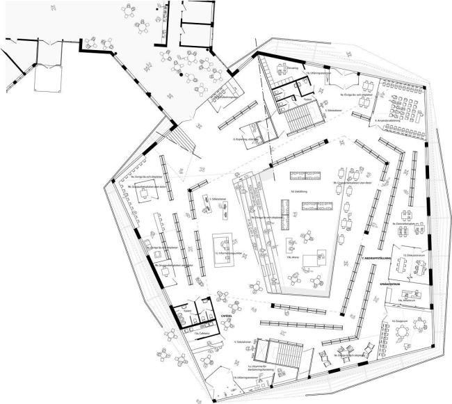
Библиотека Университетского колледжа Даларны. Нижний ярус
Библиотека Университетского колледжа Даларны. Нижний ярус
Библиотека Университетского колледжа Даларны. Верхний ярус
Библиотека Университетского колледжа Даларны. Верхний ярус
Библиотека Университетского колледжа Даларны
Библиотека Университетского колледжа Даларны