Размещено на портале Архи.ру (www.archi.ru)

19.08.2010

Царство вещателей

Анна Мартовицкая
Объект:
Главный медиацентр Зимних Олимпийских игр 2014 года в Сочи
Адрес:
Россия, Сочи.
Архитектор:
Сергей Чобан
Сергей Кузнецов
Мастерская:
СПИЧ
Авторский коллектив:
Авторы проекта: Чобан С.Э., Кузнецов С.О. Главный архитектор проекта: Гордюшин Н.В. Главный инженер проекта: Морозова И.М. Архитекторы: Болдырев А.И., Федорова Е.В., Шубкин А.А.

В Имеретинской низменности архитектурная мастерская Speech спроектировала многофункциональный комплекс. Зимой 2014 года он будет работать как Главный медиацентр Олимпиады, а после Игр превратится в торгово-развлекательный центр.

Главный медиацентр Зимних Олимпийских игр 2014 года в Сочи
Главный медиацентр Зимних Олимпийских игр 2014 года в Сочи
© SPEECH
Отметим, что это уже второй олимпийский объект для мастерской. В прошлом году Speech участвовала в конкурсе на проектирование стадиона открытия Зимних Олимпийских Игр, а в нынешнем получила заказ на разработку концепции главного Медиацентра. Комплекс, благодаря которому события русской Олимпиады увидит весь мир, будет расположен в непосредственной близости от Олимпийского парка, на зеленом пешеходном бульваре, соединяющем последний с вокзалом. Помимо самого Медиацентра, в состав которого войдут международный вещательный центр и главный пресс-центр, здесь разместится трехзвездочная гостиница для журналистов на 600 мест – ее также проектирует Speech, нашедшая для объектов единое стилистическое решение. О том, что сделать это было не просто, можно судить хотя бы по тому, что общая площадь зданий составляет почти 150 тысяч квадратных метров, а их высота не должна превышать 3 этажей в случае с медиацентром и 8 в случае с гостиницей. Придать столь колоссальному объему интересную форму, а не просто равномерно распластать его по земле – вот амбициозная творческая задача, которую пришлось решить Сергею Чобану и Сергею Кузнецову.

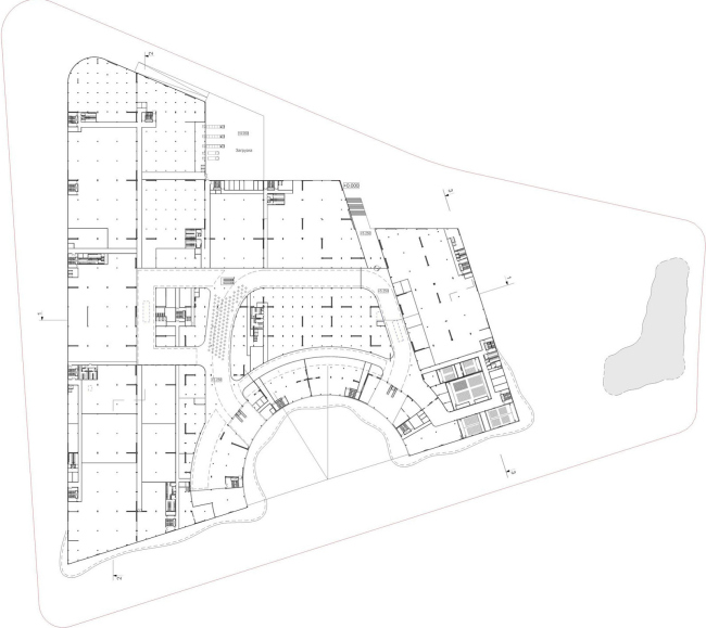
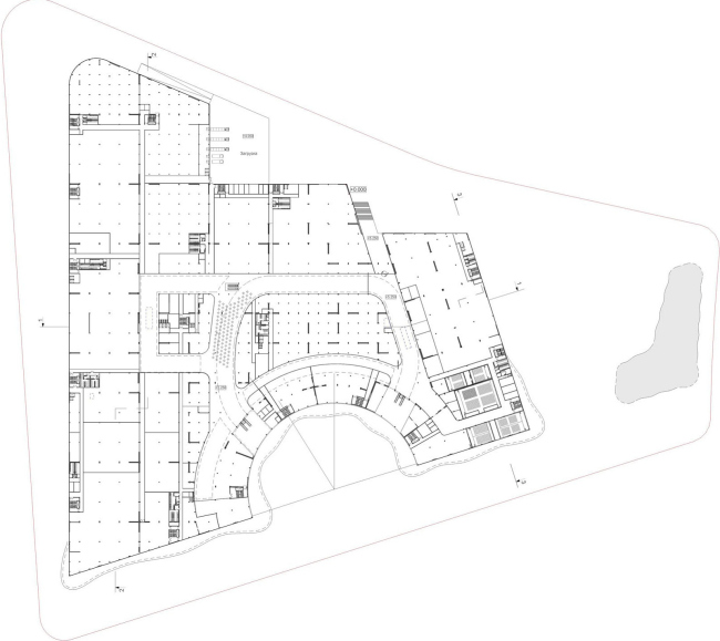
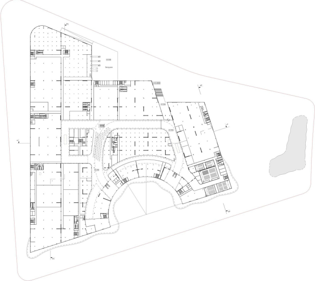
Под строительство медиацентра выделен участок в виде трапеции, чем-то похожей на химическую колбу, положенную на бок. Своей самой длинной западной стороной он обращен к Зеленому бульвару и Олимпийскому парку. В более узком «горлышке» архитекторы разместили гостиницу для журналистов, тогда как основную – северную – часть территории занял медиацентр. Руководящий партнер Speech Сергей Кузнецов объясняет, что это было сделано сразу по нескольким причинам. Во-первых, генплан развития Имеретинской долины предусматривает строительство дорог с северной и восточной сторон участка, а значит, к медиацентру будет обеспечен наилучший доступ. А во-вторых, на соседнем участке (определенном тем же генпланом) расположено поле, на котором можно будет разместить и спутниковые антенны, и временную парковку (по соображениям безопасности, парковаться частным автомобилям под самим медиацентром запрещено).

Таким образом, здание медиацентра растянуто вдоль западной, северной, и восточной границ участка, занимая его большую часть и повторяя трапециевидную конфигурацию. «Лицом» комплекса становится протяженный западный фасад. «Проблема всех длинных фасадов в том, что они очень скучны и монотонны, – говорит Сергей Кузнецов, – и нам всячески хотелось от этого уйти». Вот почему фасад не просто подчеркивает направление Зеленого бульвара, но развивает его тему, превращаясь на всем своем протяжении в пешеходную галерею, защищенную от осадков и палящего солнца. Для того чтобы нарушить монотонность фасадной плоскости, архитекторы выносят кровлю сильно вперед и придают ей ярко выраженную волнообразную форму. И эта волна, и тонкие белоснежные колонны, поддерживающие кровлю, и горизонтальные ламели, опоясывающие здание, – все эти элементы искусно скрадывают истинные габариты комплекса, не только придавая ему визуальную легкость, но и подчеркивая принадлежность к курортной архитектуре города Сочи. И все же, наверно, даже такие пластические ухищрения не спасли бы фасад от ощущения бесконечно тянущейся вдоль бульвара стены, если бы архитекторы не придумали вырезать в здании полукруглую пешеходную площадь. Украшенная фонтаном и парком скульптур, она в будущем завершит перспективу улицы нового жилого района, проектируемого перпендикулярно бульвару.

Еще одной сложностью для архитекторов стала необходимость заложить в проект возможность постолимпийского перевоплощения здания из медиацентра в обычный торгово-развлекательный комплекс. «С точки зрения внутренней планировки комплекса особых проблем нет, – поясняет Сергей Кузнецов, – но эти объекты кардинально отличаются друг от друга объемом энергоснабжения. Медиацентру требуется в десятки раз больше электроэнергии, чем ТРЦ, и единственным способом решить эту проблему мы сочли вариант, предусматривающий использование арендованного инженерного оборудования, которое после Игр будет из здания вывезено». Мобильные блоки, о которых говорит архитектор, разместятся на первом этаже комплекса, а в постолимпийский период эта территория будет использоваться как открытая парковка для посетителей торгового центра. Аналогично будет решена и судьба склада Международного Вещательного центра: технические и подсобные помещения специально сосредоточены в северной части здания, которая по завершении Олимпиады тоже превратится в парковку, правда, уже крытую.

Важно и то, что в здании предусмотрено несколько выходов – соображения безопасности требуют разделять функциональные потоки («вещателей», то есть сотрудников теле- и радиостанций, «прессы», то есть работников печатных СМИ, персонала, VIP и т.п.), а ТРЦ они не помешают уже, скорее, с точки зрения предупреждения столпотворения покупателей. Два основных входа (для «вещателей» и «прессы») расположены со стороны главной площади: журналисты попадают в здание с уровня земли, а пройдя контроль, оказываются на «Главной улице» – основной внутренней артерии здания, имеющей верхний свет.

Как уже говорилось, здания медиацентра и расположенной на том же участке гостиницы решены в едином стиле. Правда, отель в два раза выше своего соседа, поэтому в его оформление архитекторы ввели цвет. Ограждения лоджий каждого из этажей выкрашены в свой собственный тон, благодаря чему восьмиэтажное здание под лихим волнообразным козырьком кажется опоясанным лентами основных цветов олимпийского движения.
Главный медиацентр Зимних Олимпийских игр 2014 года в Сочи
Главный медиацентр Зимних Олимпийских игр 2014 года в Сочи
© SPEECH
Главный медиацентр Зимних Олимпийских игр 2014 года в Сочи
Главный медиацентр Зимних Олимпийских игр 2014 года в Сочи
© SPEECH
Главный медиацентр Зимних Олимпийских игр 2014 года в Сочи
Главный медиацентр Зимних Олимпийских игр 2014 года в Сочи
© SPEECH
Главный медиацентр Зимних Олимпийских игр 2014 года в Сочи
Главный медиацентр Зимних Олимпийских игр 2014 года в Сочи
© SPEECH
Главный медиацентр Зимних Олимпийских игр 2014 года в Сочи
Главный медиацентр Зимних Олимпийских игр 2014 года в Сочи
© SPEECH
Главный медиацентр Зимних Олимпийских игр 2014 года в Сочи
Главный медиацентр Зимних Олимпийских игр 2014 года в Сочи
© SPEECH
Главный медиацентр Зимних Олимпийских игр 2014 года в Сочи
Главный медиацентр Зимних Олимпийских игр 2014 года в Сочи
© SPEECH
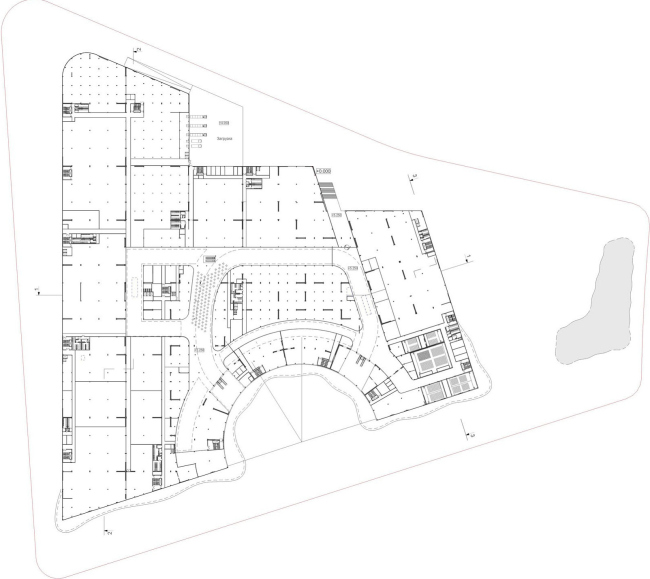
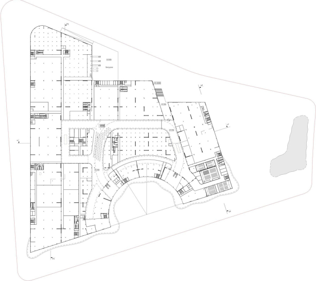
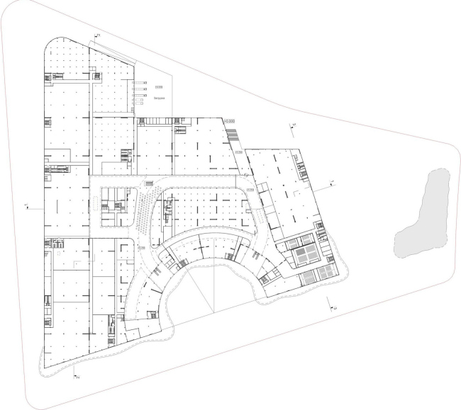
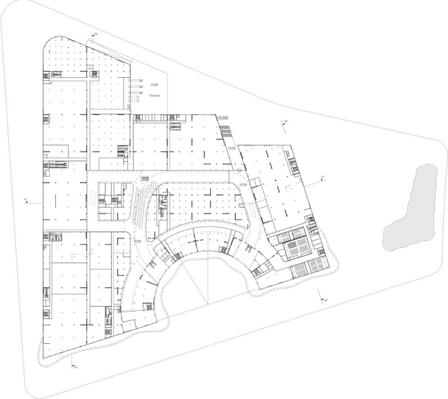
Главный медиацентр Зимних Олимпийских игр 2014 года в Сочи. План первого этажа
Главный медиацентр Зимних Олимпийских игр 2014 года в Сочи. План первого этажа
© SPEECH
Главный медиацентр Зимних Олимпийских игр 2014 года в Сочи. План второго этажа
Главный медиацентр Зимних Олимпийских игр 2014 года в Сочи. План второго этажа
© SPEECH
Главный медиацентр Зимних Олимпийских игр 2014 года в Сочи
Главный медиацентр Зимних Олимпийских игр 2014 года в Сочи
© SPEECH
Главный медиацентр Зимних Олимпийских игр 2014 года в Сочи
Главный медиацентр Зимних Олимпийских игр 2014 года в Сочи
© SPEECH