Размещено на портале Архи.ру (www.archi.ru)

09.07.2010

Скромное обаяние «шале»

Анна Мартовицкая
Объект:
Частный загородный дом на Минском шоссе
Адрес:
Россия, Москва. Минское шоссе
Архитектор:
Роман Леонидов
Мастерская:
АБ Романа Леонидова
Авторский коллектив:
Автор проекта: Роман Леонидов. Ведущий архитектор: Зоя Самородова. ГАП: Алексей Алексеев. ГИП: Виталий Осташко.

Весной этого года архитектор Роман Леонидов закончил строительство нового загородного коттеджа, ставшего воплощением его представлений о комфортном и стильном частном доме.

Основной дом
Основной дом
С заказчиком этого проекта Роман Леонидов знаком довольно давно – несколько лет назад архитектор уже проектировал для него дом, в котором предприниматель и его семья счастливо обитают по сей день. Новый коттедж был заказан как коммерческий объект, то есть как дом, предназначенный на продажу. Под эти цели был приобретен участок площадью 30 соток в одном из очень тихих и старых (так называемых «генеральских») поселков по Минскому шоссе. А единственным пожеланием, которое заказчик высказал к архитектуре и планировке будущего дома, стало напутствие: «Чтобы хорошо продался». Роман Леонидов, в свою очередь, трактовал столь краткое, но емкое техническое задание как возможность максимально полно реализовать свои представления о современном загородном доме, где традиция и новаторство сочетались бы в равных пропорциях.

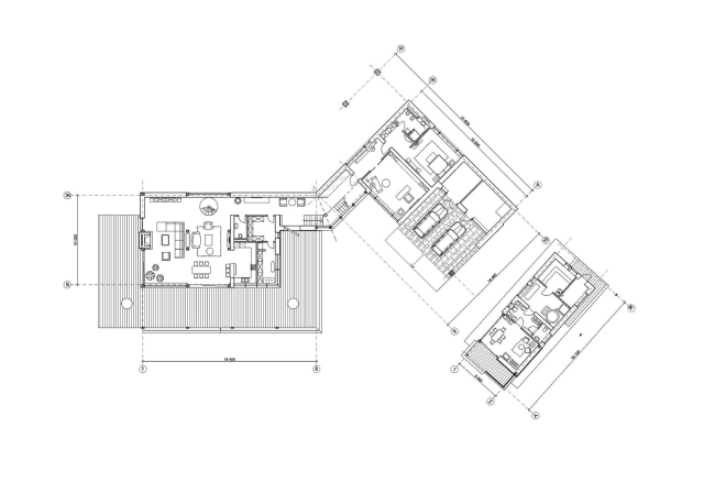
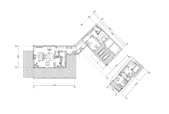
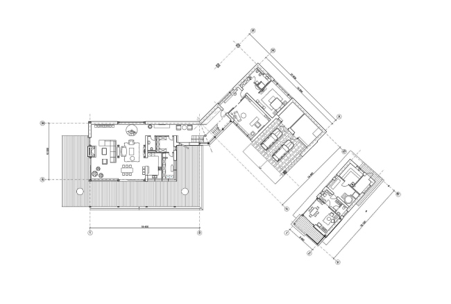
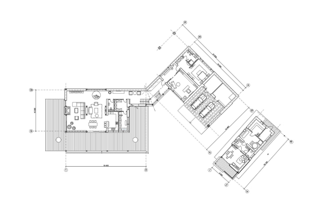
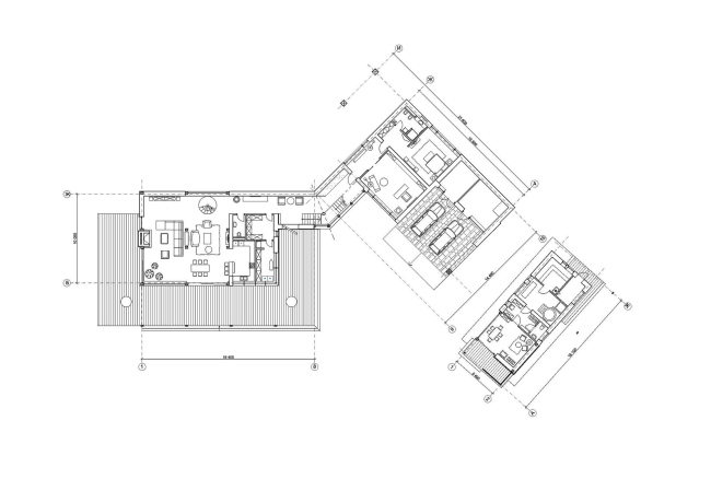
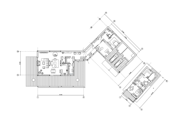
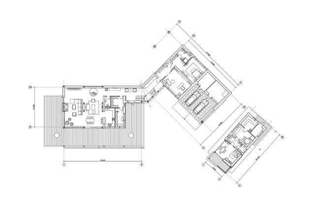
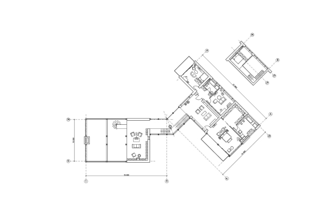
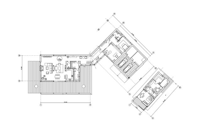
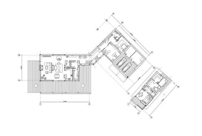
Коттедж составлен из двух объемов, каждый из которых в плане напоминает прямоугольник с одним изъятым углом или положенный «лицом вниз» мягкий знак. Получившиеся «буквы» расположены зеркально и соединены между собой длинными перекладинами. А чтобы не располагать дом излишне строгим каре, Леонидов смыкает объемы-«половинки» под небольшим углом.

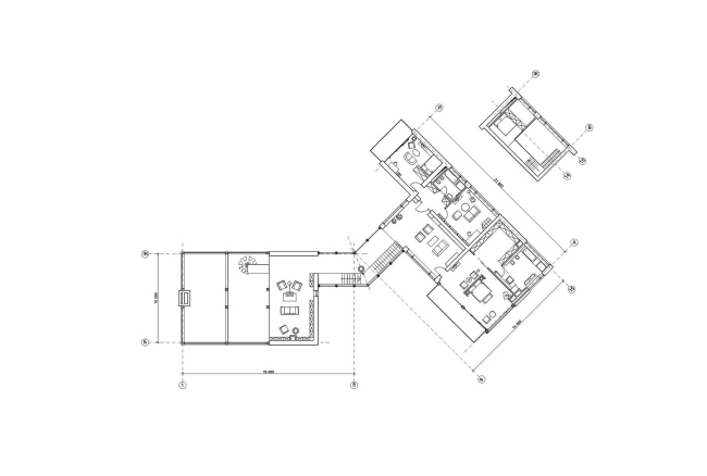
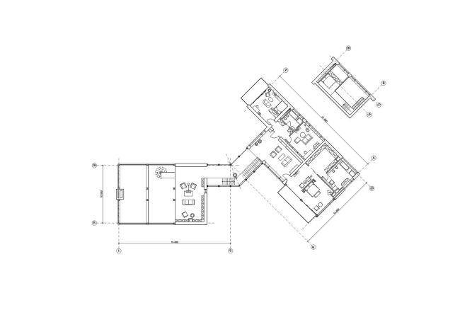
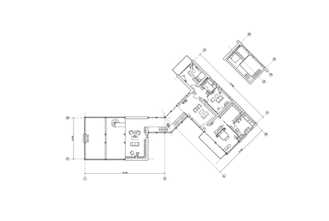
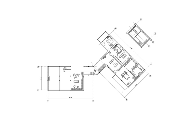
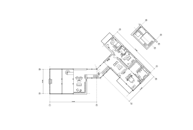
Функционально такое разделение более чем оправдано: одна половина дома спроектирована как хозяйская, и в ней расположены двусветная гостиная с камином, столовая и кухня, вторая же выполняет роль гостевого дома, в котором, помимо спальни и санузла, также есть малая гостиная. А поскольку гостевые помещения занимают по определению меньшую площадь, в этом же объеме размещены котельная, кладовые помещения и гараж, под который отведена четверть объема. Правда, обиталище личного автотранспорта архитектор трактовал как обычный навес – по мнению Романа Леонидова, теплый гараж нужен далеко не всем и не всегда, но если будущие владельцы дома все-таки захотят его иметь, возвести еще две стены не составит особого труда. В галерее же размещена винтовая лестница, ведущая на второй – приватный – этаж, где помимо спальни хозяев имеются две детские (одна с антресолями).

Важно подчеркнуть, что оба объема размещены на широкой плите – обшитая сверху деревом, она служит удобной летней верандой и частично накрыта навесом. Но самое главное, таким образом архитектор кардинально решил вопрос подвала. «Фактически реализовал свою давнюю мечту, – поясняет Роман Леонидов, – и спроектировал дом без подвала. Дело в том, что на стадии переговоров практически ни один заказчик не хочет иметь подвал, но когда мы начинаем делать ленточный фундамент и, соответственно, рыть котлован, в ста случаях из ста заказчику становится жаль терять так много места, и нам приходится переделывать уже готовый проект дома, изменять его пропорции и поднимать первый этаж. В данном же случае я решил не искушать судьбу и поставил дом на плиту – и, по-моему, его пропорции от этого сильно выиграли». Архитектор не лукавит: несмотря на свою довольно внушительную площадь (600 кв. м.), установленный на деку дом кажется изящным и едва ли не миниатюрным. Это впечатление многократно усиливают прозрачные стены гостиной, словно вросшие в деревянную платформу, и широкие свесы скатной кровли, с внутренней стороны также обшитые лиственницей. И если второй объем, обращенный к улице, состоит из брутальных кирпичных и каменных плоскостей, то прозрачный сшит лишь несколькими деревянными ребрами и каменным остовом каминной трубы.  

И на фасадах, и в интерьере этого дома архитектор намеренно использовал только натуральные и при этом не очень дорогие материалы, позволяющие соблюсти баланс между основательностью внешнего облика и его визуальной легкостью, а также сделать строительство в меру экономичным. «По-моему, в итоге у меня получилось шале, но созданное средствами современной архитектуры, – говорит Роман Леонидов. – А в мастерской мы между собой называем этот дом «скромным обаянием буржуазии». По достоинству дом оценил и сам заказчик – по крайней мере, о продаже коттеджа речь уже не идет, а семья предпринимателя готовится к переезду.
Основной дом
Основной дом
Основной дом
Основной дом
Основной дом
Основной дом
Баня
Баня
План первого этажа
План первого этажа
План второго этажа
План второго этажа