Размещено на портале Архи.ру (www.archi.ru)

29.06.2010

Музей на реке

Нина Фролова
Объект:
Музей «ан де Стром»
Адрес:
Бельгия, None, Антверпен.
Мастерская:
Neutelings Riedijk

В Антверпене закончилось строительство Музея «ан де Стром», спроектированного бюро Neutelings Riedijk.

Музей «ан де Стром». Фото: Sarah Blee / © Neutelings Riedijk Architects
Музей «ан де Стром». Фото: Sarah Blee / © Neutelings Riedijk Architects

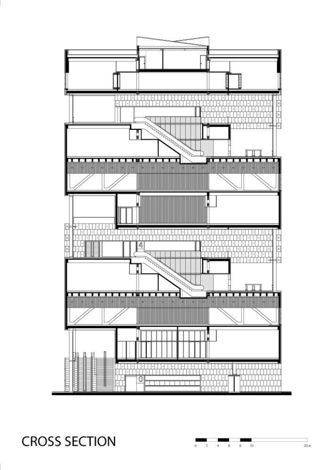
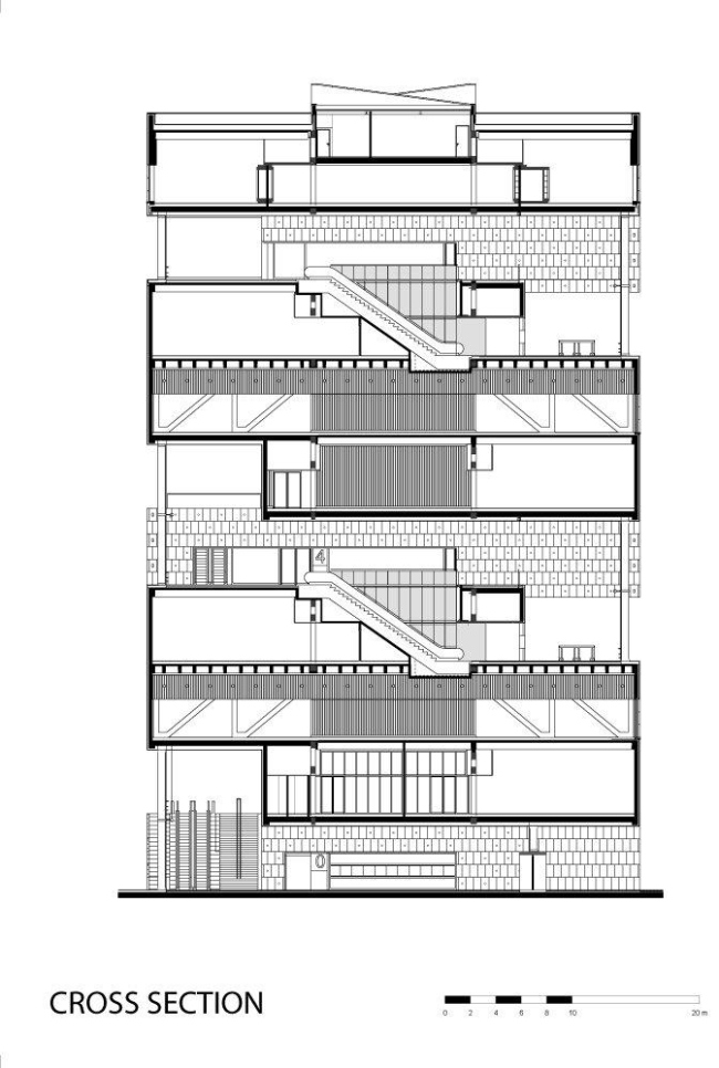
«Музей на реке», как переводится его название, представляет собой 65-метровую 10-ярусную башню, окруженную просторной площадью с террасами и павильонами. И здания, и поверхность земли покрыты плитами красного индийского песчаника из Агры, обтесанными вручную. Всего было использовано четыре оттенка этого камня; расположение плит разных тонов было выбрано случайным способом с помощью компьютера. Чтобы несколько смягчить монументальность объема постройки, на плиты помещены алюминиевые декоративные элементы в форме кисти руки – символа Антверпена (также они напоминают о частных лицах и учреждениях, пожертвовавших средства на строительство). В интерьере этот мотив продолжают металлические медальоны с надписями, сочиненными писателем Томом Лануа (Tom Lanoye).
Музей «ан де Стром». Фото: Sarah Blee / © Neutelings Riedijk Architects
Музей «ан де Стром». Фото: Sarah Blee / © Neutelings Riedijk Architects

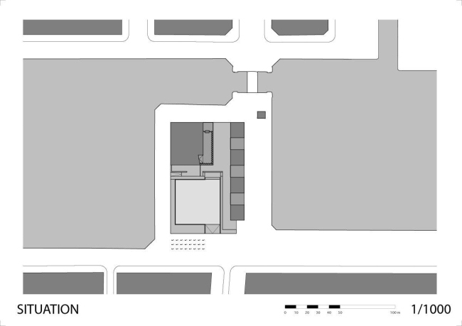
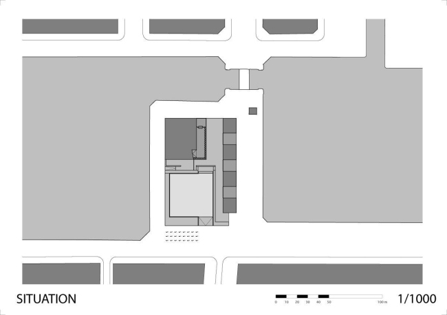
Каменная облицовка фасада перемежается участками из гофрированного стекла, которые отмечают расположение помещений «спиральной галереи», объединяющей все этажи музея. В ней и в остальных залах выставлены этнографические и исторические коллекции, посвященные городу и остальному миру, а также тесной многовековой связи Антверпена с другими странами и континентами: он до сих пор остается крупнейшим портом в мире, уступая в Европе по грузообороту только Роттердаму. Поэтому особенно ценно, что музей выстроен на берегу Шельды, в районе старых доков. Терраса на крыше музея, откуда открывается вид на город, связывает для попадающих туда в конце осмотра посетителей историю и современность.
Музей «ан де Стром». Фото: Peter Luxem / © Neutelings Riedijk Architects
Музей «ан де Стром». Фото: Peter Luxem / © Neutelings Riedijk Architects

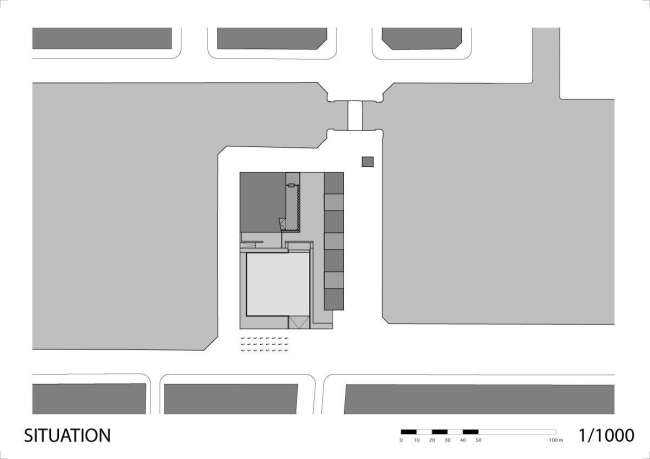
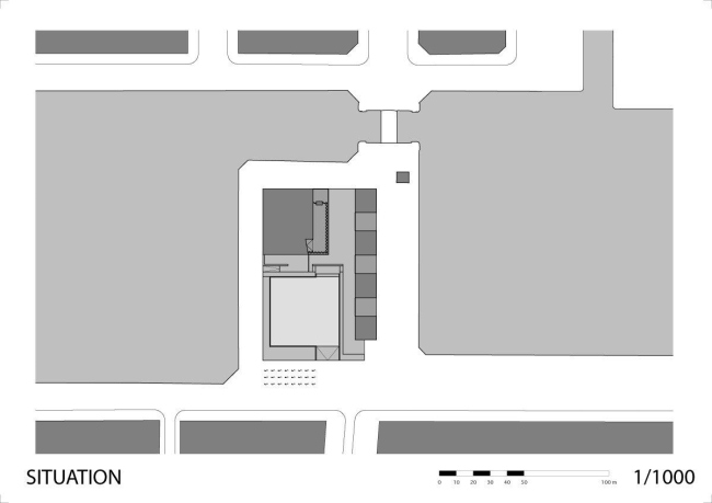
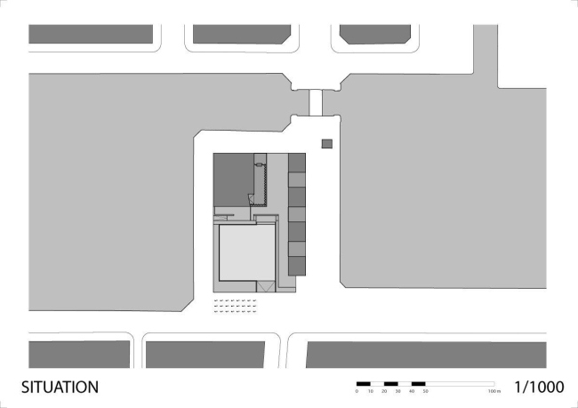
Площадь вокруг музея – многофункциональное общественное пространство. Углубление в ее центральной части служит «рамой» для мозаики работы Люка Тюйманса (Luc Tuymans).
Музей «ан де Стром» © Neutelings Riedijk Architects
Музей «ан де Стром» © Neutelings Riedijk Architects
Музей «ан де Стром» © Neutelings Riedijk Architects
Музей «ан де Стром» © Neutelings Riedijk Architects
Музей «ан де Стром» © Neutelings Riedijk Architects
Музей «ан де Стром» © Neutelings Riedijk Architects
Музей «ан де Стром» © Neutelings Riedijk Architects
Музей «ан де Стром» © Neutelings Riedijk Architects
Музей «ан де Стром» © Neutelings Riedijk Architects
Музей «ан де Стром» © Neutelings Riedijk Architects
Музей «ан де Стром» © Neutelings Riedijk Architects
Музей «ан де Стром» © Neutelings Riedijk Architects
Музей «ан де Стром» © Neutelings Riedijk Architects
Музей «ан де Стром» © Neutelings Riedijk Architects
Музей «ан де Стром» © Neutelings Riedijk Architects
Музей «ан де Стром» © Neutelings Riedijk Architects
Музей «ан де Стром» © Neutelings Riedijk Architects
Музей «ан де Стром» © Neutelings Riedijk Architects