Размещено на портале Архи.ру (www.archi.ru)

18.06.2010

Прозрачная диагональ

Объект:
Корпус «Диана-Центр» Колледжа Барнард
Адрес:
США, None, Нью-Йорк.
Мастерская:
Weiss/Manfredi Architecture

В Нью-Йорке открылся новый корпус Колледжа Барнард, спроектированный бюро «Уэйсс/Манфреди».

Корпус «Диана-Центр» Колледжа Барнард © Weiss/Manfredi Architecture
Корпус «Диана-Центр» Колледжа Барнард © Weiss/Manfredi Architecture
Это здание выходит на Бродвей, и основной цвет его фасадов — терракотовый — гармонирует с исторической застройкой вокруг. При этом сам проект далек от историзма: все его фасады — это стеклянные навесные стены, и никаких традиционных деталей нет ни внутри, ни снаружи.

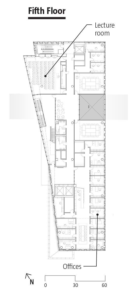
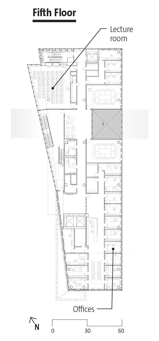
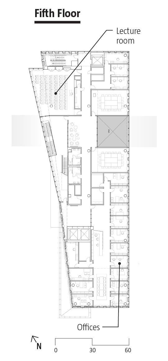
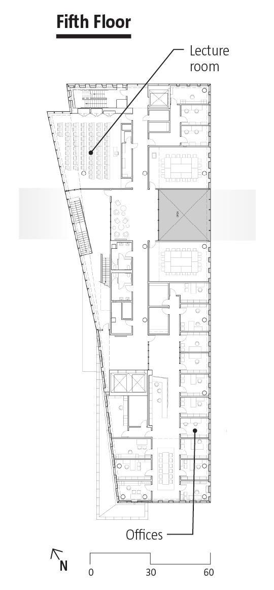
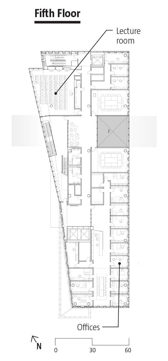
Главным элементом уличного фасада стала пересекающая его диагональ прозрачного стекла, контрастирующая с цветными фриттованными непрозрачными панелями, а также с участками бесцветного матового стекла. За ней расположены главные общественные пространства «Диана-Центра» — кафе, столовая, читальный зал и выставочная галерея, расположенные друг над другом с небольшим смешением вдоль горизонтальной оси и образующие вместе подобие атриума. На «дворовом», обращенном в пространство кампуса фасаде эта диагональ подчеркнута выступающими из поверхности стены объемами (также полностью прозрачными), в которых заключена лестница.

Часть участка под застройку была использована для создания небольшой площади с засаженными травой террасами. Они подводят посетителя к главному входу в здание, ведущему в кафе; туда же можно попасть и со стороны Бродвея: тот вестибюль также обслуживает находящийся ниже уровня земли театральный зал и обшитое деревом овальное пространство для общественных мероприятий.

Корпус служит «студенческим центром»; там также расположены аудитории и мастерские для факультетов архитектуры, истории искусства, театра, а также художественного.
Корпус «Диана-Центр» Колледжа Барнард © Weiss/Manfredi Architecture
Корпус «Диана-Центр» Колледжа Барнард © Weiss/Manfredi Architecture
Корпус «Диана-Центр» Колледжа Барнард © Weiss/Manfredi Architecture
Корпус «Диана-Центр» Колледжа Барнард © Weiss/Manfredi Architecture
Корпус «Диана-Центр» Колледжа Барнард © Weiss/Manfredi Architecture
Корпус «Диана-Центр» Колледжа Барнард © Weiss/Manfredi Architecture
Корпус «Диана-Центр» Колледжа Барнард © Weiss/Manfredi Architecture
Корпус «Диана-Центр» Колледжа Барнард © Weiss/Manfredi Architecture
Корпус «Диана-Центр» Колледжа Барнард © Weiss/Manfredi Architecture
Корпус «Диана-Центр» Колледжа Барнард © Weiss/Manfredi Architecture
Корпус «Диана-Центр» Колледжа Барнард © Weiss/Manfredi Architecture
Корпус «Диана-Центр» Колледжа Барнард © Weiss/Manfredi Architecture
Корпус «Диана-Центр» Колледжа Барнард © Weiss/Manfredi Architecture
Корпус «Диана-Центр» Колледжа Барнард © Weiss/Manfredi Architecture
Корпус «Диана-Центр» Колледжа Барнард © Weiss/Manfredi Architecture
Корпус «Диана-Центр» Колледжа Барнард © Weiss/Manfredi Architecture
Корпус «Диана-Центр» Колледжа Барнард © Weiss/Manfredi Architecture
Корпус «Диана-Центр» Колледжа Барнард © Weiss/Manfredi Architecture
Корпус «Диана-Центр» Колледжа Барнард © Weiss/Manfredi Architecture
Корпус «Диана-Центр» Колледжа Барнард © Weiss/Manfredi Architecture
Корпус «Диана-Центр» Колледжа Барнард © Weiss/Manfredi Architecture
Корпус «Диана-Центр» Колледжа Барнард © Weiss/Manfredi Architecture
Корпус «Диана-Центр» Колледжа Барнард © Weiss/Manfredi Architecture
Корпус «Диана-Центр» Колледжа Барнард © Weiss/Manfredi Architecture
Корпус «Диана-Центр» Колледжа Барнард © Weiss/Manfredi Architecture
Корпус «Диана-Центр» Колледжа Барнард © Weiss/Manfredi Architecture
Корпус «Диана-Центр» Колледжа Барнард © Weiss/Manfredi Architecture
Корпус «Диана-Центр» Колледжа Барнард © Weiss/Manfredi Architecture
Корпус «Диана-Центр» Колледжа Барнард © Weiss/Manfredi Architecture
Корпус «Диана-Центр» Колледжа Барнард © Weiss/Manfredi Architecture
Корпус «Диана-Центр» Колледжа Барнард © Weiss/Manfredi Architecture
Корпус «Диана-Центр» Колледжа Барнард © Weiss/Manfredi Architecture
Корпус «Диана-Центр» Колледжа Барнард © Weiss/Manfredi Architecture
Корпус «Диана-Центр» Колледжа Барнард © Weiss/Manfredi Architecture
Корпус «Диана-Центр» Колледжа Барнард © Weiss/Manfredi Architecture
Корпус «Диана-Центр» Колледжа Барнард © Weiss/Manfredi Architecture
Корпус «Диана-Центр» Колледжа Барнард © Weiss/Manfredi Architecture
Корпус «Диана-Центр» Колледжа Барнард © Weiss/Manfredi Architecture