Размещено на портале Архи.ру (www.archi.ru)

16.06.2010

Кафе в пейзаже

Нина Фролова
Объект:
Кафе в парке Чизик-Хауса
Адрес:
Великобритания, None, Лондон.
Мастерская:
Caruso St John

В ходе реставрации парка усадьбы Чизик-хаус в Лондоне там было выстроено здание летнего кафе по проекту бюро Caruso St John.

Кафе в парке Чизик-Хауса. Фото © Helene Binet
Кафе в парке Чизик-Хауса. Фото © Helene Binet

Сооружение из светлого известняка и стекла расположено к востоку от знаменитой «Виллы Берлингтона», первой палладианской постройки в Британии, возведенной владельцем усадьбы, лордом Берлингтоном по образцу Виллы Ротонды. Такое соседство заставило обычно весьма свободных в своих формальных поисках архитекторов обратится к минимализму с оттенком классики. Постройку окружают глубокие портики, причем оси дверных и оконных проемов не совпадают с расположением опор, что придает внутреннему пространству кафе динамику. В интерьере классических аллюзий практически нет: это нейтральное пространство с несколькими «актуальными» деталями, отступающее на второй план рядом с окружающим парком.
Кафе в парке Чизик-Хауса. Фото © Helene Binet
Кафе в парке Чизик-Хауса. Фото © Helene Binet

Парк, также созданный в первой половине XVIII в. Берлингтоном совместно с его протеже Уильямом Кентом, последние десятилетия прошлого столетия пребывал в некотором запустении, хотя он принадлежит к самым ранним и лучшим примерам пейзажного парка в истории. Теперь отреставрированы его скульптура и павильоны, а также объекты ландшафта, восстановлены существовавшие изначально виды и панорамы, обновлена и приведена к единообразию садовая мебель.
Кафе в парке Чизик-Хауса. Фото: Alexander P Kapp via Geograph. Лицензия CC BY-SA 2.0
Кафе в парке Чизик-Хауса. Фото: Alexander P Kapp via Geograph. Лицензия CC BY-SA 2.0
Кафе в парке Чизик-Хауса. Фото © Helene Binet
Кафе в парке Чизик-Хауса. Фото © Helene Binet
Кафе в парке Чизик-Хауса. Фото © Helene Binet
Кафе в парке Чизик-Хауса. Фото © Helene Binet
Кафе в парке Чизик-Хауса. Фото © Richard Bryant
Кафе в парке Чизик-Хауса. Фото © Richard Bryant
Кафе в парке Чизик-Хауса. Фото © Richard Bryant
Кафе в парке Чизик-Хауса. Фото © Richard Bryant
Кафе в парке Чизик-Хауса. Фото © Helene Binet
Кафе в парке Чизик-Хауса. Фото © Helene Binet
Кафе в парке Чизик-Хауса. Фото: Stefan Czapski via Geograph. Лицензия CC BY-SA 2.0
Кафе в парке Чизик-Хауса. Фото: Stefan Czapski via Geograph. Лицензия CC BY-SA 2.0
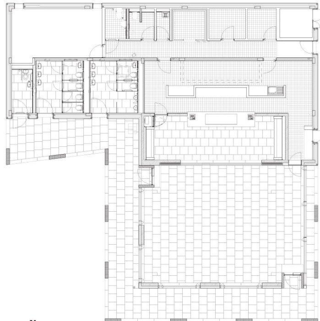
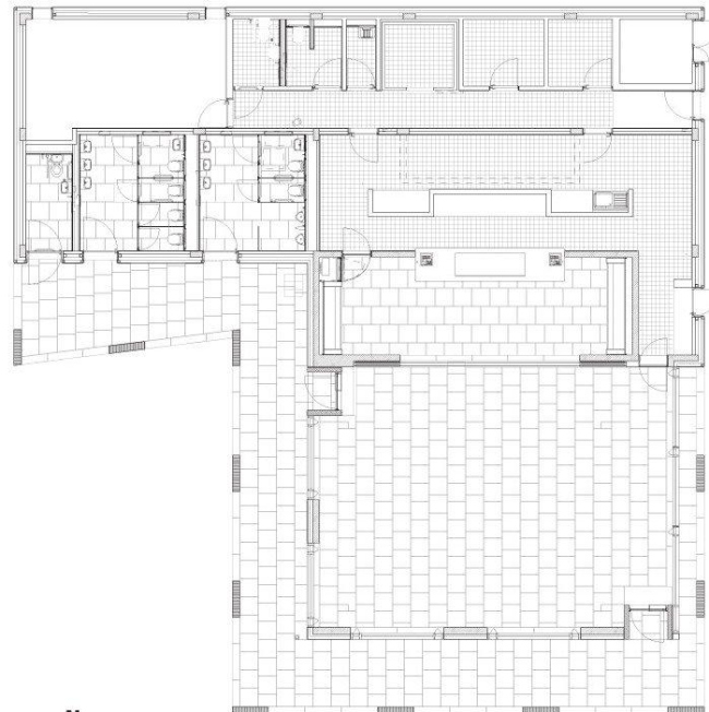
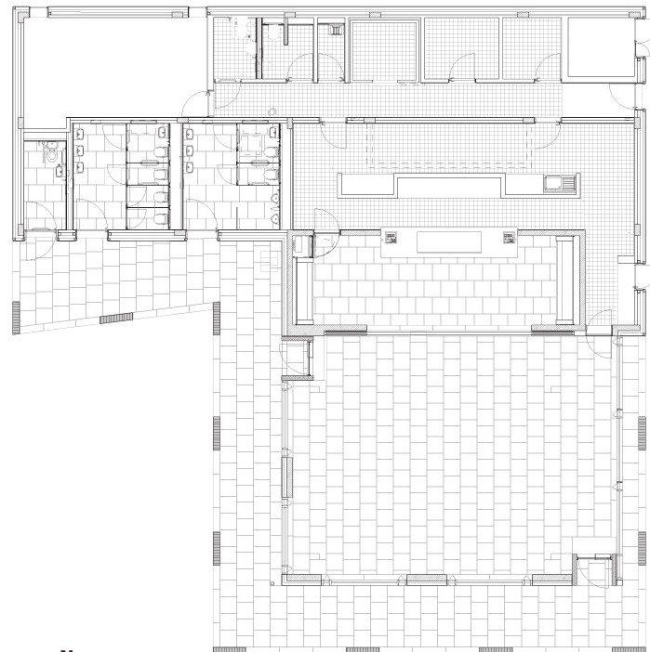
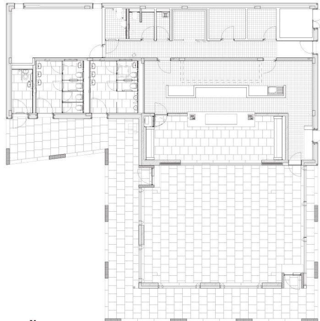
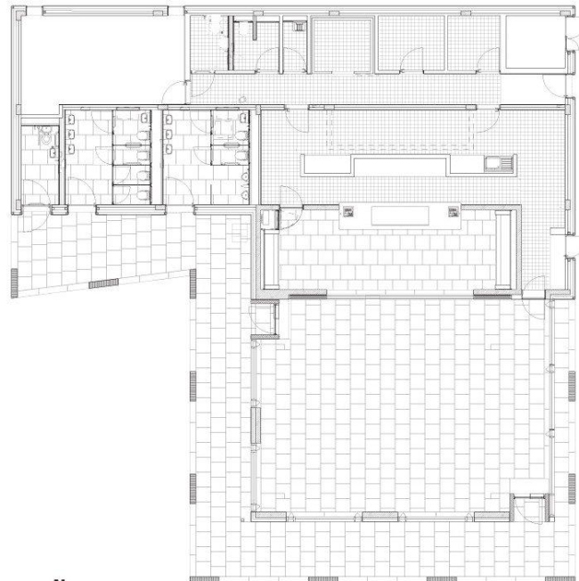
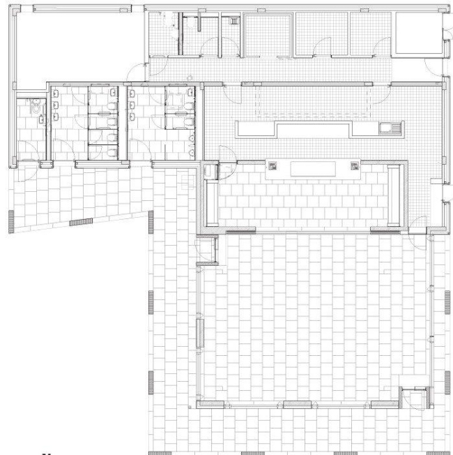
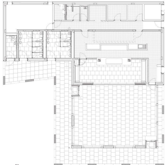
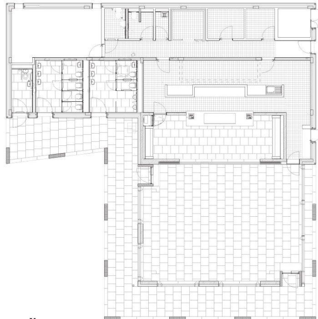
Кафе в парке Чизик-Хауса
Кафе в парке Чизик-Хауса
Кафе в парке Чизик-Хауса
Кафе в парке Чизик-Хауса
Кафе в парке Чизик-Хауса
Кафе в парке Чизик-Хауса
Парк Чизик-хауса после реконструкции. Фото © Richard Bryant
Парк Чизик-хауса после реконструкции. Фото © Richard Bryant
Парк Чизик-хауса после реконструкции. Фото © Richard Bryant
Парк Чизик-хауса после реконструкции. Фото © Richard Bryant
Чизик-Хаус («Вилла Берлингтона»). Фото © Clive Boursnell
Чизик-Хаус («Вилла Берлингтона»). Фото © Clive Boursnell