Размещено на портале Архи.ру (www.archi.ru)

17.06.2010

На музыкальном одре

Анна Мартовицкая
Объект:
Конкурсный проект Центра поп-музыки в Тайбэе (ТПО "Резерв")
Адрес:
Тайвань, Тайбэй.
Архитектор:
Владимир Плоткин
Мастерская:
ТПО «Резерв»
Авторский коллектив:
В, Плоткин, С. Успенский, Е.Быкова, Н,Толмачева, С.Сенкевич, К. Ухова

Чуть больше полугода назад в Тайбэе состоялся международный архитектурный конкурс на лучший проект Центра поп-музыки. ТПО «Резерв» трактовал этот объект как гигантскую кровать, «ложе» которой превращено в сцену под открытым небом.


Конкурсный проект Центра поп-музыки в Тайбэе © ТПО «Резерв»
Конкурсный проект Центра поп-музыки в Тайбэе © ТПО «Резерв»
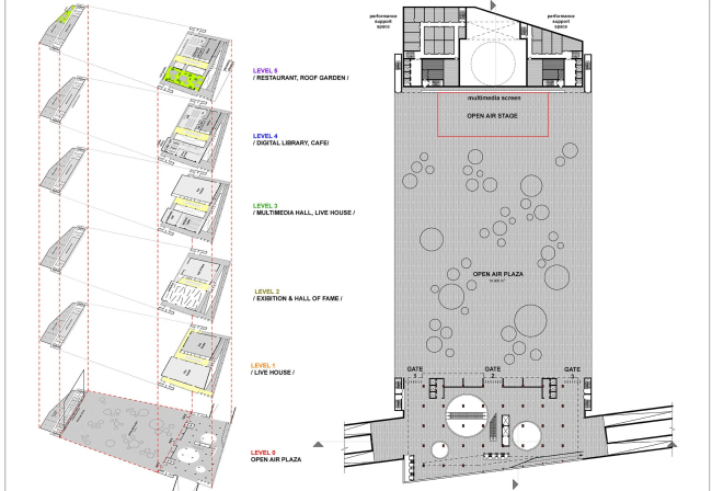
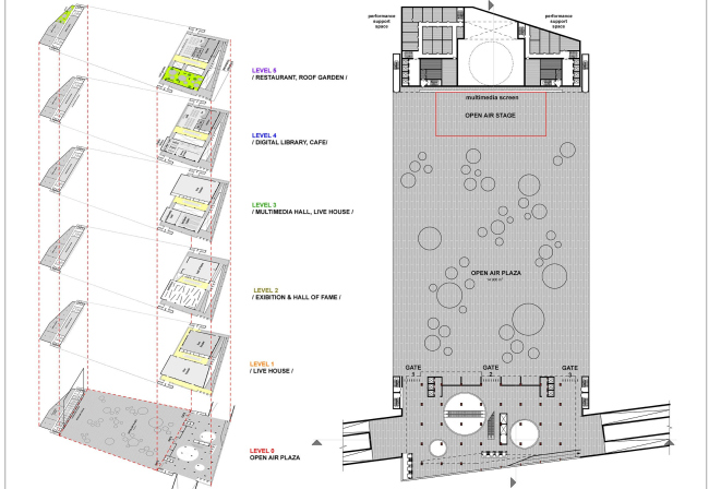
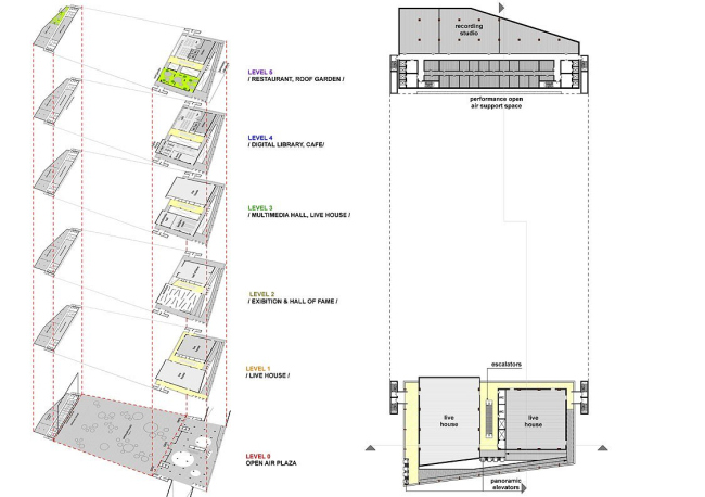
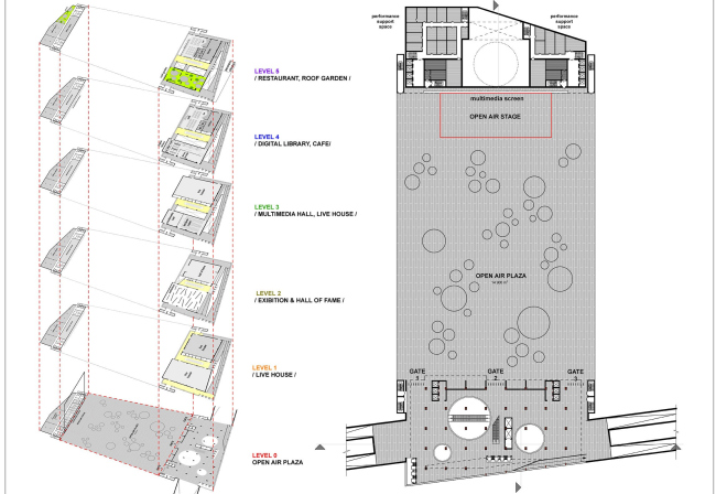
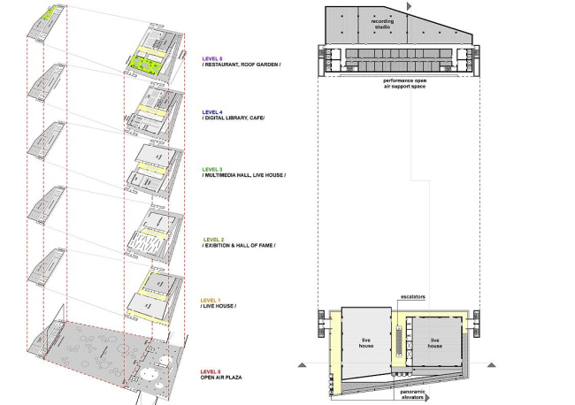
Центр поп-музыки предполагается построить в одной из промышленных зон Тайбэя, подлежащих ревитализации в самое ближайшее время. Комплекс задуман очень масштабным (более 50 тысяч квадратных метров) и призван объединить в себе множество самых разных функций – от собственно развлекательных и культурных до офисных, торговых, спортивных и сервисных. Однако, несмотря на грандиозность замысла, участок, выделенный под строительство, представляет собой очень скромный по площади трапециевидный надел земли, вплотную примыкающий к железнодорожному полотну. Для того, чтобы хоть как-то увеличить площадь пятна застройки, конкурсное задание предусматривало возможность использования пространства над железной дорогой, при условии, что архитекторы продумают удобную для данного городского района систему перекрытия путей. В случае необходимости при разработке проекта также разрешалось задействовать еще один участок рядом с железнодорожным полотном – в перспективе он, возможно, будет отдан Центру поп-музыки, – однако ТПО «Резерв» приняли принципиальное решение остаться в границах основного ТЗ. Тем сложнее оказалась задача, стоявшая перед архитекторами, – придумать очень вместительный и знаковый объем, в котором найдется место для всех многочисленных функций и который внешне при этом будет сразу опознаваться как музыкально-развлекательный комплекс. Но коллектив под руководством Владимира Плоткина блестяще с ней справился.

Участок расположен перпендикулярно железнодорожному полотну, и, как ни компонуй на нем объем комплекса, получалось, что хотя бы одним своим фасадом Центр поп-музыки будет вплотную обращен к снующим туда-сюда поездам. Поэтому вопрос о том, перекрывать железную дорогу или нет, перед архитекторами даже не стоял – они с самого начала понимали, что без этого создать полноценную и независимую градостроительную структуру невозможно. Однако, в отличие от большинства других участников конкурса, ТПО «Резерв» перекрыл железнодорожные пути не широким мостом, как бы «продлевающим» участок на другую сторону транспортной артерии, но длинной озелененной рампой. Эта конструкция не только маскирует железную дорогу на дальних подступах к участку, но и позволяет соединить с новым комплексом платформы существующих в районе станций. Один из корпусов нового комплекса опирается прямо на создаваемую зеленую платформу, с которой в него ведут два элегантных пандуса.

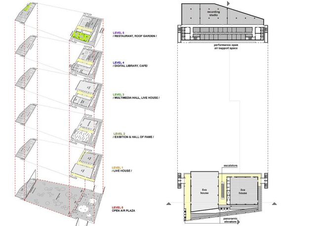
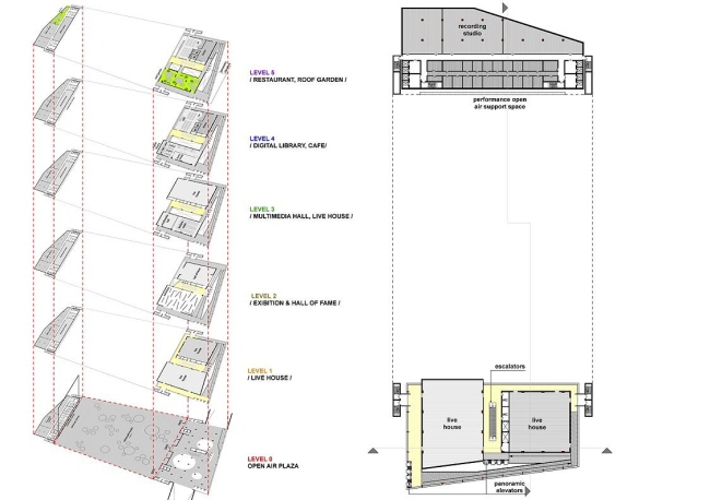
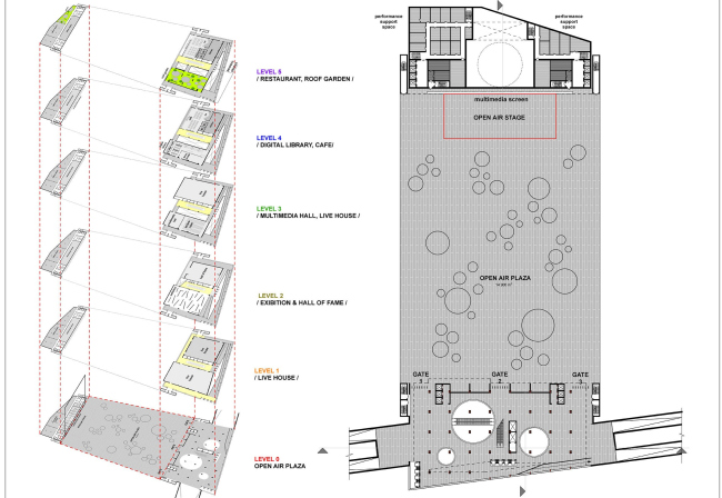
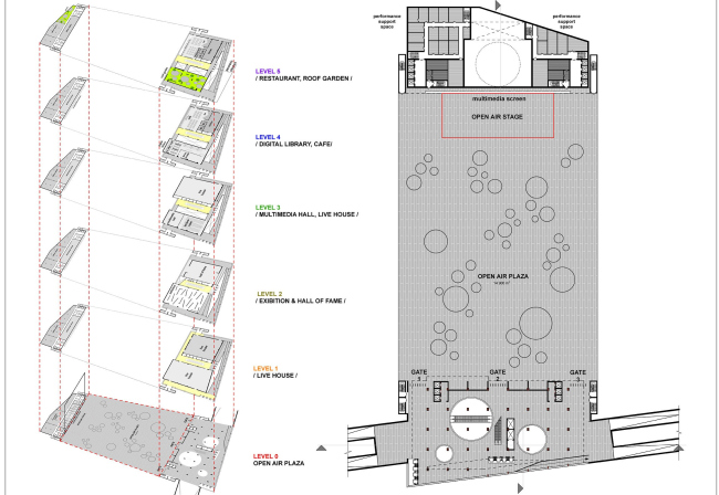
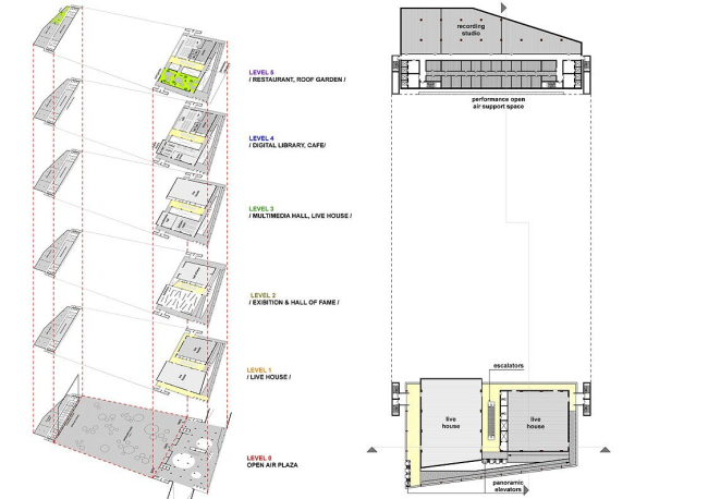
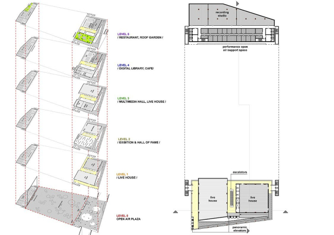
Как уже говорилось, одной из отличительных особенностей проектируемого комплекса являлась его многофункциональность – необходимость объединить в рамках одного объекта пространства самого разного назначения в итоге и подсказала архитекторам основную композиционную идею. Авторы, прежде всего, разделили «рабочие» и «нерабочие» функции. Помещения, предназначенные для офисов, скомпонованы в одном объеме, концертные залы, студии и кафе – в другом, а открытая сцена на несколько тысяч человек вполне логично размещена между ними. Корпуса решены как вертикальные пластины, фланкирующие танцевальный партер, однако последний не лежит на земле, как можно было бы предположить, а приподнят над ней на довольно приличную высоту – иными словами, это не кровля стилобата, но мост, переброшенный от одной башни к другой. Подобное решение не только позволило архитекторам придать внушительной конструкции определенную визуальную легкость, но и не превращать новый объем в непреодолимое препятствие на пути следования обитателей района.

Офисный блок повернут к сцене глухим фасадом, который фактически служит ее «задником», гигантским экраном, куда в ходе представлений могут проецироваться различные изображения. Торгово-развлекательный объем, или, как его в своем проекте назвали сами архитекторы, «Live House», наоборот, выполнен максимально прозрачным – его можно сравнить с вертикально ориентированной трибуной, так как с любого этажа этого здания можно наблюдать за тем, что происходит на сцене и в открытом партере. Специально оборудованные зрительные места расположены в разноцветных консолях, украшающих стеклянный фасад. Под сценой «спрятаны» торговый центр и парковка, а на уровне земли перед главным входом разбивается большая пешеходная площадь («плаза») с фонтанами, озеленением и «тематическим» благоустройством.

Внешне комплекс напоминает гигантскую квадратную скобу, приподнятую над землей. Подобный лаконичный геометризм – излюбленный прием архитектора Плоткина. Пожалуй, самый ближайший аналог – это его проект морского терминала Санкт-Петербурга, только там скоба была накрыта еще одной перекладиной сверху и превращалась в прямоугольную рамку, символизирующую окно в Европу. Владимир Плоткин, кстати, вспоминает, что для Тайбэя он и его коллеги сначала спроектировали именно такую рамку, «утолщенную» по бокам за счет офисов и залов, но потом решили не повторяться, и ввели в проект более фривольный и тем, без сомнения, очень родственный популярной музыке образ кровати, «спинками» которой служат офисный и концертный блоки, а на «ложе» происходит зарождение новых поп-звезд.


Конкурсный проект Центра поп-музыки в Тайбэе © ТПО «Резерв»
Конкурсный проект Центра поп-музыки в Тайбэе © ТПО «Резерв»

Конкурсный проект Центра поп-музыки в Тайбэе © ТПО «Резерв»
Конкурсный проект Центра поп-музыки в Тайбэе © ТПО «Резерв»

Конкурсный проект Центра поп-музыки в Тайбэе © ТПО «Резерв»
Конкурсный проект Центра поп-музыки в Тайбэе © ТПО «Резерв»

Конкурсный проект Центра поп-музыки в Тайбэе © ТПО «Резерв»
Конкурсный проект Центра поп-музыки в Тайбэе © ТПО «Резерв»

Конкурсный проект Центра поп-музыки в Тайбэе © ТПО «Резерв»
Конкурсный проект Центра поп-музыки в Тайбэе © ТПО «Резерв»

Конкурсный проект Центра поп-музыки в Тайбэе © ТПО «Резерв»
Конкурсный проект Центра поп-музыки в Тайбэе © ТПО «Резерв»
Ситуационный план. 
Конкурсный проект Центра поп-музыки в Тайбэе © ТПО «Резерв»
Ситуационный план. Конкурсный проект Центра поп-музыки в Тайбэе © ТПО «Резерв»
План первого этажа. 
Конкурсный проект Центра поп-музыки в Тайбэе © ТПО «Резерв»
План первого этажа. Конкурсный проект Центра поп-музыки в Тайбэе © ТПО «Резерв»
План второго этажа. 
Конкурсный проект Центра поп-музыки в Тайбэе © ТПО «Резерв»
План второго этажа. Конкурсный проект Центра поп-музыки в Тайбэе © ТПО «Резерв»
План третьего этажа. 
Конкурсный проект Центра поп-музыки в Тайбэе © ТПО «Резерв»
План третьего этажа. Конкурсный проект Центра поп-музыки в Тайбэе © ТПО «Резерв»