Размещено на портале Архи.ру (www.archi.ru)

12.05.2010

Временный памятник

Объект:
Центр Помпиду-Мец
Адрес:
Франция, None, Мец.

В Меце открылся филиал Центра Помпиду, построенный по проекту Шигеру Бана.

Центр Помпиду-Мец
Центр Помпиду-Мец
Задачей, поставленной архитектором самому себе, было создать нечто так же революционное для нашего времени, как парижский Центр Помпиду Ричарда Роджерса и Ренцо Пьяно — для 1970-х годов. Бан причислил все строящиеся сейчас музеи к двум основным типам: «знаковым» постройкам-скульптурам и нейтральным «коробкам» для произведений искусства. И та, и другая разновидности отпугивают немалую часть публики. В качестве альтернативы он предложил постоянную постройку, «памятник», производящий впечатление незавершенности, «временности» (что соответствует главному направлению его творчества). Но также Шигеру Бан продолжил традицию первого Центра в том, что ключевая роль в музее будет отдана искусству и зрителям: его интерьер приспособлен для любых трансформаций и кураторских экспериментов, его сложная структура будет приобретать тот или иной смысл в зависимости от экспозиции и текущей программы мероприятий.

Музей расположен в т. н. Районе Амфитеатра — бывшей промзоне, где при римском владычестве находился амфитеатр. Теперь эта территория должна быть застроена заново, и Центру Помпиду-Мец отведена роль «катализатора» процесса реконструкции. В то же время, музей расположен совсем рядом с городским вокзалом, что очень удобно для будущих посетителей. Город находится в западной Франции, в Лотарингии, близ границы с Германией, поэтому ожидается, что на новые выставки сюда будут приезжать из Нидерландов, Люксембурга, Бельгии, Рейнской области, а также из Парижа: из всех этих точек на скоростном поезде можно добраться до Меца за час-полтора. Городские власти надеются на «эффект Бильбао» и прогнозируют приток 200 - 400 тыс. туристов в год (до открытия Центра Помпиду Мец не привлекал любителей достопримечательностей, хотя там есть готический собор с уникальными витражами, сохранилась средневековая застройка и интересные сооружения в русле эклектики и стиля модерн).

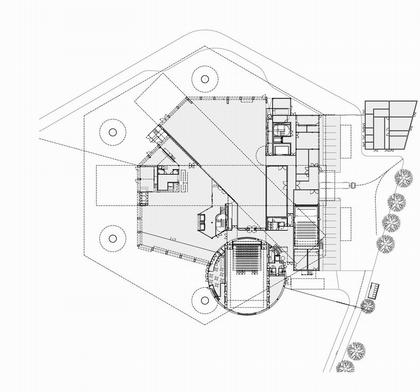
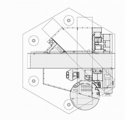
Главным элементом здания музея является его крыша площадью 8000 м2. Ее конструкцию Шигеру Бан «позаимствовал» у плетеной китайской шляпы с полями. Это сооружение сложной криволинейной формы (позволяющей оптимально справиться с солнечными лучами, снегом и дождем) на деревянном каркасе (использована древесина ели и лиственницы), с покрытием из стеклоткани и тефлона. Она почти не зависит от собственно структуры музея из бетона и стекла; в то же время, ее полупрозрачный «свод» с решеткой из светлого дерева виден из многих помещений. Первый этаж музея вмещает, кроме вестибюля с обязательными кафе и магазином, также и «Главный неф» (или форум) — масштабное выставочное пространство высотой 10 м, где можно экспонировать очень крупные работы, что часто представляет проблему даже в Париже (например, на первой музейной выставке покажут занавес, созданный по эскизу Пабло Пикассо в 1917 для балета «Парад» труппы Сергея Дягилева — полотнище размером 10 х 16,5 м). Оттуда на лифте, заключенном в 77-метровую башню — главную «мачту» здания — можно подняться в три основные галереи (площадью 1150 м2 каждая) — 80-метровые параллелепипеды, водруженные друг на друга со смещением в 45 градусов. Внутри них нет окон и дополнительных опор, что должно облегчить размещение экспозиции; торцы каждого из блоков застеклены, и в эти панорамные окна аккуратно «вписаны» достопримечательности Меца: собор, псевдороманский вокзал и парк на реке Сейль. На самом верху здания расположены ресторан, смотровая галерея и аудитория на 144 мест.

Вокруг постройки создан обширный парк. Главную роль там играет эспланада, ведущая от музея к вокзалу. Большая часть прилегающей к новому зданию территории превращена в вишневый сад, но также разбит и «частный парк» с искусственными каменистыми террасами и березовой рощей.

Бюджет постройки – 69 млн. евро, из них часть выделена Евросоюзом, а остальная сумма — французскими государственными структурами разного уровня. Экспозиция Центра Помпиду-Мец будет составлена из работ, находящихся в запасниках столичного Центра: они будут составлять разнообразные временные выставки. Первой из них будет «Шедевры?» — размышление на тему эволюции понятия «шедевр», охватывающее, что неожиданно для музея современного искусства, последние 500 лет; на ней будет показано 800 произведений.
Центр Помпиду-Мец. Фото: Bava Alcide57  via Wikimedia Commons. Лицензия CC BY-SA 3.0
Центр Помпиду-Мец. Фото: Bava Alcide57 via Wikimedia Commons. Лицензия CC BY-SA 3.0
Центр Помпиду-Мец
Центр Помпиду-Мец
Центр Помпиду-Мец
Центр Помпиду-Мец
Центр Помпиду-Мец. Фото: Jean-Pierre Dalbéra via Wikimedia Commons. Лицензия CC-BY-2.0
Центр Помпиду-Мец. Фото: Jean-Pierre Dalbéra via Wikimedia Commons. Лицензия CC-BY-2.0
Центр Помпиду-Мец. Фото: Centre Pompidou-Metz
Центр Помпиду-Мец. Фото: Centre Pompidou-Metz
Центр Помпиду-Мец. Фото © VisiOkrOniK
Центр Помпиду-Мец. Фото © VisiOkrOniK
Центр Помпиду-Мец в процессе строительства
Центр Помпиду-Мец в процессе строительства
Центр Помпиду-Мец. Фото: Jean-Pierre Dalbéra via Wikimedia Commons. Лицензия CC-BY-2.0
Центр Помпиду-Мец. Фото: Jean-Pierre Dalbéra via Wikimedia Commons. Лицензия CC-BY-2.0
Центр Помпиду-Мец
Центр Помпиду-Мец
Центр Помпиду-Мец
Центр Помпиду-Мец
Центр Помпиду-Мец
Центр Помпиду-Мец
Центр Помпиду-Мец
Центр Помпиду-Мец
Центр Помпиду-Мец
Центр Помпиду-Мец
Центр Помпиду-Мец
Центр Помпиду-Мец
Центр Помпиду-Мец
Центр Помпиду-Мец
Центр Помпиду-Мец
Центр Помпиду-Мец
Центр Помпиду-Мец
Центр Помпиду-Мец
Центр Помпиду-Мец
Центр Помпиду-Мец
Центр Помпиду-Мец
Центр Помпиду-Мец
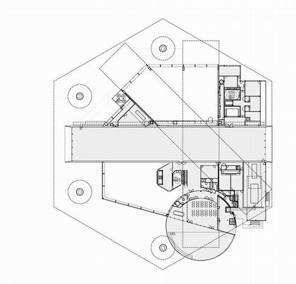
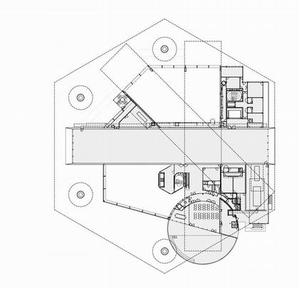
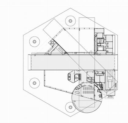
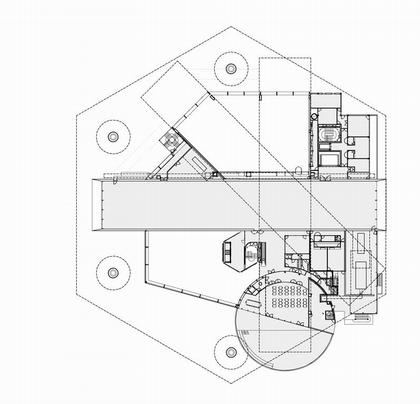
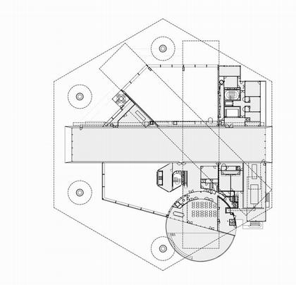
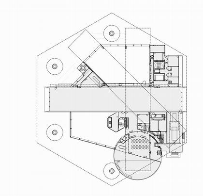
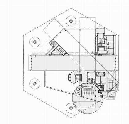
Центр Помпиду-Мец. План первого этажа
Центр Помпиду-Мец. План первого этажа
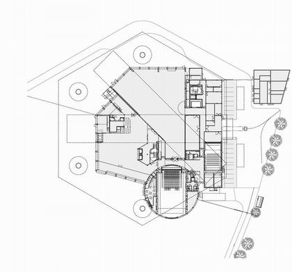
Центр Помпиду-Мец. План второго этажа
Центр Помпиду-Мец. План второго этажа
Центр Помпиду-Мец
Центр Помпиду-Мец