|
|
|
Размещено на портале Архи.ру (www.archi.ru)
|
|
15.06.2010
|
|
Лоскутное одеяло
|
Анна Герасименко
|
| Объект: |
|
«Лоскутки» - концепция доступного и экологического жилья для России
|
| Адрес: |
|
Россия,
|
|
Архитектор:
|
|
Андрей Асадов
|
|
Александр Асадов
|
|
Мастерская:
|
|
АБ ASADOV
|
|
Авторский коллектив:
|
|
А.Асадов, А.А.Асадов, Т.Чернова, А.Порошкин, А.Штанюк, М.Малеин; при участии: К.Сапричяна, М.Павловой, А.Санду, А.Зарубиной
|
|
Не секрет, что экономический кризис кардинально изменил приоритеты девелоперов и архитекторов. И если раньше предпочтение отдавалось масштабным проектам комплексной застройки, то сегодня на первый план выходят камерные экономичные объекты, способные создать комфортную среду обитания. Свой город под названием «Лоскутки» архитектурная мастерская Андрея Асадова предлагает построить именно из таких объемов, причем каждый из домиков можно видоизменять с учетом интересов будущих жителей.
Тема доступного жилья уже несколько лет является одной из центральных для профессионального архитектурного сообщества, причем не только России. Достаточно вспомнить Первую Московскую биеннале архитектуры, темой которой стал «вечный» вопрос «Как жить?», а центральной экспозицией – выставка проектов социального жилья Европы. В ногу с продвинутыми кураторами идут и госструктуры: так, в декабре 2009 года фонд РЖС проводит конкурс на лучший проект малоэтажного жилища экономического класса «Дом XXI века». Всего на конкурс было подано около восьмидесяти заявок. Среди представленных работ был и проект архитектурной мастерской А.Асадова под названием «Лоскутки». И хотя жюри в итоге исключило его из конкурсной программы, проект все равно был удостоен специальной премии за «новаторство и оригинальный подход к созданию жилой среды».
Своим появлением на свет «Лоскутки» обязаны серии проектов сборных домов, которую мастерская А.Асадова в свое время спроектировала для компании «Eternit». Позже, уже специально для конкурса «Дом XXI века», архитекторы сделали «апгрейд» данного проекта, а также разработали проекты таунхаусов и секционных малоэтажных домов и продемонстрировали, как из всех этих элементов можно «собрать» комфортную и визуально очень разнообразную среду обитания.
Прототипом градостроительной структуры этого проекта выступило пространство средневекового города, плотно застроенное, исчерченное узкими улочками и, что важнее всего, сомасштабное человеку. Генплан такого города действительно напоминает лоскутное одеяло, в котором каждый сегмент имеет собственный узор, но все вместе они складываются в единую картину. Этот принцип «градосложения» и был положен в основу проектируемого города – отсюда и его романтичное название «Лоскутки».
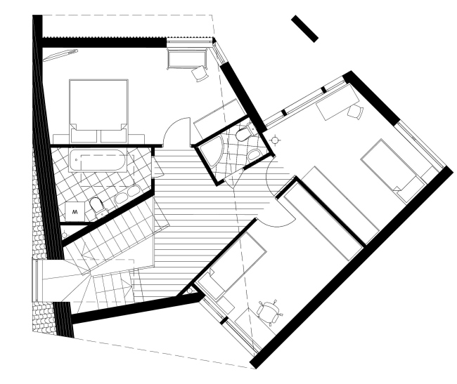
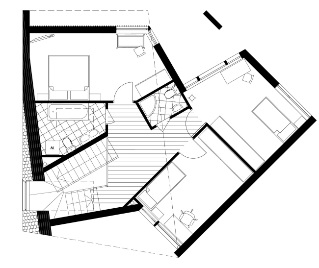
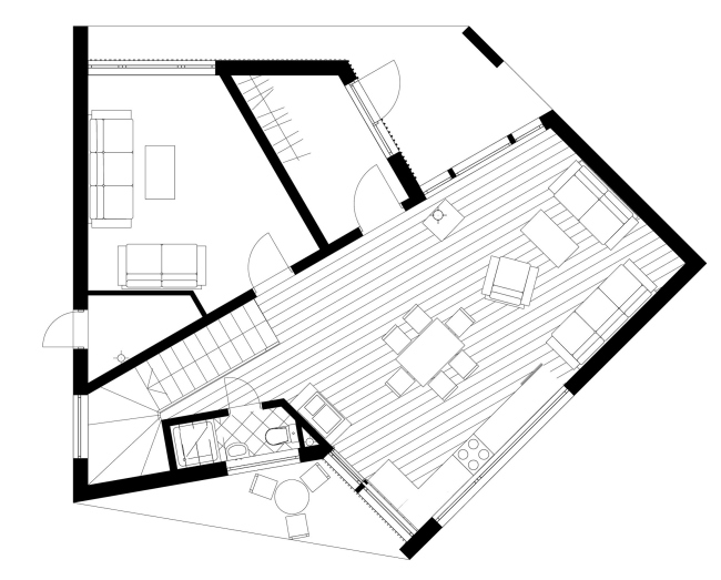
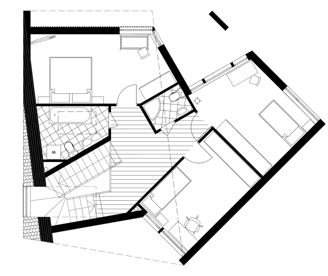
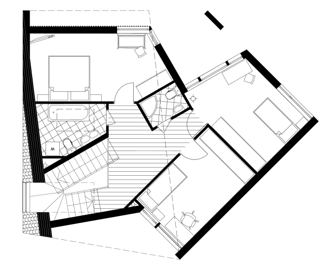
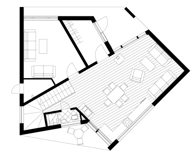
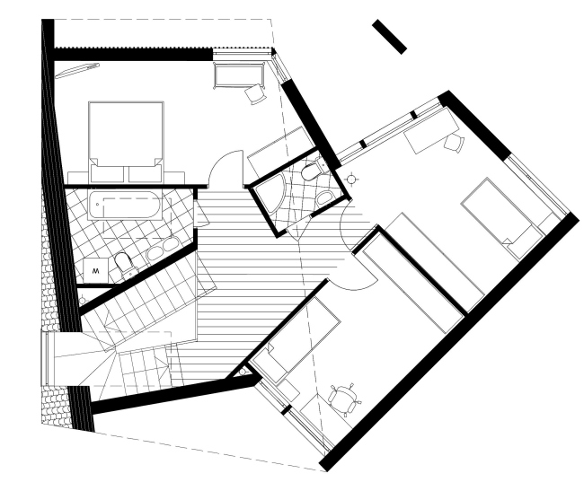
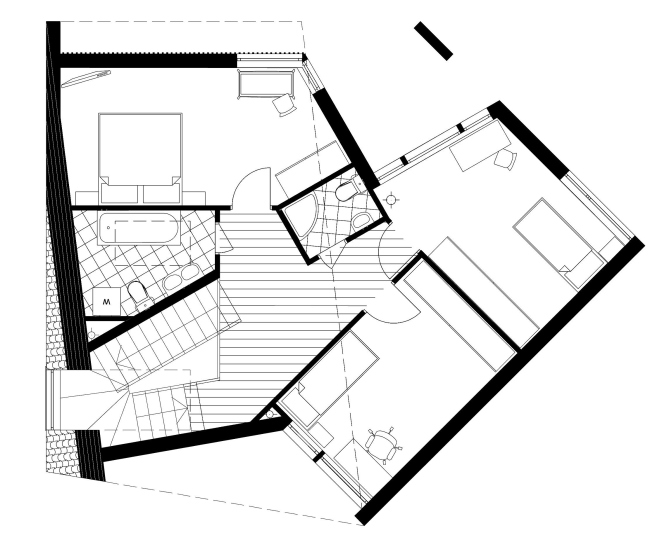
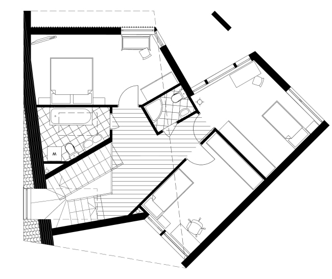
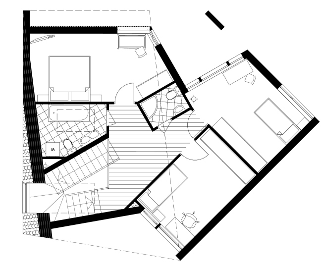
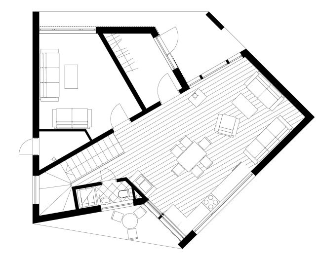
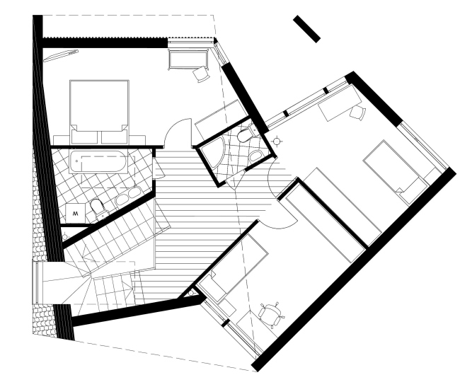
Отдельные участки с домами собираются в кварталы, которые в свою очередь концентрируются вокруг центрального общественного пространства, где располагаются школы, детские сады и небольшой парк с озером. Каждый квартал имеет смешанный тип застройки: по его периметру, граничащему с общественным центром, стоят малоэтажные секционные домики, за ними в глубине квартала – таунхаусы, еще дальше – отдельные дома. Все три типа домов созданы с использованием одного и того же модуля, правда, это отнюдь не банальный параллелепипед, как можно было бы предположить. Наоборот, архитекторы мастерской Асадова были верны себе и отдали предпочтение столь любимой ими нелинейной геометрии: их «дома XXI века» имеют, как минимум, пять углов, а в ряде случаев кровля переходит в стену. А для того, чтобы подобные пластические изыски не причиняли неудобства будущим жильцам, архитекторы самым тщательным образом продумали внутренние планировки, позволяющие использовать многоугольное пространство максимально рационально. И если в случае с коттеджами и таунхаусами заказчик может выбрать наиболее подходящий именно его семье вариант планировки, то секционные дома собраны, как конструктор, из квартир всех типов, причем все секции имеют различную отделку фасадов, а между собой соединены лестницами.
Естественно, будущие обитатели могут выбрать не только планировки, но и конструктивную схему своего дома. Несущий каркас может выполняться из дерева, металла, железобетона, а использование сборных систем значительно снижает себестоимость проектируемого жилья. Отдельный интерес представляет инженерное обеспечение «Лоскутков». Помимо традиционных технологий в них будут использоваться и столь востребованные сегодня энеросберегающие. Самыми простыми из них будут солнечные батареи и ветрогенераторы. Более продвинутая технология – это так называемый «пассивный дом», т.е.дом, который подогревается теплым воздухом и почти не требует отопления. Одним из самых сложных и дорогостоящих вариантов является дом с геотермальным насосом, который работает за счет разницы температур земли. Подобные «навороты», конечно, существенно удорожают строительство, однако такой поселок сможет быть полностью автономным, а значит, его можно будет построить в в любом удалении от цивилизации.
Основная идея «Лоскутков» заключается в том, что из нескольких базовых модулей можно составить множество жилых комбинаций, а различные варианты отделки фасадов и крыш еще больше разнообразят визуальную среду города и придадут каждому его объему индивидуальный характер. Конечно, идея градостроительного конструктора не нова, однако мастерская А.Асадова и не стремилась открыть Америку. Скорее, авторы проекта стремятся доказать, что в XXI веке термин «типовой» совсем необязательно означает «скучный», «некачественный», «худший». Наоборот, типовая жилая архитектура может быть и эстетически привлекательной, и комфортной в эксплуатации, и при этом бюджетной. Главное – ответственно подойти к выбору подходящего именно вам типа дома.
|
|