Размещено на портале Архи.ру (www.archi.ru)

14.05.2010

Вдоль дороги лента вьется

Анна Мартовицкая
Объект:
Многофункциональный спортивно-общественный центр в Олимпийской деревне «Новогорск»
Адрес:
Россия, Химки. Машкинское шоссе, микрорайон «Новогорск»
Мастерская:
Porotherm
Архитектуриум
Авторский коллектив:
Архитекторы: Биндеман В.Н., Бородин О.О., Буйнов Ф.В.

Архитектурной доминантой поселка «Олимпийская деревня Новогорск», спроектированного мастерской «Архитектуриум», станет многофункциональный комплекс, в который войдут школа, фитнес-центр, ресторан, тренировочный центр олимпийской сборной России по художественной гимнастике и даже несколько жилых домов. Этот сложносочиненный объем не только станет «въездными воротами» в новый поселок, но и шумозащитой для таунхаусов, расположенных в нем.

Многофункциональный спортивно-общественный центр в Олимпийской деревне «Новогорск». Проект, 2010 © Архитектуриум
Многофункциональный спортивно-общественный центр в Олимпийской деревне «Новогорск». Проект, 2010 © Архитектуриум
Комплекс состоит из пяти объемов, разных по площади и функции, и в плане напоминает перевернутую букву Ц, вертикальные «палочки» которой выведены с сильным наклоном влево, а в роли «хвостика» выступает полукруглая въездная арка в поселок. Своим главным фасадом этот объект обращен, конечно, к Машкинскому шоссе, ведущему в Москву, и со стороны трассы он воспринимается как очень длинная строка, накрытая волнообразной кровлей. Со стороны поселка картина совершенно иная: отсюда видны оба боковых крыла здания, каждое из которых имеет уступчатую форму и за счет этого образует сложные в плане внутренние дворики.  

Ядром многофункционального объема станет комплекс художественной гимнастики олимпийской сборной России под руководством известного тренера Ирины Винер. Визуально его легко вычислить – это многосветное пространство под самым крутым гребнем волны. Большепролетный зал спроектирован в соответствии с международными нормами на два гимнастических ковра (13 на 13 метров каждый), один из которых предназначен для тренировок, а второй для выступлений спортсменов. Тренировочная зона отделена от зрелищной занавесом и имеет также беговую дорожку и помосты для разминок гимнастов, зал же для выступлений окружен трибунами, рассчитанными более чем на 500 посетителей. По периметру залы огибают служебные помещения – комнаты тренеров, медкабинеты, раздевалки и т.д., – а сами они продуманы как универсальные пространства, которые в период отсутствия соревнований могут использоваться для проведения любых других мероприятий. Именно с этой целью архитекторы и занавес, и трибуны спроектировали трансформируемыми, а поверх гимнастических ковров нанесли «разметку» теннисных кортов. В этом же объеме со стороны поселка расположены гостиница для спортсменов, административные помещения центра гимнастики и кафе-столовая, а вот парадный вестибюль смещен правее, то есть ближе к центру всей композиции. Фактически вход в комплекс организован по диагонали относительно его основного объема, через двусветную стеклянную галерею, связывающую тренировочный центр и расположенный по соседству объем фитнес-клуба.

Эта расщелина между двумя зданиями не только обозначает границу между ними и визуально дробит слишком длинный объем, но и приоткрывает завесу тайны над внутрипоселкой жизнью: сквозь прозрачный пассаж жители «Олимпийской деревни» смогут видеть шоссе, а проезжающие по нему водители – мельком оценить ее структуру и ландшафт. К потолку галереи на тросах подвешена вип-трибуна, предназначенная для самых высокопоставленных поклонников художественной гимнастики. К ней ведет эффектная лестница.

Таким образом, центральное ядро комплекса сформировано спортивными учреждениями, причем одно из зданий предназначено для профессиональных спортсменов (настоящих и будущих), а второе для любителей фитнеса, не мечтающих о карьере олимпийцев, но желающих поддерживать себя в форме. Что же касается двух других функций, составивших спорту тесную компанию, то это центр образования «Академия детства, включающий в себя детский сад и среднюю школу, и малоэтажный жилой дом галерейного типа. О том, как замыслы девелопера росли в процессе работы над этим объектом, нагляднее всего можно судить, сравнивая первоначальный объем многофункционального комплекса и его последнюю реинкарнацию. И если два года назад Владимир Биндеман проектировал в составе этого объекта лишь детский сад и помещения администрации поселка, то теперь дополненный школой садик врезается на территорию «Олимпийской деревни» глубоким клином, еще один клин образован жилым домом, а службы эксплуатации поселка вынесены в галерею-арку.

Четыре корпуса учебного центра расположены с некоторым смещением относительно друг друга, своеобразной лесенкой, «ступенями» которой являются узкие пластины вертикальных коммуникаций. Корпус номер один, расположенный под волнообразной кровлей, приподнят над землей на массивные опоры, что позволило архитекторам увести входную зону подальше от шоссе. К трассе этот объем обращен ломаным стеклянным фасадом – поддерживая тему масштабного остекления, заданную спортивными центрами, проектировщики разместили в нем школьный актовый зал. Полностью остекленными выполнены и боковые фасады учебных корпусов, решенные как наклонные витражи из цветного стекла. Они выведены на большую высоту, так как одновременно служат парапетом для игровых площадок, расположенных на эксплуатируемых кровлях. Что и говорить, не самое традиционное решение школьного здания – подобное обилие стекла присуще, скорее, офисным комплексам, – но у архитекторов не было другого способа соблюсти нормы освещенности учебных классов. А для того, чтобы светлыми были не только помещения для занятий, но и рекреации, каждый из корпусов пробит световым колодцем – стеклянным цилиндром диаметром 3 метра, внутри которого архитекторы планируют поселить экзотические растения и птиц.  

Аналогичной «лесенкой» сгруппированы и корпуса малоэтажного жилого дома. Только, в отличие от образовательного центра, здесь нет разделяющих их пластин лестничных холлов – наоборот, все корпуса нанизаны на единую ось галереи, ведущей к центральному вестибюлю. Еще одно различие с соседним крылом заключается в том, что учебные корпуса постепенно понижаются в сторону поселка, то жилые дома, наоборот, подрастают с трех до шести этажей. И если основной объем многофункционального центра укрыт широкой лентой кровли, чье волнообразное движение недвусмысленно напоминает о самом красивом и романтичном снаряде художественной гимнастики, то крыши жилых секций, возвышающиеся одна над другой, это та же лента, но в движении, когда видишь ее лишь на долю секунды и не успеваешь осознать, где она окажется в следующий миг.

В работе над этим объектом «Архитектуриум» прошел тяжелое испытание столь модной сегодня многофункциональностью. Представить подобный гибрид– жилой дом, спортивная и обычная школы, фитнес-центр, детский сад, ресторан и офисы – в городе вряд ли возможно, однако на просторах Подмосковья он обретает все шансы на существование. И здание, ставшее результатом тесного взаимодействия архитекторов и девелоперов, обещает стать не только удобным, но и очень привлекательным внешне.
Многофункциональный спортивно-общественный центр в Олимпийской деревне «Новогорск». Проект, 2010 © Архитектуриум
Многофункциональный спортивно-общественный центр в Олимпийской деревне «Новогорск». Проект, 2010 © Архитектуриум
Многофункциональный спортивно-общественный центр в Олимпийской деревне «Новогорск». Проект, 2010 © Архитектуриум
Многофункциональный спортивно-общественный центр в Олимпийской деревне «Новогорск». Проект, 2010 © Архитектуриум
Многофункциональный спортивно-общественный центр в Олимпийской деревне «Новогорск». Проект, 2010 © Архитектуриум
Многофункциональный спортивно-общественный центр в Олимпийской деревне «Новогорск». Проект, 2010 © Архитектуриум
Многофункциональный спортивно-общественный центр в Олимпийской деревне «Новогорск». Проект, 2010 © Архитектуриум
Многофункциональный спортивно-общественный центр в Олимпийской деревне «Новогорск». Проект, 2010 © Архитектуриум
Многофункциональный спортивно-общественный центр в Олимпийской деревне «Новогорск». Проект, 2010 © Архитектуриум
Многофункциональный спортивно-общественный центр в Олимпийской деревне «Новогорск». Проект, 2010 © Архитектуриум
Многофункциональный спортивно-общественный центр в Олимпийской деревне «Новогорск». Проект, 2010 © Архитектуриум
Многофункциональный спортивно-общественный центр в Олимпийской деревне «Новогорск». Проект, 2010 © Архитектуриум
Многофункциональный спортивно-общественный центр в Олимпийской деревне «Новогорск». Проект, 2010 © Архитектуриум
Многофункциональный спортивно-общественный центр в Олимпийской деревне «Новогорск». Проект, 2010 © Архитектуриум
Многофункциональный спортивно-общественный центр в Олимпийской деревне «Новогорск». Проект, 2010 © Архитектуриум
Многофункциональный спортивно-общественный центр в Олимпийской деревне «Новогорск». Проект, 2010 © Архитектуриум
Многофункциональный спортивно-общественный центр в Олимпийской деревне «Новогорск». Проект, 2010 © Архитектуриум
Многофункциональный спортивно-общественный центр в Олимпийской деревне «Новогорск». Проект, 2010 © Архитектуриум
Многофункциональный спортивно-общественный центр в Олимпийской деревне «Новогорск». Проект, 2010 © Архитектуриум
Многофункциональный спортивно-общественный центр в Олимпийской деревне «Новогорск». Проект, 2010 © Архитектуриум
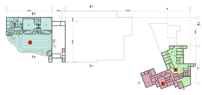
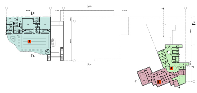
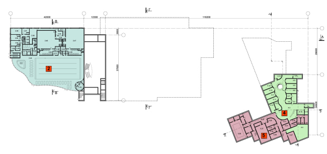
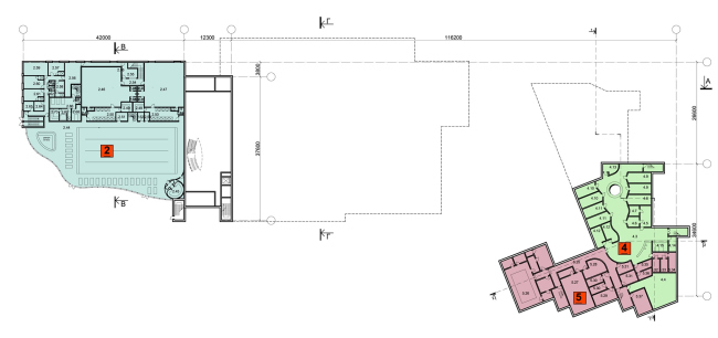
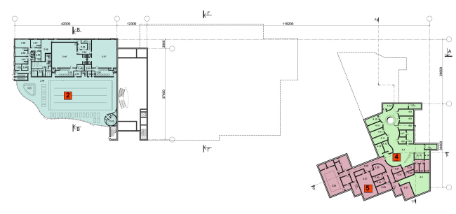
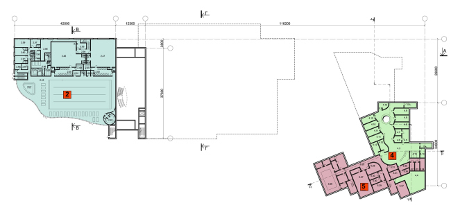
Многофункциональный спортивно-общественный центр в Олимпийской деревне «Новогорск». План 1 этажа. Проект, 2010 © Архитектуриум
Многофункциональный спортивно-общественный центр в Олимпийской деревне «Новогорск». План 1 этажа. Проект, 2010 © Архитектуриум
Многофункциональный спортивно-общественный центр в Олимпийской деревне «Новогорск». План 2 этажа. Проект, 2010 © Архитектуриум
Многофункциональный спортивно-общественный центр в Олимпийской деревне «Новогорск». План 2 этажа. Проект, 2010 © Архитектуриум
Многофункциональный спортивно-общественный центр в Олимпийской деревне «Новогорск». План 3 этажа. Проект, 2010 © Архитектуриу
Многофункциональный спортивно-общественный центр в Олимпийской деревне «Новогорск». План 3 этажа. Проект, 2010 © Архитектуриу
Многофункциональный спортивно-общественный центр в Олимпийской деревне «Новогорск». План 4 этажа. Проект, 2010 © Архитектуриум
Многофункциональный спортивно-общественный центр в Олимпийской деревне «Новогорск». План 4 этажа. Проект, 2010 © Архитектуриум
Многофункциональный спортивно-общественный центр в Олимпийской деревне «Новогорск». План 5 и 6 этажей. Проект, 2010 © Архитектуриум
Многофункциональный спортивно-общественный центр в Олимпийской деревне «Новогорск». План 5 и 6 этажей. Проект, 2010 © Архитектуриум
Многофункциональный спортивно-общественный центр в Олимпийской деревне «Новогорск». План подвального этажа. Проект, 2010 © Архитектуриум
Многофункциональный спортивно-общественный центр в Олимпийской деревне «Новогорск». План подвального этажа. Проект, 2010 © Архитектуриум
Многофункциональный спортивно-общественный центр в Олимпийской деревне «Новогорск». План цокольного этажа. Проект, 2010 © Архитектуриум
Многофункциональный спортивно-общественный центр в Олимпийской деревне «Новогорск». План цокольного этажа. Проект, 2010 © Архитектуриум
Многофункциональный спортивно-общественный центр в Олимпийской деревне «Новогорск». Разрезы. Проект, 2010 © Архитектуриум
Многофункциональный спортивно-общественный центр в Олимпийской деревне «Новогорск». Разрезы. Проект, 2010 © Архитектуриум