Размещено на портале Архи.ру (www.archi.ru)

30.04.2010

Шире круг

Анна Мартовицкая
Объект:
Дворец творчества школьников в городе Астана, республика Казахстан
Адрес:
Казахстан, Астана.
Архитектор:
Никита Явейн
Мастерская:
Студия 44
Авторский коллектив:
Конкурсный проект
Архитекторы: Н. И. Явейн, С. И. Аксёнов, В. А. Зенкевич, И. В. Кожин, Г. С. Снежкин, при участии Н. Н. Архиповой, М. С. Виноградовой, И. С. Григорьева, В. С. Жуковой, Е. В. Купцовой, К. О. Счастливцевой, А. П. Яр-Скрябина
Визуализация: Ю. Н. Ашметьев
Макет: Я. С. Ициксон
Конструктор: В. И. Герштейн

Проектная документация стадий П и РД (совместно со специалистами ТОО «Базис – Проект LTD» (Алма-Ата):
Архитекторы: Н. А. Смолин, Я. В. Смолина, Д. Д. Насонова, Д. А. Гордина, Н. И. Познянская, И. В. Бритиков, М. Н. Замёлова
Интерьеры: И. В. Кожин, М. С. Виноградова, Е. А. Новосадюк

На прошлой неделе в Астане были подведены итоги международного архитектурного конкурса на проект Дворца творчества школьников. Лучшей в этом состязании была признана работа архитектурной мастерской «Студия 44», в которой мотивы национального казахского зодчества органично сочетаются с эстетикой супрематизма.

Дворец творчества школьников в городе Астана, республика Казахстан © Архитектурное бюро «Студия 44»
Дворец творчества школьников в городе Астана, республика Казахстан © Архитектурное бюро «Студия 44»
О конкурсе на проект Дворца творчества школьников, который должен быть построен в одном из создаваемых с нуля жилых районов столицы Казахстана, мы уже писали, рассказывая о новом проекте мастерской А.Асадова. И если московские архитекторы сделали ставку на яркую колористику, то петербуржцы черпали вдохновение, прежде всего, в традиционном зодчестве Казахстана, позаимствовав из него ключевые композиционные приемы и орнаментику. Впрочем, это отнюдь не означает, что «Студия 44» предлагает построить для школьников Астаны гигантскую юрту. Скорее, архитекторы разобрали это сооружение на отдельные протоэлементы, каждый из которых затем переосмыслили в рамках современной эстетики и требуемого функционала.

Издревле ритуал обустройства казахов в бескрайней степи начинался с очерчивания на земле круга – именно эта геометрическая фигура и легла в основу данного проекта. Для жителей Казахстана она олицетворяет собой правильно организованное, гармоничное пространство, и архитекторы решили, что именно круглый дом будет наиболее органичен ландшафту Астаны. Правда, на деле, после выполнения всех требований технического задания по необходимым функциям у них получился не дом, а целый городок. Авторы превратили Дворец творчества в россыпь отдельных объемов, а чтобы придать им общность, накрыли их огромным диском (диаметр 156 м, высота 8 м). Этот диск, к небу обращенный озелененной поверхностью, а к земле панелями из нержавеющей стали с золоченым нитрид-титановым покрытием, можно считать далеким потомком круглого шанырака, венчающего казахскую юрту. Как и традиционный шанырак, он покоится на трех опорах и служит проницаемой мембраной между небом и внутренним миром здания. В юрте отверстие в кровле было одно – оно помещалось точно над очагом, служило для проветривания и освещения, символизировало связь с небом и с солнцем. В круглой крыше Дворца творчества школьников отверстий много, они играют роль световых фонарей, колодцев и даже шахт, проводящих солнечные лучи сквозь этажи вглубь здания.

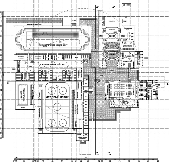
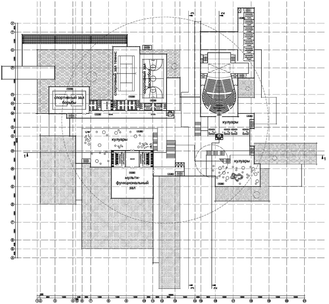
Как уже говорилось, архитекторам пришлось немало поломать голову над тем, как уместить под одной кровлей более десяти различных функций. Фактически под круглым кровом расположены четыре разных комплекса – спортивный, театрально-зрелищный и музейно-выставочный, а также офисы администрации, библиотека и обеденный зал. Функциональные группы разобраны на составляющие их «первоэлементы» (каток, музей, бассейн, выставочный зал и т.д.), каждый из которых упакован в свой собственный объем. Разные по площади, они имеют одинаковую форму параллелепипеда, и, будучи покрытыми орнаментами, напоминают казахские войлочные чемоданы (шабаданы). И как в кочевой традиции шабаданы внутри юрты составлялись один на другой, так и эти объемы образуют четыре уступчатых «горы». Две из них расположены слева от главного входа во Дворец и вмещают залы спортивного комплекса. Справа же от главного входа, по традиции обращенного на восток, находятся  музейно-выставочный комплекс и столовая. На самом почетном месте – в глубине здания напротив входа – помещен  театр. Прямоугольные объемы первых трех этажей здания то приближаются к красным линиям квартала застройки, местами консольно нависая над ними, то отступают вглубь, образуя уютные курдонеры. Подобный прием «сборки» комплекса из отдельных элементов зрительно скрадывает его истинные габариты, а уличному фронту придает динамику и живописность. А укрывающий здание диск сплачивает конгломераты из прямоугольных блоков воедино и подхватывает линию горизонта окружающей застройки.

Трехэтажное пространство между «горами шабаданов», укрытое диском, представляет собой освещенный верхним светом атриум. Его композиционный центр находится точно под главным световым отверстием и окружен открытыми лестницами, по которым с первого этажа можно подняться на террасы, откуда хорошо видно все происходящее под крышей Дворца. Внутри же самого диска расположена клубная часть с аудиториями для занятий, планировка которой воспроизводит положенный в основу всего комплекса принцип группировки функций в отдельные анклавы. Так, биологические классы окружают зимний сад, лаборатории научно-технического творчества расположены кольцом вокруг Планетария, классы для хорового пения – вокруг открытого двора.

В противовес плотно застроенной центральной части квартала по периметру участка размещены, в основном, открытые сооружения: парковки, стадион с футбольным полем, баскетбольные и волейбольные площадки, теннисный корт, а также благоустроенная площадь фонтаном около главного входа. Эти объекты хоть и занимают в совокупности значительную по площади территорию, но создают необходимые воздушные разрывы между комплексом Дворца творчества школьников и жилой застройкой, которая в будущем обступит его со всех сторон.

В гигантскую площадку для игр и занятий на свежем воздухе превращается и эксплуатируемая кровля комплекса. Ее плоскость, как уже говорилось выше, полностью озеленяется, и над образующимся гигантским газоном возвышаются лишь купола планетария и зимнего сада, а также несколько зенитных фонарей и башня обсерватории. Пожалуй, больше всего эта картина напоминает о степных пейзажах, которые теперь, правда, окажутся не за пределами каменных джунглей, а внутри них и одновременно – над ними.

Конечно, многочисленные круги, использованные в композиции этого комплекса, будь то гигантский диск кровли или вырезанные в нем световые отверстия, и их сочетание со строгим геометризмом основных объемов, не могут не напоминать об эстетике супрематизма. Но в проекте Дворца творчества школьников архитекторам «Студии 44» удалось не просто переосмыслить идеи русского авангарда, но и органично увязать их с казахскими культурными и домостроительными традициями. И если орнаментация фасадов и ромбовидный рисунок жалюзи, напоминающий решетчатую структуру кереге – сборно-разборных стен юрты – это очевидные и сразу считываемые аллюзии, то глубинные параллели, затрагивающие сокровенную область планировки и восприятия пространства, превращают этот современный комплекс в увлекательную головоломку со множеством смыслов.
Дворец творчества школьников в городе Астана, республика Казахстан © Архитектурное бюро «Студия 44»
Дворец творчества школьников в городе Астана, республика Казахстан © Архитектурное бюро «Студия 44»
Дворец творчества школьников в городе Астана, республика Казахстан © Архитектурное бюро «Студия 44»
Дворец творчества школьников в городе Астана, республика Казахстан © Архитектурное бюро «Студия 44»
Дворец творчества школьников в городе Астана, республика Казахстан © Архитектурное бюро «Студия 44»
Дворец творчества школьников в городе Астана, республика Казахстан © Архитектурное бюро «Студия 44»
Дворец творчества школьников в городе Астана, республика Казахстан © Архитектурное бюро «Студия 44»
Дворец творчества школьников в городе Астана, республика Казахстан © Архитектурное бюро «Студия 44»
Дворец творчества школьников в городе Астана, республика Казахстан © Архитектурное бюро «Студия 44»
Дворец творчества школьников в городе Астана, республика Казахстан © Архитектурное бюро «Студия 44»
Дворец творчества школьников в городе Астана, республика Казахстан © Архитектурное бюро «Студия 44»
Дворец творчества школьников в городе Астана, республика Казахстан © Архитектурное бюро «Студия 44»
Дворец творчества школьников в городе Астана, республика Казахстан © Архитектурное бюро «Студия 44»
Дворец творчества школьников в городе Астана, республика Казахстан © Архитектурное бюро «Студия 44»
Дворец творчества школьников в городе Астана, республика Казахстан © Архитектурное бюро «Студия 44»
Дворец творчества школьников в городе Астана, республика Казахстан © Архитектурное бюро «Студия 44»
Дворец творчества школьников в городе Астана, республика Казахстан © Архитектурное бюро «Студия 44»
Дворец творчества школьников в городе Астана, республика Казахстан © Архитектурное бюро «Студия 44»
Дворец творчества школьников в городе Астана, республика Казахстан © Архитектурное бюро «Студия 44»
Дворец творчества школьников в городе Астана, республика Казахстан © Архитектурное бюро «Студия 44»
Дворец творчества школьников в городе Астана, республика Казахстан © Архитектурное бюро «Студия 44»
Дворец творчества школьников в городе Астана, республика Казахстан © Архитектурное бюро «Студия 44»
Дворец творчества школьников в городе Астана, республика Казахстан © Архитектурное бюро «Студия 44»
Дворец творчества школьников в городе Астана, республика Казахстан © Архитектурное бюро «Студия 44»
План первого этажа
План первого этажа
План второго этажа
План второго этажа
План третьего этажа
План третьего этажа
План верхнего уровня
План верхнего уровня