Размещено на портале Архи.ру (www.archi.ru)

13.04.2010

Доброе дело со второй попытки

Объект:
Бумажный концертный зал в Л′Аквиле
Адрес:
Италия, None, Л'Аквила.

Шигеру Бан построит временное здание концертного зала для пострадавшего от землетрясения итальянского города Аквила.

Бумажный концертный зал в Л′Аквиле
Бумажный концертный зал в Л′Аквиле
Архитектор, известный своими экологически чистыми и легкими для реализации проектами для пострадавших от стихийных бедствий районов, представил свой первый план городскими властям летом 2009: тогда речь шла не только о концертном зале, но и новом корпусе консерватории. Проект должен был использовать металлический каркас недостроенного сооружения, бюджет строительства наполовину обеспечивался японским правительством в рамках гуманитарной помощи, вторую половину Бан собирался собрать сам, также отказавшись от гонорара. В реализации проекта в качестве рабочих должны были принять участие студенты архитектурных факультетов местного и зарубежных университетов. Здание должны были построить в июле – сентябре 2009, а на ноябрь было намечено открытие.

Но затем начались сложности. По словам профессора университета Аквилы Альдо Бенедетти (Aldo Benedetti), участвовавшего в подготовке плана, городские власти проявили полное равнодушие к проекту Бана, в вопросах согласования царила полная анархия, а со стороны сил Гражданской обороны, занимающихся восстановлением города, никто официально проект не курировал, поэтому строительство так и не началось.

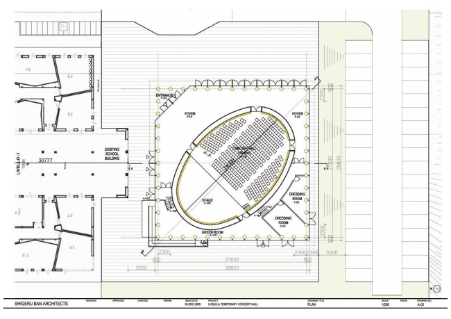
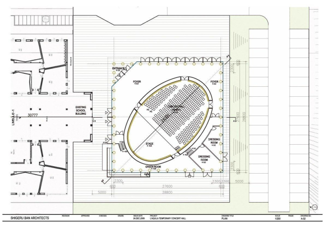
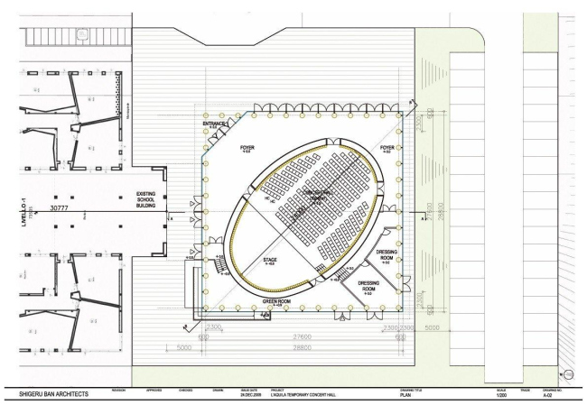
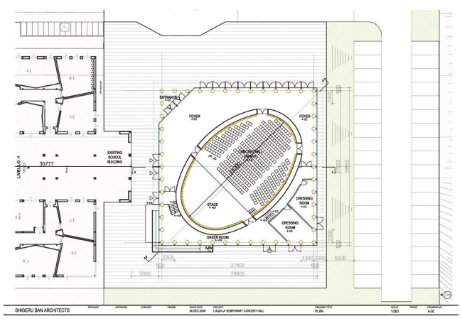
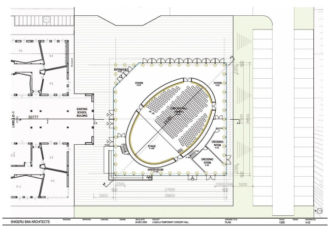
Но Шигеру Бан не отказался от своих намерений: он представил властям упрощенный проект – только концертного зала (зданием консерватории будет заниматься ГО по собственному плану), причем не на 600 мест, как предполагалось первоначально, а всего на 230. Это будет квадратная в плане постройка со стороной 25 м, с металлической пирамидальной крышей, опирающейся на картонные круглые опоры, и со стенами из прозрачного пластика. Во внутреннее пространство будет вписан овальный зал со стенами из металлического каркаса, заполненного мешками с песком. Снаружи он будет обернут пластиковым «акустическим занавесом». Пространство между стенами зала и внешними стенами постройки займут фойе и гримерные.

На строительстве будут заняты студенты местного и Гарвардского университетов, а также токийского университета Кэйо. Реализовать проект планируется в этом году. После окончания использования постройка будет разобрана и перенесена в другое место.
Бумажный концертный зал в Л′Аквиле
Бумажный концертный зал в Л′Аквиле
Бумажный концертный зал в Л′Аквиле
Бумажный концертный зал в Л′Аквиле
Бумажный концертный зал в Л′Аквиле
Бумажный концертный зал в Л′Аквиле
Бумажный концертный зал в Л′Аквиле
Бумажный концертный зал в Л′Аквиле
Бумажный концертный зал в Л′Аквиле
Бумажный концертный зал в Л′Аквиле
Бумажный концертный зал в Л′Аквиле
Бумажный концертный зал в Л′Аквиле