Размещено на портале Архи.ру (www.archi.ru)

28.04.2010

Каждый охотник желает знать...

Анна Герасименко
Объект:
«Палитра» - проект Дворца творчества школьников в Астане
Адрес:
Казахстан, Астана.
Мастерская:
АБ ASADOV
ГрандПроектСити
Проект КС (АНО «Проект КС», Архитектурная мастерская Карена Сапричяна)
Авторский коллектив:
А.Асадов, К.Сапричян, А.А.Асадов, Т.Чернова, И.Коренев, при участии О.Шаниной, О.Фомичевой, Н.Самодуровой. Менеджер проекта - Т.Петрова

«Астана – город будущего» – под таким девизом уже более десяти лет строится новая столица Казахстана. К ее нынешнему облику приложили руку самые известные мировые архитекторы – Кисё Курокава, Норман Фостер, Манфреди Николетти, бюро BIG. Институт Генплана Астаны не останавливается на достигнутом и ежегодно проводит новые международные архитектурные конкурсы. В этом году к участию в одном из них – на проект Дворца творчества школьников – была приглашена мастерская А.Асадова. Свой комплекс, составленный из разноцветных лучей-корпусов, архитекторы назвали «Палитра».

«Палитра» – проект Дворца творчества школьников в Астане © Архитектурное бюро Асадова
«Палитра» – проект Дворца творчества школьников в Астане © Архитектурное бюро Асадова
Чуть более чем за десять лет своего существования столица Казахстана Астана успела прославиться на весь мир. За поистине исполинский размах строительства и страсть к современной архитектуре новую столицу даже прозвали «Степным Вавилоном». Первым, кто принял участие в создании Астаны, был японский архитектор Кисё Курокава, разработавший генплан города с эффектной центральной осью, на которой расположены Президентский дворец и символ независимости Казахстана – башня Байтерек. Сейчас эту ось с двух сторон замыкают пирамиды Нормана Фостера – Дворец мира и согласия и торгово-развлекательный центр «Хан шатыры». Реализуются и другие «громкие» проекты – например, Оперный театр по проекту итальянского архитектора Манфреди Николетти и Президентская библиотека датского бюро BIG. Складывается впечатление, что Астану мировой экономический кризис обошел стороной: только в этом году в столице Казахстана уже было проведено семь международных архитектурных конкурсов. Один из них – на проект Дворца творчества школьников – и привлек в город московскую архитектурную мастерскую А.Асадова.

Участок, выделенный под строительство Дворца, расположен в одном из новых районов Астаны, достаточном удаленном от центра и по большому счету только начинающем застраиваться. Благодаря этому архитекторы оказались в ситуации практически полной творческой свободы: при работе над проектом над ними не довлели ни нормативы плотности застройки, ни уже сложившийся облик окружающей среды. Ее, то есть среды, еще попросту нет, и, возможно, теперь на то, какой именно она станет, напрямую повлияет будущий Дворец творчества.

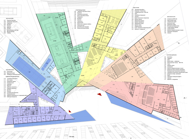
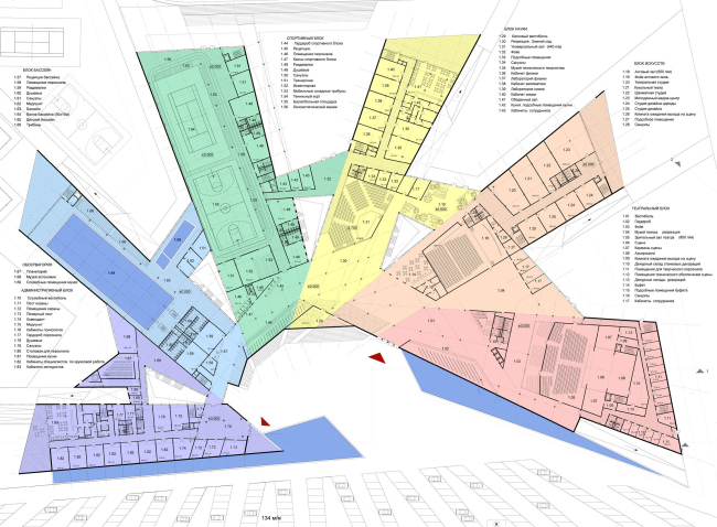
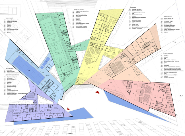
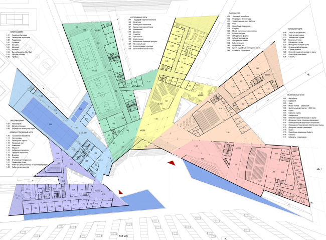
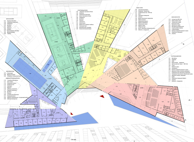
Планировку Дворца архитекторы сделали максимально свободной и динамичной. Здание состоит из шести корпусов, веером сгруппированных вокруг небольшой пешеходной площади. В плане комплекс напоминает нарисованное ребенком солнышко, впрочем, сами архитекторы назвали свой проект «Палитра», сравнив разноцветные корпуса с расположением красок на палитре художника.

Дворец творчества разделен на шесть отдельных объемов совсем не случайно. Техническое задание предписывало спроектировать для детей по-настоящему многофункциональный комплекс, в состав которого вошли бы и спортивный центр, и творческие студии, и научные лаборатории, и архитекторы это требование выполнили. Однако меньше всего они хотели «набивать» всеми функциями один большой сложносочиненный объем, справедливо полагая, что в таком случае вряд ли получится создать понятную, сразу считываемую ребенком планировку внутренних помещений. Сооружение же шести невысоких зданий позволили превратить дворец творчества в целый детский городок с собственной центральной площадью и внутренними улочками.

В отделке фасадов всех корпусов доминирует белый цвет, а внутреннее пространство каждого из них оформлено одним из шести цветов радуги (седьмой использован в оформлении интерьеров башни обсерватории). Яркие тона обязательно «пробиваются» на фасады, так что блоки отличаются друг от друга не только по форме, но и по колористике, вместе образуя очень пеструю, но легкую для запоминания и ориентации карту.

Так, театральный блок – самый крайний справа от входа – выкрашен в красный цвет, который «выходит» на фасад через высокие окна, разрезающие блок по вертикали. За ним следует оранжевый корпус искусства, в котором находятся детские художественные студии. Центральный блок посвящен науке и маркирован желтым цветом. В нем располагаются кабинеты для научных кружков и лаборатории. Следующие за ним два корпуса отведены для занятий физкультурой и водными видами спорта и обозначены соответственно зеленым и голубым цветами. Зеленый блок, вместивший в себя несколько спортивных залов, также имеет выход на задний двор, где расположился открытый спортивный стадион. Последний корпус предназначен для администрации Дворца творчества школьников и обозначен темно-синим цветом, который также фрагментарно «выплеснут» на фасад.

Небольшая площадь перед входным вестибюлем частично решена как открытый амфитеатр, предназначенный для общения и игр детей, а частично как крытая пешеходная галерея. Дело в том, что в Астане довольно суровый климат: летом температура поднимается до +40 градусов, зимой запросто может опуститься до -40. Чтобы защитить маленьких посетителей Дворца творчества, архитекторы спроектировали над амфитеатром навес, состоящих из ломаных разноцветных плоскостей, напоминающих витражное стекло. Для прогулок же весной и осенью между корпусами разбиты небольшие парки, отличающиеся друг от друга планом и рисунком ландшафта. Кровли корпусов также озеленяются и превращаются в прогулочные зоны, а на крыше театрального блока устроен еще один маленький амфитеатр – для камерных представлений под открытым небом. Вертикальной доминантой этого верхнего уровня служит башня с круглым куполом обсерватории, расположенная рядом с административным блоком.

Дворец творчества школьников – типология, хороша знакомая каждому гражданину бывшего Советского союза. И хотя сегодня многие усилия по культпросвету и воспитанию творческой молодежи вызывают лишь скептическую улыбку, идею создания районных центров дополнительного образования нельзя не признать сколь правильно, столь и нужной. Отдельной похвалы заслуживает то, что подобный центр будет создаваться по проекту, который будет выбран в результате международного архитектурного конкурса. Яркое и динамичное решение комплекса, предложенное мастерской Асадова, способно сделать процесс эстетического воспитания подрастающего поколения не только очень комфортным и интересным, но и наглядным.
Александр Асадов, Карен Сапричян, Андрей Асадов
Александр Асадов, Карен Сапричян, Андрей Асадов
«Палитра» – проект Дворца творчества школьников в Астане © Архитектурное бюро Асадова
«Палитра» – проект Дворца творчества школьников в Астане © Архитектурное бюро Асадова
«Палитра» – проект Дворца творчества школьников в Астане © Архитектурное бюро Асадова
«Палитра» – проект Дворца творчества школьников в Астане © Архитектурное бюро Асадова
«Палитра» – проект Дворца творчества школьников в Астане © Архитектурное бюро Асадова
«Палитра» – проект Дворца творчества школьников в Астане © Архитектурное бюро Асадова
«Палитра» – проект Дворца творчества школьников в Астане © Архитектурное бюро Асадова
«Палитра» – проект Дворца творчества школьников в Астане © Архитектурное бюро Асадова
«Палитра» – проект Дворца творчества школьников в Астане © Архитектурное бюро Асадова
«Палитра» – проект Дворца творчества школьников в Астане © Архитектурное бюро Асадова
«Палитра» – проект Дворца творчества школьников в Астане © Архитектурное бюро Асадова
«Палитра» – проект Дворца творчества школьников в Астане © Архитектурное бюро Асадова
«Палитра» – проект Дворца творчества школьников в Астане © Архитектурное бюро Асадова
«Палитра» – проект Дворца творчества школьников в Астане © Архитектурное бюро Асадова
«Палитра» – проект Дворца творчества школьников в Астане © Архитектурное бюро Асадова
«Палитра» – проект Дворца творчества школьников в Астане © Архитектурное бюро Асадова
«Палитра» – проект Дворца творчества школьников в Астане © Архитектурное бюро Асадова
«Палитра» – проект Дворца творчества школьников в Астане © Архитектурное бюро Асадова
«Палитра» – проект Дворца творчества школьников в Астане © Архитектурное бюро Асадова
«Палитра» – проект Дворца творчества школьников в Астане © Архитектурное бюро Асадова