Размещено на портале Архи.ру (www.archi.ru)

09.04.2010

Жемчужина Дравы

Анна Мартовицкая
Объект:
Конкурсный проект нового здания Мариборской художественной галереи (Словения)
Адрес:
Словения, Марибор.
Мастерская:
Архитектуриум
Авторский коллектив:
Липранди Д.Д., Биндеман В.Н., Стаунэ Е.С., Семенов Ю.Г. при участии Зинюковой О.П.

В словенском городе Марибор завершился международный открытый конкурс, предметом которого стали сразу три объекта – набережная реки Драва, пешеходный мост и новое здание художественной галереи. В этом состязании приняли участие более 400 архитекторов, каждый из которых имел право представить как один проект, так и несколько. Мастерская Владимира Биндемана «Архитектуриум» наиболее интересной для себя сочла возможность поработать над обликом художественной галереи и культурно-выставочный центр трактовала в виде гигантского эллипса, бережно вписанного во вновь создаваемый квартал.

Марибор – второй по величине и значению город Словении. Он раскинулся по обоим берегам полноводной реки Драва, всего в 16 километрах от границы с Австрией, и заслуженно считается важнейшим промышленным, экономическим и культурным центром страны. Не последним источников дохода для Марибора является въездной туризм – ежегодно город, знаменитый своими средневековыми замками, винодельческими традициями и расположенным по соседству горнолыжным курортом, посещают десятки тысяч человек. Однако всего через два года туристический поток обещает многократно возрасти – в 2012 году Марибор станет Культурной столицей Европы.

Традиция выбирать культурной столицей года один из городов стран Евросоюза была придумана в конце 1980-х и стала очень популярна. Для туристов это уникальный шанс увидеть в одном городе выступления лучших мировых коллективов и самые интересные выставки, для городов – повод получить дополнительные инвестиции и существенно обновить свои культурные территории. Скажем, в Порту именно по случаю приобретения статуса культурной столицы Европы был построен знаменитый Дом музыки. Словенский Марибор решил от предшественников не отставать и в начале этого года объявил открытый международный конкурс сразу на три объекта, призванных стать символами города в 2012 году, – набережную, пешеходный мост и галерею.

Техническое задание, разработанное при участии Международного союза архитекторов и муниципалитета Марибора, отличалось максимальной подробностью. В частности, новое здание художественной галереи должно было не просто стать вторым корпусом существующего музея, но своего рода штаб-квартирой Культурной столицей Европы 2012 года, а после этого на многие годы вперед сохранить статус одного из основных центров городского притяжения, превратиться в уникальный семейный культурно-досуговый центр, в котором посетители любого возраста найдут для себя познавательные и творческие занятия. Были сформулированы и пожелания к архитектуре: новая художественная галерея должна быть открытой и легкодоступной, обладать динамичной формой и ультрасовременной технологической «начинкой». Не в последнюю очередь именно поэтому под галерею был отведен целый квартал в самом центре Марибора, ограниченный улицами Ribiška, Koroška Cesta, Pristaniška и набережной Дравы. Техническое задание предписывало поместить в центр композиции выставочный комплекс общей площадью 8 тысяч квадратных метров, и дополнить его музеем для детей, творческими мастерскими, центром современной архитектуры, открытыми общественными зонами и подземной парковкой.

Имеющийся квартал коллектив Владимира Биндемана разделил по диагонали и на этой условной прямой, соединившей перекресток улиц Ribiška, Koroška Cesta и перекресток улиц Pristaniška и Vojašniška, разместил основное экспозиционное пространство. Оно заключено в прозрачный сферический объем, эдакий дирижабль, окруженный вспомогательными помещениями. Эти помещения объединены в два корпуса, которые к улицам обращены традиционными прямоугольными объемами, а к сфероиду – плавными изгибами, в плане напоминающими кисти рук, словно бережно поддерживающими хрупкую субстанцию. С выставочным пространством «руки» соединены переходами на различных этажах, так что связь всех помещений комплекса осуществляется через это центральное прозрачное ядро. Кровля правой «руки» представляет собой гигантский пешеходный пандус, левый же корпус имеет плоскую неэксплуатируемую крышу, на которой размещены устройства для сбора дождевой воды и солнечные батареи, аккумулирующие энергию для нужд здания. В облицовке самого сфероида архитекторы предлагали использовать специальное матовое покрытие из энергосберегающего стекла с функцией затемнения, которое позволило бы уберечь произведения искусства от слишком интенсивного солнечного света.

Своим главным фасадом  комплекс раскрыт на набережную Дравы и исторический центр города. «Руки», поддерживающие сфероид, расходятся в стороны, словно приглашая посетителей и прогуливающихся по набережной туристов пройти на внутреннюю площадь музея или подняться по открытой лестнице на последний выставочный этаж и полюбоваться прекрасными видами, открывающимися с высоты 29 метров. С противоположной от набережной стороны рядом с комплексом разбит ландшафтный и скульптурный парк, играющий одновременно роль «зеленых легких» галереи и места для размещения экспозиций под открытым небом. Фасад, обращенный к парку, решен как вертикальный сад – архитекторы стремились усилить впечатление слияния здания с окружающей природой, и в нем сделана проходная арка, связывающая сквер и внутреннюю площадь. Попасть на площадь можно и с перпендикулярных набережной улиц Ribiška и Pristaniška, так что доступ в сердце музейного комплекса обеспечен со всех четырех сторон, и главное требование технического задания о доступности нового культурного центра из разных точек города выполнено.

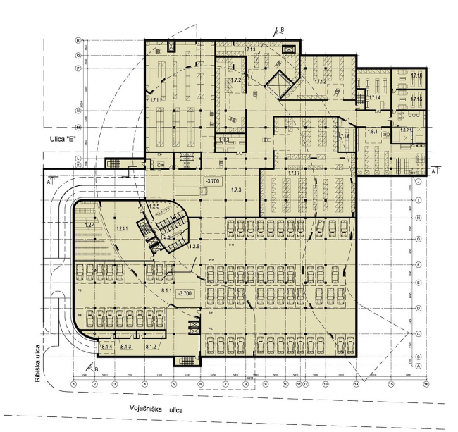
Все выставочные пространства сгруппированы в сфероиде, подвешенном за счет ферм-переходов над музейной площадью. Архитекторы спроектировали пять выставочных этажей, первые два из которых предназначены для постоянной экспозиции, два последующих для временных выставок, а самый верхний будет превращен в зал, посвященный истории и генплану Марибора. Сквозь «дирижабль» пропущена спираль пандуса, который позволяет перемещаться внутри выставочных пространств, минуя боковые переходы. Все остальные функции, такие как детский центр, творческие мастерские и Архитектурный центр расположены в отдельных корпусах, каждый из которых имеет самостоятельный вход, но соединен со сфероидом галереями на разных уровнях. А вот хранилища музея расположены на подземном этаже, на одном уровне с парковкой. Подземный этаж устроен под всеми корпусами галереи, и за счет перепада рельефа его высота меняется от 3 метров на парковке до 6 метров в хранилищах.

Двухпутная рампа для доставки экспонатов организована со стороны улицы Ribiška, там же сделан заезд в подземную парковку. А вот главный вход для пешеходов расположен со стороны набережной, в корпусе А, в плане напоминающем прямоугольник с одним скругленным углом. Для того чтобы лишний раз подчеркнуть открытость галереи городу, на уровне первого этажа стены  этого объема выполнены из прозрачного стекла, а начиная со второго прорезаны неровными «сталактитами» окон (чем, кстати, мгновенно заставляют вспомнить Форум Герцога и де Мерона в Барселоне). В центре вестибюля расположена огромная парадная лестница, подвешенная на стальных тросах к конструкциям перекрытия. В пространстве между ее маршами размещены информационный центр и кассы, а под лестницей и вокруг нее – сувенирные и книжные магазины. А чтобы заглядывающему в галерею с улицы человеку не казалось, что весь первый этаж занят торговлей, вестибюль оформлен минимальным числом перегородок. Из вестибюля по главной лестнице можно попасть в выставочные залы, библиотеку музея, а также в кафе и клуб, причем последние непосредственно примыкают к месту основного раскрытия двух корпусов- «рук» на набережную реки Драва – это не только обеспечит посетителей прекрасными видами, но и позволит заведениям работать в собственном режиме.

Корпуса В и С, в которых расположены все необходимые дополнительные функции, представляют собой узкие сблокированные параллелепипеды, стены которых так же «расщеплены» треугольными прозрачными вставками. По сути, это задний фасад комплекса, та заслонка, которая надежно фиксирует эфемерный сфероид в створе дугообразных зданий.  Архитекторы досконально продумали связи корпусов с основным выставочным пространством: свои галереи-переходы имеют и детский центр (преподаватели смогут проводить небольшие экскурсии и обучающие лекции), и творческие студии. Помещения детского центра организованы таким образом, чтобы иметь еще и непосредственный выход в парк, а в корпусе С, где располагается архитектурный центр, последний этаж отведен под кладовые и зону неформального общения.

Но, пожалуй, главное достоинство спроектированного «Архитектуриумом» комплекса заключается в его сомасштабности окружающей застройке. Самые яркие архитектурные элементы композиции – сфероид и обнимающие его «руки» -- выполнены из максимально прозрачных материалов, нивелирующих давление этих объемов на невысокие исторические памятники, расположенные по соседству, тогда как основные корпуса, «держащие» углы нового квартала, поддерживают их строй и ритм. Современная по композиции и технологии, новая художественная галерея органично сосуществует со своим окружением и способна стать его неотъемлемой частью.
Вестибюль
Вестибюль
Интерьер
Интерьер
Интерьер
Интерьер
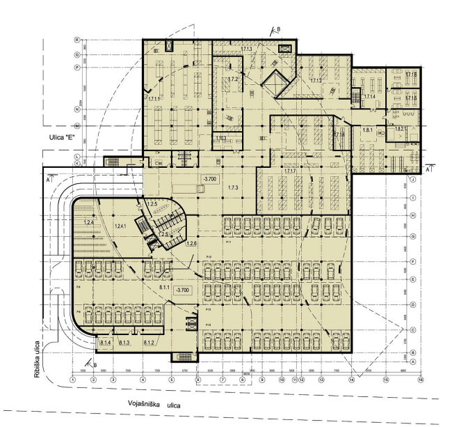
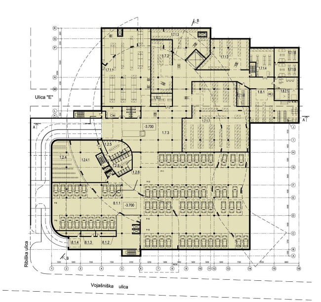
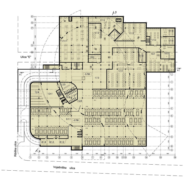
План подземного этажа
План подземного этажа
План первого этажа
План первого этажа
План второго этажа
План второго этажа
План третьего этажа
План третьего этажа
План четвертого этажа
План четвертого этажа
План пятого этажа
План пятого этажа
План шестого этажа
План шестого этажа
Разрез
Разрез