Размещено на портале Архи.ру (www.archi.ru)

02.04.2010

Порталы в парке

Анна Мартовицкая
Объект:
Конкурсный проект развития Пермского академического театра оперы и балеты им. П.И.Чайковского
Адрес:
Россия, Пермь. улица Петропавловская (Коммунистическая), 25а
Архитектор:
Сергей Скуратов
Мастерская:
Сергей Скуратов ARCHITECTS
Авторский коллектив:
Сергей Скуратов (руководитель авторского коллектива), Наталья Золотова, Антон Барклянский (ГАП), Виктор Обвинцев, Никита Асадов, Иван Ильин, Ксения Харитонова, Антон Чалов, Антон Чурадаев

Единственным российским архитектором, приглашенным к участию в недавнем международном конкурсе на проект нового здания Пермского театра оперы и балеты, стал Сергей Скуратов. Его проект театра оказался самым большим по площади и наиболее проработанным по функциям и архитектурно-планировочной части. Одетый в матовое, будто покрытое инеем стекло и бронзовую медь, придуманный Скуратовым комплекс выглядит как настоящий северный театр.

Конкурсный проект развития Пермского академического театра оперы и балеты им. П.И.Чайковского
Конкурсный проект развития Пермского академического театра оперы и балеты им. П.И.Чайковского
О Пермском театре оперы и балеты мы подробно рассказывали в статье, посвященной итогам конкурса, – классическое здание с фронтоном и портиком заслуженно считается символом города и одним из его главных очагов культуры, но давно стало «мало» знаменитой труппе. Необходимость реконструкции театра обсуждается в Перми последние 20 лет, но все больше теоретически, так как в городе не хватает ни архитекторов, способных разработать проект современный, но уместный и достойный соседствовать с историческим зданием, ни средств на то, чтобы воплотить эти замыслы в жизнь. Ситуация в корне изменилась, когда в Перми начали проводиться международные архитектурные конкурсы, а сенатором Пермского края стал Сергей Гордеев – человек молодой, состоятельный и очень любящий современную архитектуру. Возглавляемый им фонд «Авангард» и организовал состязание на лучший проект нового здания театра оперы и балета. К участию в конкурсе были приглашены известные зарубежные бюро, спроектировавшие и построившие по несколько театров и концертных залов. Нашу страну представлял Сергей Скуратов – по словам Гордеева, «лучший российский архитектор, способный и умеющий конкурировать с западными коллегами». К слову, для Скуратова это тоже далеко не первая работа над проектом театра – он занимал первые места в конкурсах на Театр для будущих поколений (ЮНЕСКО), Театр балета им. Анны Павловой в Москве, комплекс «Опера Бастилия». И тем важнее для российского архитектора было досконально продумать проект для Перми, сделать его не только по-конкурсному красивым и запоминающимся, но и проработанным по функциям и быту, на сто процентов реализуемым.

Одним из самых сложных противоречий технического задания стало требование спроектировать комплекс, больший по площади, чем существующий ансамбль, и при этом не искажающий масштаб и пропорции последнего. У Скуратова и его команды были десятки вариантов – пристройки сзади и по бокам, здание, «обнимающее» существующий театр, новый объем, симметричный старому, – и все они в итоге были отклонены именно как «сбивающие» изначальный масштаб. Дело в том, что Пермский театр оперы и балета расположен в парке, ограниченном улицами Ленина, Сибирская, Советская и 25-летия Октября, и сложившейся архитектурно-парковой композицией Скуратов дорожил едва ли не больше, чем собственно историческим зданием. «Когда перспективу парка замыкает фасад с портиком, люди самых разных профессий и национальностей сразу понимают, что перед ними театр, – поясняет архитектор. – Это классический, узнаваемый образ , ставший градообразующим  в мировом культурном сознании, и исказить его было бы преступлением, поэтому мы решили его развить».

Тема развития и роста вообще стала для проекта ключевой. Архитектор исходил из того, что театр – это не только и не столько памятник архитектуры, сколько живой творческий организм, постоянно совершенствующийся. И тем трансформациям, которые жанры оперы и балета переживают сегодня, классическое театральное здание уже не очень подходит типологически. Так отпал сценарий строительства рядом с историческим зданием еще одного, сколь-нибудь на него похожего. Столь же неприемлемой Скуратову казалась архитектура с «эффектом Бильбао», то есть вызывающе современная и шокирующая. Для нового здания предстояло найти образ где-то посередине – оно должно было быть деликатным по отношению и к истории, и к природе и при этом сразу опознаваться именно как театр, причем театр XXI века.

Классицистическая архитектура при всей своей выразительности и монументальности обладает одной очень существенной особенностью – она абсолютно самодостаточна. И искать в ней вдохновения можно только в том случае, если работаешь в этой же стилистике. Поскольку к Сергею Скуратову это не относится ни в коей мере, он с самого начала обратил свой взор не на театр, а на его окружение, трактовав историческое здание как образец парковой архитектуры. «Расположение в парке всегда позволяло обогатить композиционные решения и внешние пространственные связи здания с помощью таких объектов, например, как боковые крылья, ризалиты, флигели, парадные и служебные порталы, лестницы, пандусы, – справедливо замечает архитектор. – Но все эти возможности не были реализованы в существующем театре, вероятно потому, что обширный парк вокруг него намного более позднего происхождения. Он был разбит на месте разрушенного в 1929 году каменного Гостиного двора. Сегодняшний театр, помимо основного, довольно скромного входа на главном фасаде, располагает лишь еще более скромным, неудобным служебным входом с восточной стороны. Фактически это замкнутый объем, не просто тесный и устаревший, но и лишенный необходимых функциональных связей с внешним миром. И именно стремление обеспечить театру эти связи в итоге и подсказало нам концепцию и композицию нового объема».

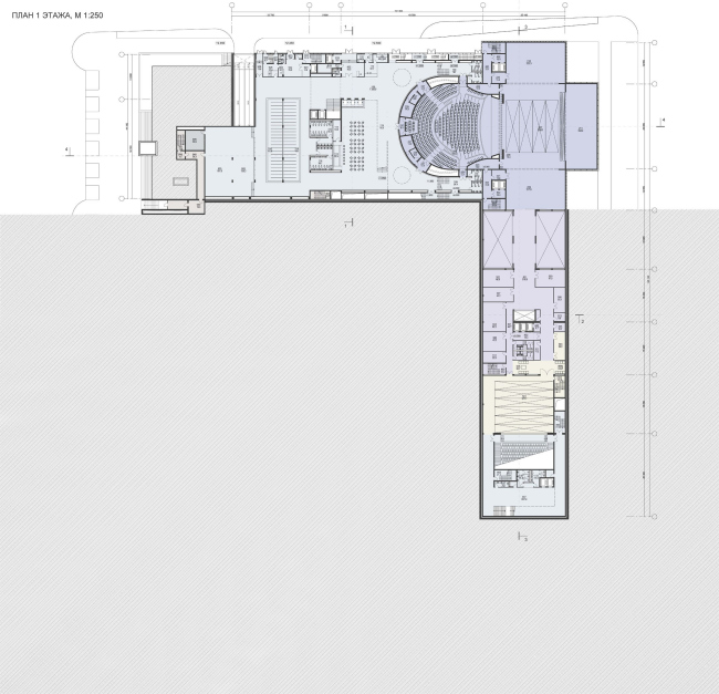
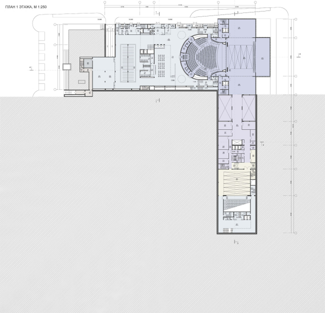
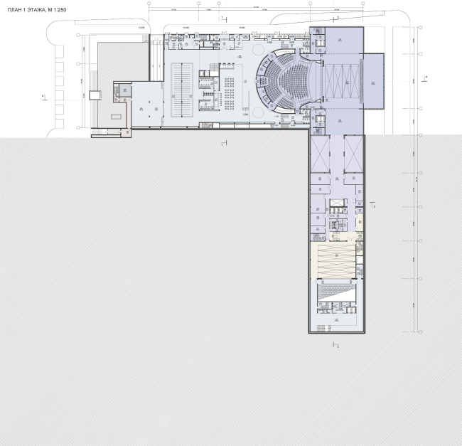
Проектируя новый театр, архитекторы использовали принцип разносторонней ориентации, создав новые входы и тем самым включив природу и город в сферу активного театрального влияния. Вместо прежнего жесткого разграничения на зоны «улица/театр» и «внешнее/внутреннее» Скуратов создает в парке систему зданий, соединенных общими функциями и общественным пространством, постоянно открытым для публики. Существующий театр при этом остается центром пересечения основных парковых направлений и перспектив, и архитекторы специально позаботились о том, чтобы и после реконструкции ничто не мешало, как и раньше, обойти его кругом. Добиться подобной визуальной независимости исторического здания удалось, прежде всего, с помощью L-образной композиции нового объема. Все предписанные техническим заданием функции Скуратов сумел распределить в комплексе таким образом, чтобы основной объем новой сцены спрятался за существующим зданием, а его крылья словно приобняли (правда, на почтительном расстоянии) канонический фасад с фронтоном.

Длинная сторона буквы L разместилась вдоль улицы 25-летия Октября, то есть параллельно восточному фасаду существующего здания. В этом крыле расположились артистические, кафе, репетиционные и малый зал на 200 человек – так называемая экспериментальная сцена, предназначенная для камерных выступлений современного балета и оперы. Вход в эту часть здания оформлен перспективным порталом с пандусом – эффектный белокаменный раструб скошен в сторону основного здания. Подобный реверанс в адрес существующего театра, с одной стороны, мгновенно опознается как очень скуратовский жест (достаточно вспомнить его жилой дом на Бурденко, 11, высотная часть которого слегка развернута и загнута так, словно приветливо кивает расположенной по диагонали более ранней постройке того же автора), а с другой позволяет создать уютное общественное пространство на границе театра и парка.

«Основание» литеры L – это, собственно, новая сцена с залом на 1100 мест, склады декораций и костюмов, лекционный зал, музей Дягилева, атриумное пространство фойе с барами, буфетами и рестораном. Основные объемы вновь построенных площадей, включая зоны загрузки для декораций и ресторанов, склады и парковки, располагаются с северной стороны, что дало возможность сохранить привычную ориентацию театра. А рельеф парка – легкий уклон в сторону Камы – позволил архитекторам, не повышая высотность нового здания, приподнять новые входные группы, уподобив их заметным  издалека сценическим площадкам. И если к перспективному портику ведет развитый пандус, то главный вход в новое здание решен как гигантская лоджия с овальным 11-метровым окулюсом, недвусмысленно отсылающим к знаменитому Пантеону. И хотя Пермь очень далека от Рима не только географически, но и климатически, Сергей Скуратов решил, что это отверстие стоит оставить открытым: по вечерам падающие сквозь него капли дождя или снежинки будут подсвечиваться, а общие габариты лоджии таковы, что посетители театра всегда найдут, где укрыться от осадков. Тема окулюса стала одной из центральных и в оформлении интерьеров – фонари верхнего света в репетиционных и светильники в фойе и зрительном зале имеют такую же овальную форму, причем в последнем случае плафон окружен россыпью мерцающих звезд. 

Данью суровому климату Пермского края стал и выбор облицовочных материалов. Фасады нового театра Скуратов оборачивает энергосберегающим стеклом, на внутреннюю поверхность которого нанесено матово-белое покрытие, символизирующее иней. Вторым слоем за стеклом размещены композитные панели с тонким слоем меди (0,1 мм), и, в зависимости от функциональных зон, они поставлены вплотную друг к другу, либо между ними и стеклом оставлен технологический зазор или организовано пространство с эвакуационными лестницами. Сергей Скуратов, всегда очень щедро напитывающий свои проекты литературными и историческими параллелями, подчеркивает, что теплые медные блики символизируют не только медные трубы и искомую театральность, но также «духовые оркестры в пермском городском саду дягилевских времен» и добычу медных руд, которой испокон веков славится Пермский край.

Наложение молочно-белого стекла и таинственно мерцающей красноватой меди придают зданию поистине волшебное свечение, которое при свете дня заметно лишь очень внимательному глазу, но в темное время суток, то есть во время и после спектаклей,  будет подчеркнуто с помощью специальной подсветки. И эта двойственность внешнего облика нового театра, вкупе с его предельно рациональной планировкой и композицией, – едва ли не самая главная и удачная находка архитектора в этом проекте. Частично непрозрачное стекло днем лишает архитектуру театра какой-либо помпезности, растворяет в окружающем ландшафте и заставляет скромно отражать историческое здание. Вечером же именно оно включает архитектуру в эффектный пространственный спектакль, когда театр словно по мановению волшебной палочки расширяет свои границы и всех прохожих превращает в завороженных зрителей.
Генеральный план. 3D
Генеральный план. 3D
Фото макета
Фото макета
Конкурсный проект развития Пермского академического театра оперы и балеты им. П.И.Чайковского
Конкурсный проект развития Пермского академического театра оперы и балеты им. П.И.Чайковского
Фрагмент фасада
Фрагмент фасада
Конкурсный проект развития Пермского академического театра оперы и балеты им. П.И.Чайковского
Конкурсный проект развития Пермского академического театра оперы и балеты им. П.И.Чайковского
Фрагмент фасада
Фрагмент фасада
Фрагмент фасада
Фрагмент фасада
3D-разрез
3D-разрез
Восточный фасад
Восточный фасад
Северный фасад
Северный фасад
Южный фасад
Южный фасад
Западный фасад
Западный фасад
Интерьера зала. Вид со сцены
Интерьера зала. Вид со сцены
Интерьер зала
Интерьер зала
Фойе
Фойе
Фойе
Фойе
Генеральный план
Генеральный план
План первого этажа
План первого этажа