Размещено на портале Архи.ру (www.archi.ru)

04.03.2010

Между прошлым и будущим

Елена Петухова
Объект:
«Модульный архитектурный конструктор»
Адрес:
Россия,
Проект «Жилой геном. Поколение 3»
Адрес:
Россия,
Проект многоквартирного дома «Тетрис»
Адрес:
Россия,
Типовые индивидуальные жилые дома с трансформацией зима-лето. Победитель конкурса «Дом XXI века»
Адрес:
Россия,
Мастерская:
АБ ASADOV
Архитектурная мастерская А.Некрасова

27 февраля в рамках выставки «Домэкспо» в Гостином Дворе состоялась церемония награждения победителей конкурса «Дом XXI века». Их имена были объявлены еще в конце прошлого года, но увидеть и оценить эти проекты, равно как и все работы, представленные на конкурс, стало возможным только сейчас.

Торжественная церемония награждения победителей конкурса “Дом XXI века”. Вестибюль Торгово-промышленной палаты. 27 февраля 2010 года
Торжественная церемония награждения победителей конкурса “Дом XXI века”. Вестибюль Торгово-промышленной палаты. 27 февраля 2010 года

Результаты конкурса «Дом XXI века», а также сам процесс его подготовки и проведения, интересны по нескольким причинам. Прежде всего, темой для него стало малоэтажное экономичное жилье с использованием энергосберегающих технологий. Эта типология уже давно стала предметом исследований и экспериментальных разработок во всем мире, а в России интерес к ней проснулся совсем недавно. Далее, в стране уже 4 года считается приоритетным нацпроект «Доступное и комфортное жилье» – совершенно очевидно, что для такого проекта должно быть немаловажно, что именно и как строить. Так что сама по себе идея архитектурного конкурса в данном случае – более чем логична.

«Дом XXI века» не первый конкурс такого рода. В 2007 году медиа-холдинг «Эксперт» проводил конкурс «Российский дом будущего» в рамках одноименного крупномасштабного проекта. Позднее многие из его активных организаторов (Александр Браверманн, Вячеслав Глазычев и др.) объединились в Федеральном фонде содействия развитию жилищного строительства (Фонд РЖС), который стал главным инициатором конкурса «Дом XXI века». Конкурс 2009 года выглядит более основательным, чем его предшественник: к участию были приглашены только мастерские (т.е. юрлица), что по определению отсекло молодежные эксперименты; призовой фонд стал выше, а первая премия выросла с 175 до 500 тысяч рублей.

Помимо РЖС, соорганизаторами конкурса «Дом XXI века» стали «Национальное агентство малоэтажного и коттеджного строительства» (НАМИКС) и Союз архитекторов России (САР).  Чиновники госорганов и эксперты Союза архитекторов совместно разработали подробное техзадание на 30 страницах. В качестве примера для разработки градостроительной концепции конкурсантам был предложен реальный участок площадью 19 гектаров в подмосковной Истре. В управлении РЖС находится множество участков федеральной земли, один из них и был принят за «образец» для конкурса.

Как заявлено на сайте РЖС, полученные в результате конкурса проекты организаторы намерены сделать «проектами повторного применения», то есть в будущем запустить их в производство как типовые. Так что цель конкурса – собрать представительный пул из проектов по всевозможным разновидностям малоэтажной застройки и «настоятельно» (как умеет государство) рекомендовать их к употреблению. Таким образом, актуальная тематика, хороший призовой фонд, и перспектива реализации лучшего проекта, а может быть, даже и тиражирования – все это привлекло к конкурсу внимание архитекторов. Однако при ближайшем рассмотрении все получается не так уж радужно и гладко.

Прежде всего, на собственно работу над конкурсным проектом участникам отвели очень мало времени – 6 недель, в течение которых требовалось создать «…инновационный  архитектурный проект малоэтажного жилого дома для использования при комплексном освоении территории в целях создания доступной для граждан, имеющих различный уровень доходов, качественной, энергоэффективной и экологичной жилой среды». Можно предположить, что основную часть времени «съели» внутренние дебаты между организаторами, а продлить dead-line было невозможно, потому что заканчивался год, и государственные деньги требовалось потратить до Нового года. Торопливость ощущается и в том факте что жюри рассмотрело все проекты за один день 28 декабря, в самый канун праздников, и в том, что после объявления о решении экспертов общественности не продемонстрировали не только все конкурсные проекты, но даже и внешность проекта-победителя поначалу оставался загадкой.

Несмотря на малые сроки, требования к технико-экономическим показателям объектов были сформулированы достаточно жестко. Так, себестоимость строительства одного квадратного метра не должна была превышать 25 000 рублей; в каждом проекте должны были быть использованы энерго- и ресурсосберегающие технологии, материалы и конструкции. Первое требовалось подтвердить расчетами, второе – сертификатами. Максимальная площадь индивидуальных домов и таунхаусов должна была составлять от 150 и 120 кв. м соответственно, площадь квартир — от 28 до 100 кв. м в зависимости от количества комнат, но не меньше 20 метров на человека.

Кроме того, также можно предположить что у организаторов конкурса были различные задачи. Для САР он оказался долгожданным поводом вступить с властными структурами в равноправный диалог, в частности, на тему действующего законодательства. Речь прежде всего о законе, который сейчас регулирует проведение всех, в том числе и архитектурных, конкурсов (ФЗ №94 «О размещении заказов на поставки товаров, выполнение работ, оказание услуг для государственных и муниципальных нужд»). Он ставит во главу угла экономические параметры проекта и фактически игнорирует его художественные достоинства, таким образом уничтожая сам институт творческих конкурсов в нашей стране. Участие Союза архитекторов в организации конкурса «Дом XXI века» было, в числе прочего, попыткой провести настоящий творческий конкурс, действуя в рамках ФЗ №94; а также – привлечь внимание к проблеме в целом. С другой стороны, для Фонда РЖС было важно получить в итоге максимально реалистичный, готовый к реализации и тиражированию (разумеется, после некоторой доработки) проект и все авторские права на него. Судя по документам, ему это удалось: Фонд РЖС получит все (!) права на премированный проект за 10 тысяч рублей. Эту сумму не следует путать с собственно премией победителю, это – плата за «отчуждение права использования проекта», и совершенно очевидно, что ее в данном конкурсе сделали чисто символической (в полтора раза меньше себестоимости одного метра проектируемого жилья).

И наконец, половину поданных проектов организаторы отсеяли, не стали рассматривать по чисто канцелярским соображениям. Во первых, по условиям конкурса каждый коллектив должен был представить только один проект. Это дало повод отсеять 5 проектов. Во-вторых, опираясь на «букву» все того же 94 закона, с конкурса сняли 36 работ, авторы которых имели неосторожность вместо подлинника некоего документа представить его копию. Казалось бы, детали – но 94-й закон считает это принципиальным. В результате из 80 поданных проектов на стадии приема отсеяли половину – 41 проект из 80-ти, и 36 мастерских из 75-ти. Здесь надо упомянуть одну тонкость. Два члена жюри – советник гендиректора Фонда РЖС Елена Баженова и президент САР Андрей Боков, сочли необходимым заявить о своем несогласии с отсеиванием половины кандидатов в приложении №2 к протоколу об этом решении, и о том, что эффективность подобных мероприятий требуется повышать, для САР считает своим долгом подготовить меморандум... Затем имя Андрея Бокова исчезло из состава жюри, хотя открыто о выходе президента САР из жюри объявлено не было: можно только догадываться, вышел ли Андрей Боков из жюри по принципиальным соображениям или просто не смог присутствовать на заседании 28 декабря.

Итак, из 39 работ, оставшихся после соблюдения всех формальностей, члены жюри выбрали победителей в отдельных категориях и один проект, которому единогласно было присуждено Гран-При. Им стала работа «Архитектурной мастерской А. Некрасова» – проект «Традиционный дом с трансформацией зима-лето». Основной изюминкой этого архитектурного решения стало использование специальных теплосохраняющих ставней, которыми в зимний период частично закрываются большие окна. На основе своей идеи авторы разработали полную линейку малоэтажных жилых домов, от отдельно стоящего коттеджа до блокированных таунхаусов и многоквартирных корпусов. Проект мастерской Некрасова получил не только первую премию (500 тысяч рублей), но и еще несколько наград: он  был признан «лучшим проектом индивидуального жилого дома (премия 250 тысяч рублей), стал победителем в номинациях «За лучшее архитектурное решение» (премия 150 тысяч рублей) и «За лучшее решение жилой среды» (премия 150 тысяч рублей). Во время церемонии награждения членам жюри даже пришлось прокомментировать столь частые выходы на сцену Андрея Некрасова заверениями в непредвзятости своего выбора.

Кроме того, первые премии (по 250 тыс. р. каждая) получили ЗАО «МГПМ» из города Мытищи за лучший проект «дома блокированной застройки», «Архпроект-2» за проект многоквартироного дома. Премии поменьше (по 150 тыс.) достались: «Остоженке» за технологическое решение, петербуржской строительной компании «Гром» – за экологическое решение; а мастерская «Старая Казань» получила две малых премии – одну за энергоэффективность, другую за проект жилища для молодой семьи.

Однако, отсеяв половину проектов по бюрократическим мотивам, организаторы все же решили соблюсти видимость справедливости и отметили несколько работ из числа пресловутых 36 проектов. Это решение приняли по инициативе Союза архитекторов, чтобы немного сгладить неприятное впечатление от процедуры отбора. Итак, среди не прошедших по документам жюри отметило проект мастерской Асадова «за новаторство и оригинальный подход к созданию жилой среды»; «Мезонпроект» за технологичный градостроительный подход; бюро «АДЭК» за создание «благоприятной и комфортной жилой среды с применением типовых решений», и АБ «Элис» за инновационные экологические решения.

Что же касается работ, не отмеченных жюри, то следует признать: представленная на выставке полная подборка конкурсных проектов производит не самое благоприятное впечатление. Подавляющее большинство из них – отнюдь не свежие разработки. Чувствуется, что многие команды, имевшие в своем портфолио проекты малоэтажных домов средней и низкой ценовой категории, выставили их на конкурс, надеясь хотя бы таким образом оправдать потраченные в свое время усилия. Эти проекты легко узнаются в каталоге конкурса «Дом XXI века» по характерному для «рабочки», перенасыщенному размерами и примечаниями исполнению основных чертежей. Так же легко в общем ряду вычленяется серия сходных, хотя и не столь детально проработанных решений, которые в свое время, вероятно, были отвергнуты заказчиком еще на стадии «проект». Они отличаются характерной для прошлого века графикой и простоватыми 3D визуализациями. Количество проектов, в которых бы чувствовалась актуальная и адресная разработка сформулированной в конкурсном задании темы, совсем невелико. Впрочем, удивляться этому, в связи с нехваткой времени на разработку конкурсных предложений, не приходится. Шести недель явно недостаточно для разработки оригинальной архитектурно-градостроительной концепции, поиска подходящих энергосберегающих решений, расчета сметной стоимости дома и сбора сопроводительной юридической и технической документации. Так что многие участники предпочли использовать «вторсырье», лишь слегка «загримировав» его в энергоэффективном ключе.

Получается, большинство российских архитекторов не слишком-то стремится в культурные миссионеры и проблемой качества массового жилья если и озабочены, то по большей части лишь на словах. Возможно, одна из причин такого равнодушия – полный отказ от авторских прав, внесенный в условия конкурса. Мы не знаем, на каких условиях в начале XIX века одни из лучших российских архитекторов того времени А. Д. Захаров, В. П.  Стасов, К. И. Росси и др. принимали участие в составлении «образцовых» проектов, но их роль в этом начинании оказалась ключевой. Остается надеяться, что в следующий «Дом XXI века» принесет больше качественных и перспективных работ, достойных того, что бы стать новыми «образцовыми проектами».

Конкурсная площадка. Участок в 19,34 га рядом с подмосковным городом Истра
Конкурсная площадка. Участок в 19,34 га рядом с подмосковным городом Истра
Вступительное слово ведущей церемонии - Президента НП НАМИКС Елены Николаевой
Вступительное слово ведущей церемонии - Президента НП НАМИКС Елены Николаевой
Приветственное слово Министра регионального развития РФ Виктора Басаргина
Приветственное слово Министра регионального развития РФ Виктора Басаргина
Гран-при конкурса из рук Министра регионального развития РФ Виктора Басаргина получил Андрей Некрасов (Мастерская А. Некрасова) за проект «Традиционный дом с трансформацией зима-лето»
Гран-при конкурса из рук Министра регионального развития РФ Виктора Басаргина получил Андрей Некрасов (Мастерская А. Некрасова) за проект «Традиционный дом с трансформацией зима-лето»
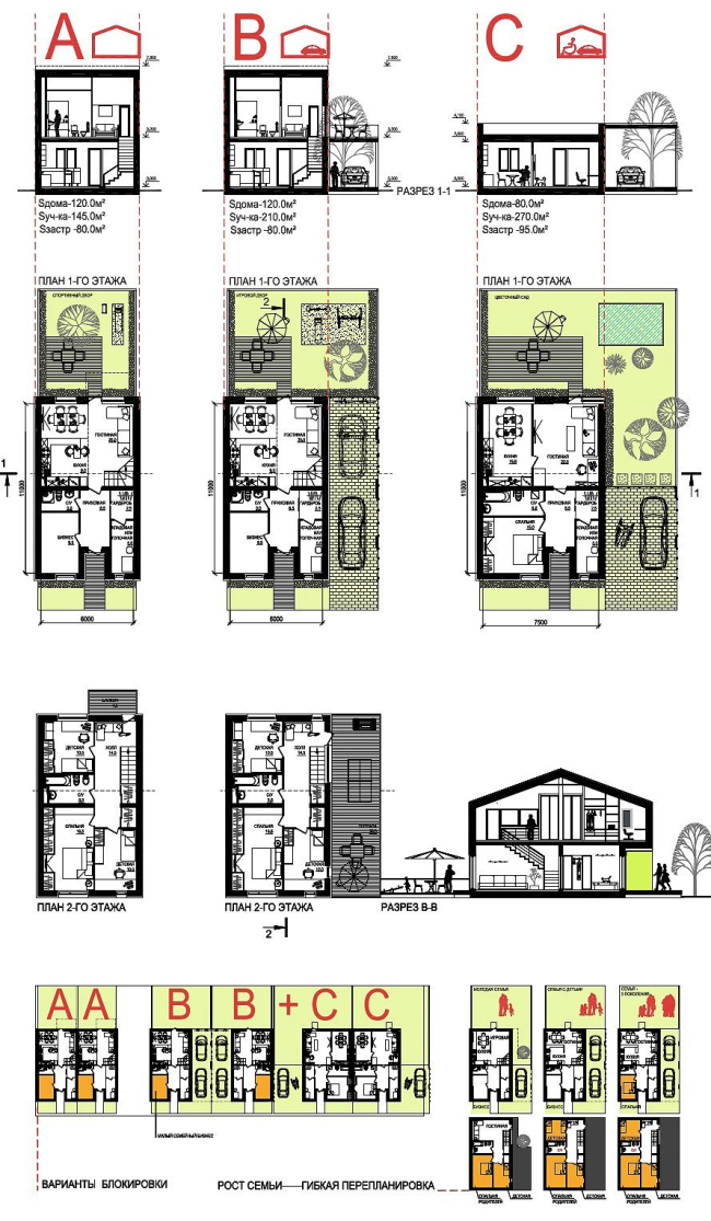
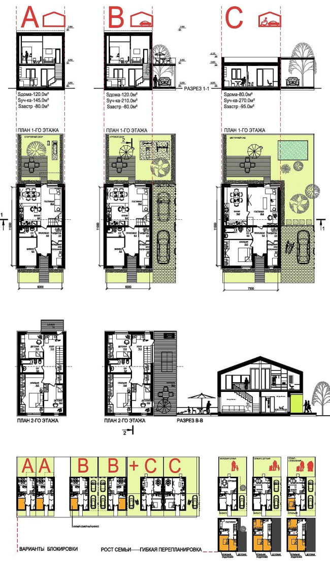
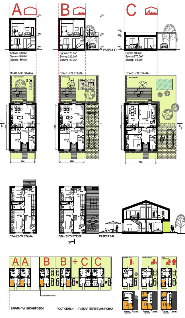
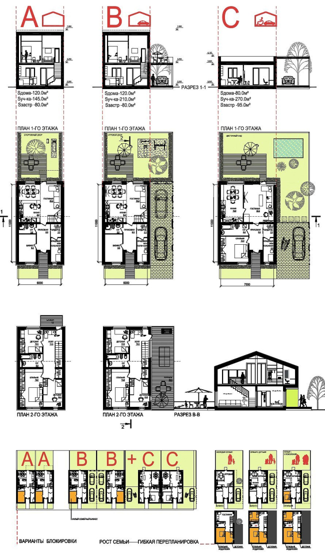
Проект-победитель конкурса “Дом XXI века” – «Традиционный дом с трансформацией зима-лето». Мастерская А. Некрасова. Архитекторы: А. Б. Некрасов, А.А. Некрасов, А.А. Цибайкин, А. Ю. Яньшин
Проект-победитель конкурса “Дом XXI века” – «Традиционный дом с трансформацией зима-лето». Мастерская А. Некрасова. Архитекторы: А. Б. Некрасов, А.А. Некрасов, А.А. Цибайкин, А. Ю. Яньшин
Проект-победитель конкурса “Дом XXI века”. Мастерская А. Некрасова.
Проект-победитель конкурса “Дом XXI века”. Мастерская А. Некрасова.
Проект-победитель конкурса “Дом XXI века”. Мастерская А. Некрасова.
Проект-победитель конкурса “Дом XXI века”. Мастерская А. Некрасова.
Проект-победитель конкурса “Дом XXI века”. Мастерская А. Некрасова.
Проект-победитель конкурса “Дом XXI века”. Мастерская А. Некрасова.
Премию за «Лучший проект жилого дома блокированной застройки» из рук Виктора Басаргина получает Ирина Бакеева (Мытищинская Городская Проектная мастерская)
Премию за «Лучший проект жилого дома блокированной застройки» из рук Виктора Басаргина получает Ирина Бакеева (Мытищинская Городская Проектная мастерская)
Проект «Жилой геном. Поколение 3». Мытищинская Городская Проектная мастерская. Архитекторы: Е.Ю. Чурилова, И.О. Бакеева, Е.С. Хаджаметова, К.В. Бакеева
Проект «Жилой геном. Поколение 3». Мытищинская Городская Проектная мастерская. Архитекторы: Е.Ю. Чурилова, И.О. Бакеева, Е.С. Хаджаметова, К.В. Бакеева
Проект «Жилой геном. Поколение 3». Мытищинская Городская Проектная мастерская
Проект «Жилой геном. Поколение 3». Мытищинская Городская Проектная мастерская
Проект «Жилой геном. Поколение 3». Мытищинская Городская Проектная мастерская.
Проект «Жилой геном. Поколение 3». Мытищинская Городская Проектная мастерская.
Диплом готовится вручать Генеральный директор Фонда РЖС Александр Браверман
Диплом готовится вручать Генеральный директор Фонда РЖС Александр Браверман
Премию за «Лучший проект многоквартирного жилого дома» из рук Александра Бравермана получает Елена Костина (АРХ Проект-2)
Премию за «Лучший проект многоквартирного жилого дома» из рук Александра Бравермана получает Елена Костина (АРХ Проект-2)
Генеральный план застройки. 3-D визуализация. АРХ Проект-2.
Генеральный план застройки. 3-D визуализация. АРХ Проект-2.
Схема компоновки многоквартирного жилого жилого дома коридорного типа. АРх Проект-2
Схема компоновки многоквартирного жилого жилого дома коридорного типа. АРх Проект-2
Вид с выысоты птичьего полета на застройку. 3-D визуализация. АРХ Проект-2.
Вид с выысоты птичьего полета на застройку. 3-D визуализация. АРХ Проект-2.
Президент Союза архитекторов России Андрей Боков вручает Поощрительную премию за «Лучшее технологическое решение» Андрею Гнездилову (Архитектурное бюро «Остоженка»). Проект «Модульный архитектурный конструктор»
Президент Союза архитекторов России Андрей Боков вручает Поощрительную премию за «Лучшее технологическое решение» Андрею Гнездилову (Архитектурное бюро «Остоженка»). Проект «Модульный архитектурный конструктор»
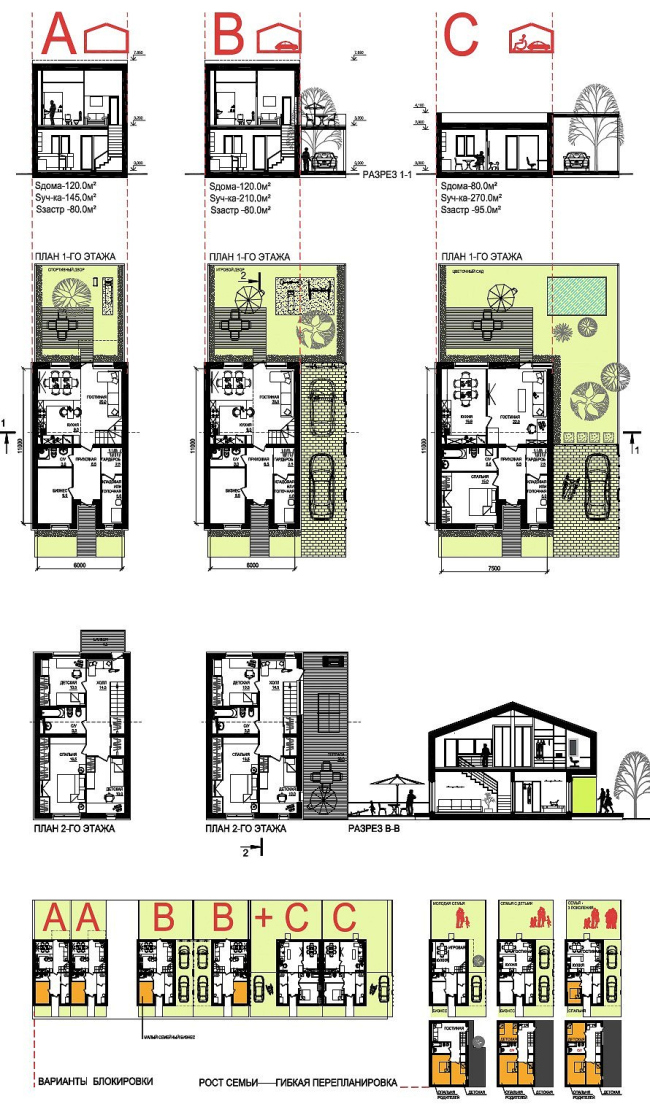
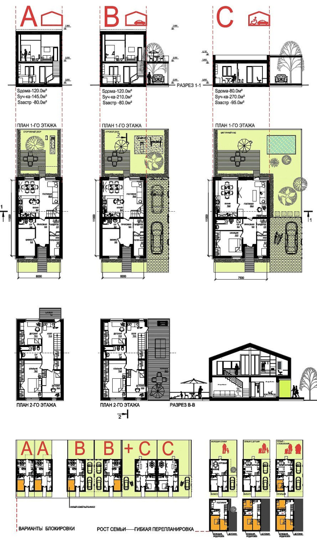
Концепция компоновки элементов «Модульного архитектурного конструктора». Архитектурное бюро «Остоженка»
Концепция компоновки элементов «Модульного архитектурного конструктора». Архитектурное бюро «Остоженка»
Внешний вид индивидуального жилого дома на основе «Модульного архитектурного конструктора». Архитектурное бюро «Остоженка»
Внешний вид индивидуального жилого дома на основе «Модульного архитектурного конструктора». Архитектурное бюро «Остоженка»
Схема сборки «Модульного архитектурного конструктора». Архитектурное бюро «Остоженка»
Схема сборки «Модульного архитектурного конструктора». Архитектурное бюро «Остоженка»
Андрей Боков поздравляет авторский коллектив «Модульного архитектурного конструктора». Слева направо: Михаил Скороход, Павел Журавлев, Виталий Стадников, Андрей Гнездилов
Андрей Боков поздравляет авторский коллектив «Модульного архитектурного конструктора». Слева направо: Михаил Скороход, Павел Журавлев, Виталий Стадников, Андрей Гнездилов
Поощрительную премию за «Лучшее энергоэффективное решение» из рук Александра Бравермана получают Павел Тиняев и Елена Корнилова (АПМ «Старая Казань»)
Поощрительную премию за «Лучшее энергоэффективное решение» из рук Александра Бравермана получают Павел Тиняев и Елена Корнилова (АПМ «Старая Казань»)
Проект малоэтажного энергоэффективного жилища экономического класса на основе отходов сельхозпроизводства (соломы). АПМ «Старая Казань». Архитекторы: П.И. Тиняев, Ю.И. Найдышев, Е.Е. Корнилова, М.В. Геннадиева
Проект малоэтажного энергоэффективного жилища экономического класса на основе отходов сельхозпроизводства (соломы). АПМ «Старая Казань». Архитекторы: П.И. Тиняев, Ю.И. Найдышев, Е.Е. Корнилова, М.В. Геннадиева
Проект малоэтажного энергоэффективного жилища из соломы. АПМ «Старая Казань».
Проект малоэтажного энергоэффективного жилища из соломы. АПМ «Старая Казань».
Проект малоэтажного энергоэффективного жилища из соломы. АПМ «Старая Казань».
Проект малоэтажного энергоэффективного жилища из соломы. АПМ «Старая Казань».
Поощрительную премию за «Лучшее экологическое решение» из рук Вице-президента Союза архитекторов России Сергея Киселева получает Дмитрий Гордеев (Инвестиционно-строительная компания «Гром»)
Поощрительную премию за «Лучшее экологическое решение» из рук Вице-президента Союза архитекторов России Сергея Киселева получает Дмитрий Гордеев (Инвестиционно-строительная компания «Гром»)
Жилой дом каркасно-щитовой конструкции. Инвестиционно-строительная компания «Гром». Архитекторы: Д.В. Гордеев, М.Б. Лизунов, М.Ю. Максимов, О.А. Ветошева, И.И. Головкин, А. Рябцева, О.Н. Колесова
Жилой дом каркасно-щитовой конструкции. Инвестиционно-строительная компания «Гром». Архитекторы: Д.В. Гордеев, М.Б. Лизунов, М.Ю. Максимов, О.А. Ветошева, И.И. Головкин, А. Рябцева, О.Н. Колесова
Жилой дом каркасно-щитовой конструкции. Инвестиционно-строительная компания «Гром».
Жилой дом каркасно-щитовой конструкции. Инвестиционно-строительная компания «Гром».
Жилой дом каркасно-щитовой конструкции. Инвестиционно-строительная компания «Гром».
Жилой дом каркасно-щитовой конструкции. Инвестиционно-строительная компания «Гром».
Поощрительную премию за «Лучшее решение жилой среды» из рук Главного редактора журнала «Эксперт» и идеолога проекта «Российский дом будущего» Валерия Фадеева получает Андрей Некрасов (Мастерская А. Некрасова)
Поощрительную премию за «Лучшее решение жилой среды» из рук Главного редактора журнала «Эксперт» и идеолога проекта «Российский дом будущего» Валерия Фадеева получает Андрей Некрасов (Мастерская А. Некрасова)
Поощрительную премию за «Лучший проект жилища молодой семьи» из рук Заместителя председателя Комитета по бюджету и налогам Гос. Думы РФ и координатора программы «Свой дом» партии «Единая Россия» Александра Когана получает Павел Тиняев (АПМ «Старая Казань»)
Поощрительную премию за «Лучший проект жилища молодой семьи» из рук Заместителя председателя Комитета по бюджету и налогам Гос. Думы РФ и координатора программы «Свой дом» партии «Единая Россия» Александра Когана получает Павел Тиняев (АПМ «Старая Казань»)
Андрей Боков вручает специальный диплом за «Новаторство и оригинальный подход к созданию жилой среды» представителям «Мастерской А. Асадова» Татьяне Черновой и Александру Порошкину
Андрей Боков вручает специальный диплом за «Новаторство и оригинальный подход к созданию жилой среды» представителям «Мастерской А. Асадова» Татьяне Черновой и Александру Порошкину
Свои дипломы готовятся получить дипломанты внеконкурсной программы архитекторы Ольга Терчикова (Мезонпроект) за «Технологичный градостроительный подход, обеспечивающий разнообразие и многовариантность застройки», Дмитрий Наринский (Бюро «АДЭК») за «Создание благоприятной и комфортной жилой среды с применением типовых решений» и Николай Лютомский (Бюро «ЭЛИС») за «Инновационность экологических решений»
Свои дипломы готовятся получить дипломанты внеконкурсной программы архитекторы Ольга Терчикова (Мезонпроект) за «Технологичный градостроительный подход, обеспечивающий разнообразие и многовариантность застройки», Дмитрий Наринский (Бюро «АДЭК») за «Создание благоприятной и комфортной жилой среды с применением типовых решений» и Николай Лютомский (Бюро «ЭЛИС») за «Инновационность экологических решений»
Характерный пример плотной, досконально проработанной конкурсной подачи проектов. Бюро «АКМПроект». Архитекторы: Моргунов А., Моргунова И. Проект – участник основного конкурса.
Характерный пример плотной, досконально проработанной конкурсной подачи проектов. Бюро «АКМПроект». Архитекторы: Моргунов А., Моргунова И. Проект – участник основного конкурса.
Один из примеров нестандартного подхода к трактовке типологии «Доступного и комфортного жилья». «Студия инновационной архитектуры». Архитекторы: Рыжкова А., Климова Е., Пермяков В. Проект – участник основного конкурса.
Один из примеров нестандартного подхода к трактовке типологии «Доступного и комфортного жилья». «Студия инновационной архитектуры». Архитекторы: Рыжкова А., Климова Е., Пермяков В. Проект – участник основного конкурса.