Размещено на портале Архи.ру (www.archi.ru)

17.02.2010

Высшая математика

Анна Мартовицкая
Объект:
Жилой район «Марфино»
Адрес:
Россия, Москва.
Архитектор:
Сергей Киселев
Игорь Шварцман
Мастерская:
АМ Сергей Киселев и Партнеры
Авторский коллектив:
Архитекторы: Сергей Киселев, Алексей Медведев, Азат Хасанов, Антон Егерев, Анастасия Иванова, Ольга Пономаренко. Инженеры: Юрий Браславский, ООО «Фирма ГВИЛ»

Жилой район Марфино, что на северо-востоке Москвы, в новейшую историю столицы входит как огромный массив типовой застройки. Однако этот район далеко не сразу стал таким: его концепция несколько раз кардинально изменялась, трансформируясь от элитного жилья к категории «эконом-класс». За предпоследнюю реинкарнацию района Марфино отвечала мастерская «Сергей Киселев и Партнеры».

Жилой район «Марфино»
Жилой район «Марфино»
© АМ Сергей Киселев и Партнеры

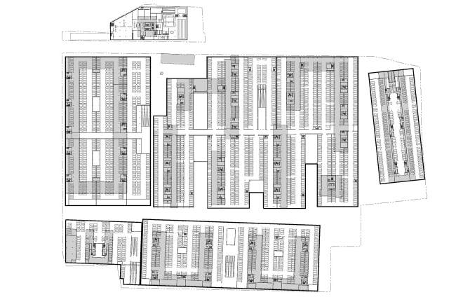
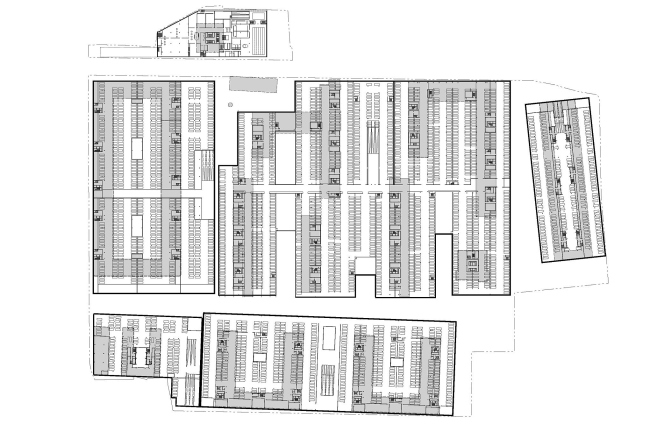
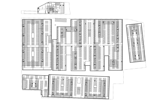
Недавно мы писали об истории проектирования района Марфино, расположенного в начале Ботанической улицы, на месте теплиц бывшего совхоза, неподалеку от Останкино. Вначале градостроительную концепцию района разработали знаменитые английские урбанисты «John Tompson & Partners», затем ее переработал Дмитрий Александров, а немногим позднее – Илья Уткин. Классицистическая и театрализованная архитектура Уткина оказалась слишком дорогой, точнее, по словам менеджеров, которых почему-то пригласили к рассмотрению уже готового проекта, «непродаваемой» в этом месте. После столь печального заключения специалистов по продажам инвесторы решили радикально изменить проект и пригласили компанию «Сергей Киселев и Партнеры». Вначале архитекторов СКиП попросили спроектировать застройку окраинного участка нового района, на котором с самого начала планировалась не классическая, а модернистская архитектура, а чуть позже они получили предложение заняться всем районом в целом. Но если Илье Уткину в свое время была предоставлена полная свобода действий, то перед СКиП, наоборот, поставили очень сложную «архитектурно-математическую задачу» – спроектировать почти 3 тысячи квартир на 14 гектарах, соблюдая нормы и не пренебрегая комфортом среды обитания и собственным кредо: несмотря на уплотнение, архитектура должна была стать современной и запоминающейся.

Прежний генплан, разработанный англичанами и доработанный И.Уткиным, предусматривал наличие центральной оси, которая делила район пополам и выходила на Ботанический сад и усадьбу Останкино. Для того, чтобы обеспечить ей визуальную связь с главной достопримечательностью района, на Ботанической улице предполагалось снести несколько жилых домов. Однако позже заказчик решил сохранить эти строения – таким образом получилось, что главная улица нового района оказалась направленной не на зеленый массив, а на обычную пятиэтажку. Поэтому СКиП сместила центральный бульвар ниже, разделив участок в соотношении примерно 2 к 1. Ее ось стала указывать на пустырь, где должны были построить большую новую школу оригинальной (не типовой) архитектуры. Новую ось архитекторы превратили в пешеходный бульвар, поддержав его несколькими поперечными пешеходными улицами, каждая из которых направлялась в сторону общественных комплексов, расположенных на соседних участках. Одна из ключевых идей разработанного СКиП генплана заключается в многообразии и строгой иерархии пешеходных пространств: общественные зоны (бульвар и улицы) переходят в придомовые территории, а те, в свою очередь, получают дальнейшее развитие во внутренних дворах. И если по бульварам и к домам в принципе могут подъехать машины спецтранспорта или такси, то внутренние дворы от автомобилей защищены стопроцентно (пожарные машины, в случае необходимости, должны попадать в них по пешеходным дорожкам) и обещали стать островками тихой и безопасной жизни.

Переводя проект в сегмент эконом-класса, девелопер и его маркетологи, естественно, разработали новое техническое задание, по которому жилой комплекс должен был состоять из большого количества квартир маленькой и средней площади. И во многом именно «квартирный вопрос» обусловил меридиальную (с севера на юг) ориентацию жилых корпусов: дома поставлены, в основном, параллельно друг другу, так как архитекторы стремились обеспечить солнечным светом все квартиры и по возможности исключить так называемые «угловые примыкания», соединения объемов под значительными углами, так как в них неизбежно возникают неликвидные по нынешним временам квартиры слишком большой площади. На такие углы был богат план Томпсона-Уткина, в котором дома были расположены по периметру прямоугольных дворов.

И хотя некоторые дома в проекте СКиП все же получили П-образную композицию или же были спроектированы в форме замкнутого каре, «связки» между основными жилыми пластинами – это невысокие общественные блоки – не загораживают солнца соседним окнам. Общественные функции расположены на первых этажах тех домов, что обращены к внешним улицам, тогда как первые этажи тихих внутриквартальных домов заняты квартирами. Их жильцы не слышали бы автомобильного шума – ведь микрорайон проектировался пешеходным, а пространство между корпусами было занято газонами и озелененными холмами. Последние не просто разнообразили бы ландшафт Марфина, но и позволяли спрятать объемы трансформаторных подстанций, а также воздухозаборники гигантской подземной парковки, расположенной под всей территорией района. 

Монотонность параллельных строчек надо было как-то разнообразить. Это сделали за счет различия в пластике и композиции домов: из 17 зданий полностью повторялись только два. Архитекторы видоизменяли силуэты пластин и башен, то завершая их в виде «пьедестала почета», то сдвигая части дома относительно друг друга наподобие телефона-слайдера. Фактически композиция квартала была вычислена путем математического анализа, и авторы шутят, что, работая над этим проектом, они больше времени провели за таблицами с расчетами соотношения жилых и нежилых площадей, чем за собственно чертежами. Кстати сказать, отдаленное сходство с таблицами можно увидеть и в итоговом рисунке фасадов, – по крайней мере, источник вдохновения очевиден.

Что больше всего повлияло на решение фасадов, так это очень жесткие требования по инсоляции и освещенности. Фактически, при заявленной заказчиком плотности застройки фасады могли быть только белыми, иначе КЕО было не соблюсти. Большинство фасадов архитекторы либо оставили таковыми, либо заполнили панелями светлых пульсирующих оттенков (они-то и напоминают расчерченные графы таблиц). Лишь фасады, обращенные к главной пешеходной улице и соседним кварталам, могли быть стать цветными, и, как рассказывает главный архитектор проекта Алексей Медведев, их тут же заполнили темным кирпичом, чтобы хоть как-то разбавить обилие светлых плоскостей. Цветовыми доминантами стали и самые высокие в районе одноподъездные башни, расположенные на разных оконечностях участка и образующие своеобразный треугольник яркости и контраста.  

Для СКиП проект Марфина стал полигоном, где мастерская смогла применить свои наработанные идеи и приемы деловой, рациональной архитектуры, которой так славится. И хотя считается, что самая сложная задача – это задача со множеством неизвестных, Сергей Киселев и его команда теперь смело могут с этим поспорить. Работать в условиях неизвестности действительно непросто, а вот проектировать при максимальном количестве заранее заданных параметров – предприятие, на первый взгляд, вообще невыполнимое. Но Сергей Киселев и Партнеры экзамен по этой высшей математике сдали. Правда, даже обилие тонких и сложных решений, предложенных СКиП, не помогло району Марфино удержаться в рамках архитектурности. Как известно, с 2009 года он застраивается панельными домами. 

Жилой район «Марфино»
Жилой район «Марфино»
© АМ Сергей Киселев и Партнеры
Жилой район «Марфино»
Жилой район «Марфино»
© АМ Сергей Киселев и Партнеры
Жилой район «Марфино»
Жилой район «Марфино»
© АМ Сергей Киселев и Партнеры
Жилой район «Марфино»
Жилой район «Марфино»
© АМ Сергей Киселев и Партнеры
Жилой район «Марфино»
Жилой район «Марфино»
© АМ Сергей Киселев и Партнеры
Жилой район «Марфино»
Жилой район «Марфино»
© АМ Сергей Киселев и Партнеры
Жилой район «Марфино»
Жилой район «Марфино»
© АМ Сергей Киселев и Партнеры
Жилой район «Марфино»
Жилой район «Марфино»
© АМ Сергей Киселев и Партнеры
Жилой район «Марфино»
Жилой район «Марфино»
© АМ Сергей Киселев и Партнеры
Жилой район «Марфино»
Жилой район «Марфино»
© АМ Сергей Киселев и Партнеры
Жилой район «Марфино»
Жилой район «Марфино»
© АМ Сергей Киселев и Партнеры