Размещено на портале Архи.ру (www.archi.ru)

28.01.2010

Полусферический шарнир

Анна Мартовицкая
Объект:
Бизнес-центр «Блэкрец плаза»
Адрес:
Россия, Санкт-Петербург. Чернорецкий пер., 5
Архитектор:
Никита Явейн
Мастерская:
Студия 44
Авторский коллектив:
Архитекторы: Никита Явейн, Екатерина Кобозева, Петр Шлихтер, при участии Григория Иванова
Конструкторы: Юрий Бондарев, Ирина Ляшко

В самом центре Санкт-Петербурга архитектурная мастерская «Студия 44» в прошлом году закончила строительство нового офисного комплекса. В тесноте улиц, прилегающих к площади Александра Невского, найти свободную площадку было очень сложно, поэтому бизнес-центр пристроили к одному из существующих зданий. И получившийся в результате архитектурный гибрид стал новой достопримечательностью Тележной улицы.

Бизнес-центр «Блэкрец плаза»
Бизнес-центр «Блэкрец плаза»
Фото с сайта Студия 44
Улица Тележная идет параллельно Невскому проспекту и сама по себе ничем не отличается от множества других таких же внутрирайонных магистралей петербургского центра, расчерченного на регулярные прямоугольники. Она берет свое начало на задворках Площади Восстания и, отступив от Невского на квартал, сопровождает главную магистраль города вдоль всей зоны отчуждения железнодорожного полотна. По мере удаления от вокзала ее застройка становится все более разреженной и безликой, а обрывается Тележная совершенно внезапно, делая резкий поворот к площади Александра Невского и сливаясь в ее устье с главным проспектом города. Отрезок, соединяющий Тележную с площадью, имеет собственное название – Чернорецкий переулок, а участок, найденный инвестором для строительства бизнес-центра, расположен прямо на стыке улицы и переулка.

Не каждому петербуржцу Чернорецкий переулок знаком по названию, но внешне его знают очень многие, так как именно в нем расположен наземный вестибюль станции метро «Площадь Александра Невского-2». А здание, в которое этот вестибюль встроен, – производственно-бытовой корпус Ленинградского метрополитена – занимает практически всю нечетную сторону переулка. Оно было построено в 1991 году по проекту института «Ленметрогипротранс», но своими внушительными габаритами, массивными бетонными опорами и безликой серой облицовкой вполне может сойти за произведение брутализма середины 1970-х. Та часть здания, где расположен вход в метро, хоть как-то оживлена за счет полукруглого торца и больших витражей, а вот в противоположную от площади сторону устремлен вытянутый объем со стандартной решеткой окон, за которой легко угадывается кабинетно-коридорная структура. Несмотря на свою внушительную длину, здание не доходит до пересечения переулка с Тележной улицей, так что очень долгое время сам перекресток был «оформлен» пустырем. Иногда у города и девелоперов возникали планы по его застройке, однако скромная площадь этого участка изначально обрекала строительство на абсолютную неприбыльность. Пока, наконец, не появилась идея пристроить новое здание вплотную к существующему, благо техническая возможность для этого была – производственный корпус метрополитена был обращен к перекрестку глухим торцом. Все, что в данной ситуации требовалось от архитекторов, так это соблюсти нормативный отступ в 5 сантиметров. И, конечно, спроектировать здание, которое бы одинаково органично воспринималось и как самостоятельный объект, и как продолжение существующего комплекса.  

В своих поисках художественного образа архитекторы отталкивались одновременно от двух идей: здание как продолжение очень громоздкого объема и здание как символ перекрестка, а если еще точнее, то острого угла, образованного в этом месте улицей и переулком. С первым все было более-менее понятно с самого начала: глухой торец требовалось как можно быстрее заполнить архитектурной материей, задрапировать, если угодно, чтобы многочисленные складки скрыли, наконец, унылый бетонный брандмауэр высотой в пять этажей. А необходимость зафиксировать в городском пространстве угол направила мысли авторов в более конструктивное русло, и образ здания-драпировки переродился в образ здания-шарнира или шестеренки. Свой офисный комплекс архитекторы спроектировали как пучок стеклянных призм, веером расходящихся из центра здания, и в плане эта необычная композиция действительно больше всего напоминает шестеренку.

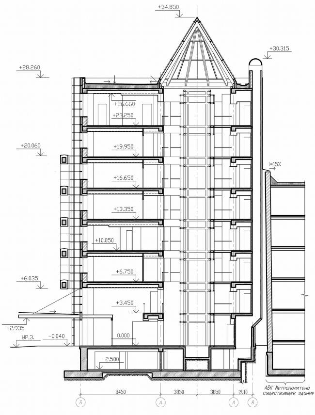
Чтобы удержать столь необычный «букет» и как-то стилистически объединить его с соседним зданием, на уровне 3-6-го этажей пучок призм стянут круглым каменным поясом, который и цветом, и ритмом оконных проемов подхватывает тектонический строй дома, созданного шестнадцатью годами раньше. Своей сферической формой этот элемент привносит в композицию соседа долгожданную завершенность: теперь кажется, что у здания, принадлежащего метрополитену, очень протяженный главный фасад и два скругленных боковых. При этом архитекторы «Студии 44», хоть в точности и воспроизводят пропорции квадратных окон соседнего здания, но на своем объекте намеренно сбивают их рядность. Так обои, наклеенные стык в стык, создают в помещении ощущение предсказуемости и порядка, а стоит слегка сдвинуть листы относительно друг друга, и та же самая комната наполняется обрывками недосказанных фраз и нюансами дополнительных смыслов. Плюс каменная сетка, опоясывающая стеклянные зубцы шестеренки, отнюдь не везде прилегает к ним вплотную, и это также придает зданию визуальную легкость и динамизм.

Определенную интригу в восприятие объекта вносит и незавершенность его композиции. Со стороны перекрестка оно воспринимается как полноценный цилиндр с заключенными внутри странноватыми сталактитами, но на самом деле от цилиндра отсечена добрая треть, иначе его не получилось бы прислонить к соседнему зданию. То же самое и с соцветием собственно офисных блоков: кажется, что архитекторы изобразили в плане восьмицветик, а на самом деле лепестков всего пять. И эта обманчивость зданию только на руку – оно притягивает к себе взгляды, заставляет размышлять, а тех, кто совсем ничего не помнит из курса школьной геометрии, – безудержно фантазировать.

Поскольку здание целиком заняло собой отведенный участок застройки, для организации входной зоны архитекторам пришлось несколько урезать два нижних этажа и тем самым заставить их отступить от фасадной линии. Подобный отступ стеклянные призмы совершают повторно после того, как выныривают из каменных объятий, – и это не только дань законам симметрии, но и вполне практичное желание организовать видовые площадки.

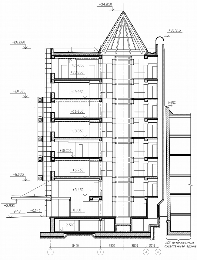
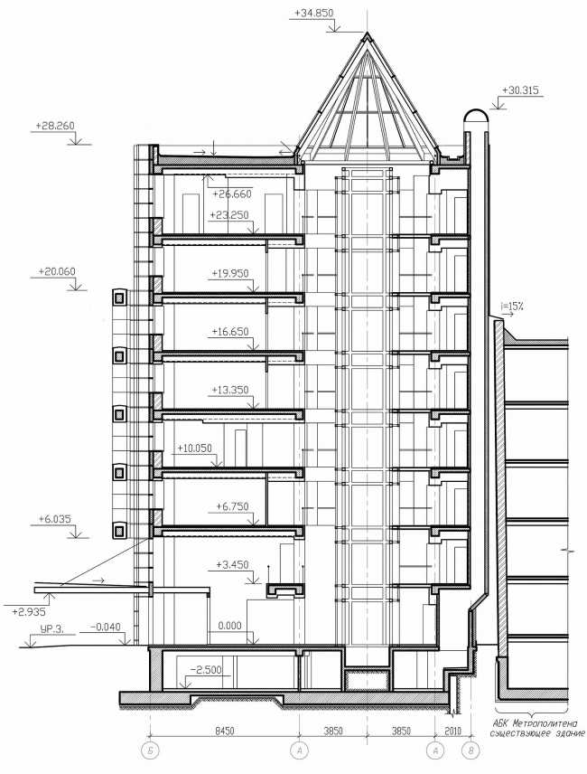
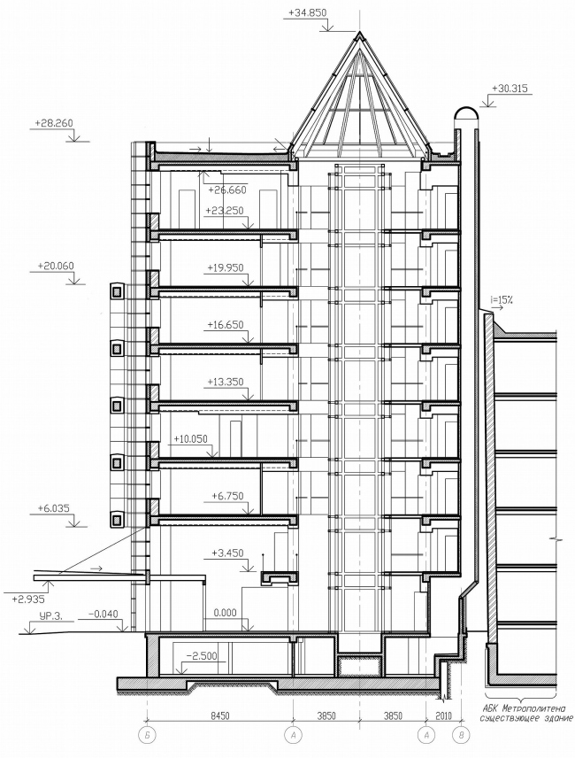
Несмотря на внешнюю вычурность композиции бизнес-центра, его внутренние планировки очень рациональны. В основе всего объема – радиальная структура, с композиционным стержнем в виде маленького круглого атриума. В этом сердечнике размещены лифты и обходные галереи, ведущие в офисы, а вплотную к соседнему зданию размещен трапециевидный в плане блок инженерных коммуникаций. Атриум увенчан коническим фонарем верхнего света, а чтобы дневной свет проникал на все восемь этажей образованного колодца, пол обходных галерей выполнен из матового стекла.

Формально этот объект – всего лишь пристройка, однако «Студии 44» даже в условиях крайне маленького участка и соседства с монстроподобным объемом удалось спроектировать здание, обладающее собственным характером и голосом. С помощью своей динамичной композиции оно фиксирует резкую смену направления улицы, а каменное «обертывание» не только придало его облику завершенность, но и помогло компенсировать грузность рядом стоящего здания.
Бизнес-центр «Блэкрец плаза»
Бизнес-центр «Блэкрец плаза»
Фото с сайта Студия 44
Бизнес-центр «Блэкрец плаза»
Бизнес-центр «Блэкрец плаза»
Фото с сайта Студия 44
Бизнес-центр «Блэкрец плаза»
Бизнес-центр «Блэкрец плаза»
Фото с сайта Студия 44
Бизнес-центр «Блэкрец плаза»
Бизнес-центр «Блэкрец плаза»
Фото с сайта Студия 44
Бизнес-центр «Блэкрец плаза»
Бизнес-центр «Блэкрец плаза»
© Студия 44
Бизнес-центр «Блэкрец плаза»
Бизнес-центр «Блэкрец плаза»
© Студия 44
Бизнес-центр «Блэкрец плаза»
Бизнес-центр «Блэкрец плаза»
© Студия 44
Бизнес-центр «Блэкрец плаза»
Бизнес-центр «Блэкрец плаза»
© Студия 44
Бизнес-центр «Блэкрец плаза»
Бизнес-центр «Блэкрец плаза»
© Студия 44