Размещено на портале Архи.ру (www.archi.ru)

15.09.2010

Белая молния

Анна Мартовицкая
Объект:
Торговый пассаж с офисными помещениями в Севастополе
Адрес:
Россия, Севастополь. ул. Айвазовского, д. 3
Мастерская:
АМ Сергей Киселев и Партнеры
Авторский коллектив:
Сергей Киселёв, Андрей Никифоров, Антон Бусалов

В Севастополе, на месте бывшей швейной фабрики, архитектурная мастерская «Сергей Киселев и Партнеры» спроектировала многофункциональный комплекс площадью 13500 тысяч квадратных метров. Он объединяет магазины, кафе, кинотеатр и офисы, и похож на пассаж под открытым южным небом – здания будут нанизаны на ось новой, спускающейся к морю пешеходной улицы, которую архитекторы прокладывают внутри существующего квартала.

Торговый пассаж с офисными помещениями в Севастополе
Торговый пассаж с офисными помещениями в Севастополе
© АМ Сергей Киселев и Партнеры

Швейная фабрика расположена рядом с морем, на берегу Артиллерийской бухты Севастополя, в зеленом «сталинском» районе на набережной, которая с недавнего времени носит имя генерала Корнилова. С одной стороны – пышные колонны и массивные карнизы послевоенной классики, с другой – брутальные фигуры героев Великой отечественной.

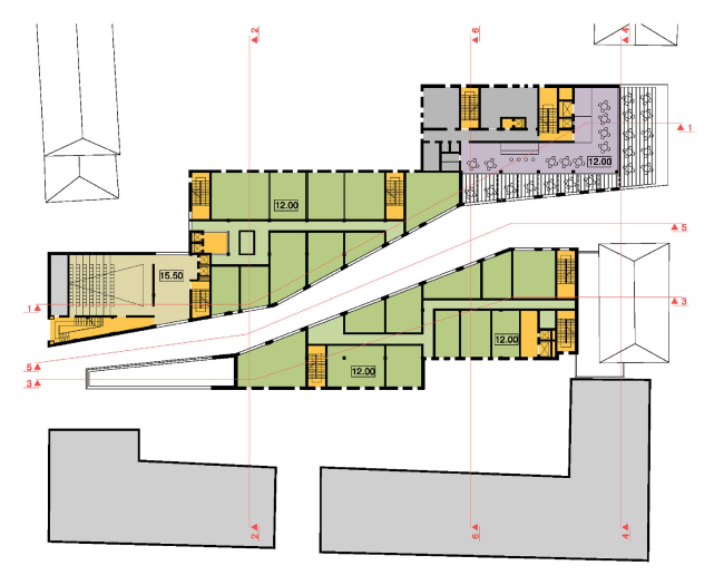
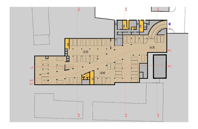
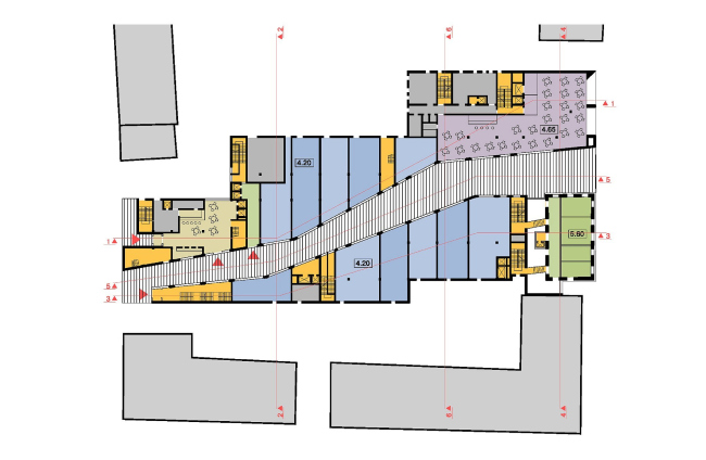
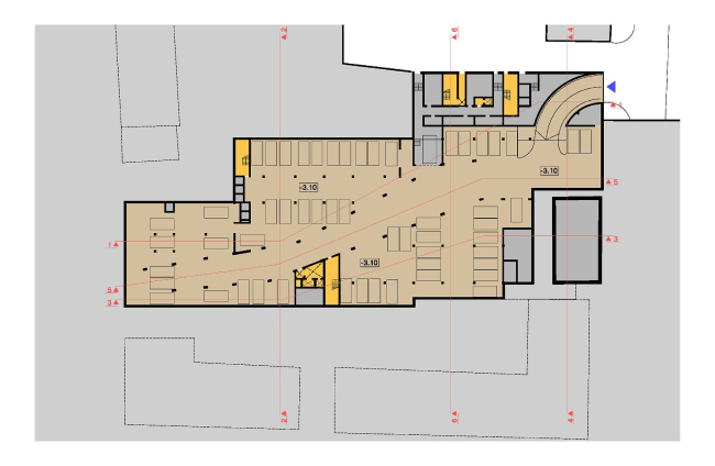
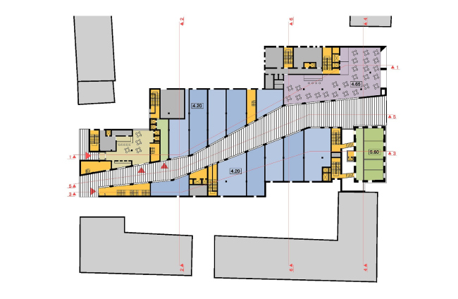
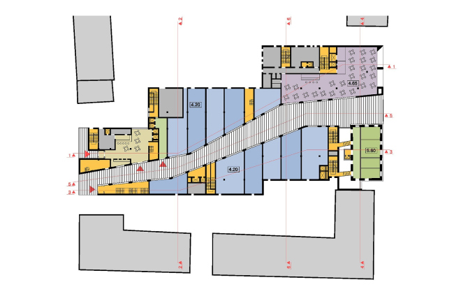
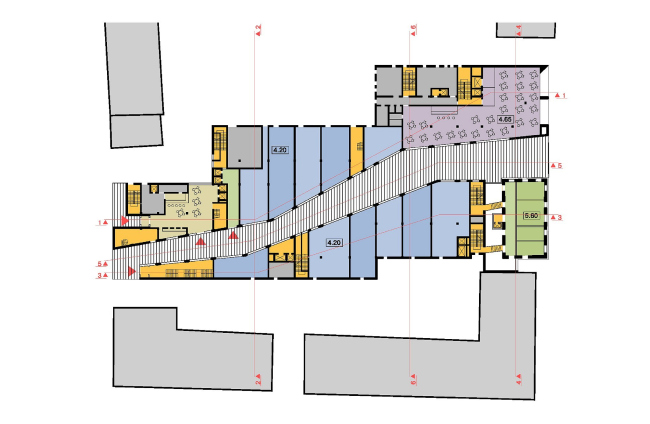
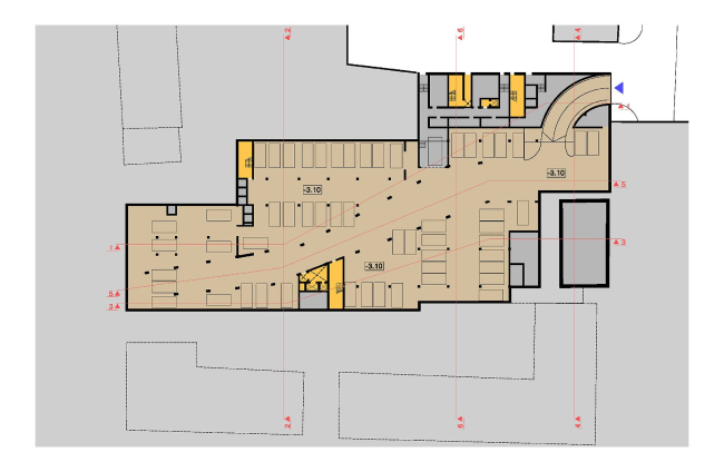
Главное здание фабрики – это длинный прямоугольный корпус, объем которого разрезает пополам трапециевидный квартал, обстроенный по периметру жилыми домами. Этот очень длинный дом, фактически служит перемычкой между улицами Айвазовского, ведущей к Артиллерийской бухте, и Маяковского, уводящей, напротив, прочь от моря, к центру города. На месте этого корпуса архитекторы предложили соорудить новое здание, прорезав его по диагонали новой пешеходной улицей в сторону моря. Коммерческая состоятельность подобного решения очевидна: на пешеходную зону можно раскрыть куда больше общественных заведений и магазинов, чем на имеющиеся улицы, к которым комплекс изначально обращен узкими торцами. А еще участок расположен на склоне и перепад высот на его территории составляет почти 7 метров. Идея извилистой мощеной улочки, спускающейся к морю, показалась архитекторам настолько близкой духу Севастополя, что никакие другие аргументы в пользу этого решения уже не требовались.

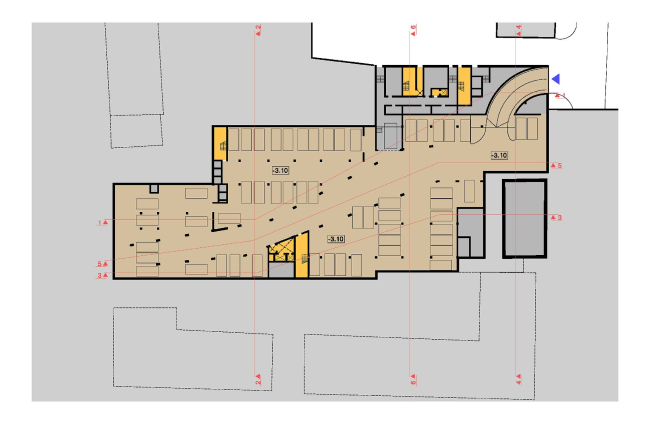
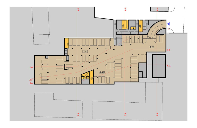
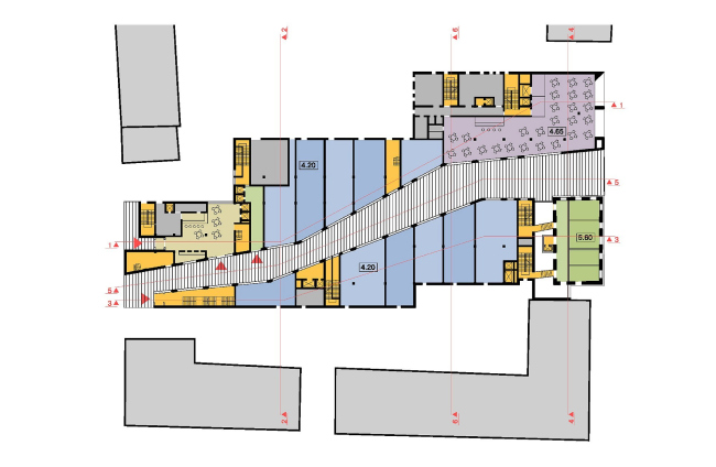
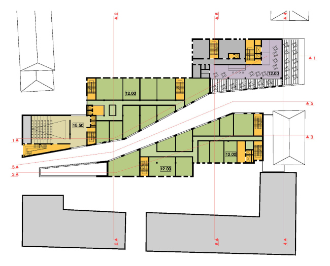
Пешеходная зона спроектирована криволинейной не только из желания создать уютное пространство южного приморского города и замкнуть перспективы изгибами узких улиц. Прежде всего, архитекторы заботились о комфорте тех, кто будет по ней гулять: будь улица ровной, она превратилась бы в довольно крутую горку, поход по которой далеко не каждый смог бы назвать приятным. Живописно переламываясь, пешеходная улочка делит комплекс на два корпуса, которые на уровне земли кажутся совершенно самостоятельными строениями, хотя на самом деле объединены общим подземным пространством с паркингом. Изломы их фасадов представляют собой зеркальное отражение друг друга, из-за чего комплекс становится похож на гору, рассеченную надвое ударом молнии. Это ощущение усиливает подчеркнуто зигзагообразный рисунок улицы: здания, разделенные ею, в плане напоминают сложенные вместе латинские буквы p и b. А вот высота у корпусов разная: один отчетливо спускается по склону и «раскладывается» на несколько гигантских ступеней, а второй, наоборот, растет в противоположную от моря сторону. В противном случае в довольно узкую расщелину пешеходной улицы и окна выходящих в нее офисов не попадало бы достаточно солнца.

Близость моря и обаяние курортного города оказали самое непосредственное влияние и на внешний облик комплекса. При этом архитекторы не стали ни воспроизводить черты столь свойственного Севастополю классицизма, ни фантазировать на морскую тематику. Дань уважения яркому южному солнцу и сложившейся застройке «августейшего города» авторы отдают с помощью тщательно продуманного подбора материалов. Все фасады комплекса будут отделаны исключительно в светлых тонах и тем самым поддержат праздничную палитру севастопольской застройки. Для обрамления оконных проемов, углов домов, а также фасадов, выходящих на улицы Айвазовского и Маяковского, архитекторы намерены использовать светлый известняк, основные же плоскости стен будут покрыты крупнофактурной штукатуркой и выкрашены в белый или светло-бежевый цвет. Что же касается собственно архитектурного решения, то три из четырех уличных фасадов (последний принадлежит реставрируемому административному зданию швейной фабрики) комплекса выполнены подчеркнуто лаконично и представляют собой либо почти глухие шероховатые поверхности, либо стеклянный экран, рассеченный каменными перемычками на несколько прямоугольников. Плоскости, обращенные к пешеходной зоне, куда богаче на окна самых разных размеров и форм. Одни проемы растут прямо от земли и больше напоминают порталы, другие разбегаются по фасадам карточной колодой, третьи представляют собой узкие горизонтальные полосы. Кажется, что на зданиях, смотрящих друг на друга в упор, нет ни одного повторяющегося окна, и во многом именно за счет этого приема архитекторам удается избежать ощущения колодца.

В центре пешеходной зоны предполагается разместить кафе и торговую галерею, так что каждый магазинчик будет выходить на новую улочку своей витриной. Со стороны улицы Айвазовского разместится развлекательный центр, а на Маяковского будет выходить кинотеатр. В последнем будет два зала, и перепад рельефа позволяет расположить их друг над другом, что, в свою очередь, разделит зрительские потоки и избавит от столпотворения в кассах. На третьем, четвертом и пятом этажах комплекса расположатся офисы. Из-за того, что объемы домов увеличиваются во встречном направлении, площадь рабочих помещений с ростом этажности уменьшается. Таким образом, в городе появится бизнес-центр с максимально большим выбором офисов разной площади.

Впрочем, главное приобретение, которое Севастополь получит вместе с реализацией проекта «СКиП», это  конечно, сама пешеходная улица. Улица, похожая на вестибюль под открытым южным небом, впустит бурный людской поток внутрь квартала, который до этого в жизни города никак не участвовал.

Торговый пассаж с офисными помещениями в Севастополе
Торговый пассаж с офисными помещениями в Севастополе
© АМ Сергей Киселев и Партнеры
Торговый пассаж с офисными помещениями в Севастополе
Торговый пассаж с офисными помещениями в Севастополе
© АМ Сергей Киселев и Партнеры
Торговый пассаж с офисными помещениями в Севастополе
Торговый пассаж с офисными помещениями в Севастополе
© АМ Сергей Киселев и Партнеры
Торговый пассаж с офисными помещениями в Севастополе
Торговый пассаж с офисными помещениями в Севастополе
© АМ Сергей Киселев и Партнеры
Торговый пассаж с офисными помещениями в Севастополе
Торговый пассаж с офисными помещениями в Севастополе
© АМ Сергей Киселев и Партнеры
Торговый пассаж с офисными помещениями в Севастополе
Торговый пассаж с офисными помещениями в Севастополе
© АМ Сергей Киселев и Партнеры
Торговый пассаж с офисными помещениями в Севастополе
Торговый пассаж с офисными помещениями в Севастополе
© АМ Сергей Киселев и Партнеры
Торговый пассаж с офисными помещениями в Севастополе
Торговый пассаж с офисными помещениями в Севастополе
© АМ Сергей Киселев и Партнеры
Торговый пассаж с офисными помещениями в Севастополе
Торговый пассаж с офисными помещениями в Севастополе
© АМ Сергей Киселев и Партнеры
Торговый пассаж с офисными помещениями в Севастополе
Торговый пассаж с офисными помещениями в Севастополе
© АМ Сергей Киселев и Партнеры
Торговый пассаж с офисными помещениями в Севастополе
Торговый пассаж с офисными помещениями в Севастополе
© АМ Сергей Киселев и Партнеры
Торговый пассаж с офисными помещениями в Севастополе
Торговый пассаж с офисными помещениями в Севастополе
© АМ Сергей Киселев и Партнеры