Размещено на портале Архи.ру (www.archi.ru)

23.07.2010

Ничего лишнего

Анна Мартовицкая
Объект:
Жилой квартал «Волжская-LIFE»
Адрес:
Россия, Москва. РУ «Текстильщики», кв. 109
Мастерская:
АМ Сергей Киселев и Партнеры
Авторский коллектив:
Архитекторы: Сергей Киселев, Валерий Швецов, Сергей Заянчковский, Ольга Галкина, Дмитрий Дерябин, Полина Илюшина. Инженеры: Игорь Шварцман, Светлана Фомочкина

Для московского района «Текстильщики» архитектурная мастерская «Сергей Киселев и Партнеры» спроектировала новый жилой квартал, состоящий из 6 многоквартирных башен. Лаконичные по форме и цветовой гамме объемы обещают стать украшением района. Архитекторы сознательно отказались почти от всех возможных «излишеств» ради того, чтобы процесс насыщения скудной визуальной среды шел постепенно и максимально деликатно.

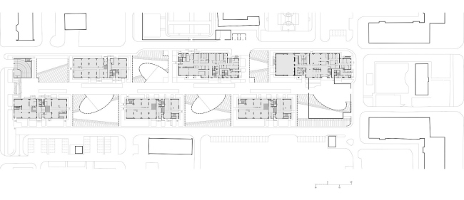
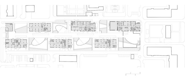
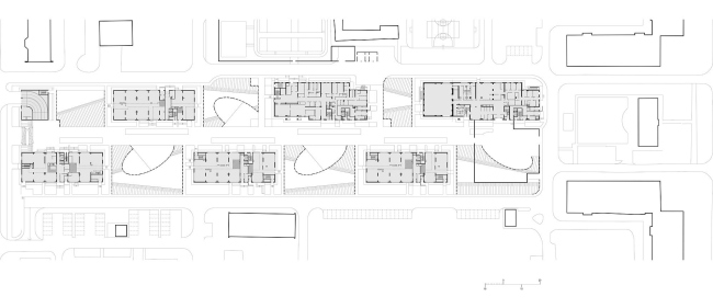
Квартал, который в ближайшее время будет реконструирован, в официальных градостроительных документах Москвы имеет порядковый номер 109 и расположен точно посередине между двумя равноудаленными от центра станциями метро – «Волжская» и «Текстильщики». Он ограничен улицами Чистова, Шкулева, Малышева и 7-й улицей Текстильщиков. При этом по улице Шкулева проходит граница Люблинского ПКиО, то есть с трех сторон квартал зажат подобной ему самому типовой застройкой, а четвертой – обращен к парку.

Возникает вполне закономерный вопрос: почему реконструкции будет подвергнут именно этот квартал, а не любой из соседних? Ответ кроется в характере существующей здесь застройки. Дело в том, что на территории квартала, помимо пяти- и девятиэтажек, сохранились двухэтажные жилые дома, построенные сразу после Великой Отечественной Войны и до недавнего времени принадлежавшие Министерству обороны РФ. Именно эти корпуса, давно признанные аварийными, и будут снесены в рамках реализуемого проекта реконструкции, а на их месте вырастут многоэтажки, придуманные «СКиП».

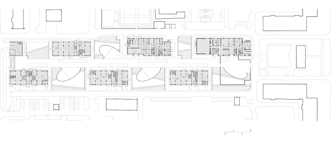
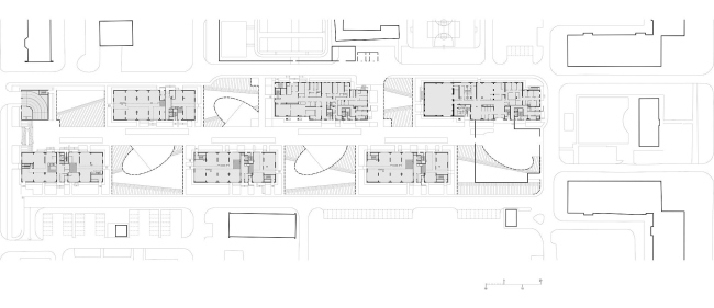
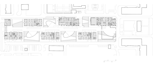
Поскольку двухэтажные дома расположены точно в центре квартала и окружены более поздними постройками, перед архитекторами стояла задача построить новые дома так, чтобы они не нарушали инсоляцию уже имеющихся, а также не препятствовали проезду к ним пожарной техники. Учет двух этих ключевых требований СНиПов в итоге и подсказал простое и рациональное решение генплана нового жилого ядра квартала. Проектируемый комплекс «СКиП» замыкает в периметр новых автомобильных проездов, которые обеспечат абсолютно все дома удобными подъездами и дадут необходимый отступ новой застройки от уже существующей. Шесть новых жилых домов (высотой от 14 до 20 этажей) выстроятся двумя аккуратными строчками по продольной оси квартала на общем прямоугольнике подземной парковки. Здания расставлены в два ряда, но в шахматном порядке.

О депрессивном облике спальных районов юго-востока Москвы знает каждый, кто хоть раз здесь бывал. Перед пешеходами и автомобилистами «Текстильщики» предстают как бесконечная череда однотипных унылых кварталов, а с высоты птичьего полета этот район – бескрайнее клетчатое полотно, на котором глазу совершенно не за что зацепиться. В том, что с подобной серостью нужно бороться, сомнений нет ни у кого. Однако делать это можно по-разному. Сегодня, например, очень принято взрывать «типовуху» ярчайшими цветами и сверхдинамичными формами – мол, так районы приобретают долгожданные архитектурные доминанты, которые переориентируют на себя все визуальные связи. И такой опыт у «СКиП» есть – достаточно вспомнить жилой дом «Авангард», расцветивший район Новых Черемушек всеми цветами радуги. Однако «Текстильщики» в градостроительном смысле район куда более однородный и по-пролетарски мрачный, и архитекторы, начав работу над кварталом 109 с очередного колористического фейерверка, очень вовремя остановились, поняв, что на юго-востоке столицы такие объекты если не навсегда, то еще очень надолго останутся чужаками. Но что можно противопоставить бедности, если не откровенный достаток? Так в мастерской началась кропотливая работа по созданию адекватного существующей ситуации художественного языка.

Первые этажи всех корпусов отведены под общественные помещения, и архитекторы визуально это подчеркнули с помощью сразу нескольких приемов. Во-первых, входы в объекты инфраструктуры организованы со стороны двора, тогда как жилые подъезды обращены к улице. Во-вторых, нижние этажи жилых высоток и фасады пристроек, в которых разместятся детский сад и начальная школа, облицовываются многоцветным кирпичом. А между «шеренгами» домов разбивается внутренний двор, трактованный в силу своей протяженности, скорее, как небольшой пешеходный бульвар, по границам которого высаживаются деревья и кустарники, устраиваются газоны. Последние совсем не случайно имеют характерную полуовальную форму лепестков, – это озелененные участки эксплуатируемой кровли подземной автостоянки.

Фасады жилых объемов оформлены столь излюбленной «СКиП» структурной решеткой, сегменты которой заполнены облицовочными плитами различных цветов. И если общественные помещения, благодаря разноцветному кирпичу, кажутся пестрыми и теплыми, как любимый связанный мамой шарф, то вырастающие из них башни куда более строги и сдержанны. Однако, такое впечатление возникает только в том случае, когда приближаешься к жилому комплексу вплотную, на расстоянии же картина кардинально меняется: меланж основания домов издалека почти неразличим, зато сами они визуально мгновенно разбиваются на пары – два зеленых, два голубых, два бордовых. В том, что все шесть корпусов «из одной семьи», не оставляет сомнений уже упомянутая решетка, «оборачивающая» дома по внешнему периметру. Такую поверхность можно сравнить с трехмерной картиной: чем дольше смотришь, тем отчетливее сквозь геометрический рисунок проступает что-то другое.

Сам по себе этот прием не нов – на ум, например, сразу приходит здание ЦЭМИ Леонида Павлова, главной темой фасадов которого также стала клетка, правда, не прямоугольная, а квадратная. И, кажется, эта ассоциация неслучайна, – стремясь встроить новые дома в существующий контекст по возможности органично, архитекторы сознательно использовали художественный язык модернизма 1960-х, дополнив его такими «излишествами» современности, как цвет, качественные облицовочные материалы и удобные планировки помещений. Проект реконструкции квартала 109 убедительно доказывает, что многократно воспетый критиками средовой подход уместен не только в том случае, когда новое строительство ведется в историческом центре города. Для постепенного обновления спальных районов, созданных в середине прошлого века, он также подходит, ведь среду обитания невозможно исправить в одночасье, а вот постепенные деликатные корректировки способны принести реальный результат.
генплан
генплан
Жилой квартал «Волжская-LIFE»
Жилой квартал «Волжская-LIFE»
© АМ Сергей Киселев и Партнеры
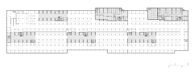
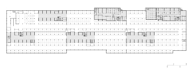
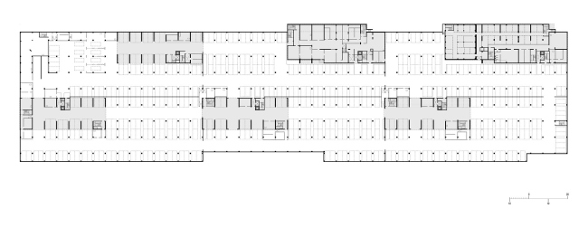
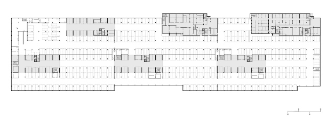
план первого этажа
план первого этажа
разрезы
разрезы
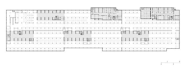
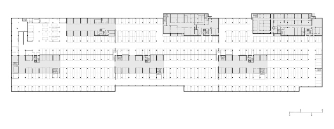
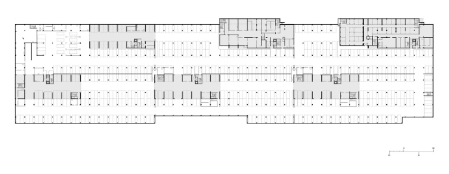
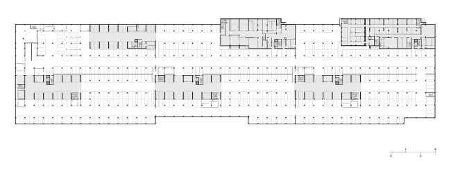
план парковки
план парковки