Размещено на портале Архи.ру (www.archi.ru)

03.12.2009

По мотивам шотландки

Анна Мартовицкая
Объект:
Деловой центр на улице Серпуховский Вал
Адрес:
Россия, Москва. ул. Серпуховский Вал, вл. 19
Архитектор:
Сергей Киселев
Мастерская:
АМ Сергей Киселев и Партнеры
Авторский коллектив:
Архитекторы: Сергей Киселев, Виктор Бармин, Галина Харитонова, Анастасия Хомякова, Вероника Джантимирова Инженеры: Игорь Шварцман, Светлана Фомочкина, Александр Коршунов, Ольга Аксёнова, Алла Рысакова, Виталий Сергеев, Александр Крылов, Игорь Радин, Евгений Кирюханцев, ООО «ИКЦ ПФ»

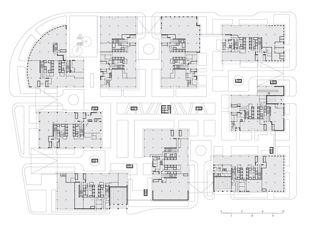
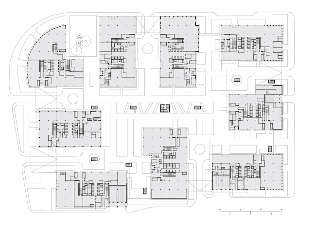
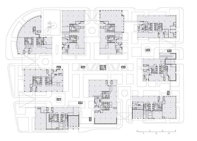
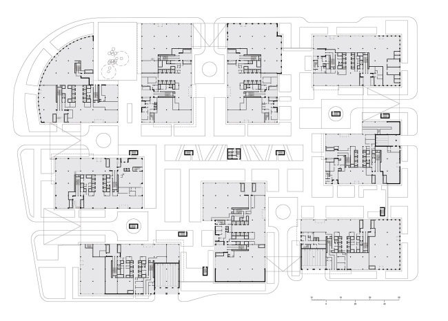
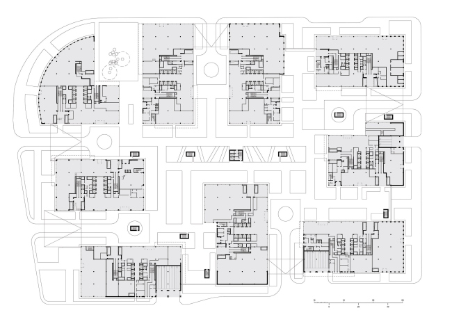
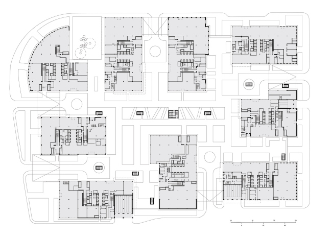
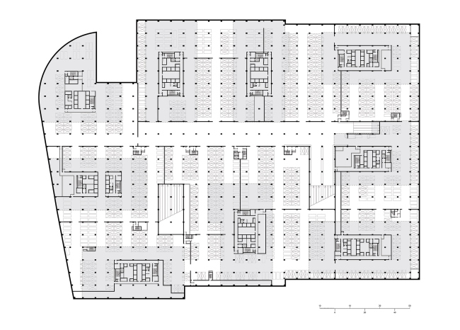
На пересечении Серпуховского вала и улицы Шаболовка по проекту мастерской «Сергей Киселев и Партнеры» будет построен деловой комплекс, состоящий из девяти разновысотных зданий. Спроектированные исключительно под офисы и строящиеся максимально плотно друг к другу, эти здания, тем не менее, не грозят превратить район в еще один «сити», но удивительно точно отвечают его масштабу, колористике и характеру застройки.

Деловой центр на улице Серпуховский Вал
Деловой центр на улице Серпуховский Вал
© АМ Сергей Киселев и Партнеры
Участок застройки ограничен Серпуховским валом, 1 и 4-м Рощинскими проездами и Малым Орловым переулком. Сегодня это территория Московского завода по обработке цветных металлов – производства сколь вредного, столь и масштабного, которому на границе с центральным округом столицы по большому счету уже давно не место. Решение о перебазировании завода правительство города приняло еще в 2004 году, и сейчас он постепенно сворачивает свою деятельность. Параллельно начато освоение высвобождаемой территории. Сначала здесь планировалось создать жилой комплекс, однако более пристально изучив генплан Москвы и узнав, что в ближайшие годы 1-й Рощинский проезд, служащий продолжением улицы Шаболовка, будет расширен и продлен до Третьего Транспортного кольца, инвестор решил, что на столь бойком в будущем перекрестке целесообразнее построить офисный центр.

Свою работу над проектом «СКиП» начала с расчетов транспортной составляющей, отлично понимая, что ключ успеха офисного комплекса в мегаполисе заключается в его транспортной обеспеченности. Были учтены все показатели – пропускная способность имеющихся дорог, максимальное количество машин, которые смогут одновременно приехать в бизнес-центр и разместиться на подземной парковке, время ее заполнения, оптимальное количество въездов и т.п. Исходя из этих показателей были рассчитаны оптимальные площади будущего делового центра. В «СКиП» вообще убеждены, что подобный детальный «обратный отсчет», а не эффектные картинки – основа сложных градостроительных комплексов.

Правда, и без картинок не обошлось. Когда первоначальный вариант концепции уже был готов, заказчик заявил, что хочет реализовать на данном участке другой проект. Концепция, разработанная иностранным консультантом, предусматривала, что участок по периметру будет застроен зданиями, соединенными замысловатыми галереями и с садами на крышах. Как архитектурная фантазия она была, бесспорно, яркой, но одновременно далекой от российских климатических реалий и, тем более, нормативов. Проанализировав эту концепцию тщательно, архитекторы «СКиП» пришли к выводу, что в ней есть рациональное зерно: композиция, состоящая из самостоятельных объектов, каждый из которых можно построить и сдать в эксплуатацию независимо от соседнего. Если вдуматься, такая идея хорошо соответствует кризисному времени, ведь сегодня ни один инвестор не может быть на сто процентов уверен в том, что на будущий год он найдет финансирование на продолжение стройки. В конечном счете  за основу был взят именно вариант с ансамблем отдельных корпусов, и «СКиП» приложила все усилия к тому, чтобы офисные здания стали сомасштабными окружающей застройке и не диссонировали с ней своей архитектурой. Единственное место, где городская ткань сможет изменить характер – только на углу Серпуховского вала и 1-го Рощинского проезда: разноэтажная заводская застройка здесь ненамного превышает безликий бетонный забор, тогда как проектируемый офисный комплекс к этому краю участка, наоборот, наберёт максимальную высоту и станет на будущей развязке заметной градостроительной доминантой.

Проектировщики были скованы целым рядом ограничений, в том числе и высотными. Справа от участка застройки, через узкий 4-й Рощинский проезд, расположены жилые дома; их новый комплекс не должен был затенять. С другой стороны, – уже через 1-й Рощинский проезд, на возвышении находится знаменитая «Дача-голубятня» – загородная резиденция графа А.Г. Орлова. Ответом на оба ограничения стало понижение высоты корпусов, обращенных непосредственно к памятнику архитектуры и жилым домам, причем во втором случае проектировщики придали зданиям форму уступов – на красные линии выходят объемы, сомасштабные окружающей жилой застройке, а по мере отступления вглубь участка они постепенно увеличивают этажность. Аналогичный прием использован в зданиях, обращенных к Серпуховскому валу, правда, в этом случае отступ не столь значителен. Полученные за счет этого террасы будут озеленены и превращены в благоустроенные. Было и еще одно стремление – по итогам ландшафтно-визуального анализа  сохранить память об имеющемся сейчас на участке жилом доме работников завода, спроектированном, возможно, в мастерской А. Веснина. «СКиП» воссоздаст в новых материалах главный фасад со всеми его характерными для довоенной архитектуры чертами – эффектным развитым карнизом, редкими, но массивными балконами, рисунком рустовки. А чтобы не сталкивать лоб в лоб приемы разных эпох, основной объем корпуса будет отделен от «исторической» вертикальной стеклянной вставкой – предельно лаконичной, но четко обозначающей границу стилей.

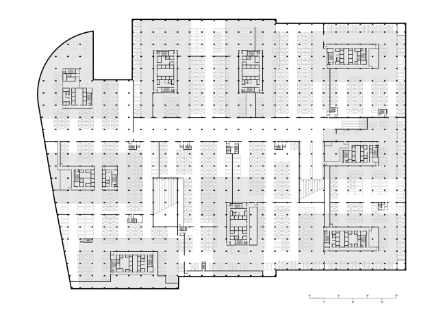
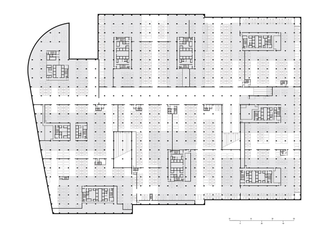
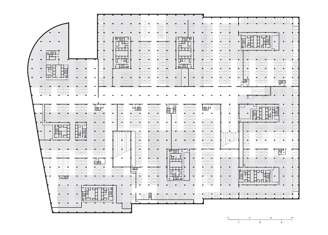
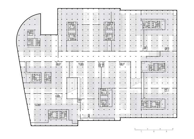
В том, что касается архитектуры фасадов комплекса, перед авторами стояла непростая задача создать визуально насыщенную среду в условиях, во-первых, сверхплотной, а во-вторых, бюджетной застройки. Требовалась единая ненавязчивая тема, способная безболезненно пережить девятикратное воспроизведение с минимальными изменениями. И такая тема нашлась. По словам главного архитектора проекта Виктора Бармина, ею стала… ткань шотландка, предлагающая невероятное множество вариантов клетчатого узора. Именно клетка – большая и маленькая, строгая однообразная или же наоборот, неравномерная, со сбитым ритмом – легла в основу оформления фасадов девяти офисных зданий. Клетка воспроизводится в самых разных материалах – керамограните, металлических панелях, витражных конструкциях.

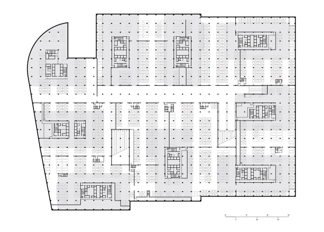
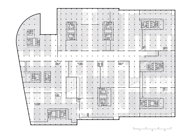
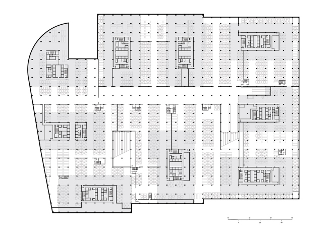
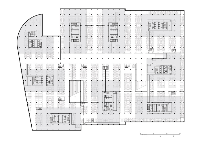
Под всеми корпусами, как это сейчас принято, на всю территорию застройки предусматривается трехуровневый подземный паркинг. Это позволило существенно увеличить количество машино-мест, однако создало для авторов ряд дополнительных сложностей. В частности, как уже говорилось, каждое здание должно функционировать автономно. Но каким образом подвести ко всем девяти корпусам необходимые коммуникации, минуя паркинг?  Мастерской пришлось спроектировать специальный кольцевой коридор на уровне подвала, в котором и будут пролегать транзитные коммуникации.

Вопросы транспорта, с которых началось создание этого проекта, требовали к себе повышенного внимания архитекторов на всем протяжении работы. Понятно, что в столь масштабный офисный комплекс (почти 350 тыс. кв. м) будет приезжать, причем практически одновременно, очень большое количество машин. Для того чтобы избежать автомобильных пробок на Серпуховском валу и на всех прилегающих к комплексу улицах, архитекторы предлагают расширить Малый Орлов переулок и сделать его сквозным. Кроме того, были спроектированы целых три заезда в подземный паркинг, причем каждый из них ведет только на свой уровень, что будет способствовать равномерному распределению машин.

Создавая на месте бывшего завода фактически целый офисный городок, архитекторы проектируют его как неотъемлемую часть общегородского пространства. У делового комплекса не будет собственной территории, огороженной высоким забором, – прогуляться вдоль «клетчатых» фасадов и отдохнуть в разбиваемых здесь скверах смогут все желающие. И не только! Для еще большей «социализации» нового делового квартала первые этажи зданий отводятся под магазины, коммунальные службы шаговой доступности, рестораны и кафе. А в угловом здании-доминанте, обращенной к Шаболовке и имеющей плавно скругленный фасад, – разместится отделение банка.
Деловой центр на улице Серпуховский Вал
Деловой центр на улице Серпуховский Вал
© АМ Сергей Киселев и Партнеры
Деловой центр на улице Серпуховский Вал
Деловой центр на улице Серпуховский Вал
© АМ Сергей Киселев и Партнеры
Деловой центр на улице Серпуховский Вал
Деловой центр на улице Серпуховский Вал
© АМ Сергей Киселев и Партнеры
Деловой центр на улице Серпуховский Вал
Деловой центр на улице Серпуховский Вал
© АМ Сергей Киселев и Партнеры
Деловой центр на улице Серпуховский Вал
Деловой центр на улице Серпуховский Вал
© АМ Сергей Киселев и Партнеры
Деловой центр на улице Серпуховский Вал
Деловой центр на улице Серпуховский Вал
© АМ Сергей Киселев и Партнеры
Деловой центр на улице Серпуховский Вал
Деловой центр на улице Серпуховский Вал
© АМ Сергей Киселев и Партнеры
Деловой центр на улице Серпуховский Вал
Деловой центр на улице Серпуховский Вал
© АМ Сергей Киселев и Партнеры
Деловой центр на улице Серпуховский Вал
Деловой центр на улице Серпуховский Вал
© АМ Сергей Киселев и Партнеры
Деловой центр на улице Серпуховский Вал
Деловой центр на улице Серпуховский Вал
© АМ Сергей Киселев и Партнеры