Размещено на портале Архи.ру (www.archi.ru)

07.12.2009

Зигзаг здоровья

Анна Мартовицкая
Объект:
Медицинско-оздоровительный центр
Адрес:
Россия, Владимирская область, Александровский район, Лизуновский сельский округ, вблизи деревни Воскресенское
Архитектор:
Вера Бутко
Антон Надточий
Мастерская:
ATRIUM
Авторский коллектив:
Архитекторы: Антон Надточий, Вера Бутко, Андрей Сизюк, Александр Малыгин, Дмитрий Худеньких
Конструкторы: Алексей Калашников, Костас Лайос
Инженерия: «ДПМ -инжиниринг»

В проекте элитной медицинской клиники, совмещенной по замыслу заказчиков со spa-курортом, Вере Бутко и Антону Надточию удалось изящно вписаться в подмосковные пригорки, не утратив при этом линейной архитектурной честности. Получилось очень ландшафтно.

Медицинско-оздоровительный центр
Медицинско-оздоровительный центр
© ATRIUM
Будущий заказчик познакомился с архитекторами на церемонии вручения «Золотого сечения» 2007 года – то ли он пришел туда специально, чтобы познакомиться с архитекторами, то ли ему приглянулись работы Веры Бутко и Антона Надточего, выставленные среди номинантов премии. Кстати говоря, тогда «Атриум» получил от жюри «сечения» сразу три диплома за построенные здания. Надо сказать, это редкий случай, когда признание профессиональной премии совершенно очевидным образом помогло архитекторам познакомиться с будущими заказчиками. Впрочем, тогда «Атриум» пригласили только к участию в закрытом конкурсе, в котором, однако, их проекту было оказано предпочтение перед работами других российских и зарубежных бюро. 

Заказчики этого проекта – крупные предприниматели, и основа их бизнеса вовсе не медицина, как можно было бы подумать. Однако же строительство оздоровительного центра это не только способ «просто» вложить деньги. Впоследствии инвесторы планируют заниматься его управлением, а возможно, даже и поправить там собственное здоровье. Не исключено, что именно поэтому здесь будет опробована новая типология: медицинская клиника объединяется со spa-курортом. В России это делается впервые, хотя можно, конечно, провести отдаленную аналогию с понятием «санатория». Правда, если это и санаторий, то совершенно иного, «элитного» качества.

«Пятизвездочная клиника» (так ее в шутку называют архитекторы) будет оборудована по полной программе: консультации с врачами, лабораторные обследования, циклы оздоровительных процедур, при необходимости – даже операции и последующая реабилитация под наблюдением специалистов. Соответственно, в полученном архитекторами техническом задании была специально оговорена необходимость все подчинить идее оздоровления и очищения организма. Никаких дискотек, баров, интернет-кафе и конференц-залов, а также детских площадок и игровых комнат. По мнению создателей комплекса, его гостям будут нужны уединение и возможность сосредоточиться на лечении, а не соблазны в виде посещений друзей и кратковременных выездов в офис.

Чтобы достичь желаемого спокойствия и отрыва от столичных дел, участок для строительства выбрали подальше – семь с половиной гектаров бывшего пионерлагеря в живописном лесу на границе Московской и Владимирской областей. От типовых советских корпусов здесь давно уже ничего не осталось, зато есть живописный овраг, березовая роща и ручей, вытекающий из небольшого озера. Пейзажи совершенно идиллические и умиротворяющие.

Озеро почти пересохло, но его планируется восстановить, почистить и сделать композиционным центром оздоровительного комплекса, расставив вокруг водоема все постройки. А именно: с одной стороны – основной трехэтажный корпус с кабинетами врачей, операционной, лабораториями, а также гостиничными номерами и общественной зоной. Напротив – шесть блокированных коттеджей для тех, кто хочет соблюсти инкогнито или же просто не слишком часто встречаться с соседями; например, для высокопоставленных или известных клиентов. Кроме того, задуманы отдельное здание ресторана и даже небольшая теплица. По замыслу авторов проекта, выращивать в ней овощи и фрукты для ресторана смогут не только специальные огородники, но и сами гости. Действительно, что может быть целительнее трудотерапии в разумных объемах?

Распластанный зигзаг главного трехэтажного здания клиники перпендикулярно врезан в поверхность склона (перепад высот здесь большой, 15 метров, что делает вполне оправданной игру с рельефом). Массивные пласты бетонных перекрытий – излюбленный прием Бутко и Надточия, отработанный на загородных виллах – заворачиваются вокруг этажей, переламываются под разными углами, спускаются к земле длинными пандусами. Есть в них что-то геологическое, похожее на слои неведомых меловых пород, выветрившиеся между пригорками и перелесками среднерусского ландшафта. Впрочем, усомниться в рукотворном происхождении каменного зигзага будет невозможно: линии вполне себе прямые, только вот направляются все время куда-то наискосок, то отступая и опираясь на тонкие круглые «ножки», то – выдвигая консоли террас, смело повисающие над землей и друг над другом. Внутри за счет смещения пластин образуется трехсветное пространство атриума сложной конфигурации, вокруг которого группируются общественные функции.

Террасы будут засажены зеленой травой, по которой авторы проложили пасторальные тропки, стежки-дорожки, какие бывают летом на лугу. Эта деталь – незначительная, но очень показательная часть проектной графики – обладает удивительным обаянием и вносит что-то неуловимо приятное в идею озелененной архитектуры, в своем классическом варианте, признаться, уже изрядно поднадоевшую критикам. Благодаря этой тропинке раскрытые веером пласты террас выглядят частью поля – как будто бы подмосковную природу преподнесли гостям чудо-санатория «на блюдечке», и положили возле дверей.

Шесть коттеджей, расположенных, как уже было сказано, на противоположной стороне озера, состоят каждый из двух сблокированных «половинок», двухэтажной и одноэтажной. Приблизительно одинаковые по площади, эти части кардинально различаются по конфигурации и планировке. Это позволило архитекторам нетривиально решить утилитарную задачу: в том случае, если кто-то арендует коттедж целиком, он получит не разделенный на две части дом с зеркальной планировкой, вполне нормальное жилье с общественной зоной в центре, малой гостиной и несколькими спальнями. К тому же найденное решение позволяет уйти от скучного образа «блокированной застройки» –каждый дом состоит из двух частей, но снаружи это не бросается в глаза.

По словам Антона Надточего, прообразом каждой «половины» стал стандартный двускатный домик, из которого «вынуты» (а местами отсечены) отдельные объемы, что видоизменяет традиционную форму порой до неузнаваемости. Действительно, коттеджи как будто бы застыли в процессе трансформации. Скаты крыш то отвесно врастают в землю, то становятся почти что плоскими, то смыкаются глубокими козырьками, похожими на тяжелые бетонные капюшоны. Стены, наоборот, тонкие и легкие -- стекло здесь чередуется с деревянными панелями, а сквозь эти эфемерные прозрачные плоскости прорастают брутально-шероховатые каменные трубы. Домики будто вылупились из земли да и замерли, не решив, что им ближе – русский деревенский лемех (он на крышах), деревянные балкончики альпийского шале или классика прозрачного модернизма. 

Одним из пожеланий заказчиков было – сделать архитектуру современную, но не урбанистическую. А значит природную – буколическую. Современная архитектура любит природные формы, иногда они даже слишком изгибается и «прогибается», стремясь имитировать естественность и нерукотворность. Проект Бутко и Надточия не такой. Что любопытно, при всей его очевидной природности в нем нет ни одной кривой поверхности. Правда, сложно здесь найти и прямые углы – всяческих скосов и наклонов множество, а самых привычных, под 90 градусов, мало. Создается впечатление, что природную (скорее, геологическую) форму здесь огранили. Свели к отрезкам, либо с целью упростить (и удешевить, что немаловажно), либо – еще и для того, чтобы продемонстрировать ее рукотворность. Это своего рода договоренность между «архи» и «тектоникой», человеческим и экологическим; архитектура здесь пребывает как будто на грани между тем и другим. Вполне вероятно, что найденная «золотая середина» целительно подействует на посетителей этого подмосковного мини-курорта. Проверить это можно будет всего через пару лет, ведь строительство оздоровительного комплекса уже начато. В частности, возведены коттеджи, а отделочные работы в них начнутся будущим летом. Основной корпус начнет строиться, скорее всего, также в следующем году.
Медицинско-оздоровительный центр
Медицинско-оздоровительный центр
© ATRIUM
Медицинско-оздоровительный центр
Медицинско-оздоровительный центр
© ATRIUM
Медицинско-оздоровительный центр
Медицинско-оздоровительный центр
© ATRIUM
Медицинско-оздоровительный центр
Медицинско-оздоровительный центр
© ATRIUM
Медицинско-оздоровительный центр
Медицинско-оздоровительный центр
© ATRIUM
Медицинско-оздоровительный центр
Медицинско-оздоровительный центр
© ATRIUM
Медицинско-оздоровительный центр
Медицинско-оздоровительный центр
© ATRIUM
Медицинско-оздоровительный центр
Медицинско-оздоровительный центр
© ATRIUM
Медицинско-оздоровительный центр
Медицинско-оздоровительный центр
© ATRIUM
Медицинско-оздоровительный центр
Медицинско-оздоровительный центр
© ATRIUM
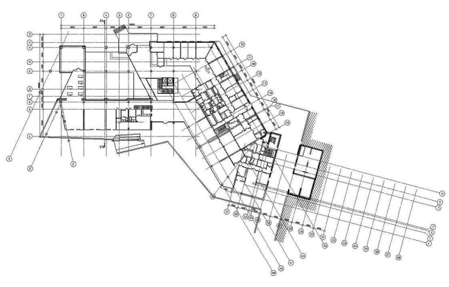
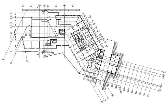
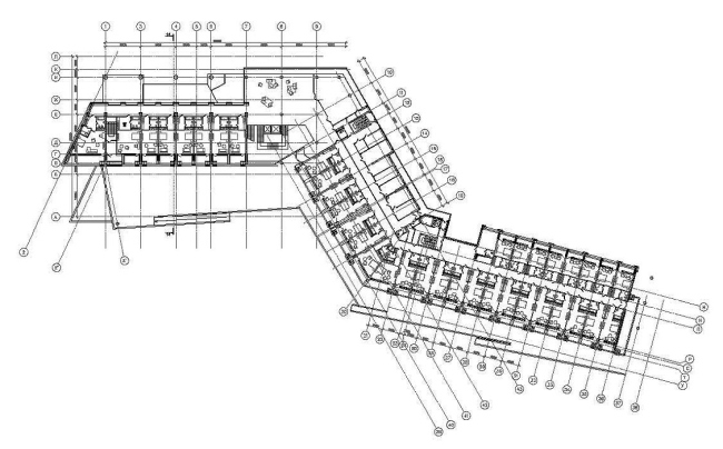
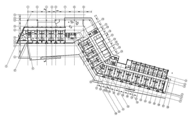
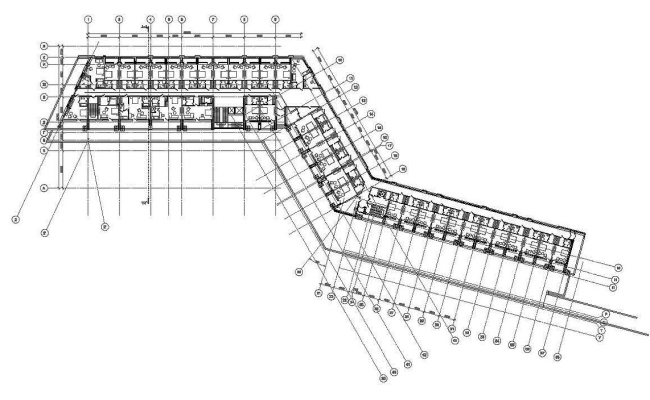
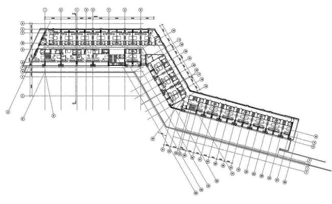
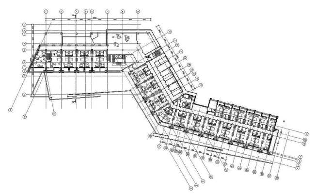
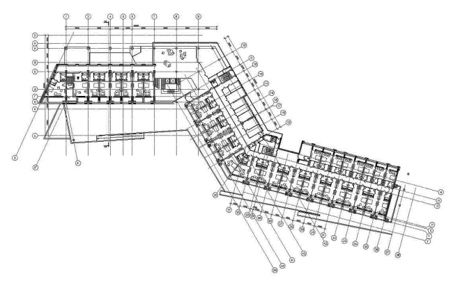
План 1-го этажа. Медицинско-оздоровительный центр
План 1-го этажа. Медицинско-оздоровительный центр
© ATRIUM
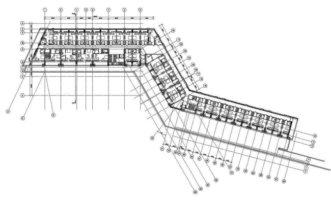
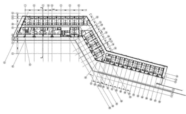
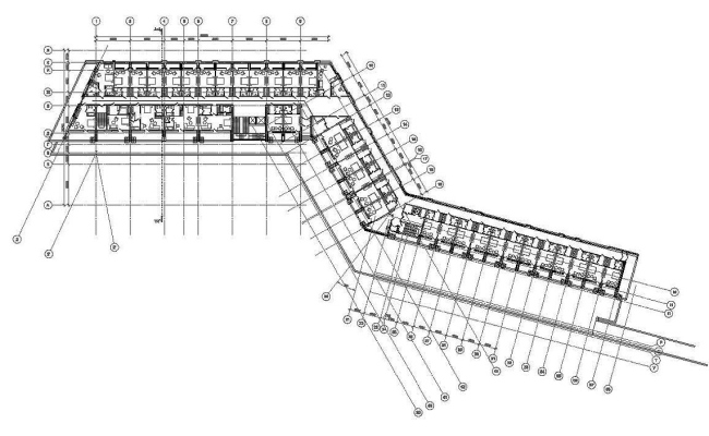
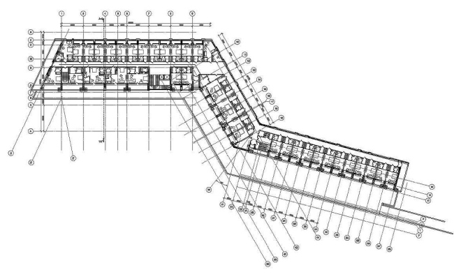
План 2-го этажа. Медицинско-оздоровительный центр
План 2-го этажа. Медицинско-оздоровительный центр
© ATRIUM
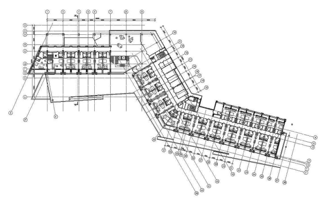
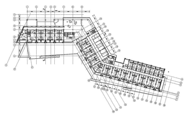
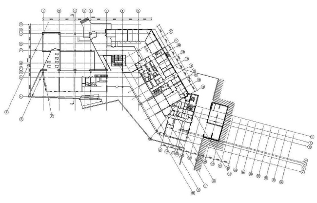
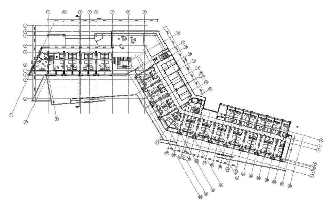
План 3-го этажа. Медицинско-оздоровительный центр
План 3-го этажа. Медицинско-оздоровительный центр
© ATRIUM
Медицинско-оздоровительный центр
Медицинско-оздоровительный центр
© ATRIUM