Размещено на портале Архи.ру (www.archi.ru)

18.11.2009

Дом с видом на озеро

Объект:
Вилла «Дом на озере»
Адрес:
Финляндия, None,

Закончено строительство виллы на озере Сайма в Финляндии, возведенной по проекту Туомаса Тойвонена.

Вилла «Дом на озере». Фото © Maija Luutonen
Вилла «Дом на озере». Фото © Maija Luutonen
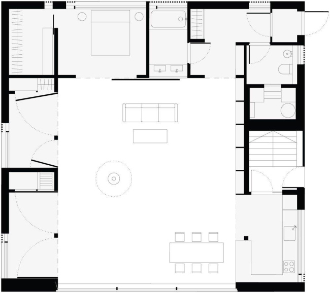
Здание ориентировано на расположенный к западу от него крупнейший в стране водоем, давно ставший популярным местом отдыха. Туда обращено огромное окно гостиной: там, по замыслу архитектора, должна собираться вся большая семья владельцев виллы. Это пространство разительно отличается по масштабу от спальни, альковов и подсобных помещений, расположенных по периметру постройки. Они могут быть как открыты в интерьер, так и отгорожены с помощью раздвижных дверей.

Интерьер дома, открытый вовне, впрочем, противопоставлен экстерьеру по цветовому решению: темное дерево обшивки внешних стен контрастирует с белым цветом помещений. Такое «стерильное» решение вызвано желанием превратить внутреннее пространство в «чистый холст» для меняющегося в зависимости от времени суток, сезона и погоды естественного освещения.
Вилла «Дом на озере». Фото © Maija Luutonen
Вилла «Дом на озере». Фото © Maija Luutonen
Вилла «Дом на озере». Фото © Maija Luutonen
Вилла «Дом на озере». Фото © Maija Luutonen
Вилла «Дом на озере». Фото © Maija Luutonen
Вилла «Дом на озере». Фото © Maija Luutonen
Вилла «Дом на озере». Фото © Maija Luutonen
Вилла «Дом на озере». Фото © Maija Luutonen
Вилла «Дом на озере» © NOW for Architecture and Urbanism Oy
Вилла «Дом на озере» © NOW for Architecture and Urbanism Oy