Размещено на портале Архи.ру (www.archi.ru)

11.11.2009

На перекрестке двух бульваров

Анна Мартовицкая
Объект:
Малоэтажный жилой комплекс «НовоАрхангельское»
Адрес:
Россия, Московская область, Красногорский район,
Мастерская:
Архитектуриум
Авторский коллектив:
Архитекторы: Биндеман В.Н., Котова Н.Р., Зинюкова О.П., Лызлов Н.Н., Ермолаева О.В., Панкратова И.В., Биндеман Н.В., Стаунэ Е.С., Трутнев Р.Э..
Конструкторы: Шпаков И.Ф., Шарипов Р.Н., Оклеев А.В.
Инженеры: Новикова Г.Я., Панова В.И., Прусов В.В.

В 2004 году проект поселка «Новоархангельское», выполненный мастерской «Архитектуриум», победил в конкурсе, объявленном журналом «Современный дом». Тогда, пять лет назад, сам факт такого состязания для отечественного рынка загородных поселков был безусловным прорывом: девелоперы вдруг осознали, что успех коммерческого продукта под названием «поселок» закладывается не в последнюю очередь архитектором и именно на этапе создания генерального плана. Реализация проекта-победителя убедительно доказала, что это действительно так.

Малоэтажный жилой комплекс «НовоАрхангельское». Постройка, 2008 © «Архитектуриум»
Малоэтажный жилой комплекс «НовоАрхангельское». Постройка, 2008 © «Архитектуриум»
Когда архитекторы приступали к разработке проекта, они имели добротно составленное конкурсное задание от журнала «Современный Дом», которое предписывало создать поселок таунхаусов, в меру экономичный и быстровозводимый, но вместе с тем эстетически привлекательный, способный сломать штамп о том, что блокированная застройка – это однообразно и уныло. Участок же, готовый стать полем для эксперимента, был расположен в семи километрах от Москвы по Новорижскому шоссе, чуть в стороне от федеральной трассы, на поле, примыкающем с двух сторон к сосновому лесу, а с третьей к живописному ручью.

В плане надел земли напоминает ботфорт, чья плоская подошва обращена к трассе, а широкий отворот практически квадратной формы – к лесу. Правда, эта метафора в ближайшем будущем утратит свою актуальность -- инвестор намерен приобрести соседний участок земли и построить вторую очередь поселка, которая придаст всему ансамблю логическую завершенность. С противоположной стороны Новорижского шоссе, за строчкой домиков поселка Воронки, начинается парк усадьбы Архангельское. Как несложно догадаться, именно соседство со знаменитым музеем дало проекту звучное имя; оно же подсказало архитекторам идею привнести в планировку поселка определенную регулярность. К этому очень располагал и ярко выраженный геометризм той части территории Новоархангельского, которая обращена к лесу – перекрестием двух пешеходных бульваров с круглой площадью посередине прямоугольник разбит на четыре равных части. Въездными воротами в поселок служит арка, она же — здание двухэтажного общественного центра, основного объекта инфраструктуры Новоархангельского, и этот объем, подобно пропилеям, фиксирует основную ось бульвара. «Противовесом» ему, правда, служит не главный господский дом и даже не группа таунхаусов, а круглая в плане детская площадка. Справа и слева от главного въезда в поселок расположены запасные, и каждый из них продолжается улицей, одна из которых – Сосновая – по своей длине равна пешеходному бульвару, а вторая – Ольховая – миновав центр, оставляет свою прямолинейность и послушно следует всем изгибам голенища в меру разношенного и потому очень удобного сапога.

Всего в Новоархангельском 118 коттеджей площадью от 197 до 313 квадратных метров, и каждый дом имеет индивидуальный земельный участок, площадью от 0,4 до 4 соток. Добиваясь визуального разнообразия, «Архитектуриум» вместо традиционных 2-3 видов секций таунхаусов разработал шесть, которые скомпонованы в четыре типа домов. Вдоль Сосновой и прямого отрезка Ольховой построены, пожалуй, самые традиционные секции – склеенные в один ряд домики, в каждом из которых имеются балкон и мансарда, а также гараж на две машины. Основной жилой квартал Новоархангельского сформирован четырьмя П-образными таунхаусами – «Подковами», которые могут похвастаться не только соседством с центральным перекрестком поселка, но и уютными внутренними дворами. Еще один тип блокировки – угловые секции, из которых составлены точечные дома на четыре квартиры («Крест»). К числу основных преимуществ этих домов относится наличие остекленных аттиковых этажей,  максимально наполняющих жилища естественным освещением. А вдоль извилистого отрезка Ольховой идет «Змейка» из 14 секций, живописно повторяющих изгибы рельефа.

Основной принцип блокировки секций основан на вынесении поперечных разделительных стенок за пределы самих домов. Фактически заборы – это продолжения брандмауэров, но чтобы избежать ощущения нагромождения перегородок и общей излишней закрытости, архитекторы не стали делать их слишком высокими. Максимальная высота каждой такой стены – 1,2 метра, и, как показывает практика, этого более чем достаточно, чтобы создать ощущение обособленности небольшого придомового пространства. И уж, конечно, подобные разделительные стенки, вырастающие из зданий, смотрятся куда более «архитектурно», чем всевозможные сетки и заборы. Кроме того, некоторые секции сдвинуты вдоль этих стен относительно друг друга – именно так, например, спроектирована «Змейка».

Зрительно невысокими кажутся и сами дома. Добиться подобного эффекта архитекторы смогли, используя мансардные окна, которых в каждом коттедже по 6-7. Такое количество остекленных «скосов» делает дома не только светлее, но и визуально более пропорциональными, что при скромной площади придомовых участков и высокой плотности застройки таунхаусов очень важно.

Интересно, что в конкурсном проекте также были предусмотрены шумозащитные дома вдоль магистрали – жилье эффектной архитектуры (кровля фактически спускалась до земли, выполняя роль шумозащитного экрана) и чуть более низкой ценовой категории. Однако технические требования и нормативы в итоге вынудили архитекторов отказаться от этой идеи – теперь в этой зоне расположены инженерно-технические сооружения и площадка для выгула собак. А для того, чтобы максимально избавить поселок от каких-либо взаимоотношений с трассой, архитекторы также убрали второй въезд со стороны шоссе, оставив только главный, проходящий через общественный центр.

Кстати, изначально планировалось, что этот центр будет разделен на два блока, в одном из которых разместятся ресторан, в другом – супермаркет и службы быта. Однако впоследствии девелопер отказался от этой идеи, так как в пятиминутной доступности от поселка супермаркеты и рестораны имеются в изобилии, и ставка была сделана на медицинский центр с уникальным спектром услуг и высококачественным оборудованием. Среди других объектов инфраструктуры – несколько игровых площадок, спортивный центр и площадка для выгула собак.

На этом расхождения с первоначальным вариантом проекта заканчиваются. Генеральный план поселка сохранил свою живописность и обилие зеленых насаждений, которые в 2004-м году принесли проекту «Архитектуриума» победу. Несомненная удача «Новоархангельского» заключается еще и в том, что девелопер успел практически полностью реализовать поселок до экономического кризиса и поэтому не стремился сэкономить на стройматериалах. Наоборот, от дешевых, но недолговечных сэндвич-панелей отказались сразу, отдав предпочтение монолитному несущему каркасу со стенами из кирпича с эффективным утеплителем и наружной облицовкой лицевым кирпичом и натуральным камнем. А ограждения балконов, обшивка гаража и надоконных фрагментов выполнены из деревянной рейки, окрашенной в темно-коричневый цвет. Все вместе это сформировало чрезвычайно богатую палитру – красный и светло-бежевый, песочный и шоколадный – и, умноженное на разнообразие архитектурных форм, создает очень насыщенную визуальную среду, от определения «уныло» максимально далекую.
Малоэтажный жилой комплекс «НовоАрхангельское». Генеральный план © «Архитектуриум»
Малоэтажный жилой комплекс «НовоАрхангельское». Генеральный план © «Архитектуриум»
Малоэтажный жилой комплекс «НовоАрхангельское». Постройка, 2008 © «Архитектуриум»
Малоэтажный жилой комплекс «НовоАрхангельское». Постройка, 2008 © «Архитектуриум»
Малоэтажный жилой комплекс «НовоАрхангельское». Постройка, 2008 © «Архитектуриум»
Малоэтажный жилой комплекс «НовоАрхангельское». Постройка, 2008 © «Архитектуриум»
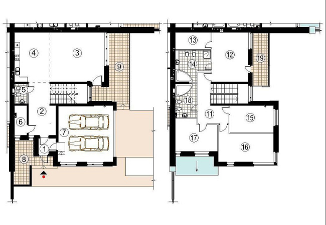
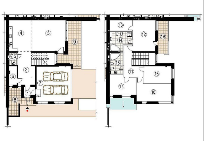
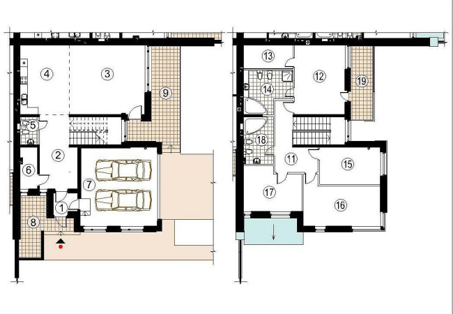
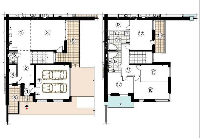
Малоэтажный жилой комплекс «НовоАрхангельское». План © «Архитектуриум»
Малоэтажный жилой комплекс «НовоАрхангельское». План © «Архитектуриум»
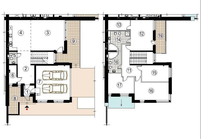
Малоэтажный жилой комплекс «НовоАрхангельское». План © «Архитектуриум»
Малоэтажный жилой комплекс «НовоАрхангельское». План © «Архитектуриум»
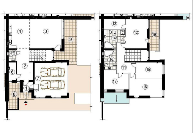
Малоэтажный жилой комплекс «НовоАрхангельское». План © «Архитектуриум»
Малоэтажный жилой комплекс «НовоАрхангельское». План © «Архитектуриум»