Размещено на портале Архи.ру (www.archi.ru)

01.12.2009

Чудесное превращение дома

Анна Герасименко
Объект:
Индивидуальный жилой дом
Адрес:
Россия, Московская область,
Архитектор:
Андрей Романов
Екатерина Кузнецова
Мастерская:
ADM

Многочисленные кирпичные дворцы и замки, построенные в подмосковных поселках в 1990-е годы, стали одной из едва ли не самых ярких примет своего времени. Однако мода на громоздкие сооружения «в стилях» быстро прошла, и сегодня подобные дома все чаще реконструируются. Именно такой проект только что закончило бюро ADM, которому удалось превратить псевдоклассический особняк в произведение современной архитектуры.

«Я смотрю на этот дом и понимаю, что жить в нем не могу!» – с такими словами в бюро ADM пришел будущий  заказчик. Особняк, больше похожий на уменьшенную модель средневекового замка со множеством башен, он приобрел, в первую очередь, из-за удобного расположения и наличия в поселке развитой инфраструктуры, однако поначалу считал, что с не располагающей к себе архитектурой как-то можно смириться. Но очень быстро стало понятно, что утрированная копия замка вообще не соответствует вкусам и потребностям делового человека начала XXI века, поэтому было принято решение о реконструкции и превращении особняка в эстетически привлекательный, функциональный и комфортный дом для постоянного проживания за городом.

Архитекторы разработали три разных варианта реконструкции, каждый из которых по-своему развивает идею загородного дома. Важно, что в каждом из них за основу была взята конструктивная схема уже построенного здания – архитекторам было интересно исследовать ее с точки зрения формотворчества, а заказчику такой подход гарантировал существенную экономию средств.

Первый вариант реконструкции предусматривал превращение «замка» в особняк с четырехскатной крышей в стиле «Домов прерий» Фрэнка Ллойда Райта. От помпезного строения архитекторы оставили лишь кирпичный параллелепипед, к которому пристроили небольшие деревянные объемы.

Второй вариант – это дом, состоящий из трех кубов, выполненных в разных материалах: кирпиче, стеклопрофилите и дереве. Этот вариант больше всего нравился самим авторам, однако, как признается руководитель бюро ADM Андрей Романов, у них с самого начала возникали сомнения в том, дом ли у них получается или все-таки музей современной архитектуры.

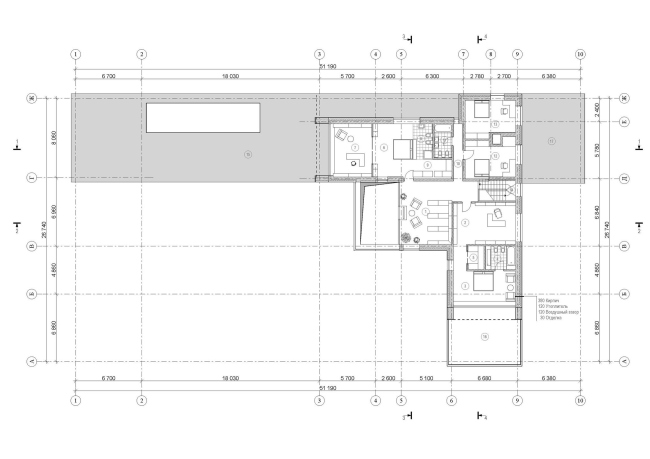
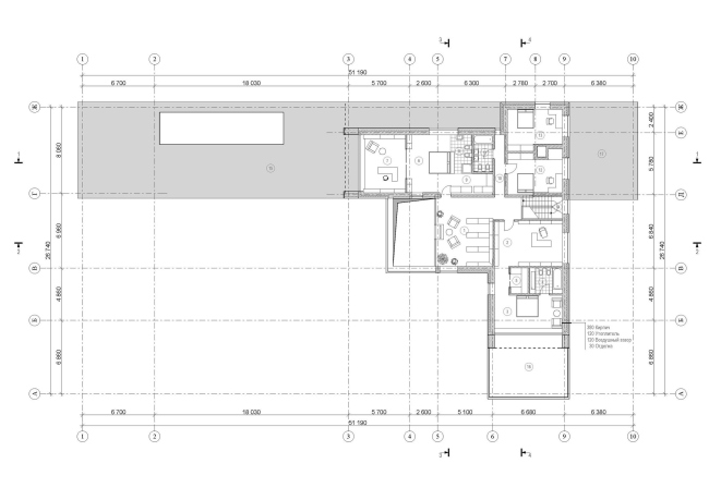
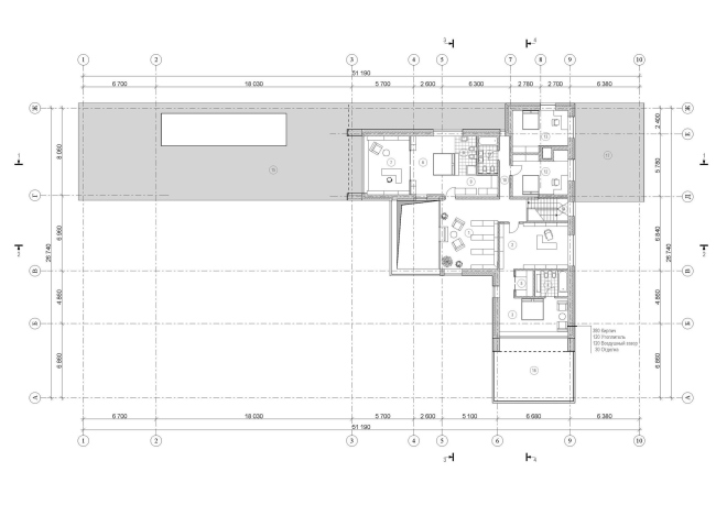
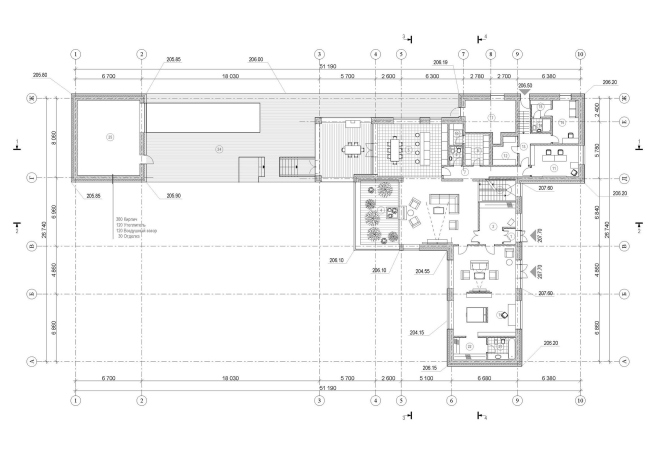
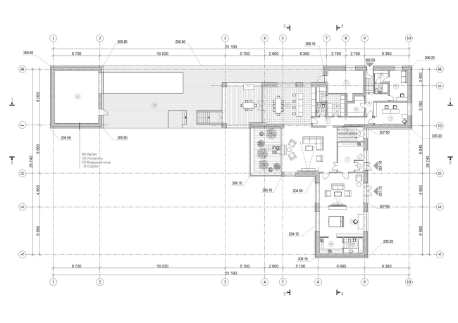
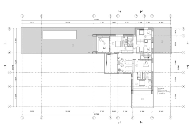
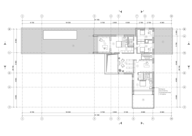
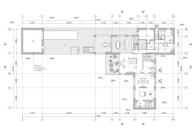
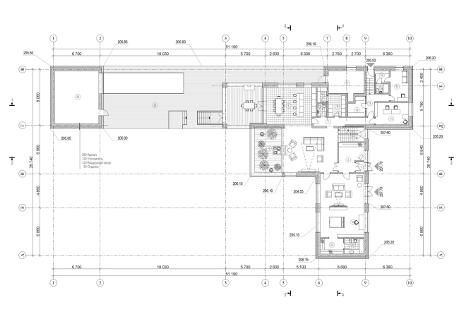
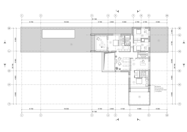
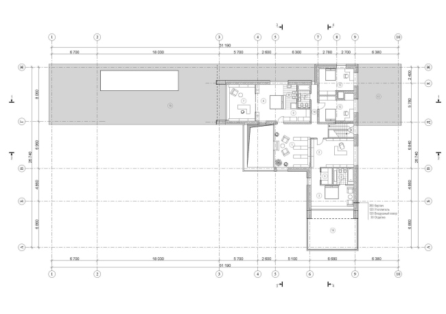
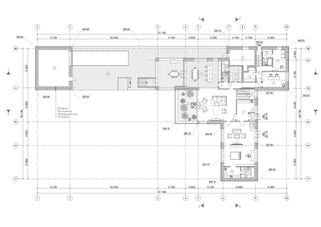
Третий вариант реконструкции, которому заказчики в итоге и отдали предпочтение, также использует прием комбинирования кубических объемов, на этот раз одно- и двухэтажных. Конструктивная схема существующего особняка, как уже говорилось, оставлена неизменной, однако шатровые кровли архитекторы заменяют плоскими, эркеры срезают, а внутреннее пространство полностью перепланируют под нужды новых хозяев. И это столь кардинально меняет облик коттеджа, что, сравнивая его фотографии до реконструкции и 3D-визуализации после, сложнее всего поверить в то, что это один и тот же дом.

Центром композиции обновленного особняка становится зимний сад – двухэтажная стеклянная призма, раскрытая на придомовую территорию. На нижнем уровне здесь размещена гостиная с камином, на верхнем – библиотека. Прозрачный объем призван не только улучшить инсоляционные характеристики помещений, но и подчеркнуть открытый характер обновленного дома. Кроме того, массивная стеклянная «врезка» создает очень интересный контраст материалов, а также открытых и закрытых пространств. Все прочие фасады облицованы светлым деревом, визуальную легкость которого уравновешивают пояса из натурального камня, обрамляющие кровлю.

Все три варианта реконструкции дома объединяет наличие вытянутой одноэтажной пристройки к нему. Появление этого объема объясняется сразу двумя причинами: заказчики хотели иметь отдельно стоящую баню, а архитекторы искали способ лучше интегрировать дом в участок, на котором не растет ни одно дерево и нет никаких дополнительных построек. «Замок» посреди этого пустыря выглядел совсем уж инородным объектом, а вот обшитые деревом кубы, кажется, словно вырастают из земли – сначала одноэтажные, затем двухэтажные.

В пристройке разместились собственно баня и бассейн, которому объем и обязан своей вытянутой прямоугольной формой. С основным домом она объединена террасой, имеющей кровлю, но лишенной стен. Подобная «проницаемость» этого перехода делает всю конструкцию визуально легкой и почти прозрачной, уподобляя ее беседке, которой так не хватало на этом участке. На крыше террасы будет разбит небольшой садик, к которому обращено панорамное остекление спальни.

Этим проектом бюро ADM удалось доказать, что даже у неликвидных построек эпохи постсоветской гигантомании есть будущее. С помощью несложных архитектурных приемов их облик можно не просто осовременить, но изменить кардинально. А если учесть, что реконструкция всегда дешевле сноса и строительства нового дома с нуля, то проект ADM можно считать еще и отличным антикризисным предложением.