Размещено на портале Архи.ру (www.archi.ru)

21.09.2009

Частный случай

Анна Мартовицкая
Объект:
Жилой дом на улице Бурденко
Адрес:
Россия, Москва. ул. Бурденко, 11
Архитектор:
Сергей Скуратов
Мастерская:
Сергей Скуратов ARCHITECTS
Авторский коллектив:
Скуратов С.А., Чернышова А.С., Чернышов Д.А., Левина Ю.Б.

На улице Бурденко, соединяющей Хамовники и Садовое кольцо, Сергей Скуратов однажды уже строил. В 2001 году здесь по его проекту был возведен дом с запоминающимся скругленным фасадом. Правда, теперь у «Сергей Скуратов Architects» совсем другой заказчик и другие исходные данные, но второй дом будет построен практически напротив первого, так что улица Бурденко в ближайшее время обогатится не только новым объектом, но и интереснейшим диалогом двух творений одного мастера.

Жилой дом с подземной автостоянкой на ул. Бурденко © Сергей Скуратов ARCHITECTS
Жилой дом с подземной автостоянкой на ул. Бурденко © Сергей Скуратов ARCHITECTS

Участок под застройку с запада примыкает к ограде Счетной Палаты, с севера ограничен красными линиями ул. Бурденко, с востока и юга – существующими офисными зданиями. Заказчик приобрел его довольно давно и изначально собирался построить здесь элитное жилье. Приглашенный им архитектор выполнил проект, полностью устроивший застройщика и по выходу площадей, и по стилистике. Однако согласован этот проект не был: на заседании Общественного совета его категорически завернули. Строгость архитектурных чиновников вполне можно трактовать как предвзятость: один из них живет прямо напротив будущей стройки и очень заинтересован в том, как в ближайшее время изменится вид из его окна. Он-то и порекомендовал застройщику поменять архитектора именно на Сергея Скуратова, который уже доказал, что навредить улице Бурденко не может. Застройщик, желая получить заветные согласования, так и поступил, и из этого сугубо частного сюжета выросла очень интересная архитектурная история.

Сергей Скуратов, согласившийся в предельно сжатые сроки разработать для этого участка совершенно новый проект жилого дома, оказался заложником сразу нескольких условий.  Во-первых, очень скромной площади участка (всего 0,25 га), во-вторых, уже согласованного метража жилого комплекса, в-третьих, непростой инсоляции и предсказуемых в условиях московского центра ограничений по высоте. Впрочем, все это – технические параметры, пусть и замысловатые, но все же являющиеся не более, чем частью уравнения, решать которое умеют все профессионалы. Куда деликатнее оказалась проблема собственно архитектуры, которая интересовала не столько заказчика, сколько его оппонента из числа членов Общественного совета.

Сергей Скуратов не скрывает, что пошел по самому простому пути, а именно напрямую спросил у чиновника, рекомендовавшего его девелоперу, каким тот представляет себе будущий вид из своего окна. Правда, нельзя сказать, что это существенно облегчило архитектору процесс придумывания облика будущего дома. Потому что в разговоре тет-а-тет выяснилось, что больше всего чиновнику хочется сохранить статус кво: небольшой уютный сквер, в глубине которого когда-то стоял дом из темного кирпича, где и проживал хирург Бурденко, чьим именем названа улица. Если на другую чашу весов положить изначально известную общую площадь проектируемого комплекса – чуть больше 12 тысяч квадратных метров, – то становится особенно очевидно, в какой непростой творческой ситуации оказался Скуратов.

Прежде всего, были сохранены имеющиеся на участке деревья – несколько берез и клен с роскошной кроной. А на западной границе участка разбит сад, в террасированный ландшафт которого вписана двухэтажная вилла. На самом деле она является частью жилого комплекса, но со стороны улицы Бурденко этот скромный объем воспринимается как самостоятельное строение, радующее своей камерностью любителей скромных видов из окна. В центральной части участка располагается пятиэтажная секция, выполненная в масштабе всей улицы, а еще шестью метрами глубже к ней примыкает десятиэтажная башня. Средний корпус имеет полностью остекленный цоколь, над которым консолью нависают четыре верхних этажа. Впрочем, горизонтальное членение фасадов нарочито укрупнено, поэтому пятиэтажный объем визуально воспринимается в лучшем случае трехэтажным, а отодвинутая в глубь участка башня – пятиэтажной.

Верхняя часть башни развернута в сторону центра. На уровне трех последних этажей Скуратов продлил и слегка загнул северный фасад – получился капюшон, внутреннее пространство которого полностью остеклено. Таким образом архитектор отвернул квартиры верхних этажей от созерцания «окна в окна» кабинетов Счетной палаты и взамен обеспечил их прекрасными видами на исторический центр Москвы. С другой стороны, этот архитектурный жест вполне можно трактовать как кивок нового дома в сторону другого скуратовского объекта на улице Бурденко, который расположен как раз по диагонали и оказывается точно в зоне видимости полуобернувшейся башни. Важно и то, что этот самый яркий композиционный элемент задает пластику всех фасадов комплекса: часть окон более низких этажей так же слегка утоплены в фасады, которые расступаются перед ними широкими вертикальными откосами.

Кроме трехчастной ступенчатой композиции комплекса, делающей его присутствие на улице Бурденко действительно очень щадящим для исторической застройки, данью некогда существовавшему на этом месте дому и пожеланиям могущественного рецензента проекта стало использование кирпича как основного облицовочного материала. Не секрет, что это вообще самый любимый материал Скуратова. Не секрет и то, что архитектор обращается с ним как виртуозный иллюзионист, способный с помощью одного прикосновения придать поверхности стен самую разную текстуру – то гладкую, то шероховатую, то ворсистую. Новый жилой дом на Бурденко – не исключение. Казалось бы, Скуратов использует все те же приемы, что знакомы по его дому в Тессинском и офисному центру на Новоданиловской набережной, – чередует светлые и терракотовые оттенки, а гладким поверхностям отвечает участками с сильно выступающими кирпичами. Но получается совершенно оригинальный дом, который легко идентифицируется как скуратовский объект и с огромным трудом – как объект, облицованный обычным кирпичом.

Жилой дом с подземной автостоянкой на ул. Бурденко. Генеральный и ситуационный планы © Сергей Скуратов ARCHITECTS
Жилой дом с подземной автостоянкой на ул. Бурденко. Генеральный и ситуационный планы © Сергей Скуратов ARCHITECTS
Жилой дом с подземной автостоянкой на ул. Бурденко © Сергей Скуратов ARCHITECTS
Жилой дом с подземной автостоянкой на ул. Бурденко © Сергей Скуратов ARCHITECTS
Жилой дом с подземной автостоянкой на ул. Бурденко © Сергей Скуратов ARCHITECTS
Жилой дом с подземной автостоянкой на ул. Бурденко © Сергей Скуратов ARCHITECTS
Жилой дом с подземной автостоянкой на ул. Бурденко © Сергей Скуратов ARCHITECTS
Жилой дом с подземной автостоянкой на ул. Бурденко © Сергей Скуратов ARCHITECTS
Жилой дом с подземной автостоянкой на ул. Бурденко © Сергей Скуратов ARCHITECTS
Жилой дом с подземной автостоянкой на ул. Бурденко © Сергей Скуратов ARCHITECTS
Жилой дом с подземной автостоянкой на ул. Бурденко © Сергей Скуратов ARCHITECTS
Жилой дом с подземной автостоянкой на ул. Бурденко © Сергей Скуратов ARCHITECTS
Жилой дом с подземной автостоянкой на ул. Бурденко © Сергей Скуратов ARCHITECTS
Жилой дом с подземной автостоянкой на ул. Бурденко © Сергей Скуратов ARCHITECTS
Жилой дом с подземной автостоянкой на ул. Бурденко © Сергей Скуратов ARCHITECTS
Жилой дом с подземной автостоянкой на ул. Бурденко © Сергей Скуратов ARCHITECTS
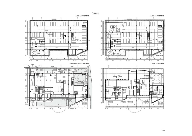
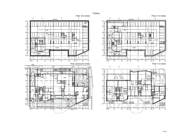
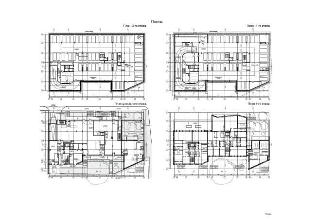
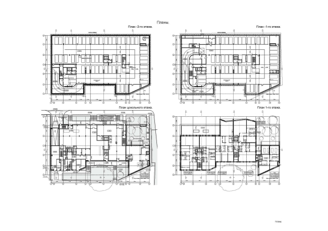
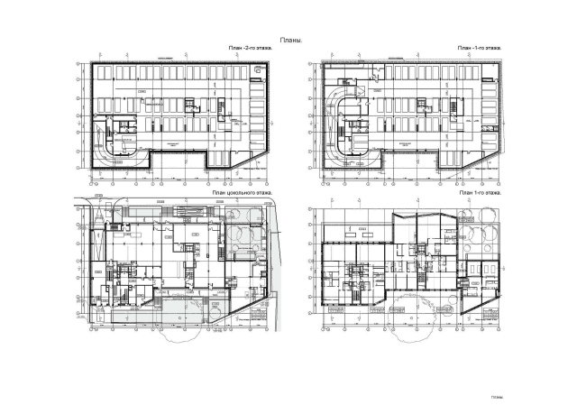
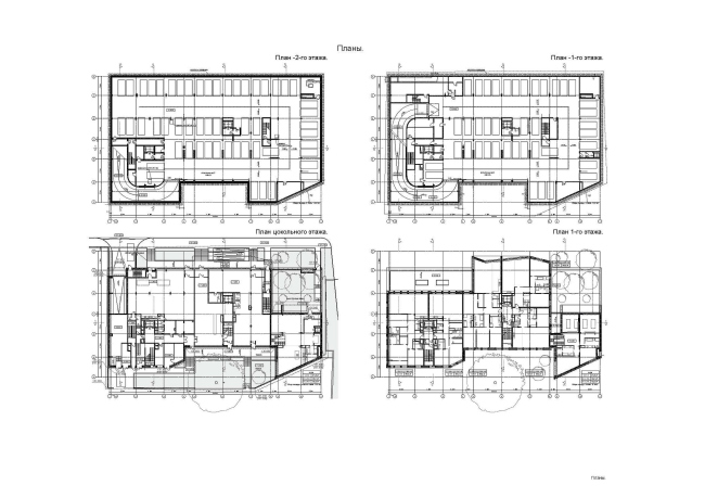
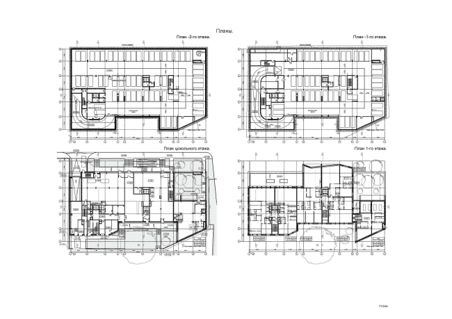
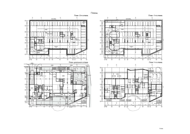
Планы этажей © Сергей Скуратов ARCHITECTS
Планы этажей © Сергей Скуратов ARCHITECTS
Жилой дом с подземной автостоянкой на ул. Бурденко. Развертка фасадов по улице Бурденко © Сергей Скуратов ARCHITECTS
Жилой дом с подземной автостоянкой на ул. Бурденко. Развертка фасадов по улице Бурденко © Сергей Скуратов ARCHITECTS
Жилой дом с подземной автостоянкой на ул. Бурденко. Фасады © Сергей Скуратов ARCHITECTS
Жилой дом с подземной автостоянкой на ул. Бурденко. Фасады © Сергей Скуратов ARCHITECTS