Размещено на портале Архи.ру (www.archi.ru)

15.09.2009

Кузница управленцев

Анна Мартовицкая
Объект:
Загородный кампус ВШМ СПбГУ на базе дворцово-паркового ансамбля «Михайловская дача»
Адрес:
Россия, Санкт-Петербург. Санкт-Петербургское шоссе, 109
Архитектор:
Никита Явейн
Мастерская:
Студия 44
Авторский коллектив:
Архитекторы: Н.И. Явейн, П.С. Соколов, В.А. Романцев, Ж.В. Разумова, В.И. Парфёнов; при участии: Т.А. Андреевой, М.К. Горячкиной, И.С. Доники, Н.В. Жукова, Е.В. Кобозевой, Л.И. Кутузовой, Е.С. Логиновой, А.С. Скорик, Е.Г. Сорокиной, П.А. Шлихтера.

Архитекторы–реставраторы: Г.В. Михайлов (ООО «АСМ»), Л.А. Одинцова (ОАО «Ленпроектреставрация СПб»), О.А. Кузеванов, О.Г. Рогачева, С.В. Морозова, Ю.Н. Комарова («Студия 44»). Конструкторы: И.Н. Ляшко, Д.П. Кресов

Михайловская дача или усадьба Михайловка – одна из жемчужин в ожерелье дворцово-парковых ансамблей Большой Петергофской дороги. Памятник истории и культуры федерального значения, это одновременно и ближайший сосед Константиновского дворца. И именно он, превращенный несколько лет назад в «Дворец конгрессов», пожалуй, и подсказал городским властям сценарий восстановления Михайловки из руин. На базе имения великого князя Михаила Николаевича по проекту архитектурного бюро «Студия 44»будет создан загородный кампус Высшей школы менеджмента.

Загородный кампус Высшей школы менеджмента Санкт-Петербургского Государственного Университета (ВШМ СПБГУ). Аксонометрия. Зона нового строительства © Студия 44
Загородный кампус Высшей школы менеджмента Санкт-Петербургского Государственного Университета (ВШМ СПБГУ). Аксонометрия. Зона нового строительства © Студия 44
ВШМ – учебное заведение отнюдь не рядовое. Свою миссию оно определяет как «подготовка национальной элиты управленческих кадров и создание российской школы бизнеса мирового уровня» и включает бакалавриат, магистратуру, аспирантуру и обучение в формате МВА. Масштаб амбиций и их, скажем так, очевидное общефедеральное значение, и предвосхитили размах проекта. Фактически на базе Михайловки будет создан целый учебно-научный городок – общероссийская кузница управленцев, где одновременно смогут учиться более полутора тысяч человек.

Строительная программа загородного кампуса ВШМ была составлена не просто с учетом самых высоких требований, предъявляемых к инфраструктуре ведущих мировых центров подготовки профессиональных менеджеров, но даже, мягко говоря, с некоторым максимализмом. Изучая данный проект, очень быстро понимаешь, что проще сказать, чего не будет в распоряжении будущих управленцев, чем наоборот. В частности, в состав кампуса войдут: учебные и административные корпуса, студенческие общежития, кафе, клуб и библиотека, гостинично-учебные комплексы для слушателей курсов последипломного обучения, многофункциональный спортивный комплекс с бассейном, открытые спортивные площадки и автостоянки. Конечно, разместить такое количество объектов в стенах исторических построек не представляется возможным, поэтому проект был благоразумно разделен на два не зависящих друг от друга этапа: «реставрация и приспособление» будут осуществляться в Восточной части комплекса, «новое строительство» – в Западной.
Загородный кампус Высшей школы менеджмента Санкт-Петербургского Государственного Университета (ВШМ СПБГУ). Аксонометрия. Зона реконструкции © Студия 44
Загородный кампус Высшей школы менеджмента Санкт-Петербургского Государственного Университета (ВШМ СПБГУ). Аксонометрия. Зона реконструкции © Студия 44
Загородный кампус ВШМ СПбГУ на базе дворцово-паркового ансамбля «Михайловская дача». Ситуационный план
Загородный кампус ВШМ СПбГУ на базе дворцово-паркового ансамбля «Михайловская дача». Ситуационный план
© Студия 44

О разделении «восток-запад» в данном проекте следует сказать особо. Восточная часть территории трактована авторами проекта как наиболее репрезентативная и во многом элитарная зона комплекса ВШМ. В пышных дворцовых интерьерах будут работать сотрудники научно-исследовательского института, останавливаться ученые с мировыми именами, здесь же расположатся апартаменты и аудитории для слушателей курсов последипломного обучения. Западная часть территории менее интересна с исторической точки зрения: некогда там была расположена деревня Коркули, огороды и хозяйственные постройки, – и потому теперь именно там сконцентрируется новое строительство.

Всего до наших дней на территории Михайловской дачи сохранилось шесть исторических зданий, в создании которых принимали участие архитекторы А. И. Штакеншнейдер, И. И. Шарлемань, Г. Э. Боссе. Проект «Студии 44» предусматривает восстановление каждого из них. Но хоть исторический облик зданий и будет сохранен, их общая площадь возрастет почти вдвое. Необходимые резервы площади изыскиваются за счет использования чердаков и подвалов (Дворец великого князя, Кухонный корпус), перекрытия внутренних дворов (Кухонный корпус), освоения подземных пространств (Конюшенный корпус) и нового строительства в пятне утраченных зданий (Комплекс оранжерей).
Загородный кампус ВШМ СПбГУ на базе дворцово-паркового ансамбля «Михайловская дача». Реконструируемые части
Загородный кампус ВШМ СПбГУ на базе дворцово-паркового ансамбля «Михайловская дача». Реконструируемые части
© Студия 44
Загородный кампус ВШМ СПбГУ на базе дворцово-паркового ансамбля «Михайловская дача». Реконструируемые части
Загородный кампус ВШМ СПбГУ на базе дворцово-паркового ансамбля «Михайловская дача». Реконструируемые части
© Студия 44
Загородный кампус ВШМ СПбГУ на базе дворцово-паркового ансамбля «Михайловская дача». Реконструируемые части
Загородный кампус ВШМ СПбГУ на базе дворцово-паркового ансамбля «Михайловская дача». Реконструируемые части
© Студия 44
Загородный кампус ВШМ СПбГУ на базе дворцово-паркового ансамбля «Михайловская дача». Реконструируемые части
Загородный кампус ВШМ СПбГУ на базе дворцово-паркового ансамбля «Михайловская дача». Реконструируемые части
© Студия 44

Современные объемы вторгнутся на эту территорию дважды. К Оранжереям, от которых уцелело только два исторических фрагмента – Цветочная оранжерея и Дом садовника, – Никита Явейн предлагает пристроить два новых корпуса. Они будут полностью остеклены и выполнены строго в габаритах исторических зданий, что позволит «растворить» их в парковом ландшафте. А к зданию Конюшенного корпуса, которому предстоит стать Главным учебным корпусом, со стороны Петергофского шоссе пристраивается полузаглубленный объем под светопрозрачным элипсоидным куполом пологих очертаний. В нем разместятся главный лекционный зал на 450 мест, амфитеатром уходящий вниз на глубину трех метров, а также компьютерные залы.

Основная же зона нового строительства будет целиком сформирована объектами, выполненными из визуально легких современных материалов. Никита Явейн стремился таким образом уйти от каких-либо стилизаций под историческую застройку и одновременно подчеркнуть «подсобность» современных объектов, уподобив их парковым павильонам. Активно работают на этот образ и наклонные полностью остекленные стены, и отделка деревянными панелями, и подчеркнутый геометризм построек. Так, общежития для бакалавров (9 корпусов) представляют собой приземистые трапеции со стеклянными консолями боковых фасадов, нависающими над землей вывернутыми наизнанку лестницами. Общежития MBA – это тоже трапеции, но сильно вытянутые в плане, а «ступени» боковых фасадов здесь закрыты единым наклонным щитом из стекла. Более привилегированное сословие менеджеров – магистры – будут обитать в круглом в плане здании (диаметр – 84 метра), разделенном на три сектора сквозными двухэтажными арками, а трехэтажное кафе-клуб – средоточие общественной жизни кампуса – разместится в пятиугольном объеме.
Загородный кампус ВШМ СПбГУ на базе дворцово-паркового ансамбля «Михайловская дача»
Загородный кампус ВШМ СПбГУ на базе дворцово-паркового ансамбля «Михайловская дача»
© Студия 44
Загородный кампус ВШМ СПбГУ на базе дворцово-паркового ансамбля «Михайловская дача»
Загородный кампус ВШМ СПбГУ на базе дворцово-паркового ансамбля «Михайловская дача»
© Студия 44
Загородный кампус ВШМ СПбГУ на базе дворцово-паркового ансамбля «Михайловская дача»
Загородный кампус ВШМ СПбГУ на базе дворцово-паркового ансамбля «Михайловская дача»
© Студия 44
Загородный кампус ВШМ СПбГУ на базе дворцово-паркового ансамбля «Михайловская дача»
Загородный кампус ВШМ СПбГУ на базе дворцово-паркового ансамбля «Михайловская дача»
© Студия 44
Загородный кампус ВШМ СПбГУ на базе дворцово-паркового ансамбля «Михайловская дача». Кафе
Загородный кампус ВШМ СПбГУ на базе дворцово-паркового ансамбля «Михайловская дача». Кафе
© Студия 44

Самый спорный элемент проекта – это здание физкультурно-оздоровительного комплекса, который сами архитекторы сравнивают с приземлившимся в ложбине дирижаблем. Купол, который своей конфигурацией действительно больше всего напоминает аэростат, накрывает каскад из трех террас, точно вписанных в существующий рельеф. На нижней находится бассейн с 25-метровыми дорожками, на средней – площадки с тренажерами, а верхнюю занимает универсальное игровое поле с трибунами для зрителей. С точки зрения планировки – решение просто блестящее, но яйцевидная форма купола даже на фоне пятиугольного кафе и круглого дома магистров смотрится слишком футуристично. Настолько, что при обсуждении проекта на совете по сохранению культурного наследия при правительстве Санкт-Петербурга эксперты сообща попытались найти для ФОК более удаленное от памятника место. Впрочем, эта инициатива не увенчалась успехом: «дирижабль» нельзя перенести из-за необходимости устроить автономный проход в него возможных посторонних посетителей.
Загородный кампус ВШМ СПбГУ на базе дворцово-паркового ансамбля «Михайловская дача». Спортивный зал © Студия 44
Загородный кампус ВШМ СПбГУ на базе дворцово-паркового ансамбля «Михайловская дача». Спортивный зал © Студия 44
Загородный кампус ВШМ СПбГУ на базе дворцово-паркового ансамбля «Михайловская дача». Спортивный зал. Разрез. План © Студия 44
Загородный кампус ВШМ СПбГУ на базе дворцово-паркового ансамбля «Михайловская дача». Спортивный зал. Разрез. План © Студия 44

Реконструкция Михайловской дачи обречена на сравнения с Константиновским дворцом. Во-первых, соседство. Во-вторых, до 2006 года бывшее имение Великого князя также находилось в ведении Управления делами Президента РФ, и под образовательные нужды оно было отдано не в последнюю очередь потому, что выкованные по лучшим мировым стандартам управленцы нужны этому ведомству. Но в проектах реконструкции двух этих объектов есть одно существенное различие. Образовательный процесс, к счастью, по сути своей куда демократичнее, чем международные конгрессы и приемы главы государства, поэтому там, где представительские функции требовали роскоши и пафоса, кузница менеджерских кадров ограничилась удобством планировок и легкостью конструкций.
Загородный кампус ВШМ СПбГУ на базе дворцово-паркового ансамбля «Михайловская дача» © Студия 44
Загородный кампус ВШМ СПбГУ на базе дворцово-паркового ансамбля «Михайловская дача» © Студия 44
Загородный кампус ВШМ СПбГУ на базе дворцово-паркового ансамбля «Михайловская дача»
Загородный кампус ВШМ СПбГУ на базе дворцово-паркового ансамбля «Михайловская дача»
© Студия 44
Загородный кампус ВШМ СПбГУ на базе дворцово-паркового ансамбля «Михайловская дача» © Студия 44
Загородный кампус ВШМ СПбГУ на базе дворцово-паркового ансамбля «Михайловская дача» © Студия 44
Загородный кампус ВШМ СПбГУ на базе дворцово-паркового ансамбля «Михайловская дача». Реконструируемые части
Загородный кампус ВШМ СПбГУ на базе дворцово-паркового ансамбля «Михайловская дача». Реконструируемые части
© Студия 44
Загородный кампус ВШМ СПбГУ на базе дворцово-паркового ансамбля «Михайловская дача». Фасад
Загородный кампус ВШМ СПбГУ на базе дворцово-паркового ансамбля «Михайловская дача». Фасад
© Студия 44
Загородный кампус ВШМ СПбГУ на базе дворцово-паркового ансамбля «Михайловская дача». План
Загородный кампус ВШМ СПбГУ на базе дворцово-паркового ансамбля «Михайловская дача». План
© Студия 44
Загородный кампус ВШМ СПбГУ на базе дворцово-паркового ансамбля «Михайловская дача». План
Загородный кампус ВШМ СПбГУ на базе дворцово-паркового ансамбля «Михайловская дача». План
© Студия 44
Загородный кампус ВШМ СПбГУ на базе дворцово-паркового ансамбля «Михайловская дача». Фасад
Загородный кампус ВШМ СПбГУ на базе дворцово-паркового ансамбля «Михайловская дача». Фасад
© Студия 44
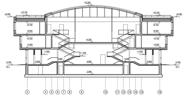
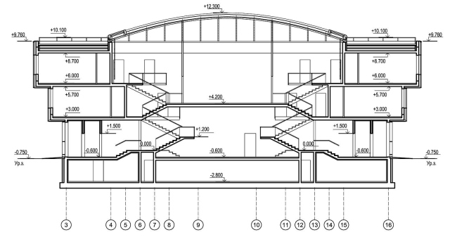
Загородный кампус ВШМ СПбГУ на базе дворцово-паркового ансамбля «Михайловская дача». Разрез
Загородный кампус ВШМ СПбГУ на базе дворцово-паркового ансамбля «Михайловская дача». Разрез
© Студия 44
Загородный кампус ВШМ СПбГУ на базе дворцово-паркового ансамбля «Михайловская дача». План
Загородный кампус ВШМ СПбГУ на базе дворцово-паркового ансамбля «Михайловская дача». План
© Студия 44