Размещено на портале Архи.ру (www.archi.ru)

25.08.2009

Поэзия материала

Объект:
Археологический музей провинции Алава
Адрес:
Испания, None, Витория-Гастейс.
Центр выставок и конгрессов в Авиле
Адрес:
Испания, None, Авила.

Строительство двух зданий по проектам Франсиско Мангадо закончено в Испании.

Археологический музей провинции Алава © Roland Halbe
Археологический музей провинции Алава © Roland Halbe

Археологический музей провинции Алава в Витории представляет собой по сути крыло дворца Бенданья 16 века, в котором сейчас расположен музей игральных карт. Два здания разделяет внутренний двор, превращенный архитектором в формальное продолжение выставочного пространства нового музея. Выходящий во двор и уличный фасады постройки Мангадо решены в противоположном ключе: первый — открыт вовне, второй — практически герметичен. Именно на уличный фасад, облицованный матовыми бронзовыми пластинами, выходят залы постоянной экспозиции музея, единственные источники света в которых – призмы из полупрозрачного стекла, скрывающие световые шахты, проводящие солнечный свет с крыши. Темное дерево пола, потолка и стен залов – метафора земли, культурных слоев, создающих «стены» истории и скрывающих следы ушедших поколений. Подобное решение, по мнению архитектора, должно помочь посетителю почувствовать свою причастность к бесконечному полотну истории и мысленно восстановить по  сохранившимся фрагментам мир давно исчезнувших народов.

Дворовый фасад, куда выходят зал для проведения общественных мероприятий и залы временных выставок – почти прозрачен. Его центральную часть составляет стеклянная навесная стена, за которой находятся главные лестницы постройки. Остальные его поверхности закрыты «решеткой» из литых панелей из полированной бронзы.

Центр выставок и конгрессов в Авиле – совершенно другое по духу и форме сооружение, хотя материал играет в нем не меньшую роль. Расположенный на холме город Авила окружен прекрасно сохранившейся крепостной стеной (включенной в список Всемирного наследия ЮНЕСКО). У ее подножия и выстроен Центр Мангадо, поэтому его облицованные природным камнем стены призваны смягчить контраст между историческим сооружением и современным зданием. Также источником вдохновения для архитектора послужили гранитные скалы, характерные для ландшафта региона. Их форма определила решение корпуса Центра, вмещающего выставочные пространства. Он противопоставлен прямоугольному блоку с конференц-залами. Также комплекс использует неровности ландшафта, чтобы его высота не нарушила существующую линию горизонта местности.

Археологический музей провинции Алава © Cesar San Millan
Археологический музей провинции Алава © Cesar San Millan
Археологический музей провинции Алава © Cesar San Millan
Археологический музей провинции Алава © Cesar San Millan
Археологический музей провинции Алава © Cesar San Millan
Археологический музей провинции Алава © Cesar San Millan
Археологический музей провинции Алава © Cesar San Millan
Археологический музей провинции Алава © Cesar San Millan
Археологический музей провинции Алава © Cesar San Millan
Археологический музей провинции Алава © Cesar San Millan
Археологический музей провинции Алава © Roland Halbe
Археологический музей провинции Алава © Roland Halbe
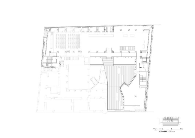
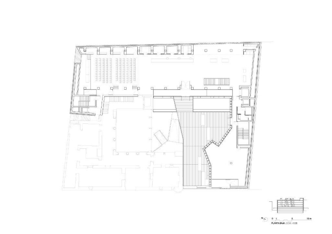
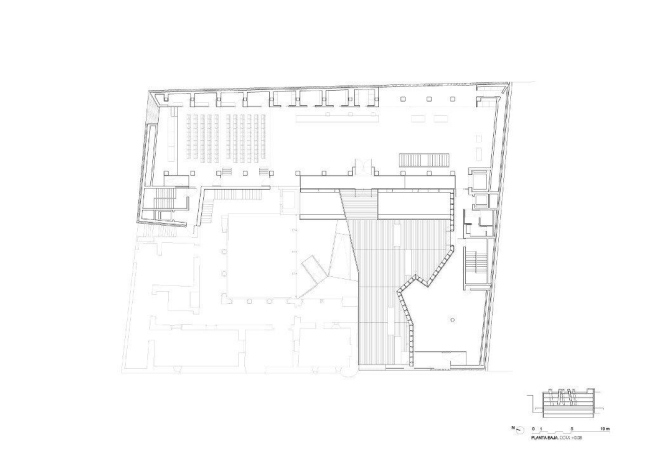
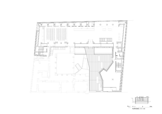
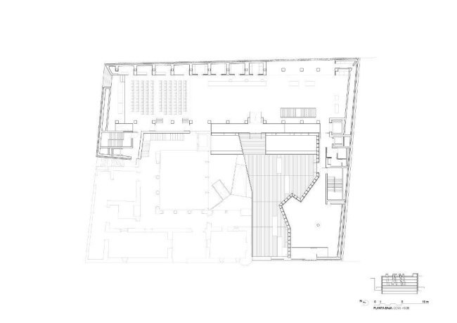
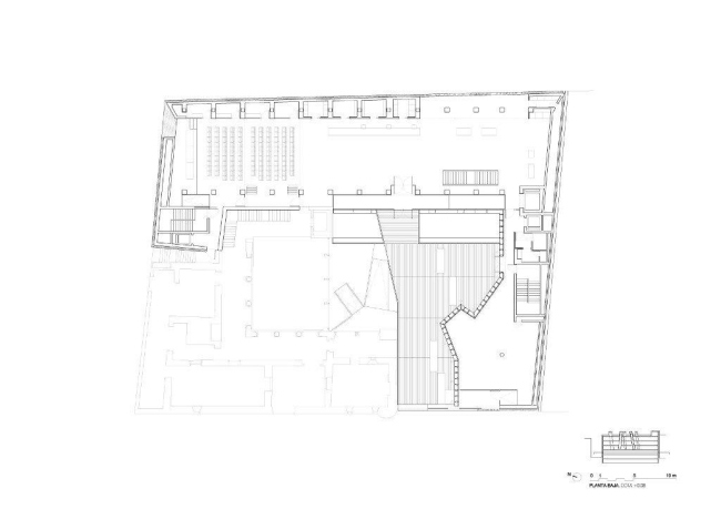
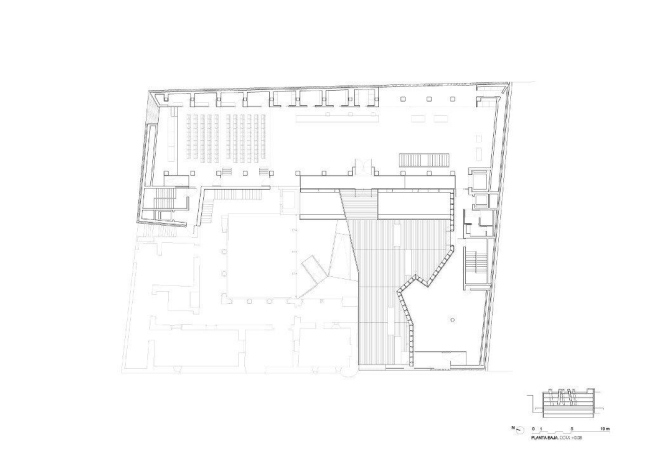
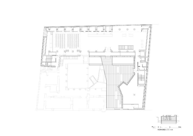
Археологический музей провинции Алава. План 1-го этажа © Francisco Mangado
Археологический музей провинции Алава. План 1-го этажа © Francisco Mangado
Археологический музей провинции Алава. Разрез © Francisco Mangado
Археологический музей провинции Алава. Разрез © Francisco Mangado
Центр выставок и конгрессов. Фото: santiago lopez-pastor via flickr.com. Лицензия CC BY-ND 2.0
Центр выставок и конгрессов. Фото: santiago lopez-pastor via flickr.com. Лицензия CC BY-ND 2.0
Центр выставок и конгрессов © Miguel de Guzman
Центр выставок и конгрессов © Miguel de Guzman
Центр выставок и конгрессов © Miguel de Guzman
Центр выставок и конгрессов © Miguel de Guzman
Центр выставок и конгрессов © Miguel de Guzman
Центр выставок и конгрессов © Miguel de Guzman
Центр выставок и конгрессов © Miguel de Guzman
Центр выставок и конгрессов © Miguel de Guzman
Центр выставок и конгрессов © Miguel de Guzman
Центр выставок и конгрессов © Miguel de Guzman
Центр выставок и конгрессов © Miguel de Guzman
Центр выставок и конгрессов © Miguel de Guzman
Центр выставок и конгрессов © Miguel de Guzman
Центр выставок и конгрессов © Miguel de Guzman
Центр выставок и конгрессов. План 2-го этажа
Центр выставок и конгрессов. План 2-го этажа
Центр выставок и конгрессов
Центр выставок и конгрессов