Размещено на портале Архи.ру (www.archi.ru)

13.07.2009

Смягчение контрастов

Анна Герасименко
Объект:
Отель Hilton Doubletree на Ленинградском шоссе
Адрес:
Россия, Москва. Ленинградкое шоссе, 39
Архитектор:
Андрей Романов
Екатерина Кузнецова
Мастерская:
ADM
Авторский коллектив:
А. Романов, Е. Кузнецова, А. Шишков, Ю. Шамшева, А. Горовой
при участии: М. Брежнев, К. Губернаторов

Чем больше город, тем ценнее зеленые территории внутри него. В одном из таких «оазисов» Москвы, на берегу Химкинского водохранилища, по проекту бюро ADM ведется строительство многофункционального комплекса с гостиницей, апартаментами и офисными помещениями.

Отель Hilton Doubletree на Ленинградском шоссе © Мастерская ADM
Отель Hilton Doubletree на Ленинградском шоссе © Мастерская ADM

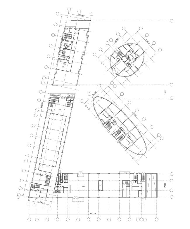
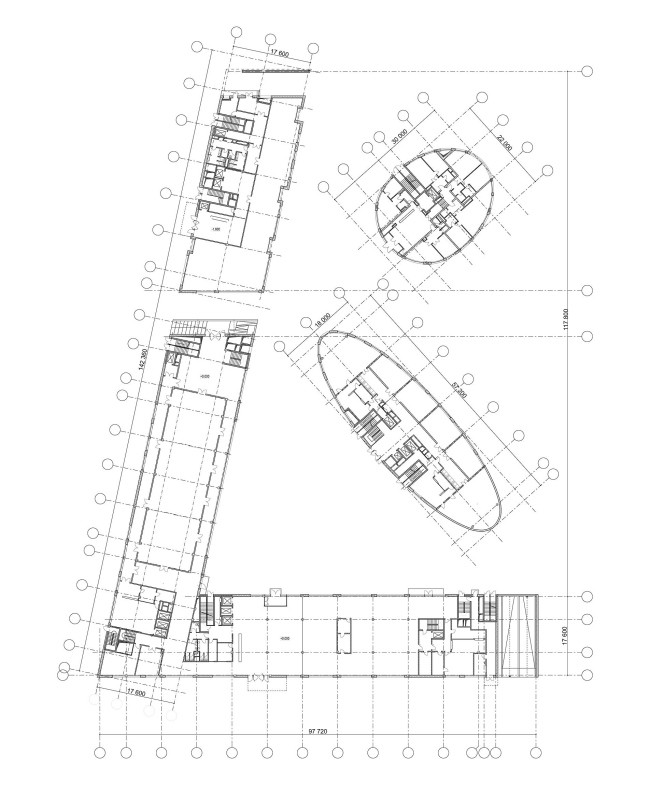
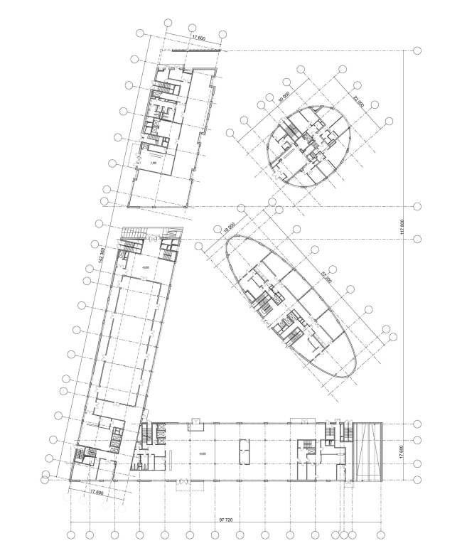
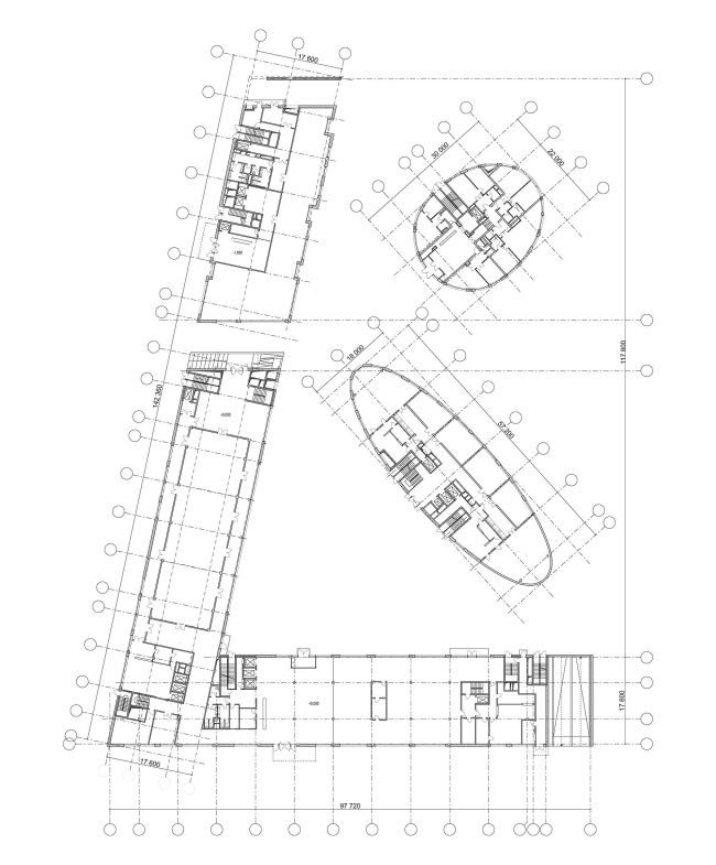
Участок, на котором строится новый комплекс, располагается между «Городом яхт» Николая Лызлова и Водным стадионом «Динамо» Геннадия Мовчана 1930-х, который сейчас функционирует как яхт-клуб. Проектировать что-либо, учитывая такое соседство, было непросто. Водный стадион находится на отдалении и закрыт густой растительностью, поэтому он почти не оказал влияния на нового соседа. Чего нельзя сказать о «Городе яхт». Территория комплекса вплотную прилегает к дому, спроектированному Николаем Лызловым, через улицу от него будет находиться один из гостиничных корпусов.

Будущий комплекс почти в два раза ниже «гиганта-соседа», а холоду стекла и бетона последнего он противопоставляет теплые терракотовые оттенки: светло-бежевый и коричневый. Впрочем, два корпуса вытянуты строго параллельно «Городу яхт» и направляются от проспекта к берегу водохранилища под тем же легким углом, образуя вместе со своим известным соседом новую улицу. С одной стороны, они повторяют направление, заданное «Городом яхт», а с другой – с помощью протяженного объема новый гостиничный комплекс отгораживается от соседа, выстраивая между ним и собой основательную стену. Точно так же он закрывается и от Ленинградки – два корпуса сложены в подобие заостренной буквы «Г», выгораживая внутреннюю территорию и защищая ее от «давления со стороны города».

Внутри, за линейной «оградой», составленной из гостиничного и офисного корпусов, расположен прибрежный парк, где предполагается разметить еще два здания: гостиницу и апартаменты. По контрасту с жесткой геометрией внешних блоков, они обладают обтекаемой эллиптической формой. Это «две разных архитектуры – рассказывает один из руководителей бюро ADM Андрей Романов, – футуристически-жесткая снаружи, и мягкая, «природно-парковая» внутри».

Различие «двух архитектур» чувствуется во всем – в форме блоков, оформлении фасадов, их ритме, материале, цвете. Так, фасады прямоугольных объемов оформлены жестко геометрично. Ряд тонких ризалитов образует сдержанную композицию, отдаленно напоминающую клавиши фортепьяно – ассоциация, подчеркнутая чередованием темно-коричневого и светло-бежевого цветов. Если вглядеться, фасады обнаруживают не вполне явную вначале интригу: они как будто бы состоят из двух рисунков, наложенных друг на друга – один светлый, другой темный, и оба с разными осями симметрии. Так что композиция получается почти симметричная, но именно «почти». Например, вход сдвинут влево, а центр композиции темных ризалитов – вправо.

Светлые части прямоугольных блоков будут отделаны палевой терракотой, а темные – терракотовыми багетами, решетками из тонких разноцветных планок, прикрывающими стеклянные поверхности за ними. Темные блоки фасада становятся, таким образом, проницаемыми, разноцветными и легкими – тем более, что в верхней части оттенки постепенно высветляются, стремясь раствориться на фоне неба.

Внутренние эллипсоидные корпуса, по контрасту со строгими прямоугольными, выглядят не только мягкими, скульптурными и обтекаемыми, но также более подвижными и динамичными. Корпуса поставлены под углом 90 градусов друг к другу и имеют разную форму: одно компактнее, другое вытянуто в тонкую линию. Овальные объемы не только вырастают из земли, но и отрываются от нее – во всяком случае, частично. «Нос» одного из корпусов приподнят на опорах, второго – вынесен консолью в сторону соседнего эллипса.

Их оболочки облицованы камнем трех светло-коричневых оттенков, ложащихся на скругленную поверхность мелкими вертикальными штрихами, чтобы свести к минимуму углы стыка. Врезанные в этот «каменный поток» большие окна открывают здания в окружающее пространство парка и водоема, окна меняют ширину и группируются со стороны водохранилища, ловя самые красивые пейзажи. Картину оживляют ярко-оранжевые балкончики, также обращенные в сторону смой выгодной точки – к водохранилищу. Они вносят последний штрих, добавляя «внутренней» части ансамбля элемент парковой веселости.

Таким образом весь комплекс превращен в плавный переход от урбанистической среды к природной, от жесткой геометрии к обтекаемости форм. Этим он немного напоминает свой самый заметный декоративный мотив – решетки разноцветных терракотовых багетов (кстати говоря, деталь, для Москвы пока не особенно привычная). Потому что контраст между «внешней» и «внутренней» архитектурой не слишком жесток, а построен на полутонах. «Две архитектуры» не столько противоречат, сколько взаимодействуют, что позволяет создать достаточно спокойный переход от города к природному «оазису».

Отель Hilton Doubletree на Ленинградском шоссе © Мастерская ADM
Отель Hilton Doubletree на Ленинградском шоссе © Мастерская ADM
Отель Hilton Doubletree на Ленинградском шоссе © Мастерская ADM
Отель Hilton Doubletree на Ленинградском шоссе © Мастерская ADM
Отель Hilton Doubletree на Ленинградском шоссе © Мастерская ADM
Отель Hilton Doubletree на Ленинградском шоссе © Мастерская ADM
Отель Hilton Doubletree на Ленинградском шоссе © Мастерская ADM
Отель Hilton Doubletree на Ленинградском шоссе © Мастерская ADM
Отель Hilton Doubletree на Ленинградском шоссе © Мастерская ADM
Отель Hilton Doubletree на Ленинградском шоссе © Мастерская ADM
Отель Hilton Doubletree на Ленинградском шоссе © Мастерская ADM
Отель Hilton Doubletree на Ленинградском шоссе © Мастерская ADM
Отель Hilton Doubletree на Ленинградском шоссе © Мастерская ADM
Отель Hilton Doubletree на Ленинградском шоссе © Мастерская ADM