|
У современной Остоженки много титулов. Два, пожалуй, самых известных – это «Золотая миля» и заповедник современной архитектуры. Первый фиксирует средоточие здесь наиболее дорогой и самой что ни на есть элитной жилой недвижимости, а второй символизирует место, куда водят иностранцев, жаждущих доказательств того, что жилье в Москве не обязательно является синонимом китча. Однако произнося «Остоженка», мы, как правило, имеем в виду все же не столько улицу, сколько район, лежащий между нею и Пречистенской набережной. Тогда как на самой улице хватает как подлинной старины, так и несуразного китча, а вот качественной современной архитектуры до недавнего времени не было и в помине. Исправить этот пробел взялись «Сергей Киселев и Партнеры», спроектировавшие для одной из самых старых и знаменитых улиц Москвы подчеркнуто современный и стильный дом.

Участок ограничен красными линиями собственно Остоженки, а также Пожарского и 1-го Зачатьевского переулков. Он сменил несколько владельцев-инвесторов, пока не был приобретен ГУП «Москва-Центр», вместе с уже частично согласованным проектом застройки. Проект предусматривал снос трех исторических строений и их последующее воссоздание в прежних формах. Однако заказчику подобная архитектурная задача показалась слишком тривиальной, поэтому он пригласил в качестве генпроектировщика архитектурную компанию Сергея Киселева и попросил архитекторов сделать современный дом.
Впрочем, модернизм на красной линии исторической Остоженки отнюдь не будет смотреться «внеисторическим» чужаком. По словам главного архитектора проекта Алексея Медведева, авторы стремились к «современной, но глубоко контекстуальной архитектуре». Новое здание полностью сохраняет исконный масштаб улицы. Фактически это цельный объем, но снаружи он разделен на разные части и выглядит так, как будто бы состоит из трех разных домов – имитируя таким образом историческую парцелляцию бывших на этом месте участков. Вереница фасадов элегантно изгибается вдоль Остоженки, что в точности воспроизводит старую линию застройки.
Та часть комплекса, что выходит на 1-й Зачатьевский переулок, имеет всего 4 этажа (против 5-6 во всех остальных корпусах) и тем самым значительно смягчает переход к объему соседнего исторического здания. Архитектурное решение этого фасада также направлено на воплощение идеи «перехода». Оконные проемы здесь имеют близкие к историческим пропорции, а в пластику стены введены вертикальные каменные ребра, позволяющие добиться отчетливо читаемого ритмического сходства с окружающим контекстом.
С Остоженкой переулок пересекается под непрямым углом, что, собственно, и подарило линии застройки плавный волнующий изгиб. Причем в градостроительном отношении этот угол оказывается очень важным ориентиром, воспринимаемым как с самой улицы, так и с дальних точек (например, из Лопухинского переулка). Поэтому здесь был нужен крупный запоминающийся ритм окон. Вероятно, можно было бы нарисовать очень большие проемы и даже лихо подвигать их по плоскости фасада, но архитекторы поступили иначе: рядом с каждым окном традиционной ширины они прорубили в фасаде еще одну стеклянную щель, а чуть поодаль сделали узкую нишу для вертикальных светильников. В результате такой комбинации проемов жильцы получат очень светлые комнаты (на Остоженку выходят гостиные), а горожане – запоминающийся фасад, который эффектно «держит» угол улицы.
А вот пересечение Остоженки с Пожарским – это уже совсем другая архитектурная тема. Меняется облицовочный материал, преобладают крупные проемы, остекленные прозрачными и матовыми стеклами, происходит намеренная «сбивка» отметок окон. Здесь угол самый что ни на есть острый, и подчеркнуть его хотелось соответствующе. Чередование прозрачных ребер пришедшихся на него окон и заостренных каменных стыков, а также открытая галерея на уровне первого этажа создают очень динамичную композицию, привносящую в ткань улицы отчетливый привкус современности.
Для облицовки дворовых фасадов использована редкая для наших широт африканская гарапа – разновидность железного дерева, устойчивая влажности – хотя ее все равно решили не открывать навстречу московскому климату. Облицованные деревом углубления разделены тонкими выступами и прикрыты стеклом – прозрачным, а на перилах лоджий матовым. Все это делает двор уютным, почти что «интерьерным» – особенно по контрасту с каменными уличными фасадами.
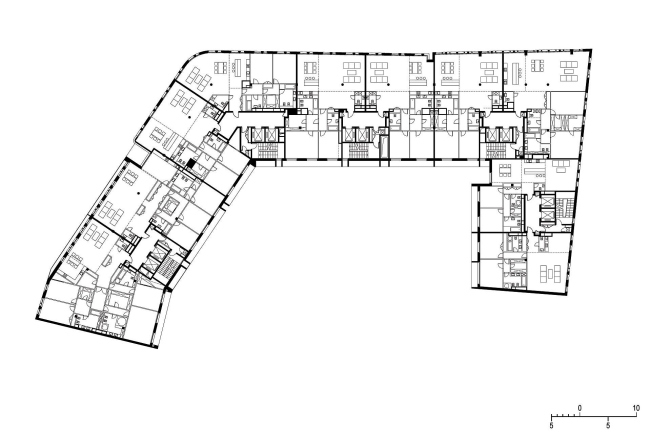
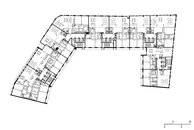
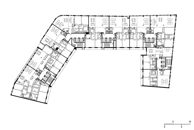
Архитекторы стремились всячески подчеркнуть и закрепить этот эффект: сделать двор камерным пространством для жильцов дома. Так как дом – клубный, квартир в нем мало, всего по 2 на этаже в каждой из пяти секций и большинство из них имеет площадь 180-200 кв. метров. Верхний ярус занят роскошными пентхаусами, которые устроены по всем правилам: стеклянная стена, широкая терраса, замечательные виды московских окрестностей. Каждая квартира выходит одновременно и на улицу, и во двор, поэтому пожарный подъезд со стороны двора не требуется – это позволило благоустроить внутреннее пространство и не делать в нем лишних асфальтированных проездов для машин.
А вот для собственных автомобилей жильцов предусмотрена роскошная двухъярусная подземная парковка, вмещающая по 2-3 машиноместа на квартиру. Ее устройство позволяет подогнать автомобиль к лифту внутри дома – таким образом, обитатели дома обеспечены возможностью пересесть из лифта в автомобиль в «непростреливаемом пространстве».
Обязательны для такого дома и роскошные интерьеры общественных зон, которые занимают здесь значительную площадь – около 1500 кв. метров. Для их проектирования заказчик приглашал разных дизайнеров (в том числе и знаменитого Инго Маурера), но в итоге было принято решение поручить интерьеры вестибюлей «СКиП». Интерьеры стали для мастерской Сергея Киселева совершенно самостоятельным объектом работы. От буйства фактур камня, равно как и от монолитного дерева авторам хотелось уйти как можно дальше, поэтому в белоснежных интерьерах входного вестибюля и лифтовых холлов фактически нет ничего, что напоминало бы о кремово-терракотовой палитре фасадов. Кроме того, первоначально предполагалось, что в вестибюле первого этажа будет открыта художественная галерея. Впоследствии эта идея трансформировалась – предпочтение было отдано формату художественного салона. Жилой комплекс на ул. Остоженка, 11/17, 13/12© АМ Сергей Киселев и Партнеры
Жилой комплекс на ул. Остоженка, 11/17, 13/12© АМ Сергей Киселев и Партнеры
Жилой комплекс на ул. Остоженка, 11/17, 13/12© АМ Сергей Киселев и Партнеры
Жилой комплекс на ул. Остоженка, 11/17, 13/12© АМ Сергей Киселев и Партнеры
Жилой комплекс на ул. Остоженка, 11/17, 13/12© АМ Сергей Киселев и Партнеры
Жилой комплекс на ул. Остоженка, 11/17, 13/12© АМ Сергей Киселев и Партнеры
Жилой комплекс на ул. Остоженка, 11/17, 13/12© АМ Сергей Киселев и Партнеры
Жилой комплекс на ул. Остоженка, 11/17, 13/12© АМ Сергей Киселев и Партнеры
Жилой комплекс на ул. Остоженка, 11/17, 13/12© АМ Сергей Киселев и Партнеры
Жилой комплекс на ул. Остоженка, 11/17, 13/12© АМ Сергей Киселев и Партнеры
|