Размещено на портале Архи.ру (www.archi.ru)

25.05.2009

Яркая лента

Анна Мартовицкая
Объект:
Жилой дом с развитым блоком обслуживания в Новосибирске
Адрес:
Россия, Новосибирск. ул. Блюхера, вл. 71
Архитектор:
Сергей Киселев
Мастерская:
АМ Сергей Киселев и Партнеры
Авторский коллектив:
Сергей Киселёв, Валерий Швецов, Сергей Заянчковский, Полина Илюшина

При первом же взгляде на этот проект становится очевидным: главная и самая характерная его особенность – это расцветка. Ярко-желтая «пиксельная» облицовка фасадов роднит здание с пестрой башней «Авангард», появление которой несколько лет назад преобразило Новые Черемушки, бывшие до того синонимом типовой жилой застройки советского периода.

Жилой дом с развитым блоком обслуживания в Новосибирске
Жилой дом с развитым блоком обслуживания в Новосибирске
© АМ Сергей Киселев и Партнеры

Пожалуй, жилой дом в Новосибирске – прямой потомок московского «Авангарда», снискавшего в свое время множество восторгов и профессиональных наград. И в то же время этот дом – доказательство того, что в архитектуре не может быть универсальных рецептов, а суть так называемых «фирменных  приемов» сводится не к использованию цвета и пластики, но к умению хирургически точно дозировать их в соответствии с насущными потребностями окружающей среды.

Новосибирский проект Киселева роднит с «Авангардом», прежде всего, градостроительный контекст. Станция метро «Студенческая» – это новосибирские Черемушки: срединный пояс города с характерной типовой застройкой преимущественно хрущевской эпохи. Глазу зацепиться особенно не за что, и безликость района стала для архитекторов вызовом номер один.

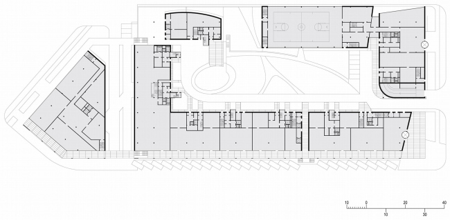
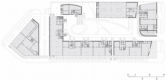
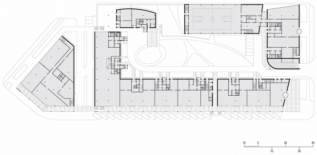
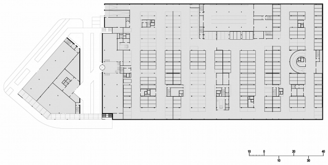
Вызовом номер два можно назвать недавно возведенный на соседнем участке жилой комплекс – высотное каре, недвусмысленно свидетельствующее о желании девелопера выжать из постройки максимум квадратных метров. В градостроительном и архитектурном смысле этот «сосед» – воплощенное отсутствие каких бы то ни было амбиций, но он расположен очень близко (от участка Киселева этот жилой комплекс отделяет лишь узкий проезд), что обязывало авторов считаться с его циклопическим масштабом. Архитекторы могли бы поступить просто – банально отгородиться от гиганта, поддержав этажность таким образом, чтобы с улиц Карла Блюхера и Геодезической высотка стала менее заметной. Но Сергея Киселева в данном случае гораздо больше волновали, по-видимому, не обобщенно-градостроительные, а конкретные социальные аспекты. Если бы его дом был «раскрыт» на упомянутый перекресток, жильцы лишились бы собственного внутреннего двора – поэтому архитекторы «СКиП» сочли нужным поддержать заданную соседним домом периметральность застройки – в пользу будущих обитателей. В ответ между двумя домами образовалась внутренняя площадь, надежно защищенная от суеты мегаполиса.

Казалось бы, расположение дома по периметру внутреннего двора обязывает архитектора к строгости, прямым линиям и не менее прямым углам. Однако Сергей Киселев, поддержав основную тему каре, в остальном сделал свой дом противоположностью соседнему. Его пластичный объем обнимает внутренний двор волнообразной дугой – не подчеркивая свое расположение на перекрестке, а, наоборот, словно бы отрицая его. Контрастирует с окружением и колористическое решение фасадов. Они облицованы плитами минерита, окрашенного в массиве в лимонный, салатовый, бежевый и светло-серый тона, что в сочетании с непринужденной пластикой объема делает дом похожим на свободно извивающуюся разноцветную ленту. Его можно сравнить со змеей, уютно свернувшейся на солнышке, или с детским воздушным змеем, который вот-вот будет подхвачен порывом ветра. И, думаю, этот разброс ассоциаций красноречивее всего говорит о той феерии пространственных и чувственных переживаний, которую жилой комплекс привносит в сложившуюся застройку.

У девелопера, конечно же, на этот счет были свои соображения: знаковость знаковостью, но экстравагантность форм никак не должна была сказаться на конечном выходе площадей. И архитекторы с этой задачей справились на «отлично»: криволинейные стены запроектированы на монолитной сетке, так что игра с пластикой форм никак не отразилась на планировках квартир. Там все максимально просто, рационально и удобно. 35 процентов всех квартир в этом жилом комплексе составляют однокомнатные, 25 – двухкомнатные. На верхних этажах с панорамным остеклением разместились комфортные 3-4 комнатные квартиры, площадью 150-200 квадратных метров. Оттуда открывается эффектный вид на Обь, что, кстати, уже в процессе активного проектирования подвигло заказчика повысить категорию своего объекта с эконом до бизнес-класса. Внутренний двор комплекса решен как зона отдыха для жильцов дома: здесь запланированы сквер и детская площадка. Последняя поднята на небольшой подиум и в плане представляет собой аккуратный овал: подъем продиктован необходимостью «добрать» инсоляцию, а форма – желанием еще раз обыграть пластику главного  фасада.

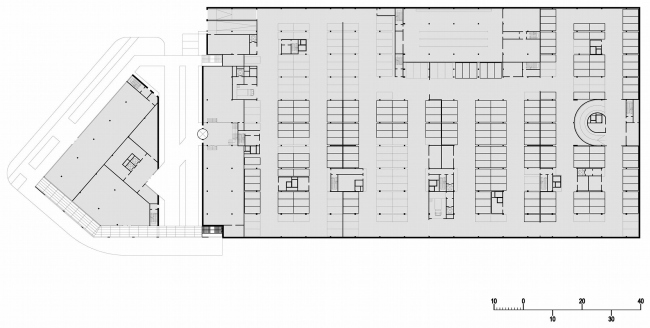
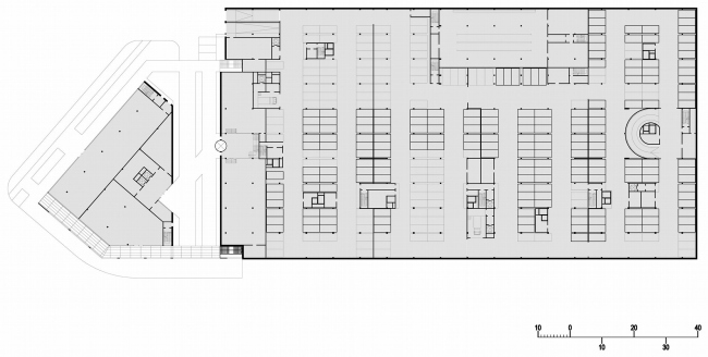
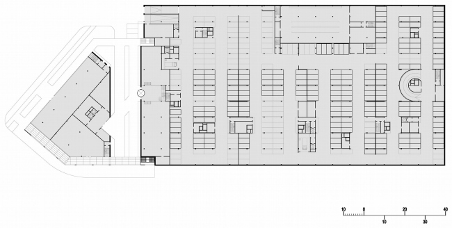
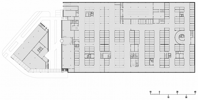
Развитый блок обслуживания – одно из обязательных требований заказчика, – как и полагается, разместился в стилобатной части комплекса. Она превращена в горизонтальный параллелепипед, положенный аккурат на пересечении двух улиц. Дом получается похож на большую абстрактную скульптуру на строгом постаменте.
По длинной стороне стилобата разместились торговые павильоны, и этот фасад представляет собой бетонную «перголу» с пешеходной галереей внутри. Архитекторы предлагали ее остеклить, но заказчик, несмотря на довольно-таки суровый сибирский климат, настоял на открытом варианте: соображения маркетологов оказались важнее погодных условий.

Впрочем, думается, главной архитектурной приманкой для покупателей здесь станет не открытая галерея как таковая, а нарочито сбитый ритм ее колонн, интригующий донельзя. Так и хочется спросить: сколько же там на самом деле магазинов? – и, конечно, самому проверить. Надо сказать, Сергей Киселев вообще очень часто играет с ритмом, и в новосибирском проекте интересно наблюдать за тем, как излюбленный прием неожиданно используется в совершенно новом качестве. Впрочем, позже на этом же участке предполагается построить небольшой офисный комплекс, который стилистически будет объединен со стилобатной частью жилого дома. Так что идущему от метро по Геодезической улице будет казаться, что нестройный шаг колонн торговой галереи играючи перебегает на фасад и рассыпается по всей его плоскости множеством неравных по ширине окон.

Жилой дом с развитым блоком обслуживания в Новосибирске
Жилой дом с развитым блоком обслуживания в Новосибирске
© АМ Сергей Киселев и Партнеры
Жилой дом с развитым блоком обслуживания в Новосибирске
Жилой дом с развитым блоком обслуживания в Новосибирске
© АМ Сергей Киселев и Партнеры
Жилой дом с развитым блоком обслуживания в Новосибирске
Жилой дом с развитым блоком обслуживания в Новосибирске
© АМ Сергей Киселев и Партнеры
Жилой дом с развитым блоком обслуживания в Новосибирске
Жилой дом с развитым блоком обслуживания в Новосибирске
© АМ Сергей Киселев и Партнеры
Жилой дом с развитым блоком обслуживания в Новосибирске
Жилой дом с развитым блоком обслуживания в Новосибирске
© АМ Сергей Киселев и Партнеры
Жилой дом с развитым блоком обслуживания в Новосибирске
Жилой дом с развитым блоком обслуживания в Новосибирске
© АМ Сергей Киселев и Партнеры
Жилой дом с развитым блоком обслуживания в Новосибирске
Жилой дом с развитым блоком обслуживания в Новосибирске
© АМ Сергей Киселев и Партнеры
Жилой дом с развитым блоком обслуживания в Новосибирске
Жилой дом с развитым блоком обслуживания в Новосибирске
© АМ Сергей Киселев и Партнеры
Жилой дом с развитым блоком обслуживания в Новосибирске
Жилой дом с развитым блоком обслуживания в Новосибирске
© АМ Сергей Киселев и Партнеры