Размещено на портале Архи.ру (www.archi.ru)

12.05.2009

Средовой лаконизм

Анна Мартовицкая
Объект:
Деловой центр «Кронштадтский»
Адрес:
Россия, Москва. Головинское шоссе, вл. 5
Архитектор:
Сергей Киселев
Мастерская:
АМ Сергей Киселев и Партнеры
Авторский коллектив:
архитекторы: Сергей Киселёв, Андрей Никифоров, Елена Клюева, Андрей Бреславцев, Антон Бусалов, Глеб Холопов
инженеры: Игорь Шварцман, Константин Спиридонов, ЗАО «АрхИн»

Если когда-то с излишествами в архитектуре боролись по идеологическим соображениям, то теперь «все лишнее» отсекается в ходе обсуждения сметы с заказчиком. Но кто сказал, что ограничения, продиктованные суровым экономическим кризисом, всегда отрицательно сказываются на качестве архитектурно-планировочных решений? Проект делового центра «Кронштадтский», выполненный архитектурной мастерской «Сергей Киселев и партнеры», – убедительное доказательство обратного.

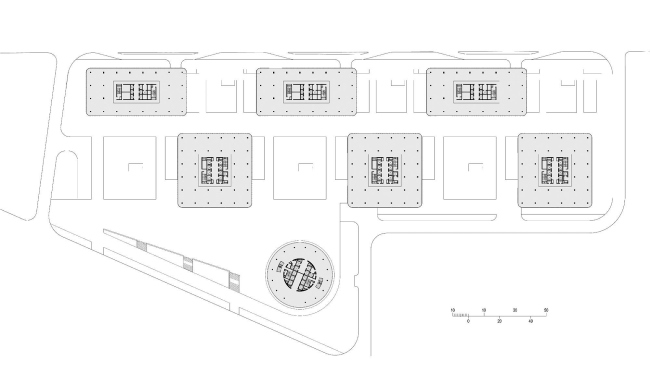
Деловой центр «Кронштадтский». Новый вариант (2009)
Деловой центр «Кронштадтский». Новый вариант (2009)
© АМ Сергей Киселев и Партнеры

Деловой центр действительно начали проектировать задолго до умопомрачительных скачков курсов мировых валют. К Сергею Киселеву заказчики обратились как к мастеру филигранного офисного проектирования и одновременно архитектору, способному решать сложные градостроительные ребусы. Дело в том, что офисный комплекс, вполне традиционный по своей программе, будет построен на участке, который даже  с очень большой натяжкой вряд ли можно назвать удачным.

Площадка под застройку расположена в районе станции метро «Водный стадион» и ограничена дублером Кронштадтского бульвара и Головинским шоссе. Вплотную к ней примыкает безрадостная промзона, которая застроена автобазами и складами и соседствует с Головинским кладбищем. Фактически само это место поставило перед архитекторами сложнейшую задачу: спроектировать значимый в градостроительном отношении комплекс, который бы стал для района долгожданной доминантой, придал ему «человеческое лицо» и отгородил бы стихийную торгово-пешеходную часть, неизбежно возникающую вокруг каждого выхода из метро, от мрачной округи. При этом заказчик изначально просил сделать упор на простую и лаконичную архитектуру: перегруженный всевозможными деталями высотный комплекс на фоне полузаброшенных складских строений и кладбища смотрелся бы не просто чужеродно, но откровенно нелепо. 

Поскольку техническое задание изначально предписывало спроектировать комплекс из нескольких корпусов, архитекторы решили разумно распределить роли между будущими строениями. Офисная высотка, круглая в плане, а внешне очень напоминающая футуристическую диспетчерскую башню какого-нибудь аэропорта, станет новой доминантой, а 11-этажные корпуса, раскрашенные в яркие «оптимистичные» цвета и имеющие перед собой уютные благоустроенные дворы, будут отвечать за то самое «человеческое лицо». Каждый корпус получил собственную палитру, причем цвет, будь то красный, синий или желтый, представлен в виде переходов одной гаммы от темного к светлому. Увлеченный цветовой игрой, взгляд невольно задерживается на таком фасаде - и сразу возникает вопрос: а сколько же здесь этажей? Архитекторы намеренно отказались от ленточного остекления, которое всегда «с головой» выдает офисную суть постройки: горизонтальные цветовые вставки распределены таким образом, чтобы не осталось даже намека на истинную этажность корпусов.

Башня, в свою очередь, облицована колористически нейтральными зеркальными панелями. Для того чтобы она не выглядела чужеродной на фоне остальных зданий комплекса, архитекторы скруглили их углы. В свете экономического кризиса заказчик, кстати, долго не соглашался на это решение, сокрушаясь по поводу его нерациональности, но в итоге пожертвовал одним из корпусов, а оставшиеся уравнял по высоте (в первоначальном варианте все они были разноэтажными). А вот оригинальную конструктивную схему башни – фермы по контуру, – которая бы роднила ее с творениями инженера Шухова, архитекторам отстоять не удалось, – слишком дорого.

Но это уже детали, которые вряд ли будут очевидны простым пешеходам. Главное же в другом – лаконичными художественными средствами офисного строительства Сергею Киселеву удалось создать комплекс, который привлекает внимание именно своей скрытой неочевидностью. Он словно бы провоцирует вопросы. Сколько у него этажей? И почему он такой яркий? И правда ли, что во двориках офисного комплекса можно будет гулять? Если вдуматься, так и рождаются – если не местные достопримечательности, то объекты, качественно меняющие среду обитания. И даже более того – наделяющие городскую среду такими качествами, которые делают ее пригодной для жизни.

Деловой центр «Кронштадтский». Новый вариант (2009)
Деловой центр «Кронштадтский». Новый вариант (2009)
© АМ Сергей Киселев и Партнеры
Деловой центр «Кронштадтский». Новый вариант (2009)
Деловой центр «Кронштадтский». Новый вариант (2009)
© АМ Сергей Киселев и Партнеры
Деловой центр «Кронштадтский». Первый вариант (2007-2008)
Деловой центр «Кронштадтский». Первый вариант (2007-2008)
© АМ Сергей Киселев и Партнеры
Деловой центр «Кронштадтский». Первый вариант (2007-2008)
Деловой центр «Кронштадтский». Первый вариант (2007-2008)
© АМ Сергей Киселев и Партнеры
Деловой центр «Кронштадтский». Первый вариант (2007-2008)
Деловой центр «Кронштадтский». Первый вариант (2007-2008)
© АМ Сергей Киселев и Партнеры
Деловой центр «Кронштадтский». Первый вариант (2007-2008)
Деловой центр «Кронштадтский». Первый вариант (2007-2008)
© АМ Сергей Киселев и Партнеры
Деловой центр «Кронштадтский»
Деловой центр «Кронштадтский»
© АМ Сергей Киселев и Партнеры