Размещено на портале Архи.ру (www.archi.ru)

25.03.2009

Эко-техно-парк

Анна Герасименко
Объект:
Реконструкция территории завода «Элара» в г. Чебоксары
Адрес:
Россия, Чебоксары. ул. 500-летия Чебоксар
Архитектор:
Андрей Асадов
Александр Асадов
Мастерская:
АБ ASADOV
Авторский коллектив:
Архитекторы – А.Асадов, А.А.Асадов, А.Мурашко, Б.Максименков, А.Порошкин, при участии И.Коренева; инженер – Г.Каркло

Недавно Градостроительный совет города Чебоксары одобрил проект реконструкции территории научно-производственного комплекса «Элара», выполненный архитектурной мастерской А.Асадова. Он предполагает создание в Чебоксарах современного технополиса, который объединяет научные лаборатории и производственные цеха с предельно «зеленым» архитектурным решением.

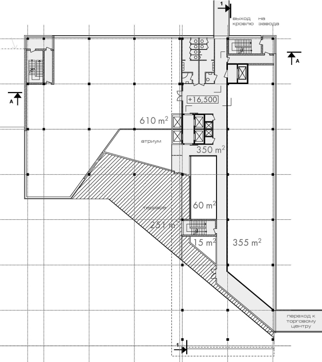
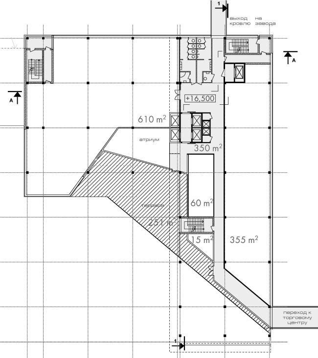
Реконструкция территории завода «Элара» в г. Чебоксары © Архитектурное бюро Асадова
Реконструкция территории завода «Элара» в г. Чебоксары © Архитектурное бюро Асадова

Завод «Элара» занимается производством электронного оборудования для гражданской и военной авиации, железных дорог, автомобилей и банков. Сейчас под изготовление приборов выделено несколько приземистых производственных цехов, дополненных высоким административным зданием. Несоответствующая высокотехнологичному производству советская архитектура корпусов завода и большая прилегающая к нему незастроенная территория, вероятно, подвигли заказчиков — компанию «ВолгаДевелопмент» на глобальную реконструкцию старых зданий и строительство новых – общественно-торгового и бизнес-центра.

Мастерская А.Асадова положила в основу генерального плана территории схему «3 слоев». Это старая застройка, новая застройка и «паутина» озелененных кровель уже существующих цехов, пристроенных террас и переходов, связывающих около 10 зданий техно-парка в единый комплекс. В итоге квадратный участок завода получился полностью застроен, т.е. использован с максимальной эффективностью, а сеть переходов и зеленых террас легли по его периметру.
Идея возможного сочетания технополиса и экоархитектуры в комплексе «Элары» была изначально предложена заказчиками. Ее прообразом стали немецкие технопарки, внутри которых в буквальном смысле слова царят джунгли. Ярким примером таких экологичных наукоградов стали работы архитекторов «Бениш и Бениш».

Приняв во внимание опыт немецких коллег, мастерская А.Асадова предприняла попытку заложить основы экологичной архитектуры в генеральном плане будущего технополиса с надеждой на дальнейшее их продвижение впоследствии непосредственно в отдельных постройках комплекса. В ходе реконструкции существующих производственных цехов предполагается устроить зеленые террасы с висячими садами в разных уровнях. Больше всего озеленяется огромное пространство крыши главного производственного цеха, видимой из окон других корпусов. Его превращают в сад с оранжереями, где можно выращивать что угодно, начиная от помидоров и заканчивая экзотическими растениями.

Оранжереи на крыше появились не случайно – они воплощают один из принципов экоархитектуры, который заключается в полезном использовании выработанного производством тепла, здание будет подогревать растения. Остальные принципы – естественная вентиляция зданий, двойные фасады, использование энергии солнца и ветра, прямого и отраженного солнечного света, минимальное количество отходов – также  заложены в планировку зданий будущего комплекса.

На данный момент наиболее разработан проект бизнес-центра, украшенный яркими зелеными лентами, которые в последнее время стали одной из узнаваемых «визитных карточек» мастерской А. Асадова. Похожими полосами расчерчено здание школы олимпийского резерва в Мытищах, проект которого разрабатывался архитекторами весной этого года. В Чебоксарах зеленые полосы также становятся дополнительным средством обозначения экологичности нового комплекса. Он «зеленый», таким образом, не только внутри, но и снаружи.

Реконструкция территории завода «Элара» в г. Чебоксары © Архитектурное бюро Асадова
Реконструкция территории завода «Элара» в г. Чебоксары © Архитектурное бюро Асадова
Реконструкция территории завода «Элара» в г. Чебоксары © Архитектурное бюро Асадова
Реконструкция территории завода «Элара» в г. Чебоксары © Архитектурное бюро Асадова
 Реконструкция территории завода «Элара» в г. Чебоксары © Архитектурное бюро Асадова
Реконструкция территории завода «Элара» в г. Чебоксары © Архитектурное бюро Асадова
Реконструкция территории завода «Элара» в г. Чебоксары © Архитектурное бюро Асадова
Реконструкция территории завода «Элара» в г. Чебоксары © Архитектурное бюро Асадова
Реконструкция территории завода «Элара» в г. Чебоксары © Архитектурное бюро Асадова
Реконструкция территории завода «Элара» в г. Чебоксары © Архитектурное бюро Асадова
Реконструкция территории завода «Элара» в г. Чебоксары © Архитектурное бюро Асадова
Реконструкция территории завода «Элара» в г. Чебоксары © Архитектурное бюро Асадова
Реконструкция территории завода «Элара» в г. Чебоксары © Архитектурное бюро Асадова
Реконструкция территории завода «Элара» в г. Чебоксары © Архитектурное бюро Асадова
Реконструкция территории завода «Элара» в г. Чебоксары © Архитектурное бюро Асадова
Реконструкция территории завода «Элара» в г. Чебоксары © Архитектурное бюро Асадова
Реконструкция территории завода «Элара» в г. Чебоксары © Архитектурное бюро Асадова
Реконструкция территории завода «Элара» в г. Чебоксары © Архитектурное бюро Асадова
Реконструкция территории завода «Элара» в г. Чебоксары © Архитектурное бюро Асадова
Реконструкция территории завода «Элара» в г. Чебоксары © Архитектурное бюро Асадова