|
Дом по проекту Studioninedots в новом районе Амстердама раскладывает жизнь семьи с двумя детьми по «коробочкам».
Light House расположен на «Центральном острове» (Centrumeiland), насыпной территории на озере Эймер. Это продолжение известного района Эйбург: искусственные острова выстраиваются в восточном направлении от центра Амстердама к «новому городу» Алмере. С «большой землей» эти территории связывают автобусные и трамвайные маршруты.

Застройка квартального типа составлена из больших и малых участков, где владельцы почти свободны в выборе облика своего дома, частного или многоквартирного. Главное условие: дождевая вода, попадающая на их территорию, должна там и оставаться: собираться в резервуар и впитываться в почву. Это общая политика для всего «Сентрумайланда»: район создает нулевую нагрузку на городскую систему водостока, здесь есть автономные наземные и подземные каналы, ведущие к «фильтрационным» озелененным участкам. Это ответ на сложные отношения Нидерландов с водой даже без учета растущего уровня мирового океана.

Земля раскупается с разной интенсивностью, и где-то кварталы уже составлены, а в других частях готовы лишь отдельные здания. Вытянутый в высоту Light House пока стоит один, что выглядит необычно, но у него скоро появятся соседи: речь идет о блокированной застройке.

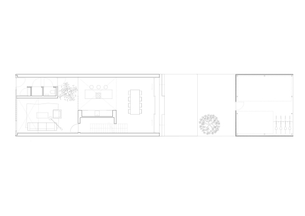
Заказчики хотели получить жилище, усиливающее связи между родителями и детьми и взаимодействующее с окружением. Ответ архитекторов не был очевидным. Они отказались от привычной схемы, где основное жилое пространство располагается внизу, а выше помещены спальни, в лучшем случае дополненные «домашним офисом». Они распределили столовую с кухней, гостиную, «индивидуальную» зону отдыха по прямоугольным объемам-«коробкам», что не только задало необычную схему домашней жизни, но и создало особое пространственное ощущение. Каждая «коробка» воспринимается не только внутри, но и сверху и снизу, в результате наполненный этими объемами интерьер, будучи домашним, не становится обыденным, понятия верха и низа перестают быть однозначными.

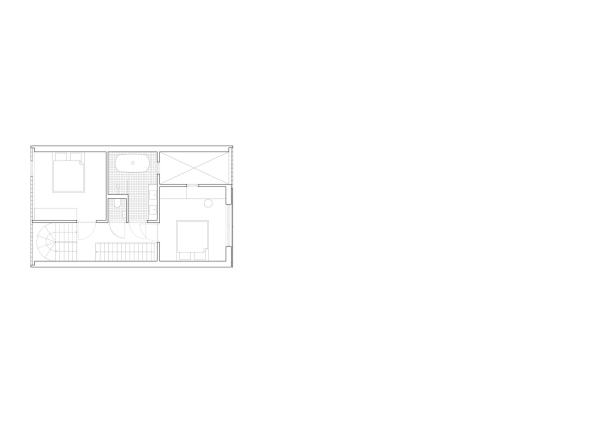
Необычность усиливают стеклоблоки на переднем и заднем фасадах (торцы полностью закрыты: к ним будут плотно примыкать соседние дома). Сквозь них можно видеть улицу, но это изображение нечетко, чуть искажено; аналогично, прохожие смогут лишь догадываться по силуэтам и цветным пятнам, что происходит внутри. При этом белые интерьеры (исключение составляет лишь темно-красная спиральная лестница в верхней части) залиты солнечным светом. Постройку на высоте 14 метров завершает «загородный домик» с большими «арочными» окнами на обе стороны и террасой с видом на озеро Эймер.

У дома стальной каркас, заполненный сборными элементами из инженерного дерева.
Дом Light HouseФото © Sebastian van Damme
Дом Light HouseФото © Sebastian van Damme
Дом Light HouseФото © Sebastian van Damme
Дом Light HouseФото © Sebastian van Damme
Дом Light HouseФото © Sebastian van DammeДом Light HouseФото © Sebastian van DammeДом Light HouseФото © Sebastian van DammeДом Light HouseФото © Sebastian van DammeДом Light HouseФото © Sebastian van DammeДом Light HouseФото © Sebastian van DammeДом Light HouseФото © Sebastian van DammeДом Light HouseФото © Sebastian van DammeДом Light HouseФото © Sebastian van DammeДом Light HouseФото © Sebastian van DammeДом Light HouseФото © Sebastian van DammeДом Light HouseФото © Sebastian van DammeДом Light HouseФото © Sebastian van DammeДом Light HouseФото © Sebastian van DammeДом Light HouseФото © Sebastian van DammeДом Light HouseФото © Sebastian van DammeДом Light House© StudioninedotsДом Light House© StudioninedotsДом Light House© StudioninedotsДом Light House© StudioninedotsДом Light House© StudioninedotsДом Light House© StudioninedotsДом Light House© StudioninedotsДом Light House© StudioninedotsДом Light House© StudioninedotsДом Light House© StudioninedotsДом Light House© StudioninedotsДом Light House© StudioninedotsДом Light House© StudioninedotsДом Light House© Studioninedots
|