|
Бюро «Уголок» разработало интерьер одного из филиалов ресторана «М2 Органик клуб», специализирующегося на экологически чистой продукции и органической кулинарии, проиллюстрировав при помощи дизайна каждое из четырех времен года.
От редакции Помните анекдот про маленькую девочку, проходящую собеседование для поступления в престижную школу, на котором ее спросили, сколько времен года она знает, и она ответила – шесть, чем очень расстроила директора школы, который ожидал ответа – четыре, и маму, которая сама насчитала восемь «Времен года»: Вивальди, Гайдна, Пьяццоллы, Лусье, Чайковского, Глазунова, Десятникова и Кейджа?
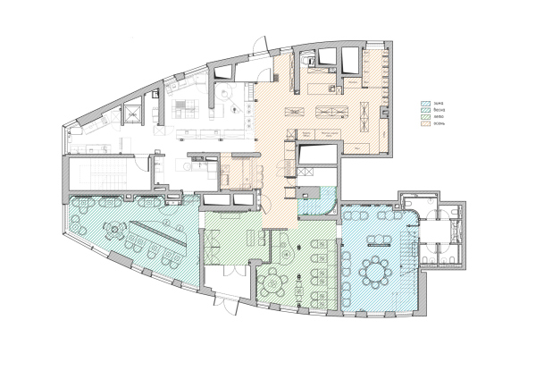
Именно этот анекдот припоминается при знакомстве с интерьером ресторана «М2 Органик клуб» в Раменках, который спроектировали бюро «Уголок» и ЮС.ПРО (рабочая документация). Все пространства на двух этажах разделены между четырьмя сезонами: есть две комнаты весны, по два помещения для зимы и лета, а также два просторных осенних зала. Архитекторы постарались передать различные ассоциации и особенности каждого времени года при помощи дизайна, собрав в одном пространстве множество их проявлений. Благодаря изобретательности и широте ассоциативных рядов кажется, что любой человек найдет здесь, узнает и обрадуется именно той примете, которую он ждет каждый год и по которой отмеряет свою жизнь. И в этой множественности и многогранности времен года кроется главный секрет очарования интерьера ресторана «М2 Органик клуб».
 Те, кто больше всего любят весну, с удовольствием проведут время в интерьере, где, кажется, слышен звук капели и журчание многочисленных ручейков от тающего снега. И как переменчива весна, так и дизайн здесь то заигрывает с распускающимися листочками и первыми пробивающимися сквозь осевшие сугробы цветами, которые украшают мебель и аксессуары, то слегка пугает холодными, как утренние заморозки и неожиданный апрельский снегопад, цветами стен и драпировок.
 В летних залах царит идеальное состояние природы средней полосы, которое иногда, словно подарок, приходит на несколько дней и остается в памяти навсегда: не жарко, но и не холодно, с легкими пушистыми облаками на небе, стрекочущими в траве кузнечиками и душистым запахом каких-то маленьких и невзрачных цветов. Облака здесь изображают ажурные светильники. Травы заполняют большие декоративные панно на стенах, а цветы украшают каждый столик, выполненный из натурального дерева.
 Натуральное дерево в сочетании с элементами теплой цветовой гаммы присутствует и в осенних залах. Архитекторы решили не форсировать ассоциативный ряд и не воспроизводить буквально «золотую осень», деликатно вводя в интерьер охристые, коричневатые и красноватые оттенки.
 Зима не спешит пугать гостей ресторана суровым обликом. В ее залах доминирует белый цвет и оттеняющие его брутальные поверхности из бетона. Дополнительные акценты в виде криволинейных накладок из полированного металла на потолке и стенах ассоциируются со снежными тучами и ледяными глыбами, которым вторят угловатые перегородки, похожие на мини-айсберги.
 В каждой из тематических зон предусмотрены несколько вариантов рассадки: компактные столики для двух гостей, круглые столы для семейных обедов и просторные прямоугольные столы для больших компаний, которые могут при желании расположиться в отдельных кабинетах.
 Не менее изобретательны и вариабельны санузлы, которые продолжают сезонные вариации уже с поправкой на гигиенические функции и обстановку. Архитекторы и дизайнеры не упустили возможность собрать в них дополнительную порцию оформительских решений, вновь напомнив гостям о том, что здесь не обязательно раз и навсегда определяться со своим любимым сезоном и можно менять предпочтения, следуя своему настроению и получая удовольствие, угадывая в тех или иных элементах приметы каждого времени года.
 Описание предоставлено архитекторами Главная идея проекта – передать в интерьерных решениях настроение каждого времени года, чтобы гости могли каждый раз открыть для себя что-то новое – и в интерьере, и в кухне.
Дизайн-концепция ресторана включает в себя четыре времени года, которые каждый может узнать, но они представлены ассоциативно, чтобы каждый гость мог подчеркнуть что-то свое.
 Заходя в ресторан, открывается вид на гипсовое панно с летними цветами и травами, а пластичная архитектура помещения приглашает пройти дальше и посмотреть все множество залов и зон времен года.
Справа от входной зоны расположен зал в летней тематике. Уединенное пространство отдано под зону для компании, собирающейся за большим круглым столом, в котором спрятаны злаки, орешки, полевые сухоцветы. Также по всему залу на столах расставлены букеты ярких витражных цветов.
 Барная зона заимствует элементы из летнего сектора, расположенного по соседству, формируя плавный переход сезонов.
Переход из осеннего коридора на лестницу создает иную картину – резкую смену погоды. Зимний лес, провожающий гостя на второй уровень, выстроен из белых сосен.
 Для зала с весенней тематикой специально выбрано пространство с высокими потолками и большим количеством света, так как в нем содержится множество элементов, играющих со светом. На потолке из бумажных полотен собран сугроб. По всему залу видны растаявшие льдины, выполненные из стекол разных фактур. На бетонной стене расположен гобелен, ассоциирующийся с сугробом. Панно играет на контрасте с грубой стеной, отсылающей к резким переменам погоды.
 Летний зал второго этажа поддерживает концепцию натуральности. Деревянные полы и природные оттенки стен контрастируют с яркими зелеными элементами интерьера. Существующая бетонная стена служит фоном для большого холста.
Второй этаж ресторана встречает осенним залом. Красные и оранжевые оттенки мебели перекликаются с оттенками стен и потолка. Акцентный светильник из агавы напоминает о недавнем лете.
 «Зима» представлена в белых оттенках с контрастными бетонными стенами. Угловатые формы пространства комбинируются с мягкими арочными формами ниш. Луна над большим круглым столом является центральным элементом зала. Рисунок стола выполнен эпоксидной смолой.
 Антресоль зала встречает потолком из белоснежной бумаги, а также инсталляциями из застывших стеклянных капель. Множество деревьев и льняные шторы добавляют пространству уюта и атмосферности.
 Ресторан М2 Органик клуб, ЖК Крылья. Зал «Лето»Фотография © Сергей Мельников / предоставлена Дизайн-бюро «Уголок»
Ресторан М2 Органик клуб, ЖК Крылья. Комната мастер-классов с шеф-поваромФотография © Сергей Мельников / предоставлена Дизайн-бюро «Уголок»Ресторан М2 Органик клуб, ЖК Крылья. Комната мастер-классов с шеф-поваромФотография © Сергей Мельников / предоставлена Дизайн-бюро «Уголок»Ресторан М2 Органик клуб, ЖК Крылья. Зал «Лето»Фотография © Сергей Мельников / предоставлена Дизайн-бюро «Уголок»Ресторан М2 Органик клуб, ЖК Крылья. Зал «Лето»Фотография © Сергей Мельников / предоставлена Дизайн-бюро «Уголок»Ресторан М2 Органик клуб, ЖК Крылья. Зал «Осень»Фотография © Сергей Мельников / предоставлена Дизайн-бюро «Уголок»Ресторан М2 Органик клуб, ЖК Крылья. Зал «Осень»Фотография © Сергей Мельников / предоставлена Дизайн-бюро «Уголок»Ресторан М2 Органик клуб, ЖК Крылья. Зал «Зима»Фотография © Сергей Мельников / предоставлена Дизайн-бюро «Уголок»Ресторан М2 Органик клуб, ЖК Крылья. Зал «Зима»Фотография © Сергей Мельников / предоставлена Дизайн-бюро «Уголок»Ресторан М2 Органик клуб, ЖК Крылья. План 1 этажа© Дизайн-бюро «Уголок»Ресторан М2 Органик клуб, ЖК Крылья. План 2 этажа© Дизайн-бюро «Уголок»Ресторан М2 Органик клуб, ЖК Крылья. Санузел 1 этажФотография © Сергей Мельников / предоставлена Дизайн-бюро «Уголок»Ресторан М2 Органик клуб, ЖК Крылья. Санузел 1 этажФотография © Сергей Мельников / предоставлена Дизайн-бюро «Уголок»Ресторан М2 Органик клуб, ЖК Крылья. Санузел 2 этажФотография © Сергей Мельников / предоставлена Дизайн-бюро «Уголок»Ресторан М2 Органик клуб, ЖК Крылья. Зал «Лето»Фотография © Сергей Мельников / предоставлена Дизайн-бюро «Уголок»Ресторан М2 Органик клуб, ЖК Крылья. Коридор. Зона бараФотография © Сергей Мельников / предоставлена Дизайн-бюро «Уголок»Ресторан М2 Органик клуб, ЖК Крылья. Входная группаФотография © Сергей Мельников / предоставлена Дизайн-бюро «Уголок»
Ресторан М2 Органик клуб, ЖК Крылья. Зал «Лето»Фотография © Сергей Мельников / предоставлена Дизайн-бюро «Уголок»Ресторан М2 Органик клуб, ЖК Крылья. Зал «Лето». ДеталиФотография © Сергей Мельников / предоставлена Дизайн-бюро «Уголок»Ресторан М2 Органик клуб, ЖК Крылья. БарФотография © Сергей Мельников / предоставлена Дизайн-бюро «Уголок»
Ресторан М2 Органик клуб, ЖК Крылья. Зал «Весна»Фотография © Сергей Мельников / предоставлена Дизайн-бюро «Уголок»Ресторан М2 Органик клуб, ЖК Крылья. Зал «Весна»Фотография © Сергей Мельников / предоставлена Дизайн-бюро «Уголок»Ресторан М2 Органик клуб, ЖК Крылья. Зал «Весна»Фотография © Сергей Мельников / предоставлена Дизайн-бюро «Уголок»Ресторан М2 Органик клуб, ЖК Крылья. Зал «Весна»Фотография © Сергей Мельников / предоставлена Дизайн-бюро «Уголок»Ресторан М2 Органик клуб, ЖК Крылья. Зал «Весна»Фотография © Сергей Мельников / предоставлена Дизайн-бюро «Уголок»Ресторан М2 Органик клуб, ЖК Крылья. Зал «Весна»Фотография © Сергей Мельников / предоставлена Дизайн-бюро «Уголок»Ресторан М2 Органик клуб, ЖК Крылья. ЛестницаФотография © Сергей Мельников / предоставлена Дизайн-бюро «Уголок»Ресторан М2 Органик клуб, ЖК Крылья. ЛестницаФотография © Сергей Мельников / предоставлена Дизайн-бюро «Уголок»Ресторан М2 Органик клуб, ЖК Крылья. ЛестницаФотография © Сергей Мельников / предоставлена Дизайн-бюро «Уголок»Ресторан М2 Органик клуб, ЖК Крылья. Зал «Зима»Фотография © Сергей Мельников / предоставлена Дизайн-бюро «Уголок»Ресторан М2 Органик клуб, ЖК Крылья. Зал «Зима»Фотография © Сергей Мельников / предоставлена Дизайн-бюро «Уголок»Ресторан М2 Органик клуб, ЖК Крылья. Зал «Зима»Фотография © Сергей Мельников / предоставлена Дизайн-бюро «Уголок»Ресторан М2 Органик клуб, ЖК Крылья. Зал «Зима»Фотография © Сергей Мельников / предоставлена Дизайн-бюро «Уголок»Ресторан М2 Органик клуб, ЖК Крылья. Комната мастер-классов с шеф-поваром. ДеталиФотография © Сергей Мельников / предоставлена Дизайн-бюро «Уголок»Ресторан М2 Органик клуб, ЖК Крылья. Комната мастер-классов с шеф-поваром. ДеталиФотография © Сергей Мельников / предоставлена Дизайн-бюро «Уголок»Ресторан М2 Органик клуб, ЖК Крылья. Детали. БарФотография © Сергей Мельников / предоставлена Дизайн-бюро «Уголок»Ресторан М2 Органик клуб, ЖК Крылья. Детали. ПанноФотография © Сергей Мельников / предоставлена Дизайн-бюро «Уголок»Ресторан М2 Органик клуб, ЖК Крылья. Детали. Зал «Зима»Фотография © Сергей Мельников / предоставлена Дизайн-бюро «Уголок»Ресторан М2 Органик клуб, ЖК Крылья. Игровая комната для детейФотография © Сергей Мельников / предоставлена Дизайн-бюро «Уголок»Ресторан М2 Органик клуб, ЖК Крылья. Санузел 2 этаж. ДеталиФотография © Сергей Мельников / предоставлена Дизайн-бюро «Уголок»
|