|
В проекте загородного дома Frame Wood от AGE architects тектоника мощного фахверкового каркаса освобождена от стереотипов и заключена в лаконичный силуэт барнхауса. Конструкция по-прежнему – главное средство выразительности, но она становится более вариативной, а дом приобретает не характерную для фахверка легкость.
Переосмысливая типологию премиального фахверкового дома, авторы проекта Frame Wood отказываются от привычного образа «шале» и «решетчатой» эстетики, заменяя её монолитным современным объемом с двускатной кровлей. Получился интересный гибрид, где сохранены мощные балки, выявляющие логику конструкции, но в то же время уверенно присутствует дух модернизма – особенно в подчеркнутых горизонталях зоны навесов, где дерево сменяется металлом, создавая визуальный контраст функций. Проект – лауреат конкурса «Красивые деревянные дома 2025».
  Описание предоставлено архитекторами:
Проект загородного дома Frame Wood – это переосмысление традиционной фахверковой архитектуры. В основе концепции лежит ключевая особенность технологии – визуальная выразительность несущего каркаса и его тектоника, которые гармонично проявляются как в экстерьере, так и в интерьере. Благодаря этому создаётся ощущение лёгкости и открытости пространства, а конструкция становится частью архитектурного образа.
 Однако привычный облик фахверковых домов, сложившийся за долгие годы, в стандартных решениях утратил свою актуальность. Он стал предсказуемым и не всегда отвечает современным представлениям об архитектуре. Нам было важно не просто использовать технологию, а раскрыть её потенциал в новом контексте, сохранив достоинства, но придав ей индивидуальность и характер.
  Мы отошли от классической формы фахверка в пользу силуэта барн-хауса, что сделало архитектуру более лаконичной и монолитной. Логика конструктивных решений подчёркивает горизонтальную динамику дома: в основной деревянной части акцентирована массивная сдвоенная балка, тогда как в зоне навесов для автомобиля использован металлический пояс, создающий ощущение лёгкости и технологичности. Этот баланс материалов усиливает визуальное разделение функций, придавая архитектуре цельность и выразительность.Frame Wood@ AGE architects
Frame Wood. Общий вид@ AGE architects
Frame Wood@ AGE architectsFrame Wood@ AGE architectsFrame Wood@ AGE architectsFrame Wood@ AGE architectsFrame Wood@ AGE architects
Frame Wood@ AGE architects
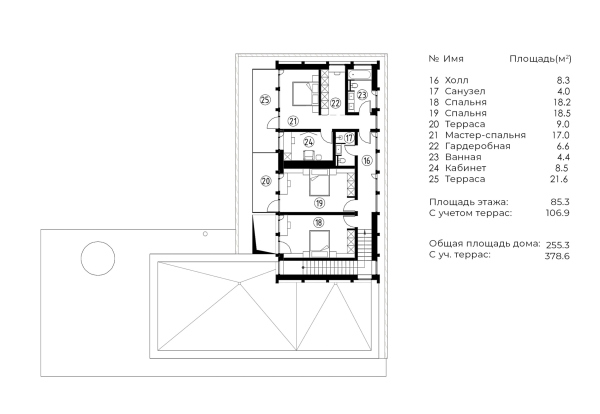
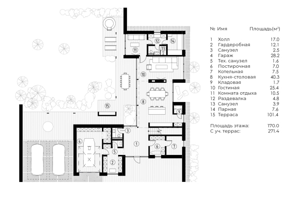
Frame Wood. План 1-го этажа@ AGE architectsFrame Wood. Разрезы@ AGE architectsFrame Wood. Фасады@ AGE architectsFrame Wood.План 2-го этажа@ AGE architects
|