|
Общественно-деловой центр «Графит» построен по проекту бюро FUTURA-ARCHITECTS в новом жилом районе, который развивается за южной границей Санкт-Петербурга, недалеко от Финского залива. Авторы отрефлексировали близость холодного Балтийского моря, придав зданию динамику преодоления и скругленные, словно от ветра и воды, края.
Описание предоставлено архитекторами Бизнес-центр с торговыми и культурно-досуговыми площадками входит в состав большого жилого района, расположенного на границе Санкт-Петербурга и Ленинградской области. Он снижает уровень маятниковой миграции и предлагает место для встреч, что укрепляет добрососедские связи.   Бизнес-центр выполнен в виде параллелепипеда с наклоном в сторону КАД, что придает ему внутреннюю напряженность и сходство с кораблем. Наклон также связан с природными особенностями места: здание как будто противостоит северным ветрам, которые часто дуют со стороны Финского залива. Словно под воздействием дождя и ветра угол был сглажен, а боковые грани отполированы. Ленточные окна на боковых фасадах подчеркивают направление воздействия сил природы.   Линии изгибов авторы заимствовали у гранитных валунов, которые часто можно встретить на берегах Финского залива или Ладожского озера. Ледник, а затем вода и ветер обтесали эти камни до почти идеально гладкого состояния. Так и здание, обращенное к заливу и обдуваемое северными ветрами, приобретает динамичную форму.   Для отделки фасада применялся принцип «природной случайности»: при всем многообразии дикой природы, в ней часто встречаются похожие элементы. Например, на пляже может быть разбросано великое множество камней, но рядом окажутся похожие по составу и форме. Основной элемент в оформлении фасада – модульная плитка, которая имитирует кирпич. Архитекторы столкнулись с тем, что из-за округлых поверхностей и наклона с одной стороны, а также резких углов – с другой, невозможно было использовать плитку стандартной формы. Поэтому на предприятии «Борисовские мануфактуры» заказали специальные кирпичи с наклоном от 10 до 120 градусов в разных направлениях. В проекте были реализованы и другие нестандартные решения: 12-метровая консоль и гнутые стеклопакеты.   Злаки, высаженные на прилегающих к бизнес-центру участках имитируют природный ландшафт, дополняя лаконичный «северный» стиль здания. Для проекта подбирались экологически чистые стройматериалы, а комплекс энергоэффективных решений минимизирует теплопотери.    Бизнес-центр Графит в Новоселье© FUTURA-ARCHITECTS
Бизнес-центр Графит в Новоселье© FUTURA-ARCHITECTS
Бизнес-центр Графит в Новоселье© FUTURA-ARCHITECTS
Бизнес-центр Графит в НовосельеФотография © Дмитрий Цыренщиков/ предоставлена FUTURA-ARCHITECTS
Бизнес-центр Графит в НовосельеФотография © Любовь Манова / предоставлена FUTURA-ARCHITECTS
Бизнес-центр Графит в НовосельеФотография © Любовь Манова / предоставлена FUTURA-ARCHITECTS
Бизнес-центр Графит в НовосельеФотография © Дмитрий Цыренщиков / предоставлена FUTURA-ARCHITECTS
Бизнес-центр Графит в НовосельеФотография © Любовь Манова / предоставлена FUTURA-ARCHITECTS
Бизнес-центр Графит в НовосельеФотография © Любовь Манова / предоставлена FUTURA-ARCHITECTS
Бизнес-центр Графит в НовосельеФотография © Любовь Манова / предоставлена FUTURA-ARCHITECTS
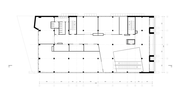
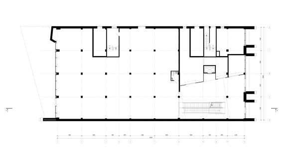
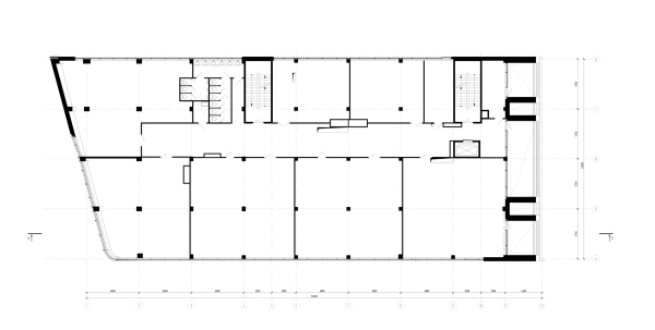
Бизнес-центр Графит в Новоселье© FUTURA-ARCHITECTSБизнес-центр Графит в Новоселье. План 1 этажа на отметке 0,000© FUTURA-ARCHITECTSБизнес-центр Графит в Новоселье. План 2 этажа на отметке +4,500© FUTURA-ARCHITECTSБизнес-центр Графит в Новоселье. План 3 этажа на отметке +8,400© FUTURA-ARCHITECTSБизнес-центр Графит в Новоселье. План 4 этажа на отметке + 12,300© FUTURA-ARCHITECTSБизнес-центр Графит в Новоселье. Разрез© FUTURA-ARCHITECTSБизнес-центр Графит в Новоселье. Разрез© FUTURA-ARCHITECTSБизнес-центр Графит в Новоселье© FUTURA-ARCHITECTSБизнес-центр Графит в Новоселье© FUTURA-ARCHITECTSБизнес-центр Графит в Новоселье© FUTURA-ARCHITECTSБизнес-центр Графит в Новоселье. Фасады© FUTURA-ARCHITECTS
|