|
Бюро «Лепо» разработало дизайн для ресторана «ЭНСО», в котором экзотическая кулинарная концепция и нестандартное пространственное решение со входом по стеклянному мосту получили свое логичное завершение в виде ярко-алого интерьера, интригующего и харизматичного.
От редакции Трудно сказать наверняка, в какой исторический период люди впервые начали ассоциировать те или иные цвета с определенными явлениями, символами и понятиями. Различные научные исследования ведут отсчет еще с первобытных времен, когда древние люди использовали для наскальных рисунков три главных цвета: белый (свет, жизнь, добро), черный (ночь, смерть, болезнь) и красный (жизнь, война, страсть). Своя цветовая символика была в Древнем Китае и Индии, в классическую эпоху и в Средневековье. Возрождение подняло искусство цвета на уровень самостоятельного языка, с помощью которого можно было сделать заявление при помощи разноцветных элементов одежды. С переходом в индустриальный век и сменой модных тенденций значение цветов снизилось, сосредоточившись в областях интерьерного дизайна и наук, работающих с психологией цветовосприятия. И в этих сферах цвета и специфика их восприятия человеком достигли поразительной изощренности, доступной только настоящим мастерам колористики и многочисленным видеоблогерам от дизайна.
Несмотря на прошедшие века, красный цвет сохраняет свою значимость и смысловую нагрузку. В современных учебниках по колористике красные оттенки символизируют энергию, страсть, уверенность и активность. В интерьере его используют с осторожностью, в качестве акцентов, но при этом считается, что он уместен на кухне или в столовой, так как усиливает аппетит, и в спортзале, так как стимулирует физическую активность. Не торопитесь оспаривать это утверждение, ссылаясь на то, что нужно очень постараться, чтобы найти интерьер жилой или общественный, в котором доминировал бы красный цвет. Особенно в реальных российских интерьерах. Может быть, где-то в Мексике или в Испании этот цвет встречается в дизайне чаще, но в нашей стране он редкий гость. И тем не менее шанс видеть его во всей красоте и мощи есть у любого посетителя ресторана «ЭНСО: созерцание / Азия / гриль» в Воронеже.
 Нужно отдать должное владельцам ресторана «ЭНСО» и архитекторам из бюро «Лепо». Замахнувшись на концепцию экзотического и экстравагантного ресторана, они пошли до конца и отдали главную роль в интерьере красному цвету, превратив его в свой отличительный знак и маркетинговый прием, благодаря которому ресторан привлекает посетителей, готовых на себе испытать его стимулирующие аппетит и, видимо, жажду свойства.
Красным здесь становится все: стены, мебель и светильники. И даже то, что по идее должно было быть зеленым, – растения – тут превращаются в какую-то свою дьявольски бордовую противоположность. Даже навесы над открытыми террасами на крыше сделаны из окрашенного в красный цвет металла, благодаря чему место расположения ресторана легко определяется чуть ли не с противоположного края города. Впрочем, не будем преувеличивать. В интерьере есть предметы и элементы других цветов. Но найти их достаточно непросто, так как они преимущественно черного и серого цвета.
 Интересно, как посетители оценивают интерьер и реагируют на обилие красного цвета. Если посмотреть на отзывы на Яндексе, можно с удивлением обнаружить, что многие используют слова «уют» и «уютно» для описания ресторана «ЭНСО». Вот вам и колористика, и психология цвета! А как же страсть и энергия? Оказывается, для искушенного клиента агрессивность и мощь красного цвета достаточно условны, и он вполне подходит для создания уютной атмосферы.
 Описание предоставлено архитекторами Ресторан-путешествие в самобытную атмосферу гастрономии, сплетенную из азиатских и западных традиций. За основу взяты две фундаментальные культуры, обогащенные необычными вкусами, чувственным опытом и тенденциями современного мира ресторанной индустрии.
Интерьер и экстерьер ресторана «ЭНСО» выполнены в едином стиле и колористике. Яркий алый цвет стал точкой притяжения и просматривается со всех сторон. Особенно выразительно ресторан просматривается с Чернавского моста.
 Эмоциональное цветовое приветствие начинается с лифтового холла соседнего здания. На следующем этапе гости попадают на стеклянный мост, ведущий в здание с рестораном.
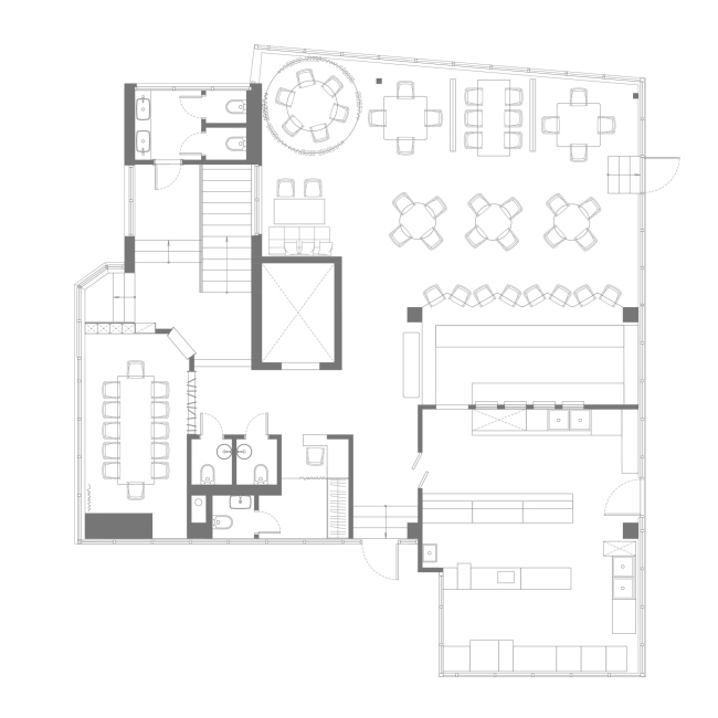
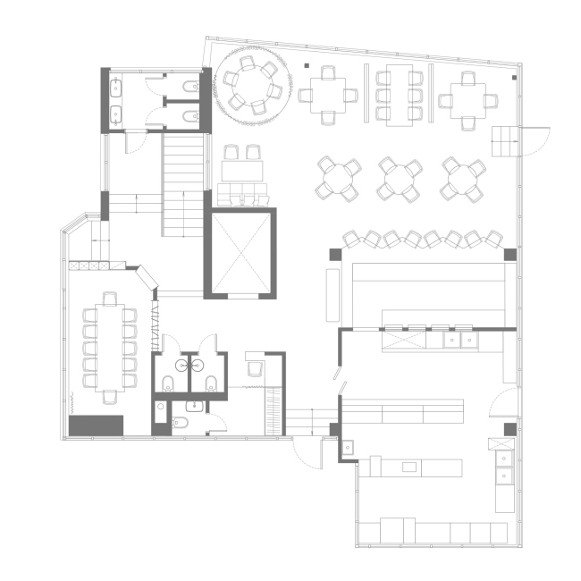
Внутреннее пространство буквально обволакивает красным цветом, различными текстурами, формами и объемами. На довольно небольшой внутренней площади ресторана есть два зала: основной и VIP. Особой гордостью являются террасы, которых 3, и размещены они вокруг основного объема. Также задействована крыша моста, по которой можно пройти до винтовой лестницы и попасть в ресторан 15/86 в соседнем здании.
 В интерьерных решениях архитекторы стремились эмоционально выделить и подчеркнуть формат ресторана как симбиоз восточной и европейской культур. Некоторые предметы интерьера скрывают в себе некий символизм, что делает пространство еще интереснее, живее, насыщеннее.
Авторам удалось создать в интерьере особую атмосферу – уникальную, спорную, вызывающую различные эмоции.
 Ресторан ЭНСОФотография © Анастасия Кобелева / предоставлена Архитектурное бюро «Лепо»
Ресторан ЭНСОФотография © Анастасия Кобелева / предоставлена Архитектурное бюро «Лепо»Ресторан ЭНСОФотография © Анастасия Кобелева / предоставлена Архитектурное бюро «Лепо»Ресторан ЭНСОФотография © Анастасия Кобелева / предоставлена Архитектурное бюро «Лепо»Ресторан ЭНСОФотография © Анастасия Кобелева / предоставлена Архитектурное бюро «Лепо»Ресторан ЭНСОФотография © Анастасия Кобелева / предоставлена Архитектурное бюро «Лепо»Ресторан ЭНСОФотография © Анастасия Кобелева / предоставлена Архитектурное бюро «Лепо»
Ресторан ЭНСОФотография © Анастасия Кобелева / предоставлена Архитектурное бюро «Лепо»Ресторан ЭНСОФотография © Анастасия Кобелева / предоставлена Архитектурное бюро «Лепо»Ресторан ЭНСОФотография © Анастасия Кобелева / предоставлена Архитектурное бюро «Лепо»Ресторан ЭНСОФотография © Анастасия Кобелева / предоставлена Архитектурное бюро «Лепо»Ресторан ЭНСОФотография © Анастасия Кобелева / предоставлена Архитектурное бюро «Лепо»Ресторан ЭНСОФотография © Анастасия Кобелева / предоставлена Архитектурное бюро «Лепо»Ресторан ЭНСОФотография © Анастасия Кобелева / предоставлена Архитектурное бюро «Лепо»Ресторан ЭНСОФотография © Анастасия Кобелева / предоставлена Архитектурное бюро «Лепо»Ресторан ЭНСО. Планировочное решение@ Архитектурное бюро «Лепо»
|